原创 UK Fortune 英伦财富 2021-08-20
33岁英*歌国**坛巨星阿黛尔在最近一年多将自己成功瘦身,成为娱乐圈励志的热门话题。同时,她在美国豪宅区比弗利山庄相继购买三套相邻的房产、在英国伦敦富豪区肯辛顿接连购买两套相邻的豪宅,更是成为明星们投资理财的楷模。

千万镑购两套相邻房产,计划合并扩建
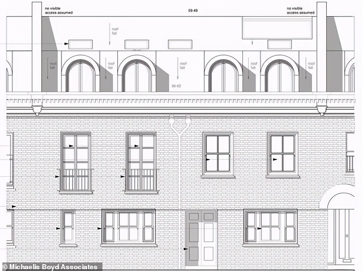
阿黛尔已经在伦敦市中心肯辛顿的优质地段买下了2栋相邻的别墅,总价达到1100万镑。日前,她将把这2栋房产合并成自己在伦敦的新家。

根据阿黛尔提交给当地辖区政府的规划申请,她梦想中的家包括一个1000平方英尺的卧室,这一面积是伦敦普通房产总面积的2倍。
一位内部人士对媒体表示,这套房子将成为这位全球当红歌星在伦敦的家。她将不惜成本。
据悉合并改建后的豪宅将包括4层楼,三间套房,以及为阿黛尔八岁儿子Angelo准备的宽敞的游戏室。
整个二层将是阿黛尔的卧室,其中有一个豪华的玻璃地板走廊,凸显了宽敞的空间。此外,卧室套房还配有独立的“她”/“他”女浴室,对阿黛尔和男友来说将是很方便的设计。
房产还包括了一个2个车位的车库,用来停放阿黛尔的豪车。车库位于房产地下室。其他空间包括一个客厅、餐厅、厨房和书房。
由于阿黛尔购买的房产位于一个受保护的社区内,因此外观需要保留高大的窗户和朱丽叶阳台,据悉阳台也需要涂成黑色。
新别墅的花园内将有一个烧烤区和木制凉棚。
阿黛尔还有哪些房产?
近年来,阿黛尔一直在扩大自己的房产投资组合,目前她在美国持有大量房产。
阿黛尔一直对贝弗利山庄郊区的Hidden Valley情有独钟。前几个月她刚刚买下了贝弗利山庄的第三套房子,紧挨着她已经拥有的另外两套,位于一个明星云集的社区。 阿黛尔的一些密友都住在附近,比如珍妮弗·劳伦斯。
买下这套房子后,阿黛尔在贝弗利山庄的房产规模再次扩大,并组成了一个院落。

这栋拥有四间卧室、四间浴室的豪宅带有游泳池和篮球场,以995万美元的价格售出。
2016年,阿黛尔以950万美元的价格购买了一套四室六厅的住宅,并配有游泳池和避暑小屋。

2019年4月,和前夫Simon分手后,阿黛尔显然不想打破这个家庭的动态。于是在一个月后,她以1065万美元的价格买下了房子对面的一栋六居室房产,这样前夫还能和孩子亲近。

阿黛尔的前2套房产是以The Gatefield Trust和Todd Gelfand的名义购买的,Todd Gelfand是阿黛尔商业管理公司Gelfand, Rennert & Feldman的合伙人。最近这套是以The Onwards Alba Trust的Michelle Morton名义购买的,Michelle Morton是Gelfand, Rennert & Feldman的总监兼合伙人。

Hidden Valley共33处房产,其中11套由明星所有,比如演员兼模特Penelope Cruz、女演员Jennifer Lawrence、Nicole Kidman、Zoe Saldana、Katy Perry、Ashton Kutcher等。
延伸阅读:
30万镑(270万元)在英国能买到什么样的别墅?
500万元(55万镑)在大伦敦能买到什么样的别墅?
1.24亿元做英国乡村庄园地主, 超1000英亩农场/鹿苑/林地都是你的
开门就是海滩, 劳斯莱斯主席家族房产, 二级保护庄园360万镑寻找新主人
自带800年“王子湖”, 英国这处历史悠久的乡村大宅院才190万镑!
多部大片拍摄地, 英国最美村庄一套三居室别墅67.5万镑待售
英国“棕榈滩”海景名人豪宅转售, 自带私人码头和独立宾客别墅
众多明星曾入住, 著名桌游灵感源, 英海滨乡村酒店寻找新主人
变废为宝, 136年历史火车站变身花园洋房, 仍有扩建空间
北伦敦富人区惊现“冰山屋”, 设计巧妙,别有洞天!
(本文内容为英国房产周刊原创,英文信息参考Dailymail等。微信转发,必须标明出处:英国房产周刊。文中内容仅为行业资讯,实际投资请遵循专业法律建议)