

在日常的设计工作中,经常会听到 “暗门” 这个词,它是设计师用来保持界面统一与美观的墙面 “隐形结构” 。
在正常情况下,我们把 能够与周边环境融为一体 ,起到 隐藏 和 遮蔽 的作用,在使用时又可以轻松开启的构件, 统称为“暗门” 。
暗门的形式多种多样,如: 消火栓的暗门,墙面饰面板的暗门 等。今天我们主要讨论的暗门是以墙面平开的消火栓暗门为主,给你讲一讲可以180°开启的消火栓暗门工艺,到底是什么样的?
接下来,我们从以下3个方面来给大家详细剖析有关“可180°开启”的石材消火栓暗门工艺:
1、常见暗门构造逻辑大解析!
2、什么是180°开启暗门?如何实现?
3、暗门的4种常见质量通病解析!
一
常见暗门构造逻辑大解析!

在理解暗门的构造之前,我们先明确几点常识:
1、用于消防疏散的防火门是不能做暗门的;
2、通常情况下,消火栓的暗门饰面材料是不建议用易燃,且不耐高温的材料做的。如:玻璃,软包等。
3、消火栓规范规定,消火栓暗门开启角度不能<160°。
暗门的底层规律解读:

△门开启的逻辑示意
在解读暗门的底层规律之前,我们一定要了解门的 “五金构件” ,一般门的开启主要由一侧 装合页 或者两侧装 天地轴 来实现。

△合页的开启方式
根据这个原理,我们在理解暗门时,其实可以把它拆分成 “门扇+开合构件” 来理解。

△石材干挂标准构造
如上图所示,以石材干挂为例,它的门扇部分其实就是周边墙面做法的延伸,周边材料是用什么构造做,暗门扇就用什么构造做。

△石材干挂暗门构造做法
理解暗门门扇与周边构造的关系后,剩下的仅仅只是把门扇与周边部位通过开合构件连接起来即可。
而开合构件部分主要有两种形式:
1
暗合页。
暗合页是通过合页来实现开合设置:

△暗合页
通过装配 暗合页+木基层 来让门达到隐形效果的处理方式;
优点:
安装成本低,易于施工,安全稳固,可开启角度大。
缺点:
所承载的门扇重量轻。

△暗合页
基于以上特点:
它是在内装中使用最广泛的暗门处理方式,没有之一;
它适用于暗门的载重较轻的情况,如,木饰面暗门,乳胶漆暗门,金属饰面暗门等。
以木饰面暗门装饰为例,它的具体做法如下:
PS:观察时,请按照我们说到的把门扇和开合构件分开进行观察。

△木饰面暗门三维示意图

△木饰面暗门立面示意图

△木饰面暗门剖面图
2
天地轴。
天地轴做法是通过 天地轴+钢架基层 来对暗门进行开合:
它是使用我们之前提到的需焊接的天地轴来对门扇进行开合作用。
优点:
承受荷载大,材料成本低,性能稳定。
缺点:
安装麻烦,可开启角度小,开启不便。
基于以上特点:
这种方式主要针对 重型饰面材料 为暗门时所采用的措施。也就是说,不能用合页来做暗门时,才会考虑到用天地轴来做。
以石材暗门为例,它的具体做法如下:

△石材暗门三维示意图

△石材暗门立面图

△石材暗门剖面图

△石材暗门剖面图

△石材暗门内部结构示意
由上图我们可以看出:
1、门开启的角度大小是由轴心的居中程度来决定的,轴心越居中,暗门可开启角度越大。
2、在纯石材暗门饰面的情况下,没有拉手,想开门只能在反方向往里推,如下图所示:

最常规的两种暗门固定形式介绍完了,根据上面的这些原理(门扇+开合构件),我们可以推导出更多材质的暗门构造方式,比如金属饰面暗门,玻璃饰面暗门,乳胶漆饰面暗门等等。
二
什么是180°开启暗门?如何实现?

△地暖地坪三维图
前面我们介绍了2种常见的暗门构造逻辑,了解了暗门的基本工艺构造做法, 下面我们正式进入今天的主题,什么是180°开启的暗门?如何实现?
今天我们要分析的 “180°暗门” 主要指的是 消火栓的石材暗门 。
一般来说,我们做石材暗门的时候一般是采用天地轴的形式,将我们门扇的钢骨架通过天地轴直接固定在墙面的钢架上,然后再进行干挂石材。
但是这里有一个开启角度的问题: 消防规范里注明了消火栓暗门的开启角度不能<160° , 而我们使用天地轴做暗门,它能开启的角度很小,是肯定不能满足≥160°这个要求的。
所以我们想做石材干挂的消火栓暗门,就必须要满足开启角度≥160°这个要求。
想要满足≥160°这个要求,一个轴是肯定不行了,但如果我们再加入一个轴, 用双转轴的方式就能轻松做到180°的开启,这也就是我们说的:双转轴消火栓暗门。
接下来,我将从以下2个方面为你解读有关“双转轴石材暗门”的相关知识:
1
什么是双转轴?为什么能达到180°的暗门旋转
这种新型做法在本质上与传统做法没有区别,都是石材与钢骨架连接,通过轴的转动实现暗门的开启。
不同的是,或者说这种新型做法的创新之处,在于采用了 双转轴系统来控制石材暗门的开启角度 。

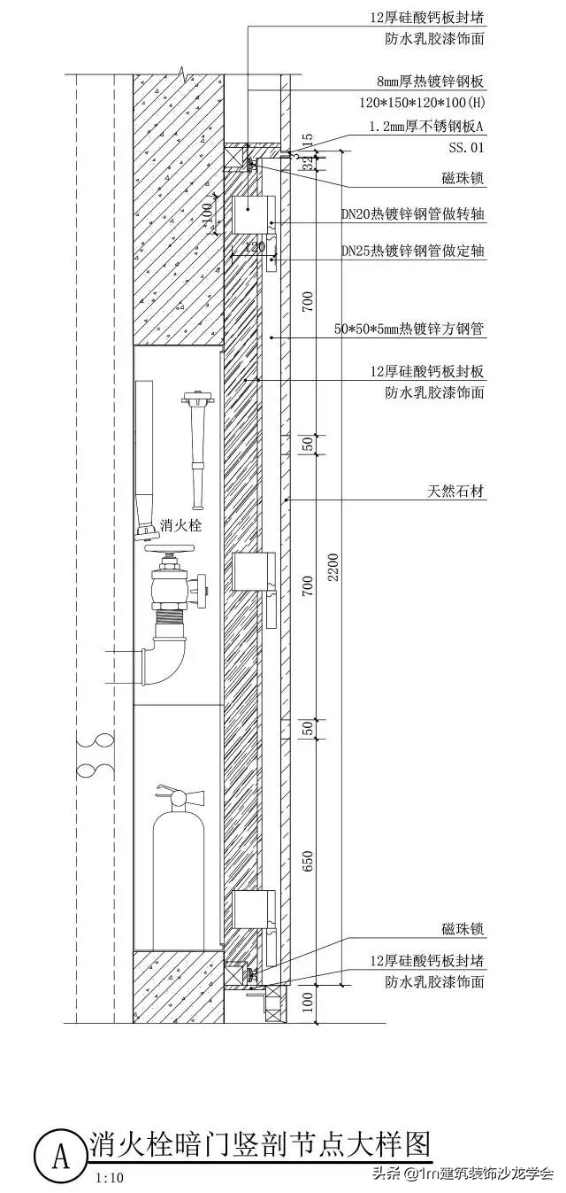
△双转轴消火栓暗门立面图

△双转轴消火栓暗门节点图

△双转轴消火栓暗门大样图
其中一个轴连接固定石材的镀锌钢骨架,一个轴连接固定在墙面的钢骨架,再通过镀锌钢板做成的合页将两个轴连接。

△双转轴消火栓暗门大样图

△双转轴消火栓暗门大样图
在石材暗门开启时, 通过第一个轴 (连接固定石材的钢骨架的轴)的转动, 使暗门开启到90度 ;当门需要开启更大的角度时。
第二个轴(连接固定在墙面的钢骨架)开始转动, 通过合页 ,使石材暗门继续开启, 最大的开启角度可以达到180度 。

△90度状态

△180度状态
从图中可以看出,整个石材暗门的宽度只有800mm,开启角度就可以达到180度,完全满足了消防规范里的消火栓门的开启角度要求。
通过这种新型的双轴系统,我们可以根据设计来进行墙面石材的排摸,不必再因为满足开启角度问题而不得不扩大暗门的宽度。
2
“双转轴石材暗门”施工流程解析。
不论是 “双轴” 还是 “单轴” ,本质上他们的施工流程都是相同的, 我们按照工地施工的标准流程带大家解析一下“双转轴石材暗门”的7个安装步骤:
1)放线: 放线的目的就是更精准的定位,便于后期安装。一般可以分为控制线定位、墙面完成线定位,门轴位置定位。

△控制线定位

△完成面定位

△完成面定位

△门轴定位
2)暗门钢架与门轴焊接安装: 这一步就是先定位门轴,将暗门的钢骨架直接焊接在门轴上,实现门扇与墙体的开合。

△暗门骨架焊接安装

△暗门骨架焊接安装

△暗门骨架焊接安装
3)现场钢架开启试验: 焊接好之后我们要对门的流畅性进行一个测试,是否能够顺畅的开启,是否能达到我们要求的开启角度。

△开启试验
4)隐蔽验收: 在干挂石材之前我们还要进行一个确认和验收,避免出现问题返工出现更大的损失。
5)石材干挂: 这一步就是基本的钢骨架干挂石材的操作。

△石材干挂
6)门碰、拉手安装: 到了这一步我们的安装工序就基本完成了,再把门碰、拉手这些配件进行一个补充,完整整体暗门的功能结构。
7) 箱体周边封堵: 最后一步就是对消火栓进行防火封堵,避免火势通过这些开口和缝隙蔓延。

△防火封堵
三
暗门的4种常见质量通病解析!
前面我们说了暗门的构造逻辑,双轴暗门的工艺与流程,最后,我们再来深挖一下关于暗门的设计知识。
在我们完成暗门设计后,现场施工时,很容易碰到下面 4 种情况,给后期的暗门使用留下隐患。
1
暗门开关不自如:
要么关上很难打开,要么关上后,自动张开,留出缝隙,露出内部构造。

分析:
Q: 暗门关上后,又自动张开一条小缝隙;

A: 这种情况,最大的可能是因为选用的天地轴或者合页质量不过硬,造成在静止状态下的滑动。
因此,在一些高标准项目深化时,都会在暗门的内部做一个推弹门吸,来保证暗门关上后的密闭性。
2
暗门的隐蔽效果不好:人们一眼就能看出这里有暗门。
分析:
A: 除开贴着标示牌以外,隐蔽性不好有2种情况,
① 因为暗门饰面材质的色差和纹理导致的;

针对这种情况,应当在施工之前,要求材料厂家以及施工队伍严格按照施工排版图的编号,对材料进行先预排再施工,从根上杜绝材质色差和不对纹的情况发生。
② 因为暗门的缝隙分割与周边材质不一致而造成,如下图所示:

这种情况最常发生在石材暗门上,如上图所示,周边都为工字缝,而暗门的排版分析与周边分缝不连续。
针对这种情况,最好的解决方式就是在暗门的材料排版时,要多考虑它与周边材料的关系,不要把它单独拎出来排版下单;
并在无法避免分缝时,应提醒方案设计师该位置可能出现分缝冲突,让大家一起平摊风险。
3
暗门周边材料容易出现起翘等质量问题。
分析:
A: 这种情况最常出现在壁纸,布艺等裱糊材料的暗门上,而且很难规避,只能采取手段进行合理优化。
4
钢架暗门背后不进行饰面处理:暗门开启后,可见到背后的钢架。

分析:
A: 很多设计师都在苦恼这个问题,自己画的暗门节点,后面明明有饰面板,但是现场却往往不会那么做。
其实这也好理解,毕竟施工方是站在成本控制的角度来看,在不影响效果的情况下合理 的 节约了成本;
虽然暗门背后不做饰面处理也可以,但是评价一个项目是否有品质,很重要的一个参照就是通过这些看不见的细节部位来体现的。
所以,不管现场最后怎么做,但是作为设计师, 我们还是应当在图纸上表现出尽可能全面的细节,并在交底时提醒施工方按照我们的要求执行;
好了,今天的分享就到这里,最后我们通过一张导图来总结一下今天所学的知识要点:

往期精选

【1m 新知】被 “ 侵蚀 ” 的艺术家具,让你领略大漠之美

【1m 新知】以贝壳为灵感的未来派住宅,为环保发声

【1m 新知】传统木材大突破,用木材建造摩天大楼

【1m 讲堂】有图有真相!电气施工常见问题及处理方法,请收藏!
