12月7日,南阳市区11个住宅地块网上拍卖,其中两个地块成交结果均出现了大幅溢价,溢价率分别为38.09%和35.31%,最高竞争了80轮;另外9个地块均为遗留问题楼盘地块,其中鑫磊地产拿下7块,鑫泓地产拿下1块,天顺地产拿下1块。

35号地块成交结果

35号地块成交信息

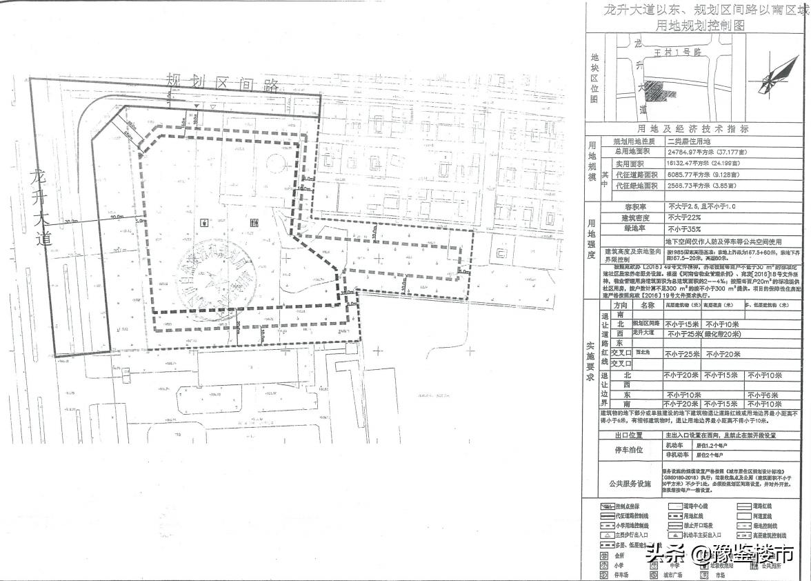
35号地块规划图

35号地块范围图

35号地块在地图上的大致位置
G2021-35号地块:位于龙升大道以东、规划区间路以南,出让面积为16132.47平方米(24.2亩),土地用途为城镇住宅用地,规划容积率不低于不大于2.5,规划建筑密度不大于22%,绿化率不低于35%,土地使用权出让年限为城镇住宅用地70年。拍卖起始价为5120万元。
35号地块以7070万元成交,每亩地价为292.15万元,楼面地价为1753元/㎡,成交溢价率为38.09%,被南阳交通建设投资集团有限公司竞得。
从地图上看,35号地块大致位于龙升大道与信臣西路东北位置,周边有帝都会展大厦、麒麟金融大厦等。

41号地块成交结果

41号地块成交信息

41号地块规划图

41号地块范围图

41号地块在地图上的大致位置
G2021-41号地块:位于纬七路以北、区间路以东,出让面积为29510.31平方米(44.27亩),土地用途为城镇住宅,规划容积率不小于1.0且不大于2.5,规划建筑密度不大于16%,绿化率不小于35%,建筑限高为80米,土地使用权出让年限为城镇住宅70年。拍卖起始价为12603万元。
41号地块经过80轮激烈竞争后,以17053万元成交,每亩地价为385.2万元,楼面地价为2311元/㎡,成交溢价率为35.31%,被南阳宛宏城开实业有限公司竞得。该公司为南阳宛城区国企南阳鑫众投资有限公司的子公司。
从地图上看,41号地块周边有龙都花园、蓝色港湾、南阳师范学院附属小学、南阳师范学院附属高级中学、南阳师范学院附属幼儿园等。

57号58号地块成交结果

57号地块成交信息

57号地块至63号地块规划图

57号地块至63号地块范围图

57号地块至63号地块位置图

57号地块至63号地块在地图上的大致位置
G2021-57号地块:位于京宛大道以北、仲景路两侧,出让面积为7557.98平方米(11.34亩),土地用途为城镇住宅用地,规划容积率不低于1.0不大于1.8,规划建筑密度不大于35%,绿化率不低于30%,土地使用权出让年限为城镇住宅用地70年。拍卖起始价为790万元。
57号地块地上附着物评估价值9521.46万元。
57号地块以起始价成交,每亩地价为69.66万元,楼面地价为581元/平米,被南阳市鑫磊房地产开发有限公司竞得。该公司开发的项目包括鑫磊森林湖、独山大观等。

58号地块成交信息
G2021-58号地块:位于京宛大道以北、仲景路两侧,出让面积为460.38平方米(0.69亩),土地用途为城镇住宅用地,规划容积率不低于1.0不大于2.06,规划建筑密度不大于35%,绿化率不低于30%,土地使用权出让年限为城镇住宅用地70年。拍卖起始价为50万元。
58号地块地上附着物评估价值1824.44万元。
58号地块以起始价成交,每亩地价为72.46万元,楼面地价为527元/㎡,被南阳市鑫磊房地产开发有限公司竞得。

59号地块成交结果

59号地块成交信息
G2021-59号地块:位于京宛大道以北、仲景路两侧,出让面积为3765.13平方米(5.65亩),土地用途为城镇住宅兼容商业用地,规划容积率不低于1.0不大于2.06,规划建筑密度不大于25%,绿化率不低于35%,土地使用权出让年限为城镇住宅用地70年、商业用地40年。拍卖起始价为1390万元。
59号地块以起始价成交,每亩地价为246.02万元,楼面地价为1792元/㎡,被南阳市鑫磊房地产开发有限公司竞得。

60号地块61号地块成交结果

60号地块成交信息
G2021-60号地块:位于京宛大道以北、仲景路两侧,出让面积为699.71平方米(1.05亩),土地用途为城镇住宅兼容商业用地,规划容积率不低于1.0不大于2.06,规划建筑密度不大于25%,绿化率不低于35%,土地使用权出让年限为城镇住宅用地70年、商业用地40年。拍卖起始价为260万元。
60号地块以起始价成交,每亩地价为247.62万元,楼面地价为1804元/㎡,被南阳市鑫磊房地产开发有限公司竞得。

61号地块成交信息
G2021-61号地块:位于京宛大道以北、仲景路两侧,出让面积为806.55平方米(1.21亩),土地用途为城镇住宅兼容商业用地,规划容积率不小于1.0且不大于2.06,规划建筑密度不大于25%,绿化率不小于35%,土地使用权出让年限为城镇住宅用地70年、商业用地40年。拍卖起始价为300万元。
61号地块以起始价成交,每亩地价为247.93万元,楼面地价为1806元/㎡,被南阳市鑫磊房地产开发有限公司竞得。

62号地块成交结果

62号地块成交信息
G2021-62号地块:位于京宛大道以北、仲景路两侧,出让面积为6399.80平方米(9.6亩),土地用途为城镇住宅兼容商业用地,规划容积率不小于1.0且不大于2.06,规划建筑密度不大于25%,绿化率不小于35%,土地使用权出让年限为城镇住宅用地70年、商业用地40年。拍卖起始价为2350万元。
62号地块以起始价成交,每亩地价为244.79万元,楼面地价为1783元/㎡,被南阳市鑫磊房地产开发有限公司竞得。

63号地块成交信息
G2021-63号地块:位于京宛大道以北、仲景路两侧,出让面积为15466.74平方米(23.2亩),土地用途为城镇住宅用地,规划容积率不小于1.0且不大于2.06,规划建筑密度不大于25%,绿化率不小于35%,土地使用权出让年限为城镇住宅用地70年。拍卖起始价为5660万元。
63号地块以起始价成交,每亩地价为243.97万元,楼面地价为1776元/㎡,被南阳市鑫磊房地产开发有限公司竞得。
其中,57号地块至63号地块共7个地块均为卧龙区边庄城中城改造项目、南阳市中心城区房地产市场秩序专项整治项目用地。
从地图上看,57号地块至63号地块所在区域有鑫磊森林湖、美玉庄园、南阳市第五十九小学、小清华实验学校、柳树庄社区等。

64号地块成交结果

64号地块成交信息

64号地块在地图上的大致位置
G2021-64号地块:位于百里奚路以西、麒麟路以北区域,出让面积为3445.0平方米(5.17亩),土地用途为城镇住宅兼容商业,规划容积率不小于3.3且不大于4.8,规划建筑密度不大于30%,绿化率不小于30%,土地使用权出让年限为城镇住宅70年、商业40年。拍卖起始价为719万元。
64号地块为南阳市中心城区房地产市场秩序专项整治项目用地,地上附着物所有权评估价值为1311.46万元。
64号地块以起始价成交,每亩地价为139.07万元,楼面地价为435元/㎡,被南阳市鑫泓房地产开发有限公司竞得。该公司开发的项目有鑫泓三鑫园等。
从地图上看,64号地块所在区域有中建麒麟苑、桂苑小区、鑫泓·三鑫园、外运小区、仲景苑等。

66号地块成交结果

66号地块成交信息

66号地块范围图

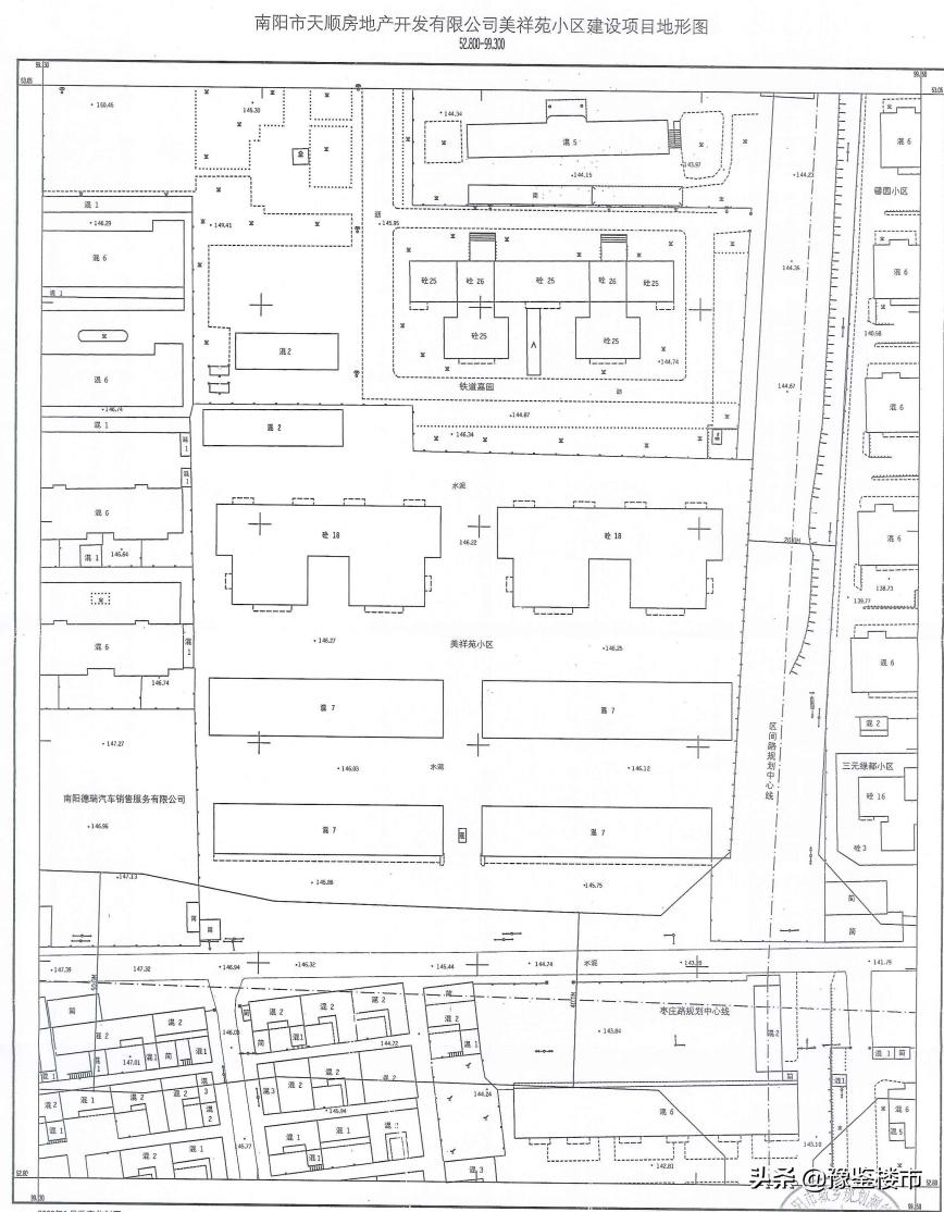
66号地块地形图

66号地块在地图上的大致位置
G2021-66号地块:位于北京路以东、枣庄路以北,出让面积为13034.8平方米(19.55亩),土地用途为城镇住宅兼容商业用地,商业建筑面积不超过地上总建筑面积的4.2%,规划容积率不小于1.0且不大于4.2,规划建筑密度不大于35%,绿化率不大于35%,建筑限高不大于80米,土地使用权出让年限为城镇住宅用地70年、商业用地40年。拍卖起始价为1750万元。
66号地块为南阳市中心城区确定的问题楼盘“美祥苑”项目地块,地上附着物评估价值为22385.07万元。
66号地块以起始价成交,每亩地价为89.51万元,楼面地价为320元/㎡,被南阳市天顺房地产开发有限公司竞得。该公司开发的项目有翰林华府、鸿源小区等。
从地图上看,66号地块即美祥苑地块周边有龙云小区、三元丽都小区、馨园小区、铁道嘉园、果林小区等。