家居空间灵动美
在简约轻奢风的户型空间中,空间布局设计不仅为居住适应性创造条件,还为每个空间创造更多的使用灵活性。

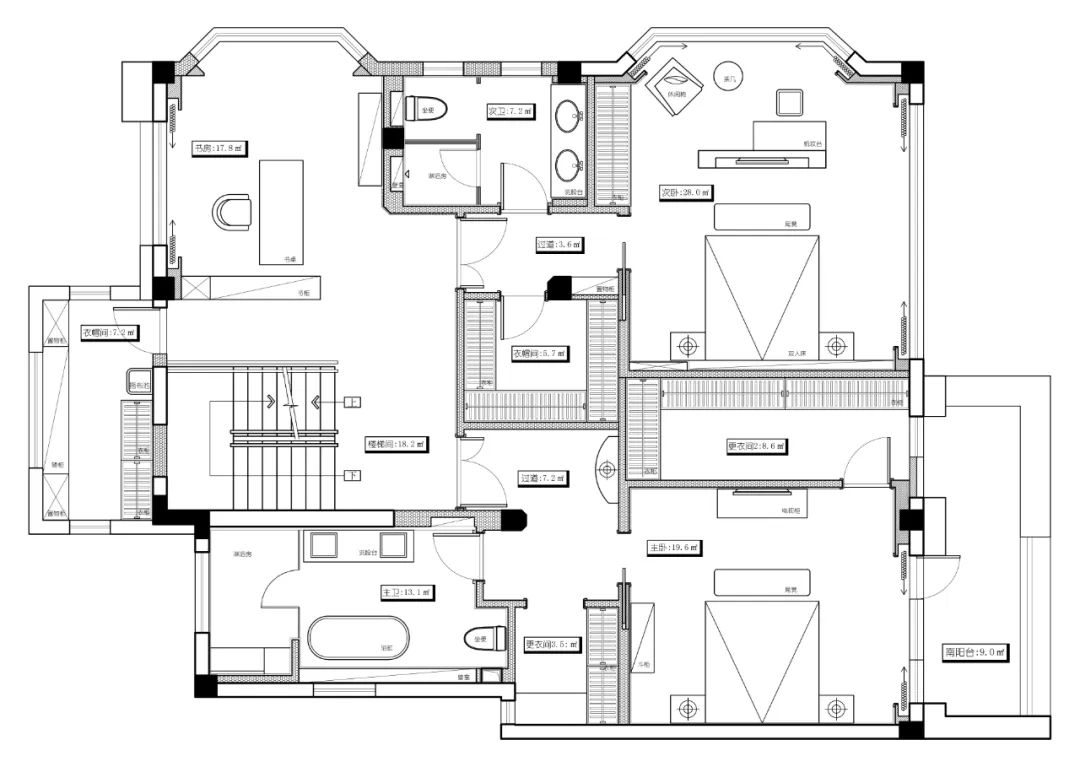
空间设计平面图
空间展示: 本期案例为宁波长岛花园别墅空间设计
客厅: 奶油色系的电视柜搭配橙色皮沙发作为点缀,整个客厅空间温柔又高级,让整个空间视觉都变得灵动起来。

客厅空间

客厅空间效果图

餐厅: 女主人喜欢做饭和收纳,设计师在餐厅旁增加了酒柜和吧台,更好地满足女主人的需求。

客餐厨一体化
茶室: 在空间设计上,设计师采用不同的材质、颜色以及灯光,让整个茶室空间在动静、虚实中来回切换,创造出更加儒雅的空间,茶余饭后,邀朋友过来享受这惬意的时光,从而满足女主人生活的需求。

茶室空间

ADEN 别墅空间, 让每个空间都能灵活切换。灵动的空间布局,让空间看起来更加宽敞,这种突破边界的设计手法,恰好衍生轻奢简约的生活态度。