这套仅有37平米的小房子,在有限的空间下,把日常生活所需的空间功能都挤了进去,装扮出了一个舒适轻松的小窝。
玄关

▲小房子没有独立的玄关,进门后就是整个房子各空间的交汇处,让动线交集,节省动线空间。

▲进门后左侧是厨房区域,小房子面积不大,也装着一个足够做顿美食的空间。冰箱对面就是鞋柜,形成一个相对独立的小玄关。
厨房



▲紧凑实用的厨房,在操作台后方装一块悬空的吧台搁板,在闲暇之余,可以与爱人一起享受一顿丰盛的晚餐。
卫生间

▲卫生间的洗手盆设在卫生间门外,洗手盆上方挂着一个圆形的镜子,在白色文化砖与木质感的搭配下,呈现出一个自然文艺的气息。

▲在鱼肚白瓷砖张贴的地面与墙面下,整个卫生间都显得格外的时尚优雅。


▲为让空间的光线共享,在洗手盆与客厅之间的墙面上,留空出一个小洞共享光线。
活动区

▲玄关进门后的右侧,则是整个小房子的活动区域,这个区域挤了客厅、书桌等功能进去。

▲先是这面客厅与卧室之间的墙,被装成书架,存放上主人爱看的书籍。



▲在紧凑的布局下,吧小沙发与书桌都布置进来,实用而又舒服自然。

▲沙发后的墙上装上一层隔板架,摆上装饰画后,显得格外清新精致。

书桌


▲阳光最好的地方,留给了书房,这样有着自然的采光,在这里看书阅读,最适合不过了。



▲精致的装饰品,也让空间显得多了几分文艺的气息。
卧室


▲卧室在轻松现代的空间基础下,把一侧的墙面装成衣柜,提供了强大的衣服收纳空间。

▲而与客厅之间的这面墙,都是半空的书架,让空间透而不空的感觉,很是大方。

▲壁挂式的床头柜,还有一盏床头灯,小巧实用。



▲情调的小飘窗,在午后也是晒太阳的好地方。
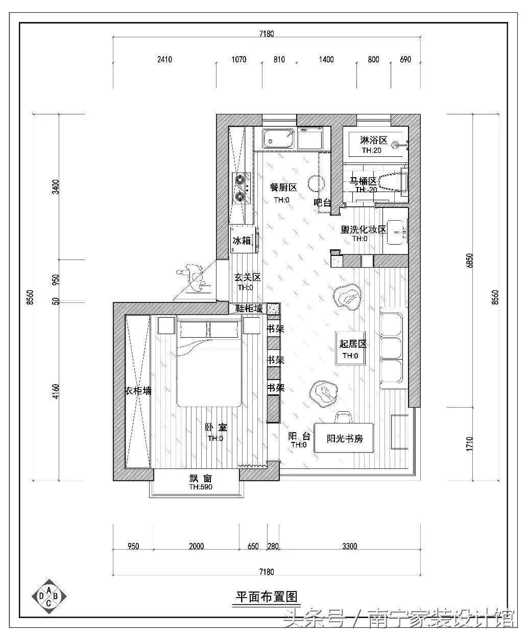
平面布置图▽
