
和苏州楼市一样,苏州目前的商业版图很大程度上也是遍地开花。
对于关心楼市的购房者来说, 商业的繁荣与否是衡量板块前景的重要因素!
目前,苏州商业集聚力度最大的板块只有园区湖西和新区狮山核心,这两个地方的发展情况也有目共睹。
除此之外,能够称得上商业组团的,只有北新区的四大商业了,而最近,北新区的第五大商业也露出了庐山真面目!

在园区,以 环金鸡湖商业圈 为核心,苏州中心更是可以算是苏州商业的地标性建筑;
在新区狮山,则是以 龙湖天街、泉屋、美罗、金鹰 组成狮山商业群;
同样在新区的北新区, 永旺、宜家、迪卡侬、开市客这四大商业巨头扎推在一起,这在苏州整个商业版图上,是有且仅有的 ;还有 约30万方的陆家嘴巨无霸商业 正如新星一般冉冉升起。
园区和新区狮山扎推的商业圈已经很成熟,集聚高人气。而北新区板块新商业、新商圈的崛起,俨然已是苏州第三大商业群。

四大商业巨头+巨无霸陆家嘴商业,五大王炸级商业落地浒墅关,不仅体现了板块强大的吸引力和集聚力,更足以扛起板块商业大旗,制霸苏州!

四大商业巨头
北新区商业版图初现
北新区目前的巨头商业有永旺和宜家,早在2016年1月, 永旺梦乐城 苏州新区店开业,填补了浒墅关大型商业空白,开业至今人气依然很高。

随后同年6月, 宜家苏州商场 正式开业,就在永旺梦乐城新区店旁边。 这也是苏州唯一的宜家!

永旺和宜家的开业为北新区开启了楼市的热潮,2018年至今,北新区陆陆续续有二十多个项目面世,开启了苏州楼市的 “北新区时代”!
除了永旺和宜家之外,迪卡侬和开市客两大商业也即将开业。
开市客于去年7月动工从土拍落槌,到正式动工,仅用了 108天 。项目建筑面积 约52000平方米 ,其中,1F卖场经营面积约16000平方米,与上海Costco商场面积差不多,2F、3F及3F楼顶为停车场。
前不久, 苏州高新区发布宣布了开市客的最新进展,预计 9月竣工验收,年底就将开业运营 。

之前,大陆首家开市客落户上海闵行时,就受到了超多人的追捧,不少货品瞬间卖完, 结账排队超过两小时,人气爆棚!

而 迪卡侬 总用地面积19808.3平方米, 总建筑面积22799.49平方米。
建成后将作为苏州迪卡侬旗舰店,以体育公园体验店的形式为苏州市民提供体育文化、休闲消费等多方位的生活服务。

现在, 北新区的四大商业基本已经成型,最快到明年,北新区的商业能级还将再上一个台阶!


约30万方!陆家嘴巨无霸商业
陆家嘴澜山坊位于浒墅关桑园路与云山街交汇处, 总建面约30万方,分两个商业地块打造。

9号商业地块 : 约12万方的4F商业综合体 ,预计11月底开业, 目前招商已达90%,内部装修已经完毕,已有商家进场装修。
8号商业地块 :商业办公楼+风情商业街,预计2022年开业。

大独家!11月底即将开业的陆家嘴澜山坊(9号商业综合体)招商详细曝光,每个楼层招商明细房观全部都拿到。
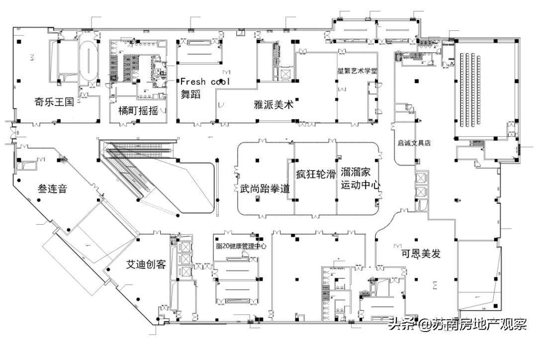
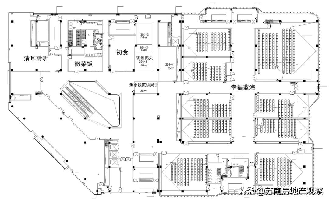
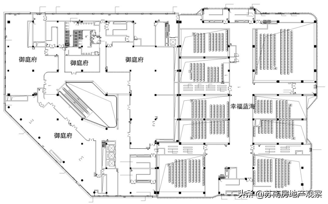
话不多说, 我们先来看陆家嘴澜山坊(9号商业综合体)具体的楼层业态规划:




紧接着,再来看每一层的具体商业品牌到底有哪些?
第一层商业布局: 以精品超市、休闲餐厅、时尚零售为主

超市: 捷特姆
餐饮: 必胜客、星巴克、COCO、肯德基、格瑞思
数码: 华为
零食: 来伊份
药店: 雷允上、天辰易盛
儿童: 婴乐福
美妆: 皙阁
第二层商业布局: 以儿童娱乐,早教培训中心为主

早教培训: 武尚跆拳道、疯狂轮滑、溜溜家运动中心、艾迪创客、奇乐王国、叁连音、雅派美术、橘町摇摇、Fresh cool舞蹈、星繁艺术学堂
理发: 可恩美发
其它: 启辰文具店、脂20健康管理中心
第三层商业布局: 以IMAX影院、餐饮为主

影院: 幸福蓝海
餐饮: 徽菜饭、初食、衢州鸭头、鱼小妹煎饼果子
其它: 清耳聆听
第四层商业布局: 以IMAX影院、特色餐饮为主

影院: 幸福蓝海
餐饮: 御庭府
最新消息, 陆家嘴澜山坊(9号商业综合体)预计11月底开业,目前已招商90%,商业外立面+内部装修已经完成,部分商家也已进场装修。


该商业所在的北新区板块周边5公里有人口 约20万人 ,3公里在建及在售楼盘多达十几个,后期随着楼盘陆续交付,周边将聚集 50万人的客流 。
其次, 陆家嘴澜山坊(8号商业地块)规划为16F办公写字楼+风情商业街,有点类似于龙湖的时代天街。
智慧办公

风情商业街

据了解,风情商业街打造的是 精品购物中心、特色步行街区、生态运动休闲 业态于一体,当前多个建筑已成型。
按目前的工程进度,约30万方的陆家嘴澜山坊在2022年建成开业不成问题, 这个巨无霸商业一旦全部开业,势必会带动北新区经济消费,板块价值再攀高峰!

北新区还有巨大红利!
北新区商业扎推,当前的商业群不仅可以满足本地客流,更能吸引全苏州客流。

我们回溯一下北新区的发展历程。 它的位置在苏州城北,远离苏州主城,在老苏州人眼里,这里是刚需大本营。
2018年的时候,凭借着众多大牌开发商入驻,吸纳了一大批买房人。北新区十五天骄一声惊雷,震惊整个苏州楼市,单价1字头、起步门槛低,所以最早进驻这里的多是刚需客群。
随后, 经过这几年的厚积薄发,北新区城市面貌已全然换新,变得越来越好,板块内配套的完善更是给了浒墅关价值腾飞的信心。
地铁3号线的通车、四大商业巨大集聚于此、文贤初中、浒墅关古镇也都陆续建起来了,还有地铁6号线(在建),再无刚需大本营的气质,板块房价一路水涨船高,现在房价已经站在2.6W!

但另一方面, 现在板块内楼盘扎推,几乎各个开发商都重仓于此,俨然就是一个修罗场,竞争很残酷。
尤其,目前部分老盘遭到销售瓶颈,一直卖得不温不火,主要原因是板块内已经没有足够的购买力了,导致当前板块个别楼盘卖了好几年迟迟没有清盘,所售房源无人问津的尴尬境地。而纯新盘的购买力,则主要来自外区域客群。
可以肯定的是, 北新区这个板块还有溢价空间!
这个大板块还有巨大红利可以吃,还有资源配套正在加速兑现的路上,比如中软国际、腾讯数字产业基地、透明铁电单晶研究所......不断引进产业,聚集产业转型。这里还将迎来四大王牌学校,板块教育全线崛起。

现在的北新区目标只有一个,就是加速兑现城建利好,提升产业能级和经济消费、以及引入顶尖人才等。
在房观看来, 北新区变了,变得越来越好。正如五大王炸级的商业,一旦相继开业,必然会拉动板块楼市巨大价值和房价溢价空间。
这里,未来无限可能!