多少人一听到施工图就会觉得这是一件枯燥且繁琐的工作,其实是你不会画,你如果学会怎么正确规范的绘图,施工图那不是分分钟的事吗?

对于设计师来说,施工图是必修课,很多人刚开始都是在工作实践中 七拼八凑的绘制施工图,但是对于刚入行的设计小白们来说,对于施工图的认知是非常陌生的,那么接下来我将带领大家了解更加标准规范的施工图画法与应用。
一、施工图中的三视关系
1、 施工图中的三视关系
三视、多视、剖视和立面图的视角
三视:正视图、左视图、右视图
多视:三视图、顶视图、背视图和底视图
剖视:体现内部结构
立面图的视角:与物体垂直的正投影,不表现近大远小的透视关系。
只用一个方向的投影来表达形体形状是不行的。一般必须将形体向几个方向投影,才能完整清晰地表达出形体的形状和结构。
施工图最重要的就是 图纸表达要清晰,绘图时每个视图的尺寸要严格参照平面尺寸。

只绘视图没有标注,是不能完整清晰地表达和确定形体的形状和结构的。
2、 施工图的标注原则
a、 标注样式
无彩色系是指白色、黑色和由白色黑色调合形成的。
b、 尺寸标注
尺寸标注引线不能与物体线重合,尺寸标注的数字不能重叠 。
c 、 材质标注
材料标注、天花标注、软装标注。
d 、标注原则
不能遗漏、不能重复、排序合理、就近成组选择就近位置进行索引。
d、 标注索引
应按照顺时针有逻辑的摆放。

施工图中 标注是至关重要的环节 ,这将直接影响你整个图纸,很多人对于施工图标注有个 误区 ,认为标注得越多就是越详细。
其实,并不是你的工作量越大标注越多就越详细, 重复性标注没有加分项 ,只会是减分, 标得越多,错得越多 。
二、施工图的应用
1、 比例和排版
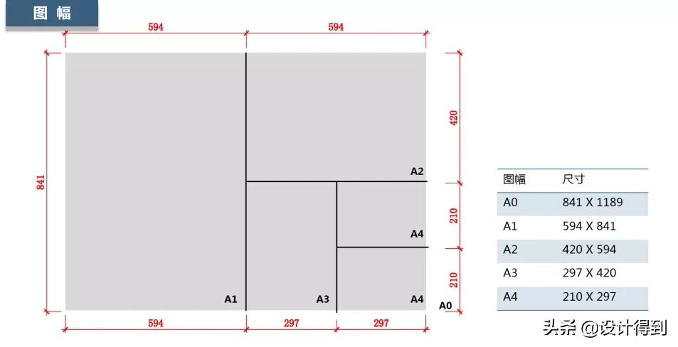
1.1 图幅
标准图框、非标图框
非标图框即加长图框,加以四分之一的尺寸,一般加长度不加宽度,打印成卷式。

1.2 比例
常用比例
在图幅确定的情况下,图纸比例的设定以能够清晰合理的表达图纸内容为基本原则,同时遵循通用惯例。不允许为了适配图幅而去任意放大缩小比例。

进行合理的图面安排要主次分明、分列平均紧凑、表达清晰。
1.3 排版应用
三横四纵
图面排版要为下一步平面绘图、尺寸标注等预留足够位置。

2、 布局和输出
2.1 布局绘图
由于CAD最初版本没有布局功能,随着制图的发展逐渐形成布局概念,学会运用布局为我们绘制施工图提供了非常大的便利条件,那么布局应用的优势如下:
a、 可以在同一个底图上通过图层管理来绘制所有的平面系统图纸,使得修改与核对图纸更加方便。
b、 合理的视口应用对图纸进行最优化的排版,同时可以更方便的在同一张图纸上设定不同的比例 。
c、 在布局空间中进行标注可以更方便的统一标注的大小 。
d、 按比例输出图纸更加快速,便捷 。

2.2 图纸的输出
控制CAD文件输出的核心,直接影响图纸输出的效果,主要以粗细来表达图纸的层次和节奏。
线型及宽度的规定则由不同线由不同颜色对应不同的粗细,一般分为粗、中、细三种。
其次,我们在打印蓝图的时候打印比例必须选择1:1,选择布满图纸会导致图纸比例不准,设置图框图框外边缘需小于标准尺寸。

施工图的主要目的是保证施工方能正确按时的依照图纸进行施工,所以绘图一定要有一定的规范约束,才能尽可能的在施工中减少不必要的麻烦,节省时间。

当你真正了解施工图后,你会发现它并不是你想象的那么难。
施工图遇到问题的时候不要想着去躲,我们真正应该做的是去直面解决研究了解它,只有这样,这些问题以及知识才能真正成为我们的东西且成为我们的财富。