cad怎么批量标注尺寸命令?当你需要在多个对象上标注尺寸时,使用批量标注命令是非常便捷的。它可以帮助你快速标注整个图纸中的所有尺寸,而且还可以自动调整标注的位置和方向,让你的工作更加高效和精准。想要给cad批量标注尺寸命令,可以看看下面介绍的这种标注方法。

我们可以使用【迅捷CAD编辑器】进行操作。要使用批量标注命令,首先需要导入需要标注的对象。然后进入软件当中的【编辑器】功能页面中去,找到【单行文本】选项,输入需要标注的内容进行设置就可以了。

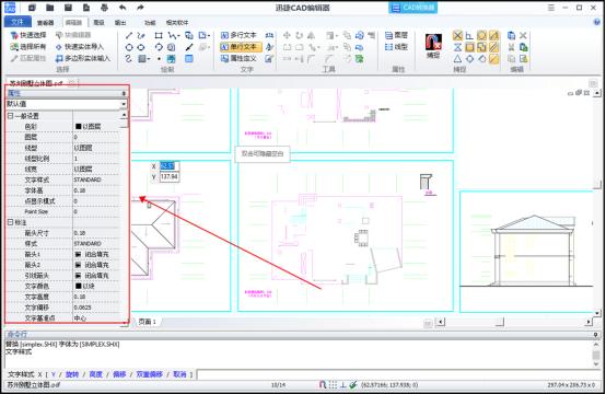
在编辑器命令的界面中,你可以设置标注的类型、样式和位置等参数。还可以对cad文件进行编辑,设置图纸的各种细节。比如说可以添加圆弧、矩形等等。还可以设置图纸的图层、设置线性等等。

另外,我们在进行标注的时候,还可以通过点击图纸左侧的属性栏,可以查看我们刚刚设置过的一些参数数值。方便我们查找设置过的内容,提高工作效率。

cad怎么批量标注尺寸命令?总的来说,批量标注尺寸命令是CAD中非常实用的工具,可以帮助你快速准确地标注多个尺寸,提高工作效率和准确性。如果你经常需要标注大型和复杂的图纸,可以来学习这种方法,可以为工作带去很多便利。今天的分享就到这里结束了,我们下次见。