车型:奔驰GLC
年款:2018
发动机型号:274 920
底盘号:253 146
故障描述:车辆有时候仪表油量显示不准确,行驶中有时候显示油量过低,所以车主比较烦恼,加满油没跑几十公里就显示油量过低,严重影响驾驶安全感,要求必须解决此故障。

奔驰GLC
故障诊断与排除:接车后,检查仪表油表显示在1/2处,接上诊断电脑读取相关控制单元,发现燃油泵控制单元存储有以下故障代码:
P046200:右侧油位传感器对地短路
P046300:右侧油位传感器对正极短路
P206800:左侧燃油液位传感器存在故障
P206600:左侧液位传感器对正极短路
读取燃油系统控制单元中的实际值,诊断电脑实际值与仪表的显示一样,说明当前实际值显示正常。
根据故障代码怀疑有以下可能:
1、燃油泵油位传感器线路故障
2、燃油泵油位传感器插头故障
3、燃油泵油位传感器自身故障
4、燃油泵控制单元故障
5、仪表软件或硬件故障

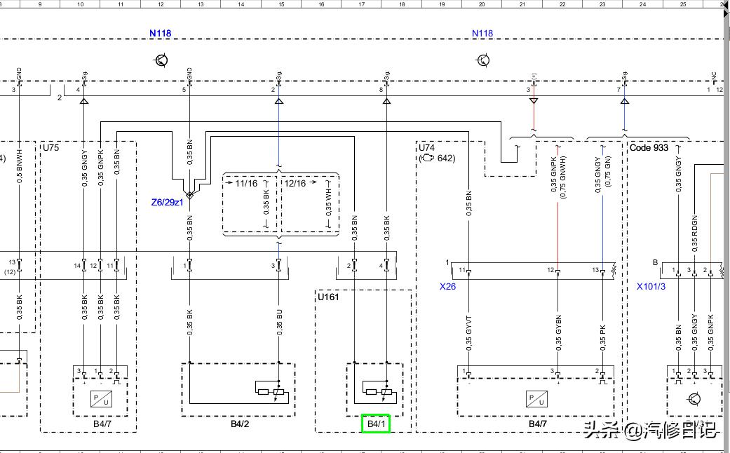
燃油液位传感器电路图
拆装燃油泵,检查右侧油位传感器安装正常,缓慢摆动油位传感器,仪表显示正常,也没有卡滞现象,插头也连接正常,此时故障现象并未显现,按照以前的维修思路,既然故障现象时有时无,怀疑针脚松动引起于是检查针脚发现,有个针脚有晃动现象,说明针脚有松动了,针脚松动反正接触不良,所以有时候导致油表显示不准,这样一来就想通了。

燃油泵 图中发动机为177
为了避免以后故障再次发生,更换全新改良的燃油泵总成,燃油泵总成包括了右侧油位传感器和针脚,并把左侧针脚一并更换改良后的针脚,避免再次发生类似的故障。
更换燃油泵总成及针脚后,试车十几公里未见故障再次发生,确认故障已排除!