以松木打造空间亲切感和舒适感
项目标签
设计公司: Bruno Lucas Dias Architecture
位置: 葡萄牙
类型: 建筑
材料: 饰面板 木材 松木 金属
标签: 安西昂 室内设计 改造
分类: 休闲娱乐 酒吧 餐厅

项目概览
该项目位于安西昂(Ansião)村的中心地带,其重点是对作为Tarouca餐酒吧一部分的旧游戏室进行翻新和改造。

带桌椅的用餐区
从本质上讲,该项目旨在赋予空间一种全新的活力,使其营造一种温馨的氛围,不仅可以供人们前来就餐,而且可以作为休闲社交的场所。

带沙发和火炉的中央区域
基于此,我们考虑到可以包括一个带桌椅的空间,以及一个带沙发和火炉的中央区域。

软座区
最初的挑战之一是在用餐区和该商户的后厨区之间创造一个更隐蔽的过渡区域。因此,我们选用木板作为这两个空间之间的物理屏障,从而加强用餐区的隐私性。

松木作为主要元素

松木作为主要元素

木板作为两个空间之间的物理屏障

木板作为两个空间之间的物理屏障

木板隔绝的过渡区域
木材的使用是整个项目的关键元素,它为房间带来了亲切感和舒适感。

木板隔绝的过渡区域
除墙面和地板覆盖物外,这个项目的所有元素——室内家具、酒架和板材——都是由我们工作室设计并由松木制成的,与胶合板材质的假天花板以及悬挂的照明元素形成对比。

木板细部

木板细部

透过木板看中央区域
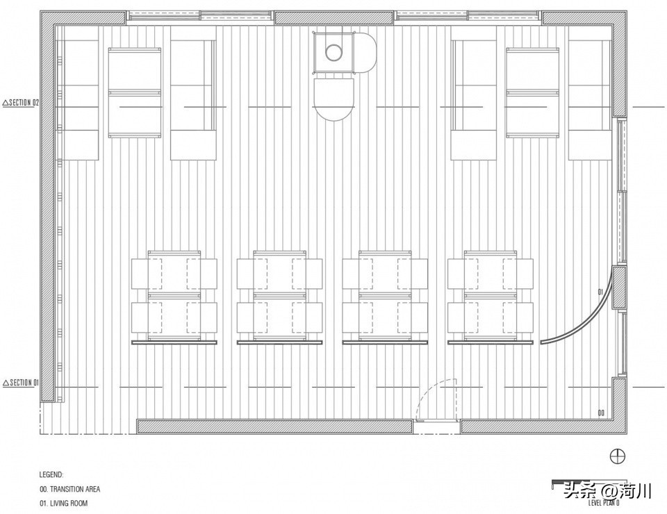
▼平面图,plan © Bruno Dias Arquitectura

▼剖面01,section 01 © Bruno Dias Arquitectura

▼剖面02,section 02 © Bruno Dias Arquitectura

▼家具立面和轴测,furniture elevation and axon © Bruno Dias Arquitectura

Project: 2022Construction: 2022Client: Tarouca Gastro BarLocation: Avenida Dr. Vítor Faveiro, AnsiãoRehabilitated Area: 39,22 m²Architecure: Bruno Dias ArquitecturaProject Team: Bruno Lucas Dias, Tânia Matias, Cristiana HenriquesCarpentry: LimocosElectricity: Celso MarquesFloors: Paumarc