概要
(1)公司拥有津蓟(挂)2020-001号和津蓟(挂)2020-002号宗地两宗经营性土地,分别位于蓟州新城板块蓟州人民公园东侧、东西。(2)津蓟(挂)2020-001号,土地用途为城镇住宅、商服,国有建设用地使用权出让年限为城镇住宅70年、商服40年。该地块出让土地面积33133.5平方米,容积率为1.0-1.6,绿地率≥40%,建筑密度≤28%。(3)津蓟(挂)2020-002号,土地用途为城镇住宅、教育、商服,国有建设用地使用权出让年限为城镇住宅70年、教育50年、商服40年。该地块出让土地面积33332.4平方米,容积率为1.0-1.6,绿地率≥40%,建筑密度≤28%。
【资格】无
交易条件
转让底价32,443.684938万元,一次性支付,保证金100.00万元。
公司简介
企业名称:天津和著房地产开发有限公司
注册地(住所):天津市(天津市蓟州区中昌南大道2号427室)
法定代表人:张晨光
成立日期:2019-04-10
注册资本:46332.7597万元(人民币)
经济类型:国有独资公司(企业)/国有全资企业
企业类型:有限责任公司
所属行业:房地产业
统一社会信用代码或组织机构代码:91120225MA06L1M34F
经营规模:小型
经营范围:房地产开发;商品房销售、租赁;房地产信息咨询;工程咨询;工程技术服务;企业形象策划服务;房屋建筑工程、园林绿化工程、装饰装修工程施工;建筑材料(不含砂石料)、机械设备批发兼零售。(依法须经批准的项目,经相关部门批准后方可开展经营活动)
原股东是否放弃优先受让权:是
企业管理层是否参与受让:否
是否涉及职工安置:否
职工人数:0
导致标的企业的实际控制权发生转移:是
是否含有国有划拨土地:否
土地开发项目
1、购地信息
公司拥有津蓟(挂)2020-001号和津蓟(挂)2020-002号宗地两宗经营性土地,分别位于蓟州新城板块蓟州人民公园东侧、东西。

这两宗地块为2021年天津首轮集中供地中成交,当时竞得人均为彼时仍名为“天津正远房地产开发有限公司”的和著地产。其中,001号地为总价2.238亿元、楼板价4222元/㎡成交;002号地为总价2.251亿元、楼板价4221元/㎡成交。
津蓟(挂)2020-001号,位于蓟州区滨湖街南侧、湖东大道东侧,其四至范围为:东至清水路,南至秀水街,西至湖东大道,北至滨湖街。该地块土地用途为城镇住宅、商服,国有建设用地使用权出让年限为城镇住宅70年、商服40年。该地块出让土地面积33133.5平方米,容积率为1.0-1.6,绿地率≥40%,建筑密度≤28%。地块起始总价为2.238亿元,折合楼面价为4222元/㎡。竞买人须交付竞买保证金人民币5600万元。该地块挂牌出让竞买报价设置最高限价为3.25亿元。当竞买报价达到最高限价时,不再接受更高报价,转为竞报自持租赁住房建筑面积阶段,自持租赁住房建筑面积上限为47900平方米。
津蓟(挂)2020-002号,蓟州区滨湖街南侧、清水路东侧,其四至范围为:东至八方路,南至秀水街,西至清水街,北至滨湖街。该地块土地用途为城镇住宅、教育、商服,国有建设用地使用权出让年限为城镇住宅70年、教育50年、商服40年。该地块出让土地面积33332.4平方米,容积率为1.0-1.6,绿地率≥40%,建筑密度≤28%。地块起始总价为2.251亿元,折合楼面价为4221元/㎡。同时配建9班幼儿园,独立建设。竞买人须交付竞买保证金人民币5630万元。该地块挂牌出让竞买报价设置最高限价为3.27亿元。当竞买报价达到最高限价时,不再接受更高报价,转为竞报自持租赁住房建筑面积阶段,自持租赁住房建筑面积上限为48800平方米。
2、项目规划
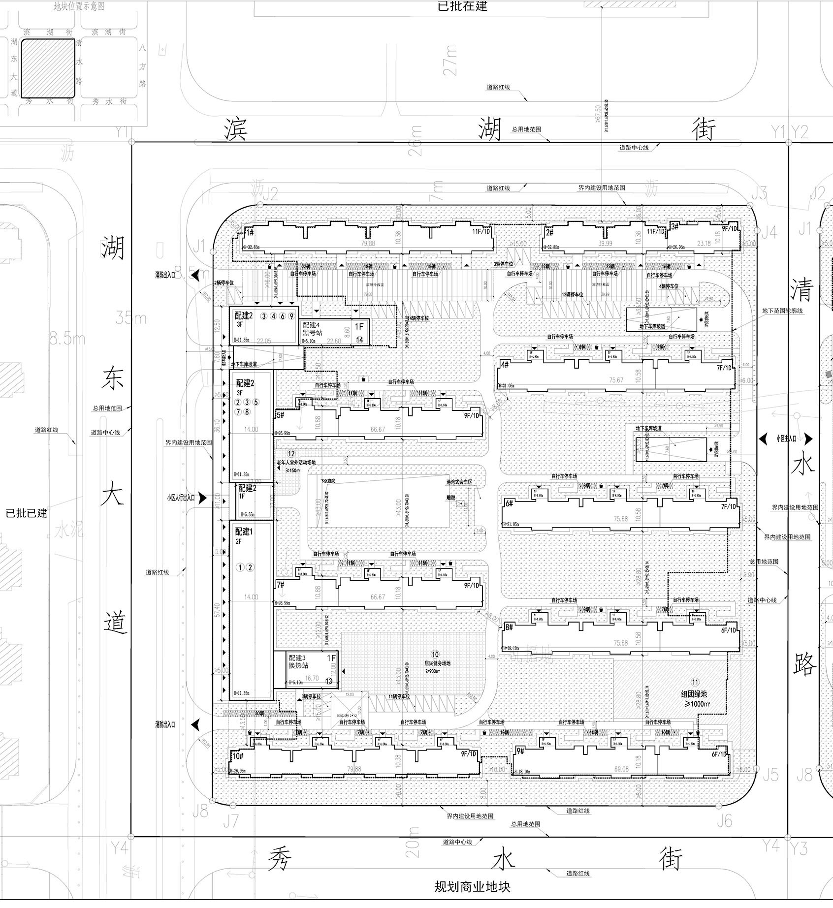
2022年7月27日,天津市规划和自然资源局蓟州分局先后对上述两宗地块的建设工程设计方案进行批前公示。根据公示内容,津蓟(挂)2020- 001号项目名为和锦花苑 ;津蓟(挂)2020- 002号宗地项目名为央玺花苑 。项目设计以小高层及洋房为主,6-11层到顶,容积率1.6,共计1012户,楼间距宽绰,预计为低密花园住区。

依公示显示,西侧 和锦花苑 规划设计10栋住宅,包含2栋11层到顶,4栋9层到顶,2栋7层到顶,2栋6层到顶。整体北高南低布局,西高东低排布。
(1)和锦花苑规划:
①总平面图

②技术经济指标表

③配套公建一览表

(2)央玺花苑设计:
①总平面图

②技术经济指标表

③配套公建一览表
