#科技之巅#
【摘要】温州瓯江北口大桥为主跨2×800m的三塔双层桥面钢桁梁悬索桥,受航空限高及通航净空影响,两主跨跨中约300m范围存在缆梁相交区,主缆高度低于上层桥面。
由于缆梁相交区梁段的梁面高于主缆,需将其提升到超过主缆所在高度后进行吊索连接,而常规的缆载吊机、浮吊及缆索吊机均难以满足施工需要,因此研发了分体式吊机。
该吊机主要由4套临时索夹、4套液压提升油缸组件、2根托梁组成,采用免横梁结构设计,适应性强。
针对分体式吊机直接提升钢桁梁时存在托梁安装难度大的问题,提出了“缆载吊机+分体式吊机”接力提升技术,即利用缆载吊机第1次提升钢桁梁后,通过接长吊索将钢桁梁临时悬挂于主缆;安装分体式吊机,由分体式吊机第2次将钢桁梁提升到位。该技术保证了缆梁相交区钢桁梁的顺利吊装,缆梁相交区梁段吊装平均工效可达1片/d。
【关键词】悬索桥;钢桁梁;缆梁相交区;缆载吊机;分体式吊机;接力提升方案;临时索夹;施工技术
1 概述
温州瓯江北口大桥主桥为主跨2×800m的三塔双层桥面钢桁梁悬索桥,上层通行6车道甬台温复线高速公路,下层通行6车道南金一级公路。大桥主缆跨度布置为(230+800+800+348)m,加劲梁跨度布置为(215+800+800+275)m,主桥立面布置见图1。

图1 温州瓯江北口大桥主桥立面布置
塔顶主缆理论交点高程+151.0m,主缆最低点高程+71.0m,主缆垂度80m,垂跨比1/10。主缆横向布置2根,横向间距41.8m,每根主缆由169根通长索股组成,每根索股由127丝φ5.4mm的镀锌高强钢丝组成,钢丝抗拉极限强度1860MPa。北边跨主缆另设6根背索,总共175根索股。吊索采用铰接式平行钢丝吊索,纵向标准间距10m;鞍座均采用铸焊组合结构,其中中塔索鞍首次采用梳齿板深槽索鞍结构。
3个桥塔均采用钢筋混凝土结构,中塔采用沉井基础,南、北边塔均采用钻孔灌注桩基础。两岸均采用重力式锚碇,南锚碇采用沉井基础,北锚碇采用明挖扩大基础。
大桥加劲梁采用双层钢桁梁结构,桁架高12.5m,横向采用2片主桁,桁间距3.2m,标准节间长10m。2个节间加工制造为1个整体吊装节段,标准吊装节段长20m,重约720t,最大吊装节段重约813t,全桥共110个吊装节段。
由于受附近机场飞行净空限制,桥塔不能太高,同时桥下净空受船舶通航高度制约,跨中位置钢桁梁高程不能太低,导致两主跨跨中各约300m范围的共28个吊装节段存在缆梁相交区,即钢桁梁顶面高于主缆。主缆跨中最低位置吊索长约3.5m,跨中位置上层桥面距水面约60m。跨中缆梁相交区加劲梁横断面见图2。

图2 跨中缆梁相交区加劲梁横断面
该桥主跨加劲梁采用整节段吊装,由跨中向桥塔方向进行。两主跨跨中约300m范围(缆梁相交区)外的梁段均采用缆载吊机吊装;而缆梁相交区梁段的梁面高于主缆,需将其提升到超过主缆所在高度后进行吊索连接。缆载吊机设有横梁,由于位置干涉,缆梁相交区梁段无法采用常规的缆载吊机直接吊装到位。为解决缆梁相交区梁段吊装问题,结合瓯江北口大桥结构及环境特点,对目前常用的浮吊、缆索吊机吊装进行分析可知:
①采用浮吊吊装时,由于吊高超80m,且吊重近800t,需采用2000t级以上的浮吊。同时,为满足主缆索股在中塔索鞍位置的滑移要求,需2台大型浮吊在两主跨同时吊装,吊装时需全部封闭南、北两侧航道,对通航影响非常大。
②采用缆索吊机吊装时,缆索吊机跨径800m、额定吊重800t,国内尚未有如此高规格的缆索吊机,超大吨位缆索吊机操作安全风险高,且缆索吊机难以适用于边跨梁段吊装;缆索吊机成本高,经济性较差。因此,研发了分体式吊机,并提出了“缆载吊机+分体式吊机”接力提升方案。
2 分体式吊机设计
为将钢桁梁提升至主缆上方,分体式吊机采用免横梁设计,悬挂在主缆上。单套分体式吊机主要由4套临时索夹、4套液压提升油缸组件、2根托梁组成(图3),其动力及控制系统包括液压泵站、传感检测、远程监视以及计算机控制等部件。

图3 分体式吊机构造与布置
其中液压提升油缸组件主要包含350t液压提升油缸、油缸支架、钢绞线及钢绞线收放装置(采用液压马达提供动力,具备主动容绳功能,可有效避免窝缸,提高分体式吊机可靠性),通过临时索夹固定在主缆上,是整个分体式吊机提升钢桁梁的核心设备。单套分体式吊机理论最大承重1400t,提升速度约5m/h;其尺寸为长4m、宽0.9m、高4.8m。
分体式吊机采用计算机控制,可以全自动完成同步升降、实现力和位移控制,具有提升过程临时锁定、过程显示和故障报警等多种功能;且采用模块化设计,方便施工过程安拆和设备转移,适应性较强。
2.1 临时索夹设计
液压提升油缸组件通过临时索夹固定在主缆上,临时索夹是分体式吊机的关键受力构件。单个临时索夹可承受竖向力3000kN,采用焊接工艺制造。临时索夹主要由环形板(厚40mm)、承压板、耳板及加劲板组成(图4),采用Q355D钢,长1.12m、内径874mm。

图4 临时索夹结构
临时索夹分为上、下两半,总重约2.1t。通过MJ56螺杆夹住上、下两半索夹实现抗滑,单根螺杆设计夹紧力为900kN,单个索夹共设置8根螺杆。为减小焊接变形,耳板和4块承压板采用熔透焊缝,其他位置均采用角焊缝。所有焊缝均采用磁粉探伤,熔透焊缝采用超声波探伤。索夹全部焊接后,采用高温回火方式消除焊接应力。
2.2 托梁设计
托梁是分体式吊机第2次提升钢桁梁的关键受力构件,顺桥向设置2根托梁,加劲梁上、下游各1根。托梁采用桁架结构,长18m、宽0.9m、高2.44m(图5),采用型钢组焊,横断面上设置2片桁架。

图5 托梁结构
单片桁架上、下弦杆采用HN700mm×300mm型钢,腹杆采用HN300mm×300mm型钢,均采用Q345钢。考虑运输限制以及结构的通用性,18m长的托梁分为2个节间,两节间采用高强度螺栓连接。
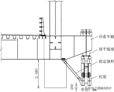
在钢桁梁吊索牛腿上设置找平底座,托梁与找平底座通过螺栓栓接。为增强提升过程结构的抗倾覆稳定性,找平底座支撑断面的钢桁梁与托梁之间设置稳定撑杆,稳定撑杆两端采用销轴连接。
3 缆梁相交区梁段施工方案
分体式吊机因具有较强的适应性,理论上采用分体式吊机将缆梁相交区钢桁梁提升至设计位置仅需4步骤:
①安装分体式吊机临时索夹和液压提升油缸组件;
②钢桁梁运输至吊装位置,在钢桁梁上安装托梁;
③下放分体式吊机吊耳,将吊耳与托梁连接;
④提升钢桁梁至设计位置。
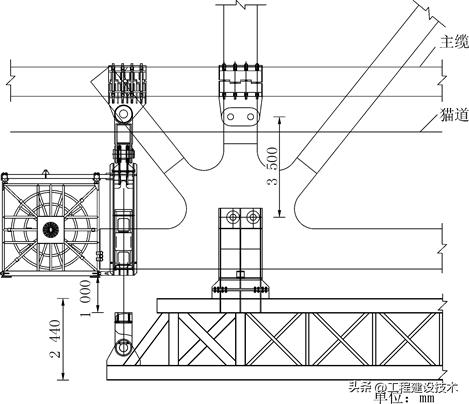
但由于跨中吊索较短,最短吊索长约3.5m,而分体式吊机总体高度4.8m,且分体式吊机钢绞线自由长度需大于1m。因此,为能将钢桁梁提升至设计位置,托梁高度应大于或等于2.44m(图6)。

图6 托梁高度要求示意
若托梁采用最低高度2.44m,根据工艺要求,需在运输船上将托梁安装至钢桁梁上,保留20cm的安装空间,则钢桁梁需在船上垫高2.583m(图7),才能保证托梁的正常安装。此时,为保证运输过程中的稳定性,经计算需采用10000t以上船舶,不经济,且船舶资源有限,影响加劲梁吊装工期。因此,采用分体式吊机直接提升钢桁梁难以满足该项目施工要求。

图7 运输船上钢桁梁垫高示意
基于上述问题,提出了“缆载吊机+分体式吊机”接力提升方案,即首先采用缆载吊机提升钢桁梁至一定高度,并将钢桁梁临时固定于主缆上,使托梁有足够的安装空间;然后缆载吊机行走至下一吊装工位,为分体式吊机安装腾出空间,安装分体式吊机;最后由分体式吊机将钢桁梁提升至安装位置。
采用“缆载吊机+分体式吊机”接力提升施工流程:
安装接长吊索→缆载吊机行走至吊装位置→缆载吊机下放吊具与钢桁梁连接→缆载吊机垂直起吊钢桁梁→钢桁梁与接长吊索临时连接→卸载,钢桁梁荷载转移至接长吊索→缆载吊机行走至下一吊装工位→分体式吊机安装就位→分体式吊机提升钢桁梁至安装位置→梁段与永久吊索连接并与相邻梁段铰接→分体式吊机拆除。
4 缆梁相交区梁段吊装关键技术
缆梁相交区梁段采用“缆载吊机+分体式吊机”接力提升,主要施工步骤如下:
①安装接长吊索;
②缆载吊机进行钢桁梁第1次提升,将钢桁梁与接长吊索连接,钢桁梁荷载转移至接长吊索临时承担;
③缆载吊机行走至下一吊装工位,完成分体式吊机安装(临时索夹、液压提升油缸组件及托梁);
④采用分体式吊机进行钢桁梁第2次提升,提升至安装位置,完成钢桁梁与永久吊索的连接。
主要施工过程见图8。

图8 “缆载吊机+分体式吊机”接力提升施工过程
4. 1 接长吊索施工
钢桁梁需通过接长吊索临时悬挂在主缆上。为保护永久吊索下端及钢桁梁吊耳球形铰,接长吊索上端通过连接耳板、下端通过转换结构分别与永久吊索、钢桁梁采用销轴连接。单套接长吊索由2块连接耳板、2个200t卸扣、1根250t软吊带以及1个转换结构组成,见图9。

图9 接长吊索结构
其中,软吊带采用高强度聚酯工业长丝制成,具有6倍安全系数;连接耳板与转换结构均采用Q345钢焊接结构。接长吊索长度以缆载吊机能提升钢桁梁的最大高度为准,长约15m。
在采用缆载吊机进行钢桁梁第1阶段吊装前,提前安装接长吊索。接长吊索安装时,首先将接长吊索各部件组成整体,上端将连接耳板通过卸扣与软吊带连接,下端将软吊带与转换结构连接。
通过卷扬机将接长吊索从运输船上起吊至永久吊索下方,人工打入连接耳板与吊索之间的销轴,完成接长吊索安装,见图10。

图10 接长吊索安装
设置φ38mm钢管硬梯,作为作业人员上、下通道及操作平台。为保证绝对安全,作业人员同时佩戴2根安全带,安全带上端与防坠器连接。
4.2 缆载吊机第1次提升钢桁梁
接长吊索安装后,利用缆载吊机进行钢桁梁第1次提升。
缆载吊机行走至吊装工位后固定就位,运输船将钢桁梁运至待吊位置正下方抛锚定位,缆载吊机下放吊具与钢桁梁连接,缆载吊机缓慢加载,直至钢桁梁从运输船上脱空,静载15min,观察缆载吊机横梁、吊具、吊耳等结构受力,一切正常后匀速提升钢桁梁。
钢桁梁提升至接长吊索下端后,打入转换结构与钢桁梁吊耳之间的销轴,完成接长吊索与钢桁梁的连接;随后缆载吊机缓慢卸载,将钢桁梁荷载缓慢转至接长吊索;卸载后拆除吊具与钢桁梁的连接;缆载吊机移位至下一吊装工位,为接下来的分体式吊机临时索夹、液压提升油缸组件及托梁安装腾出空间。
4.3 分体式吊机安装
分体式吊机安装主要包括以下3个部件。
(1)临时索夹安装。单个临时索夹重约2.1t,较同尺寸永久铸造索夹轻。临时索夹的安装工艺与永久索夹一致,采用天顶小车进行移位。先安装上半索夹,再安装下半索夹。采用手拉葫芦进行辅助安装,安装后采用液压拉伸器进行索夹螺杆张拉。
(2)液压提升油缸组件安装。单套液压提升油缸组件含1台350t液压提升油缸,1套钢绞线收放装置,以及31根长度为45m的φs15.24mm钢绞线。单套油缸组件重约20.8t,重量较重,采用“塔顶卷扬机+滑车组”进行提升、下放,定滑车设置在主缆上。
液压提升油缸组件安装步骤为:
①通过驳船将油缸组件运输至待吊钢桁梁正下方;
②卷扬机将动滑车下放至驳船处,与液压提升油缸组件连接;
③整体提升油缸组件至安装位置、穿入销轴,完成安装。
(3)托梁安装。单根托梁重约25.1t,与液压提升油缸组件类似,同样采用“塔顶卷扬机+滑车组”进行提升、下放。
托梁吊装前通过驳船运输至安装待吊位置正下方,其安装步骤为:
①采用“卷扬机+滑车组”将其从船上提升至安装位置;
②提升到位后,通过高强度螺栓将其与钢桁梁吊索牛腿上的找平底座连接,并安装稳定撑杆。
4.4 分体式吊机第2次提升钢桁梁
分体式吊机临时索夹、液压提升油缸组件、托梁安装后,下放分体式吊机吊具,与托梁连接,进行钢桁梁第2次接力提升(提升高度为15m)。
分体式吊机第2次提升钢桁梁的主要施工步骤为:首先缓慢加载,钢桁梁荷载逐渐由接长吊索转移至分体式吊机;钢桁梁提升一定高度后,拆除接长吊索下端转换结构与钢桁梁之间的销轴;继续提升钢桁梁,在便于工人操作后,拆除接长吊索上端连接耳板与吊索之间的销轴连接,完成接长吊索拆除;随后继续提升,满足钢桁梁与吊索的连接高度后,连接永久吊索与钢桁梁,完成钢桁梁吊装。
分体式吊机第2次提升钢桁梁时,应严格关注索夹、托梁的受力状况。钢桁梁荷载全部转移至分体式吊机后静载15min,通过在临时索夹两端划线监测索夹滑移情况,同时采用全站仪测量托梁跨中挠度。
钢桁梁安装后,依次拆除托梁、液压提升油缸组件、临时索夹,拆除时基本反向而行,采用“塔顶卷扬机+滑车组”将其下放至驳船上,通过驳船转移至下一吊装工位。
5 结语
温州瓯江北口大桥受航空限高以及桥下通航净空影响,两主跨跨中约300m范围存在缆梁相交区梁段,针对缆梁相交区钢桁梁难以采用常规设备、工艺进行吊装难题,研制了分体式吊机。
针对分体式吊机直接提升钢桁梁带来的托梁安装难题,提出了“缆载吊机+分体式吊机”接力提升施工方案,钢桁梁由缆载吊机完成第1次提升后,通过接长吊索临时悬挂在主缆上,随后安装分体式吊机进行第2次提升,完成钢桁梁吊装,解决了跨中缆梁相交区钢桁梁吊装难题。
该桥加劲梁2021年11月吊装完成,全桥缆梁相交区梁段吊装平均工效可达1片/d。
本文提出的分体式吊机以及“缆载吊机+分体式吊机接力提升”工艺具有一定的创新性,对类似问题的解决提供了较好借鉴,具有良好的社会和经济效益。
本文转自《桥梁建设》——温州瓯江北口大桥缆梁相交区加劲梁吊装关键技术,作者彭志辉,潘桂林,仅用于学习分享,如涉及侵权,请联系删除!