近些年来,开发商为了迎合市场需要,把很多80-90㎡户型都改成了三房,于是冒出了很多不足10㎡的小次卧。
随着商家们对榻榻米的大夸特夸,很多人小户型直接合着眼就装了。
以至于到今天,关于榻榻米形成了“一捧一踩”两股势力,动辄在留言区掀起骂战,一边是真香彩虹屁,一边肠子都悔青了。


彼之*霜砒**,吾之蜜糖。
爱的人说它省空间颜值高,恨的人嫌它死贵还爱脏,归根结底是没有搞清楚自家的需要。
借着这个话题,今天就来帮大家一起捋一捋,你家这间小次卧,究竟怎么装?什么情况下,才推荐榻榻米?
舒适大床老人房
小次卧做老人房,安全便捷最重要。
1500mm的双人床刚好够用,床两边各留500-600mm,保证过道不会束手束脚。
两边分别摆上床头柜,起夜喝水、开关台灯都方便;床边最好不贴墙,一侧身就可以下床。


衣柜和床并列,柜体中间嵌入一个台面,充当床头开放收纳台,省掉一个床头柜,下床开合衣柜也更宽敞了。
床尾空间够的话,角落加个单人椅,作为老人的休闲角,如果喜欢,还可以在旁边补充一个斗柜。


图源屋主:奔跑的牛肉包子
设计师:大宽

图源:收纳师万万
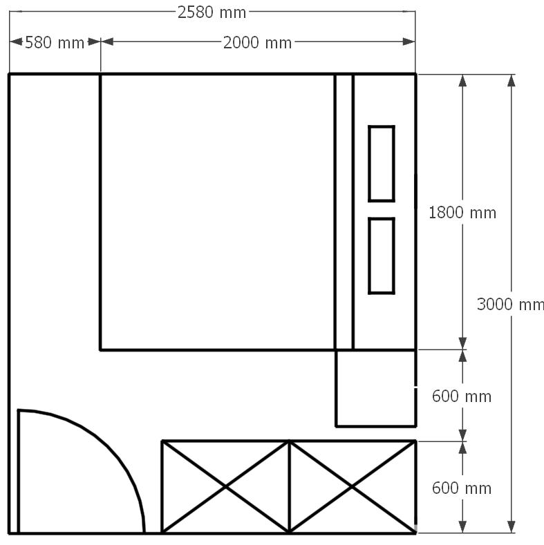
有些家庭需要老人帮助照顾宝宝,三个人起码需要1800mm的床。
3米以下的房间长度,就显得有些局促了,你会发现怎么摆都不够用,只剩下狭长的过道,房间里面 连个转身的位置都不够,还会出现动线的浪费。


×
当你想把大床塞进小房间的时候,榻榻米就起作用了。
榻榻米能把鸡肋小过道填满,成为床的一部分,和衣柜尺寸更自由地衔接在一起,整体上很妥帖。
这种地台榻榻米很像中国北方的大炕,睡好几个人都不挤, 孩子还能在上面玩,不用担心掉下来。
以侧面的抽屉收纳为主,剩下的位置放进换季的被子衣服等,一年开不了几次,倒也不会太麻烦。


图源设计师:岳东旭(山丘设计)
偶尔有访客,折叠床照样舒服
有些家庭虽然是自己住,但一年当中,也会时不常接父母小住一阵子。
这种情况不用专门打造老人房,腾出来作个书房或多功能房,家人天天都能用,不是更好吗?
沙发床
把大床换成沙发床,这里推荐两款。
单人沙发床选宜家的哈马恩,平时折叠起来只有一米二,比较轻薄,屋里随意摆不占地儿。
书桌边平时有个小沙发,工作累了也好歇一歇,打一局游戏,或者没事歪着看看书。



双人沙发床选宜家百灵坐卧两用床,平时不打开就够做单人床的,展开之后长宽各2米,妥妥的双人大床。
自带两个抽屉,正好可以放枕头和被子。
因为这款非常经典,淘宝上很多与它搭配的床垫可以选择。


住范儿设计师巧倩家的次卧
如果是6㎡长条小卧室,放上这个沙发床,柜子、书桌只要二选一了。
在布置书桌时,优先考虑靠窗的位置,好的视野能让你工作学习更舒适。


住范儿客户D先生家
壁床
还可以试试做个壁床,平时推上去和柜子连成一体,偶尔来人就拉下来,成了一个正式的卧室。
有人担心壁床麻烦又爱坏,一定要选质量高的五金件,同时考虑使用频率不会太高, 一年拉下来几次,能帮你省下那么多空间,麻烦一点也不算什么。



住范儿上海客户孟阿姨家
打地铺
非常朴实的老办法,适合应付最低频率的留宿情况。
一张最薄的乳胶床垫铺在地上,即使是习惯睡软床的人都能睡得很踏实。
同时没有了床的束缚,布局就自由多了,工作台可以选个大长桌,书桌旁边添个置物架,用来放打印机和工作文件。
也可以把书桌和定制柜结合起来设计,让书桌旁边正好挨着柜体的开放格,就有了一个好用的桌边架。

住范儿上海客户轩铭家
如果收纳需求大,就多做一些柜体,如果在家办公的频率比较高,就把重点放在工作台。

再小的卧室,也尽可能留出一片足够打地铺的空地。

推荐几几款乳胶床垫:
网易严选5cm乳胶床垫 ¥1899
考拉自营PAIGERLatex泰国进口3cm乳胶床垫 ¥899
平时垫在席梦思床垫上自己用,有客人需要临时留宿时就抽出来单独铺在地上,不占用额外的收纳空间,也不需要额外花钱。

淘宝搜索:午休软垫 ¥60~200
比橡胶床垫更便宜、更便于收纳,但同样也能有一定的舒适度。

灵活儿童房,全套成长型家具
儿童房不建议做榻榻米,随着宝宝长大,需求会时常变化,房间布局越灵活越好。
适应孩子长身体,可以买可拉长的儿童床,而不用一下子买大床, 这样在长大之前的几年里,都可以节省一些面积。


宜家布松纳可加长型儿童床
图源:收纳师万万
可升降书桌,可升降学习椅,宜家都有相应的产品。
如果没有这些神助攻,隔不了两三年就得换套新家具。

宜家VIMUND儿童书桌椅
选择轻便的家具,不把空间定得太死。
孩子成长过程中,可能需要临时做一面黑板墙,加个小帐篷,添一组玩具柜,小书架等。


宜家VITVAL 维特瓦尔高架床带桌子
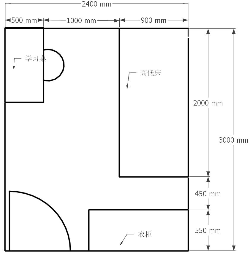
两个宝宝可以放两张小床,也可以放一个高低床。


宜家VITVAL 维特瓦尔双层床架

宜家MYDAL 麦达双层床架 松木
长条形房间把床横过来,中间就能留出比较完整的活动区域。


一排小矮柜,藏露结合,养成自主收纳的习惯,把书籍摆在明面上,随时都可以看。
孩子重心较低,地面做上舒服的地垫,可以让ta直接坐在地上玩,但 不必留太多游戏和阅读区域,小孩子在公共空间玩耍学习,方便家长看护,还有利于孩子的性格和专注力培养。

Tips
关于小次卧,还有几点注意事项及布局方式供你参考:
1. 高柜避开窗户,保证 通风透光 ;
2. 收纳并不是越多越好 ,算一算你家的收纳量,柜体太多不仅挡过道,还显闷。
3. 如果隔音需求不高,可以做一道 玻璃移门 ,或开室内窗,白天不用可以打开,让小空间有通透的感觉;
4. 如果完全不考虑住人,可以把非承重隔墙敲掉,和客厅连为一体,就出现了一个 开放式的多功能区 ;
5. 装个 投影 ,把这里作为健身区、游戏区也不错~

图源:青岛舟不离空间设计

住范儿北京客户王女士家
总之,没有什么完美的设计是家家通用的,考虑房屋尺寸、人数、居住习惯和价位,一番衡量下来,每个家都有每个家的样子。
你喜欢榻榻米的好看便捷,就要忍受它造价高、工期长、易受潮;你喜欢折叠床省空间,就得忍受它偶尔麻烦一下;你喜欢玻璃门显大,就要忍受它的私密性弱。
在此,也想对刚获得人生第一套房的朋友说:
新房子可能意味着新的生活方式,前期布局时不确定想要什么,是很正常的。
与其样样俱全地填满空间,不如干脆留个空屋子,在生活的过程中,去慢慢发现自己的需求吧~