这套40㎡小房子是她一个人住,家里装修所有的一切都是为了让自己开心快乐,完全不用考虑其他人的任何感受。

除了定制家具以外,家里只有沙发、床、电视柜和高脚椅这四样家具,但各种电器非常多,LL一开始写给设计师的电器需求是这样的:
玄关:指纹锁 电子猫眼 环境:新风系统 风管机 空气净化机 客厅:音响 升降电动幕布 投影机 厨房:前置过滤 净水机 软水机 洗碗机 垃圾处理器 小厨宝 集成灶 冰箱 桌面饮水机 烤箱 微波炉 卫浴:洗衣机 烘干机 mini洗衣机 壁挂智能马桶 电热水器 松下风暖
虽然不是40平住三口人的需求,但一个人住,要在40㎡的空间里装进这么多设备,还是让设计师有点“崩溃”,不过最终除了部分因客观原因确实达不到的,百分之八十都做到了!
整个装修从约谈到拍毕业照,一共历时18个月,一起来看看吧~

房屋信息
坐 标:辽宁 大连 户 型:一室一厅 面 积:40㎡(使用面积) 设 计:大连设计师张倚宁 费 用:18w


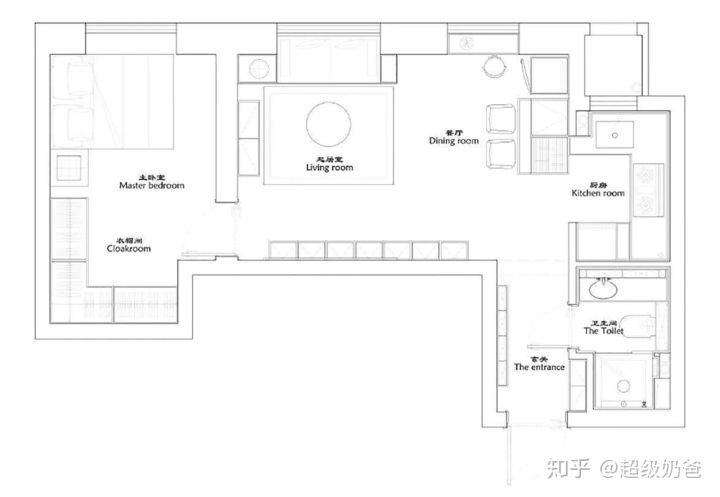
▲ 原始结构图
这是一个高层建筑,所以得房率真的很低,建筑面积64㎡,套内面积只有40㎡。
房子是纯南向户型,卫生间不足3㎡,厨房也不大,客餐厅相对宽敞,卧室是承重墙结构,没法拆改。

▲ 平面布局图
大家第一眼看平面图好像结构上没有改变,只是少了厨房的墙。
实际卫生间厨房的墙体全部都拆了重新砌的,虽然形式格局一样,但尺寸发生了变化:
1) 卫生间向厨房借了150mm,别小看这一块砖的厚度,却解决了卫生间的难题(下面会有详细介绍)。 2) 厨房变开放式,洗衣机和烘干机嵌入橱柜。 3) 屋主一个人住,用吧台取代餐桌,既增加储物,还能留出空间放冰箱和洗碗机。 4) 利用餐厅旁边的窗台深度,做了一个写字台,方便偶尔在家工作。 5)卧室只需要一侧上下人,留出面积做衣柜。
经过设计师对细节尺寸的把控,40㎡小房子,各个功能一个不少,还能住出100㎡的宽敞!
玄关

右手边是通顶的鞋柜,里面最底部隐藏了地热分水器,上面全部是活动隔板,收纳鞋子,分水器吃掉了一些厚度,剩下的可以横向放一些拖鞋。
左边是从宜家买回来的超薄鞋柜,作为补充收纳,虽然是一个人生活,但鞋子真的不少。
宜家的鞋柜做了DIY改造,没有用成套的鞋柜腿儿,而是直接悬挂在墙上,营造漂浮感,上面的台面回家时可以放包包等。

入户门原来是丑丑的猪肝色,设计师和LL两人重新刷漆改色,只用了不到100块,LL想要的指纹锁和电子猫眼也都安排上了,女生一个人住,安全很重要。

▲ 电子猫眼:鹿客

▲ 从客厅看向玄关,门后面是卫生间
客厅

▲ 沙发嵌入窗户凹陷
窗户的宽度只有1500mm,而且凹进去了很大一块,为了抢出每1㎡空间,需要把沙发完全塞进去,但这么小的双人沙发真的不好买。
屋主拒绝没有品牌支撑的产品,因此不接受一些网络上和实体工厂定制的沙发。最终购买的这款不知道大家有没有看出来,其实是宜家L型沙发的一个拐角位置,横过来放了。

浅色布艺沙发搭配背后的亨特道格拉斯窗帘,颜值没得说。
两侧留了电源,可以放个边几,不过目前屋主还没有心仪的,一个人生活又比较简单,索性就这样空着也不错~

沙发的点子是LL出的,去宜家逛了好几次,最终决定用它应该不错!

虽然只有40㎡,家里看起来却很空旷,体脂称前面的空位还可以放一个折叠划船机,平时需要运动一下空间也完全足够。

▲ 客厅全貌

电动幕布下面是四件家具之一的宜家电视柜,装修时预埋了两根HDMI线,从棚顶串到对面的投影。
所有的电源和笔记本电脑都藏在柜子里,表面看不到一根线,整洁清爽。

▲ 顶部的投影仪

▲ 悬挂柜体下方,安排了扫地机器人的充电位
家里以白色+原木色为主,LL在装修前的功课做得真的很到位,地板选了得高快步系列,预算也控得刚刚好,200多拿下。

房子做无主灯设计,唯一的吊顶在吧台上方,除了灯光,天花上还留了WiFi接受器、新风的出风/回风口,还有烟感报警器。
厨房

▲ 厨房正视角,面积很小,但功能强大
厨房锅碗瓢盆的收纳需求不多,大部分柜体装的都是LL之前提出的各种设备。

▲ 简单洗、切、炒
白色橱柜门板,搭配定制拉手,柜门表面贴肤感膜,手感顺滑,而且防污抗油。
吊柜下方嵌入灯带,避免备餐时背光的问题。

▲ 大单槽+水龙头
龙头是LL以前看美剧时就种草的产品,这次终于拔草了,内置直饮水龙头。
后面的窗帘是原装亨特百叶,拉起来的手感是真真的好,航空铝材不生锈不变色。

虽然家里通了燃气,但LL还是选择用电磁炉,一是为了安全,二是做饭机会不多,并不在意所谓用火比用电更好吃这套理论。

▲ 升降式抽油烟机,升起状态

▲ 洗碗机嵌入吧台
吧台高度1050mm,嵌入洗碗机后,上下还能再做两组抽屉。
有了洗碗机,就算点外卖,也可以用自己的餐具,干净卫生,保持生活的仪式感。

换一个角度看,吧台和水槽中间薄薄的柜子里,藏着洗碗机的上下水和电源,真是一点空间都没浪费。

冰箱挪到吧台旁边,留出的位置放洗衣机+烘干机,这两件是LL必备之物,洗衣机的上下水引到墙后面的卫生间。
左边空出的位置打算放烤箱/微波炉,目前还没买,先空着。

水槽下面的垃圾处理器和净水器,还有一个前置过滤器,设计师放到公共空间的管道井了。
餐厅

▲ 冰箱从厨房挪到吧台,位置刚刚好
餐厅用吧台取代餐桌,再加上两把高脚椅,坐在上面吃饭写东西都很舒服。
风管机的要求没有实现,因为只有厨房窗外有空间放一台空调外机,但家里还想装新风,没办法安排下两台大型设备,最后选择安装新风,空调就选了挂机。

▲ 窗口边的逃生锁扣
LL的家在高层,如果发生火灾,*防队消**的云梯一般只能够到17-18层楼的高度,所以以防万一,要自己装一个留着栓逃生绳用。

▲ 空调:三菱电机
LL这个颜控对挂机也有要求,不想有空调管,好在这个位置可以实现。空调选了三菱电机,风避人功能很完美,开两分钟空间就凉,而且超级静音。

流线型的吧台椅,颜值不错吧?

吧台没有用大理石面,而是选了木材,手臂放在上面不会凉,用起来暖暖的。
卧室

卧室的床是家里四件家具之一,其实就是一个床垫,淘了一个类似货架的木板垫在下面,简简单单。

就一个人生活,床没有摆放在卧室中间,而是靠着窗放,反正睡在靠里面一侧,不会着凉。

床很矮,没有摆放床头柜,有东西直接放在地上就可以啦!

关于时间久了床头会不会变黑的问题,LL每天软水洗头,平时也没有靠在床头的习惯,所以不用担心~

因为床是靠窗摆放,留出了更多空间,做一圈顶天立地衣柜,收纳量一点不比步入式衣帽间小。

▲ 充足的收纳
卫生间

▲ 热水器:阿里斯顿超薄壁挂
卫生间的面积刚刚好,一点浪费都没有。由于高层是铸铁的下水管,没有实现壁挂式马桶的要求,在北京有工人能把铸铁下水管改壁挂,但在大连还没有工人能干这个活。

智能坐便的遥控器安在墙上,方便一进门控制坐便盖的开启,也方便使用结束之后操作各种功能。

前面讲过,卫生间向厨房借了150mm,之前只有750mm的淋浴区变成了标准的900mm,洗澡更宽敞,所以不要小瞧一块砖的厚度~

▲ 定制的浴室镜柜

镜柜里面留了电源,用来插洗牙机,男士可以插电动剃须刀,很实用。

▲ 开关插座:施耐德

厨房和卫生间都选用台下盆,减少水溅出来,可抽拉式龙头方便洗头~

一定有人会问,坐便旁边的两个柜门打不开怎么办?
这里其实没有用常规合页,里面放的是软水设备,也幸亏有这个柜子,不然还真放不下。

这个就是坐便旁边不能正常开启的柜子,里面是斜着放的软水机。
门板上的五金是插进去的,不是合页,做到能换盐就行,软水机得定期加盐才能软化水。
走廊

走廊在这个房子里都属于模糊空间,这个角度是从卧室门看向客厅,勉强算作走廊吧。

转了一圈,房子就这么大,每个空间都相互交融在一起,但又明确有各自的功能意图。