
空间挤一挤,就有无限可能。而他“挤”出了书墙、影展、私藏,私人电影院,可养花的工作区,还有可“蹦迪”的餐厅……

这是屋主 @付有爱吃肉 亲手设计、打造的房子,他所有的期待也在这个套内面积仅48平米的小房子里实现了!
屋主还贴心给大家整理了自己的购物List,现在就跟着糖主一起被它治愈吧~
# 先 睹 为 快
房屋信息
户型:一居室
使用面积:60㎡ 套内面积48㎡
房屋位置:北京市
装修花费:20w
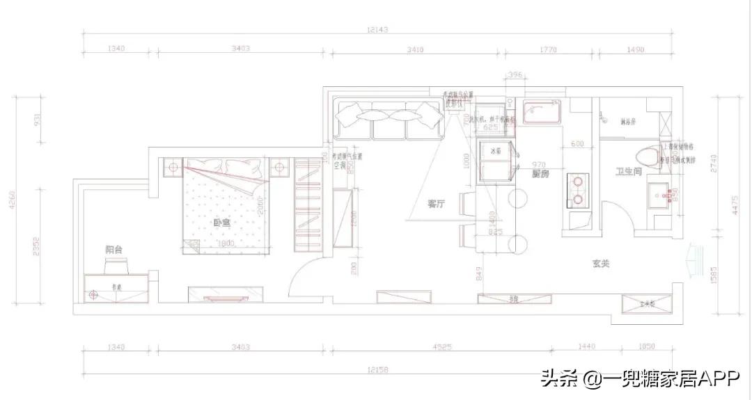
户型图

原户型图

屋主规划后
装修重点:
1. 以黑白灰为主色,蓝色与原木色为配色,互相搭配。2. 全屋地面铺瓷砖,考虑到性价比,厨房、客厅及卧室使用仿木纹砖。3. 家具一半订做,一半网上买的。
4. 装修选择半包,一是为了省钱,二是希望装修要自己参与。
入户&玄关
小玄关也可有书墙和“影展”

入户门是定制的,黑色磨砂质感。门锁装的鹿客classic2,再配上小米的可视门铃,防火防盗防小偷。
门上是我给房子起的名字“拾光影社”。

特别反感满墙都是小广告,所以挂了个提示牌作为小广告粘贴处,贴广告的也得养家糊口,相互理解下,贴在指定的地方。

进门玄关柜。

门口左边这面墙是个“凸”字的形状,考虑到空间的利用,凹进去的两边分别订做了玄关柜和书架,凸出来的部分做了照片墙,也能改善视觉的凹凸不平。

照片墙挂上了自己的摄影作品,射灯一开有种摄影展的感觉。

书柜定做前我也是反复测量,样式与层高是我先画的草图并标好尺寸然后交给橱柜设计师按照比例出的图。
现在做好后按照书的内容分类排序,之后会再贴个标签,书店既视感。
入户重点 单品
玄关柜:大成罗克尼
书柜:大成罗克尼
门锁:鹿客classic2
门铃:小米可视化门铃
门牌:博雅工艺
客厅
洗衣、看电影、收藏、会客“四不误”

这是我的客厅,也是我的私人影院,还是我的洗衣区,还是我的私藏品天地。

这张沙发实际上是沙发床,推出来就是一张1.5m*2m的床。暖气没有选择传统的暖气片,这种圆圆的款式跟我屋里的整体风格比较搭。

窗帘跟沙发垫的颜色相呼应。照片与实际有点偏差,实际的颜色没有这么艳。

边柜和墙上的格子柜放的是我的收藏,有一些摆件,一些酒和全套的柯南,大黄蜂,大黄蜂旁是跟我一样爱好摄影的格鲁特小兄弟。

柜子上还有我收藏的胶卷,有些是上世纪70-80年代的,有些已经绝版了,比较有纪念意义,旁边就是手磨咖啡了。

还有我心爱的吉他,上班后也没什么时间写歌,这货跟我上台演出过,满满的回忆。

客厅配备的“家庭影院”系统。投影选择的极米H3,并配备了电动幕布,音响最终还是咬咬牙买了索尼HT-Z9F,外加两个后置小音箱,看大片和听歌都非常过瘾。

晚上观影效果是不是很棒?其实投在墙上也可以,但总觉得差点意思。如果你也想安装幕布,那装修前就要设计好,需要在墙上开槽并留好电线。

洗衣机加干衣机放在卫生间会顶到棚,这样很压抑,放到阳台还要刨地放管道,也很麻烦,为了节省阳台空间,我就打了个柜子放这了。

空间小,所以洗衣区也做了一些收纳和装饰,一些小零食,一棵琴叶榕,一块软木板,装点我的生活。
客厅重点单品
投影:极米
家庭影院:索尼
空调:格力
电视柜、餐边柜、茶几:泡沫小敏
沙发床:强力
餐厅
餐厅虽小,却可“蹦迪”

入户的另一边就是我的餐厅和开放式厨房,为了节省空间,在网上买了一个可伸缩的餐桌,平时1.4m,伸展开1.8m。配了两个小板凳,挤一挤坐8个人没问题。

餐桌左边的空间也不能浪费,装饰一下加点小情调。
吊灯的灯泡我换成了小米智能彩光灯泡,想要什么颜色的灯光都可以自己调节,感觉可以在家蹦迪了!
餐厅重点单品
可伸缩餐桌、椅子:泡沫小敏
吊灯灯泡:小米智能彩光灯泡
厨房
吃货的满足感,是收纳给的

原户型这里是非承重墙,凿掉之后感觉整个屋子宽敞不少,做成了开放式厨房。

瓷砖选用了网红格子砖,方方正正的,比较难贴,歪一点就很明显,贴砖的时候让师傅调了几次,这才像模像样。

自己爱吃,固然也爱做,我配备了煎锅,炒锅,蒸锅……就是锅多,所以收纳和橱柜空间很重要。刀也按照功能的区分准备了好几把,整了一个刀架。切菜区还安装了手扫感应灯,为厨房增添了一点科技感。

水槽看了好多款,最后还是喜欢黑色石英石的,网上比实体店便宜不少。而且水龙头上有个按钮,可以调节水流形态,挺方便的。
在这儿洗东西的时候偶尔能瞧见邻居家的两只美短慵懒靠在阳台的垫子上,时不时还斜眼看我一下。

调料区,也要收纳得整整齐齐。

在网上买的磁力架配上宜家的调料罐完美!不仅实用还起到了装饰的效果。

橱柜跟高柜都是在一家订定做的,材质选用的爱格板,虽然价格略贵,但质感确实不错。冰箱买了梦寐以求的对开门,严格的说这应该属于四开门。

满满当当的冰箱,打开就是吃货满满当当的安全感啦~
厨房重点单品
橱柜、高柜:大成罗克尼
瓷砖:罗马尼奥
净水器:史密斯
冰箱:美菱
油烟机:老板烟灶套装
水槽:德国汉摩石英石水槽盆
电饭锅:小米
卧室
满足收纳还颜值满满

卧室背景墙是我最喜欢的颜色。虽然很少人用,但这种深色墙每个时间段的感觉都不太一样,随着光的强弱而变化,效果不错。

床是在网上买的储物床,另购了两个床下抽屉放东西。

卧室和卫生间的门以及踢脚线都是找小厂家做的,也跟品牌的对比过,虽然质量肯定是不如品牌,但性价比高,省了不少钱。衣柜及床垫都是在宜家买的。

床头柜上安排了一个小米床头灯和小度音响,入睡和起床时可以听听新闻听听歌。
卧室重点单品
床:雅栈
床垫、衣柜:宜家
床头柜:木邻
床头灯:小米
吸顶灯:松下
工作区
阳台改工作区,一边养花一边工作

阳台原来有个能让人丑哭的推拉门,被我强拆了,改造成了工作区。喜欢唱歌和摄影的我,整了一个外置声卡和电容麦,配了两个屏幕,唱歌、修图都很方便。

墙上的架子与洞洞板是在宜家买的。桌子下边的抽屉是单独买的,尺寸还挺般配。

养了点花花草草,花架是在宜家买的。这屋采光超级好,窗户开个缝,遮上纱帘,小风一吹真是飘飘欲仙啊。
工作区重点单品
墙架、洞洞板、花架、书桌:宜家
窗帘:普罗旺斯
卫浴间
改出干湿分离,边洗澡边看电影才带劲

卫生间的原布局是马桶对着花洒,装修时对这部分进行了改造,选择了壁挂马桶,改变马桶的位置,隔一个淋浴房出来,做成干湿分离。

洗漱台也选择壁挂的,看起来简洁且好打扫。后期买了黑色的龙头和把手装上,保持风格统一。

花洒有四种出水方式,小喷枪绝对很实用,清理边边角角特别有帮助,而且马桶脏了也可以拉出来清洁。

我在淋浴房的墙上装了个防水罩,这样可以把手机放里,边洗澡边看电影。

收纳细节。

镜子是带背光的,晚上洗漱的时候,把镜灯打开,再把小爱同学唤醒,昏暗的灯光下听着音乐刷着牙,优秀!
卫浴间重点单品
花洒:箭牌
洗漱台:九牧
浴室镜:nolsia
马桶:科勒
风暖:欧普
地漏:潜水艇
卫生间吊顶:飞利浦
淋浴房:伊米特
# 屋主干货分享
Q1:很多人自己改造的时候,很容易看到某一样东西很喜欢,但买回来之后却发现各单品搭配风格不协调,在装修时你是怎么做的?
1、首先说家具,不论是在实体店还是网购,都尽量在同一家店购买,保持风格及颜色的统一性。如果是家具深色系,那磁砖或地板颜色就要相对选择较浅的颜色,反之也一样,层次分明;
2、屋子的主色调定好后,软装我都会先在心里搭配一下。
3、装修前多看图片找灵感。我装修前也看了不少文章,学到了很多经验。
Q2:现在很多人都会选择网购家具,看到你也是有网购家具的经验,这一部分你是否有一些技巧可分享?
网购家具比实体店便宜,但坑也很多,退换很麻烦。总结:多看、多问、多比较:
1、最好先去实体店逛逛,了解下板材及价格,对家具的行情会有个初步的概念;
2、在实体店看到喜欢的家具后可以去网上找同款或比较接近的款式,价格相差的太多,就要考虑网店的做工和品质,不能光图便宜,实用性及环保性也要考虑进去;
3、网上购买一定要多看买家秀,买家秀一般是不会刻意的去修图,相对比较真实。
Q3:家是小户型,家中小东西小物件的收藏似乎很多,在收纳方面有没有什么心得?
1、墙面:可以在墙上储物、装饰,能上墙的尽量都给安排上,但不要每面墙都利用,否则会显得很拥挤;
2、墙体夹角:比如卫生间墙体的夹角,可以放扫帚,拖把之类的物品,可以利用无痕挂钩固定在墙面;
3、床下:建议买高箱储物床,床下的空间也是一方宝地哦;
4、衣柜:最好订做,可以合理利用现有空间,柜子里也做好功能分区。