
Chuan House 难波黑门1号
项目名称:大阪黄金眼·难波黑门1号
项目位置:日本大坂市浪速区日本桥东1丁目1-18
建筑设计公司:日本株式会社 E&K和日本股份有限公司日成Advance
交房时间:准现房
交付标准:精装修,有电梯、停车场、CCTV监控系统
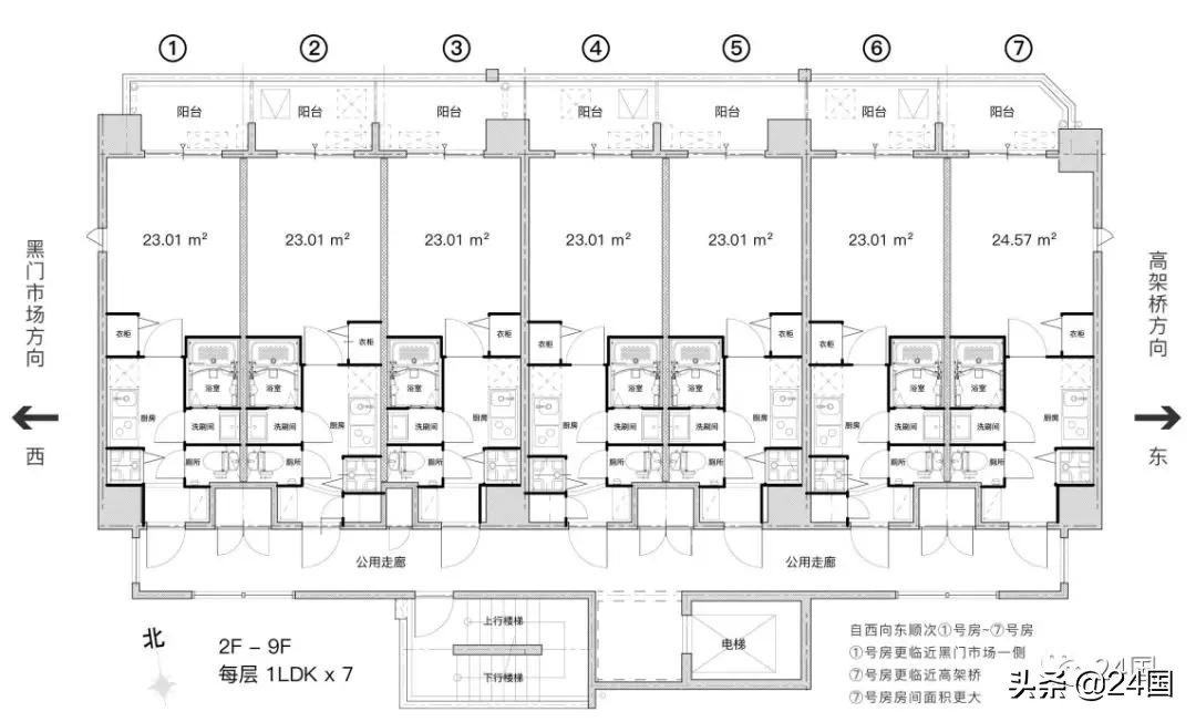
公寓总数:共9层,56套,1室1厅1厨
产权年限:永久产权
产权交割日期:2020年3月
主力户型:23.01 m²-24.57m²
价格区间:2880万日元起(约194万人民币起)
投资回报:年租金收益6%
1.项目区位
难波黑门1号公寓位于比肩纽约曼哈顿、北京CBD的难波国际商圈,土地价格名次位居大阪三大商圈之首,去年的土地价格增长率更是达到了19.3%,增幅前景广阔。
整个难波范围包括心斋桥、道顿堀与千日前一带,这里拥有大阪最具多元化的产业布局,购物、餐饮、住宅、商业、会展、旅游景点、娱乐休闲场所密集,同时还是大阪南部的主要交通枢纽,涵盖四条铁路线及地铁线,可直通关西国际机场。
难波商圈不仅是每年近千万游客的必访之地,同时也是居住在大阪的不二之选,大型超市、便利店、绿意公园、写字楼、医院、学校等配套设施高度发达,生活于此,便捷安心。

大阪地处日本关西地区,是关西最大的经济中心,和首都东京并列为日本最具代表性的大都市,同时也是在世界最具知名度的国际性都市之一。
据“大阪的经济”2019年版,关西地区的地区生产总值达到7,680亿美元,在经济规模方面可与一个发达国家相匹敌,而大阪市的地区生产总值相当于新西兰国内生产总值,美国FORTUNE杂志(2017年版)刊登的世界500强企业中,有7家总公司设立于大阪。
大阪拥有支撑日本和亚洲门户的高水平基础设施,旅业方面,丰富的历史观光资源、宜人的自然资源和发达的购物场所使得大阪的海外游人数连年激增,被评为“世界旅游目的地排行榜”笫一名,而随着2019年G20峰会在大阪举办,世界上经济规模最大、增长最快的囯家领导人在此聚首,大阪的国际影响力迈入前所未有的高度。
纵观日本,“安倍经济学”对于消费及投资的带动颇具成效,作为高度发达国家的日本依旧处于经济增长的良好轨道,国际顶尖资本蜂拥而入,房价及地价连续5年上涨。这其中,大阪房价的涨幅高达13.9%,此时布局置业,就是最佳时机。
2.项目周边配套
◆ 交通便利
步行3分钟到黑门市场
地铁15分钟到天阁、心斋桥
地铁25分钟到梅田
地铁30分钟可以到大阪城公园、环球影城
难波商圈是大阪最繁华热闹、也是最本土化的商圈,距离项目只需要步行5分钟。

另外,项目周边有3条核心地铁,交通便利,步行3分钟到黑门市场,坐地铁15分钟可以到达通天阁和心斋桥,25分钟到梅田,30分钟可以到大阪城公园或环球影城。前往京都、神户、奈良等人气观光景点都非常方便。

项目周边大型超市、便利店、公园、写字楼、医院、学校等配套设施齐全,有很多可以逛吃的地方,各色购物中心和特色店铺,各种人气打卡景点和网红美食。
比如美食去道顿堀、黑门市场、难波八坂神社、法善寺横丁,逛街去难波城、丸井百货、高岛屋、日本桥电器街、心斋桥商业街等。




3.公用配套设施
◆ 公寓大厅

◆ 楼宇设备

◆ 交付标准

4.样板间欣赏




5.项目平面图

6.项目户型图
◆ 项目户型

◆ 房间信息

◆ 房间细节


7.项目优势
◆ 游客人数爆发,旅游经济红利无限

自安倍晋三执政以来,“观光立国“战略成绩显著,据JNTO数据,2018年访日游客达3.119万,大幅超出了“ 2030年达到3.000万”的预期目标。这其中,人数及消费规模上均排列首位,2019年上半年,中国内地游客访日游客数量达838万,总消费1,545万亿日元,在人数及消费规模上均排列首位。2019年上半年,访日游客数量以史上最快速度突破1,600万,创下多个历史同期记录。

作为日本两大交通枢纽之一的大阪坐拥关西国际机场,是所有到访西日本游客的必经之地,而游客数量的井喷式爆发,首要带动的便是住宿业的增长。根据大阪观光局统计,2018年留宿大阪的海外游客超过1,141万,节假日,櫻花季,红叶季等重要日子里,“一房难求”的情况常会出现。
◆ *场赌**合法化,造就全新房产奇迹

2018年7月,随着IR实施法(Integrated Resorts,带有*场赌**的综合度假区)正式通过,日本民营赌博首次实现合法化,明确作为首个开放地的大阪将*场赌**设立在人工岛梦洲,有望于2024年正式营业。
包括美高梅,新濠博亚娱乐,拉斯维加斯金沙集团在内的等8家国际*彩博**巨头纷纷下注大阪。美高梅集团负责人视大阪为集团运营第一候选,而澳门赌王之子何献龙,更是表示新濠博亚娱乐愿意为大阪带来1万亿日元规模的投资,使大阪成为世界顶级观光地。

根据日本观光局数据推测,2030年梦洲IR*彩博**度假村将为大阪带来超过2,200万人次的旅行者,美国顾问公司Global Market Advisors预计大阪每年的赌博收入可超过100亿美元,高于新加坡两座*场赌**的年收。

*场赌**的开设意味着巨大的经济效益:以澳门为例,2018年,全年入境旅客超3,500万人次,按年增加9.8%,酒店及公寓平均入住率达91.1%,全年旅客消费(不含*彩博**)达696.9亿澳门元。而拉斯维加斯在1941年便建成了首家*场赌**,2017年房价涨幅仍保持在10%以上,涨幅位列全美第二位。
◆ 世博会将至,“黄金效应”蓄势待发

2025年,大阪将举办以“闪耀生命之光的未来社会设计”为主题的世界博览会,会期共185天,日本政府预计入场人数约为2,800万人,拉动经济效益约为2万亿日元。
世博会被誉为经济增长新引擎,在带动固定资产投资增长,形成新消费热点,促进经贸发展等方面,有着无与伦比的推进力,后续效应更是充满无法估量的潜能。历史上,埃菲尔铁塔是1889年世博会留给巴黎的“摇钱树”,而天阪如今的地位,关西经济带的形成,也归功于1970年时曾举办过世博会。
2010年上海世博会是对世博经济最好的诠释。世博会为上海带来的“产出影响”为794.77亿元人民币,“增量消费”为468.64亿元人民币,7,308万人次的游客来访,十一期间催生“最热黄金周”,当年GDP增长9.9%,经济效益是北京奥运会的3.49倍。

参考上海市2008年-2017年商品住宅均价,世博会的举办成为上海房价的分界点,举办当年,上海房价同比涨幅超35%,之后涨幅更是连年大幅度攀升。根据上海财经大学世博研究院副院长分析,世博会的投入能带动约1.2万亿的产业增加值,其中,有1/3的增加值将体现在世博后。
时隔半个世纪,大阪再次举办世博会必将成为日本最振奋人心的经济新增点。在世博之前抢占房产先机,即可安享后世博时代的“黄金效应”。
◆ 顶级运营公司托管




8.开发商
本地产项目由日本股份有限公司日成Advance和日本株式会社E&K联合开发。专业的地产开发结合卓越的房产托管,双方致力于共同赋能不动产投资,为投资者带去最稳健、最具潜能的价值回报。
日本股份有限公司日成Advance聚焦地产开发,专注于公寓类项目,关西综合排名第4位,年销100栋物件,自持行政、司法、税务团队,是株式会社E&K的长期战略合作伙伴。
作为高速成长的日本不动产经营公司,株式会社E&K旗下持有在川旅宿品牌,深耕房产托管经营,业务覆盖日本关西地区,涉及酒店、住宅、文旅等多种形态。现阶段在运营房源数量近千间,经营成绩位居大阪前列。公司获中国顶级风投机构投资,资金雄厚。


享受更多海外精品房源、资讯热闻以及投资分析:https://www.24country.com/ 或直接联系♥ B24country