成都市金牛区中医院设计解析
张曦勇
中国华西工程设计建设有限公司
四川成都
摘要:2019年7月,由成都市建委主持成都市金牛区中医院设计投标。八家设计公司经过两个多月两轮角逐,本方案脱頴而出获得全程设计权。当前正如火如荼施工中,建成后将给成都人民带来祖国传统医学的新体验。本文介绍该项目的设计过程、创意及要领,以期给今后中医院设计提供经验。
关键词:中医院 天人合一 文化内涵 梳理经络 模块化
一、项目概况
项目位于金牛区天回镇天龙北一路与天龙北二路之间,项目占地面积约2.5万平米,地块呈矩形状,南北长约200米,东西长约125米,地势平坦,总建筑面积约11.5万平米(其中地下3.9万平米)。
地上最高层数14层,门诊楼5层,首层层高5.0米,2-4层层高4.5米,5层层高5.2米。住院楼与门诊楼之间为设备转换层,层高2.0米。住院楼设置于门诊楼上方(6-14层),层高4米。南面为科研楼,共5层。
二、方案构思及总平面设计
设计理念:顺势而为,构建规划和谐有序、天人合一的整体形态。
项目愿景:该项目是一处融于山海之境的诗意驻所,她将成为金牛区最具特色的医疗服务目的地,一个传承中医文化和承载生命艺术的精神场所。
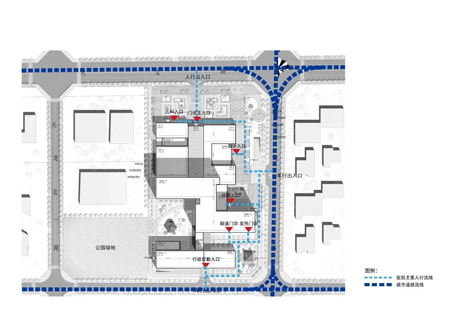
总平面布局:设计的立足点在于挖掘中医本身医疗功能的文化内涵。整体规划顺应地形关系,结合医疗街及医疗轴线自然形成贯穿南北的布局模式,各科室功能沿医疗轴线东西均匀布置。通过综合考虑人流动向,将门诊、急诊、儿科设置在地块北侧及东侧,主要人行通过北侧天宝路进出,医技楼结合门、急诊统一考虑形成有机整体;住院楼设置在地块中央,由于地块东西尺寸较小,住院楼采用“Z”字形布局;南面为科研楼,享有独立的出入口。
主入口定位:结合周边现有交通条件的分析,幸福桥地铁站、公交首末站、社会公共停车场,均位于地块西北侧,且北侧具有大量的住宅用地,由此推断:医院建成后主要人流会在地块北侧汇聚,因此设计将北侧及东北侧尽量大的让出院前广场,结合门、急诊形成动区;住院部及科研楼在设计上与川西文化的庭院院落相映衬,打造相对安静、私密的建筑空间。(图一)

图一 总平面图
建筑布局:建筑布局错落有致,形体穿插丰富,极具韵律感;门、急诊北侧及东北侧形成的带状展开面,通过形体的进退关系自然形成的转折与广场结合;住院楼与科研楼,错开布局,视线开阔,各建筑之间形成的庭院空间,疏密有致,传承了川西传统建筑的文化理念,形成规划和谐有序、天人合一的整体形态。(图二)

图二 鸟瞰图
三、对外交通联系及消防设计:
交通流线以人车分流为原则,北侧天宝路作为人行主要出入口,直接面对门、急诊及医疗街可快速进入医院内部,东侧天龙北二路主要作为车行出入口,车辆进来之后右转直接进入地下车库,住院部东侧设置地下车库出口,出地库之后直接进入天龙北二路,从而实现人车分流。南面规划道路设置作为后勤、污物的车库出入口。
急诊急救入口位于基地东北侧,急救车辆通过北侧专用入口可快速的到达1层的急救大厅。
污物交通流线设置在地下一层靠西侧,沿地下室西侧设置专门的污物通道,将地上污物通过污梯直接运送到地下一层,实现洁污分流,各功能流线避免交叉。(图三)

本地块设置地块环形消防车道,消防车道净宽、净高不小于4m,消防车转弯半径按12m考虑,道路纵坡不大于8%。沿住院楼、科研楼长边设置消防车登高操作场地,场地所在的坡度≤3%,消防车登高范围与登高操作面所在的消防车道内边距建筑主体外墙距离按5~10m控制
图三 人流分析图
四、内部功能流线:
内部功能流线设计原则:梳理经络,构建错落有致、张弛有度的高效流线;基本医疗中心以南北贯穿的医疗轴线为核心经脉展开,各门诊单元和医技单元为脉络,模块化的布局围绕主要经络展开。(图四)

图四 中医经络原理图
北侧天宝路设置门诊主要入口,就诊人流可通过院前广场快速到达医院进入门诊大厅,通过扶梯、电梯,快捷方便地到达各门诊单元。通过中央的医疗街,门诊人流可迅速到达医技检查。住院病房采用同层双护理单元设置,每个护理单元通过竖向交通,与下部的手术室、ICU、检验科、功能检查等医技部门紧密联系。
住院部主入口位于东侧,且与门诊、急症紧密联系,能方便高效地让住院患者快速到达,两个护理单元各设置一个患者及探视的交通核心,可避免集中布置所带来的的电梯等候时间过长,医生梯跟患者梯独立分开,医护人员可通过专用电梯及专用通道快速到达各个护理单元。
科研楼及后勤从南侧出入口进出,相对独立。西南角设置垃圾站、污水处理站及氧气罐等位于主导方向的下方侧。
五、建筑风格:
成都作为西南主要城市,国家历史文化名城,古蜀文明发祥地,有着天府之国美誉和西南首府的地位,所以成都建筑有着首府城市的风采:体量宏大、气势恢宏。同时成都又兼具极为丰富的市井大院文化。尤其在色彩上以历史建筑——武侯祠和杜甫草堂的深棕色为特点,透露出浓厚的生活气息。
本建筑设计采用传统多重院落的形式,多重半围合院落设计的建筑具有通透性,采光、通风效果最佳,建筑形体关系明确,且呼应成都的市井大院文化。
建筑立面设计上结合平面功能进行实用化设计,立面设计简洁大方,结合川西传统建筑的风格特征,融入川西建筑元素符号,以铝板幕墙及涂料为主材料,通过点线面的穿插关系,再结合铝格栅形成虚实对比,建筑立面具有很强的序列感,现代感。建筑色彩以白色、咖啡色为主,朴素淡雅,给人一定的亲和感。(图五)

图五 透视图
六、医疗垃圾及防疫设计:
医疗废物的暂时贮存设施、设备满足以下要求:远离医疗区、食品加工区、人员活动区和生活垃圾存放场所,方便医疗废物运送人员及运送工具、车辆的出入;有严密的封闭措施,设专(兼)职人员管理,防止非工作人员接触医疗废物;有防鼠、防蚊蝇、防蟑螂的安全措施;防止渗漏和雨水冲刷;易于清洁和消毒;避免阳光直射;设有明显的医疗废物警示标识和“禁止吸烟、饮食”的警示标识。
污水处理站及垃圾收集暂存用房远离功能用房,并布置在园区夏季主导风下风向。
传染科布置在园区夏季主导风下风向,与其他流线不会形成交叉感染。
传染病门急诊和病房、放射性废水、牙科废水进行单独收集处理。
污水处理池设置于地下一层,地面附属建筑物附近通过绿化分隔。污水处理站排气口通过住院楼顶层进行排放。
七、技术经济指标:
|
综合经济技术指标 |
||
|
一、规划建设净用地面积:(参与容积率和建筑密度计算) |
24587.76 |
㎡ |
|
二、规划总建筑面积: |
115495.72 |
㎡ |
|
(一).地上建筑面积 |
76285.05 |
㎡ |
|
1、地上计入容积率的建筑面积 |
73389.40 |
㎡ |
|
2、地上不计入容积率的建筑面积 |
2895.65 |
㎡ |
|
(二)、地下建筑面积及层数 |
39210.67 |
㎡ |
|
三、容积率 |
3.0 |
|
|
五、建筑密度 |
40.43% |
|
|
六、总绿地面积 |
5703.16 |
㎡ |
|
七、绿地率 |
23.20% |
|
|
八、机动车位(全部地下) |
610 |
辆 |
方案设计团队:
严俊、张曦勇、陈小明、张明洋、宋红军、王艺铭、吴燕金、荀弘、张渝嘉、韦旭秀、林少锦、张智勇、马森鹏、陈思梦、冯庆、黄首专