位于迪拜哈利法塔区的Opus由Zaha Hadid Architects为Omniyat建造,将容纳中东第一家“ME by Melia”酒店。“ME by Melia”酒店由世界领先的酒店经营者之一Melia Hotels International运营,在350个国家拥有39多家酒店,以其先进的设计驱动方法位于全球的文化之都。


地上平面图

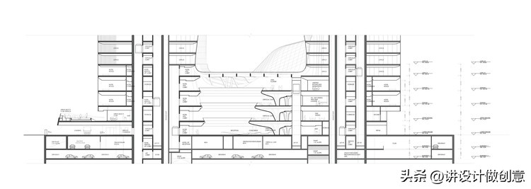
Opus被设计成两个独立的塔楼,它们合并成一个单一的整体——采用立方体的形式。然后,立方体被“雕刻”,形成一个中央空隙,该空隙本身就是建筑物内的一个重要体量——从建筑物的中心提供外部景观。这个八层空隙的自由形状流动性与周围立方体的精确正交几何形成鲜明对比。

两座塔楼由地面上的四层中庭连接,桥连接在地面以上71米处。这座三层高的不对称桥宽38米。与ME Dubai一起,Opus将容纳12家餐厅以及一个屋顶酒吧和56,000平方英尺的办公空间。


部分

“Opus将与Omniyat的愿景保持一致,即将每个项目视为独特的艺术品,”Omniyat执行主席兼首席执行官Mahdi Amjad说。“该设计传达了ZHA作品的非凡创造性品质;表达一种雕塑感性,重塑了固体与虚空、不透明与透明、内部和外部之间的平衡。

“你总是期望对ZHA的设计感到惊讶,但'ME by Melia'迪拜的作品超出了我们的预期。我们很自豪在我们的投资组合中拥有这个惊人的项目,“美利亚国际酒店集团副主席兼首席执行官Gabriel Escarrer在早些时候宣布ME Dubai将位于Opus时解释道。
