造一个心灵居所休憩的空间
构建一种独特的美感和生机
一个随时可自在放松的家
每个家庭成员在这都能找到自己舒适的状态

设计理念上则更多考虑两个人如何共处的方式、如何会友、如何共同培养兴趣爱好?去包容未来更多样的生活方式。
— 设计师 彭洋洋
/ 自然系居心地
独处共融两相宜
Dec.12 / 2022



《本案信息》
项目地址 Address
项目面积 Area
设计机构 Design
全案空间 Designer
软陈空间 Designer
重庆 龙湖紫云台
350㎡
岭众联合 · 田艾灵设计
彭洋洋 · 全案空间主理设计师
杨茜 · 软陈空间设计师

《采编背景》
本案女业主T女士和Z先生结识于校园,毕业后,两人在同一所高校任职。通勤的需要,他们在学校对面的小区买了一间150多平的房,四室两厅,一住就是十五年。
夫妻俩都很喜欢这套房。步行上班解决了交通难题,女业主日常时间喜欢打理花园,练瑜伽看书;先生则鼓捣音响,喝茶,偶尔,两人会找个时间窝一起听音乐、看电影,日子里满满的烟火气。
两年前,夫妻俩看中了缙云山下一处350㎡的别墅。不与长辈同住,在上海读大学的女儿寒暑假回家;在知命之年,他们过上了二人世界,格外恬静安适。对设计不将就的他们,找到室内设计师彭洋洋与软装设计师杨茜,希望可以打造一个“可分可合”的退休居所,作为人生走过半程后的“养老房”。

设计需求

对于这套房的设计,业主夫妇有着自己的一套生活方式,对居家细节有着较高的标准。喜爱一切天然的,有年代感的东西,比如老木头、石材、铁艺、老陶罐、亚麻、羊毛的家居元素,比较排斥现代感强的轻奢元素的软装
设计师将空间内“独处与共融”随时可切换的状态作为整个家的设计灵魂。整个平面设计花了差不多两个月,设计师结合业主夫妇的生活习惯、动线,对房子的期望,实用性等,在各方面都做了很多平衡和努力,最后的定稿是屋主与设计团队共同努力的结果,可以说每个人都贡献了自己的 idea。

意向风格/户型改造

交房后,业主便开始在网上找寻装修灵感,国内外的网站都有,直到看到谢柯老师的作品,直击心门。然后和十二分装饰的硬装设计师彭洋洋、软装设计师杨茜沟通方案。
两位年轻的设计师有非常敏锐专业的素养,能充分把握业主想要的东西,最后的效果呈现有谢柯老师作品的启发,又糅合了业主自己的喜好与风格。氛围上温暖质朴,沉静丰厚。家居元素中加入了老木头、地板、石材、亚麻……,等业主喜爱的天然的、有年代感的物质,没有生产线出来的千篇一律的产品。


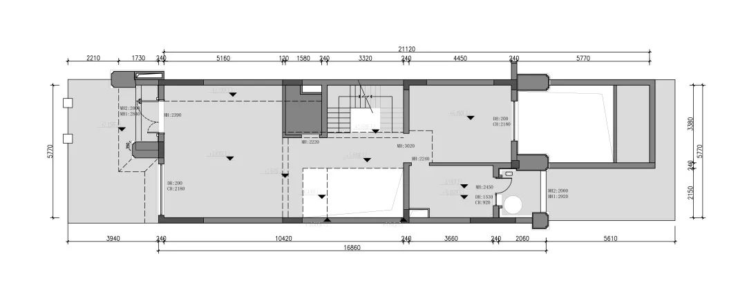
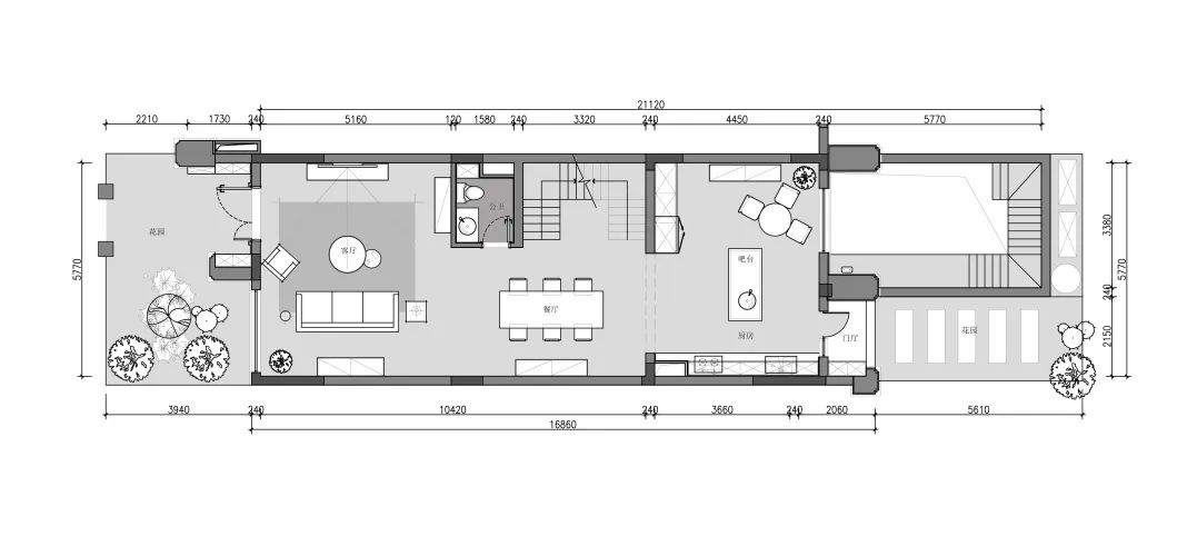
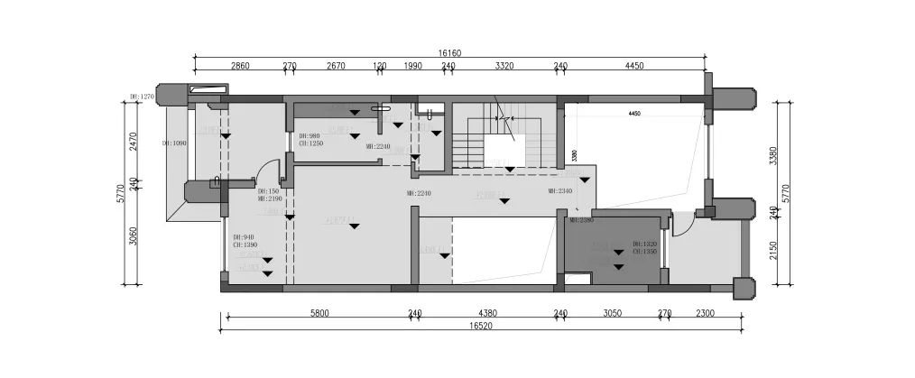
一 楼
一楼主要是客、餐厅、吧台、前后花园

△ 原始户型图

△ 平面布置图
客厅:"开放式布局让空间更开阔"
整个客、餐、厨是一楼的主空间,开放式的布局让空间的开阔感很棒。客厅布局为主沙发+单沙发+皮墩+边柜的组合形式,宽大的牛皮沙发坐上去不软不硬的,是真的舒服,而且日常清洁护理也很方便。



平日里夫妻俩喜欢待在客厅一起看看书、聊聊天,所以设计师将此处的功能性、舒适度都放到最大。


茶几选用深色大理石台面带年轮雕刻,空气中裹挟着旧时光的味道。二手实木中古椅搭配的边柜,选用老船木再造制作,柜身的孔眼细节仿佛述说了它与风浪的故事。
画艺和装饰椅柜形成形体互补的组合,致敬KellyHoppen的设计,追求色调和谐不张扬,元素质感丰富,造型有序的多变。



餐厨空间
好看、大气又实用的中西厨结合的厨房满足了T女士作为“家庭煮妇”的心愿,在这样大尺度的空间里既可烹饪,又可喝咖啡看书,制作喜欢的餐食,对着景色怡然的后花园,心情别提有多畅快了。
餐厨空间的材质以柚木为主,陪以洞石岩板所选材料质地和色调温润。厨房的木材色调较为深,在画艺布帘配色以抽象浅淡色调,让空间免去沉闷感,来形成丰富的层次质感。



厨房中间设立了一个小餐桌,两个人吃饭的时候可以直接在小餐桌上就餐,简单随意。


用餐区
考虑到整个餐厅空间的结构比例,设计师帮业主挑选了自然木边的超长餐桌,搭配藤编中古餐椅增加氛围感,营造出安宁温暖的用餐氛围,家里每有聚会,这里便是共享愉悦的烟火地。



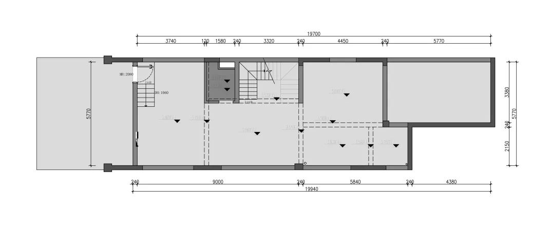
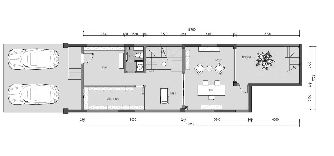
负 一 楼
这层楼主要有茶室、健身房

△ 原始户型图

△ 平面布置图
玄关处



设计师将负一楼把原本需要室内上台阶的部分移到车库,把一楼的部分花园挖下去一部分做采光,让屋主即使在休闲厅、茶室也能享受到花园的景观。
老木料的茶桌和原生木料壁柜体相得益彰。有时遇到烦心事,夫妇二人会选择在这里焚香煮茶,静心幽思,让身心放松。



茶室/休闲厅
男女主人都不喜交际应酬,喜宅家爱安静。宅家的大部分他们是各干各的,但几乎每天都有这样的时刻,他们会坐在一起,或听听音乐,喝几口茶,或新*载下**的一部电影,或聊聊工作上的事情,互相给与意见,自然自在自得,这里便是这么一处居心地。
西班牙秋黄石铺好地面后,T女士喜欢呆坐在这里,越发的觉得这些石头耐看,每一块都有不一样的颜色,纹理和光影,每一处都带有慢生活的意境。



设计师将花园做了下沉式处理,绿意引景入室,赏心悦目。闲暇时间与三五好友谈笑风生,或者是家庭聚会,都能让相聚时光变得充盈而富足。

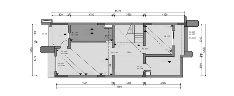
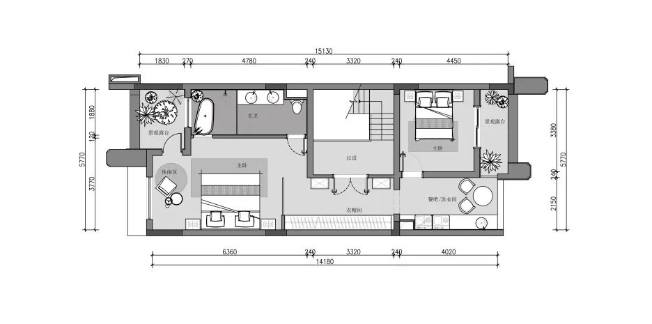
二 楼
二楼是业主女儿的套房,以及男业主常呆的书房。

△ 原始户型图

△ 平面布置图
女儿房
业主女儿已经是外出求学的大学生了,对于房间设计的审美,有自己的一套想法,虽然房间布置风格和其他空间显得有些“格格不入”,不过确实另一种美的姿态的呈现,并不影响整体氛围。
她的房间里是一片明亮轻快的橡木色,再配上一些ins风格的软装搭配,像是浅色松果灯和米色窗帘,还有一些弧形门廊的处理,可以说很合她心意。


书房
书房是个可开可合的空间,男主人偶尔在家也需要独处的空间来处理事务,这里便是这样一块清净之地。
书吧区域以业主喜欢所搜集的画作筛选,为适合整体空间重新组合搭配利用,单人沙发舒适且靠窗边,便于与楼下家人间的互动交流。


"一扇推窗增加日常互动"
因为餐厅的上方便是书房,暖心的设计师将一楼餐厅上部挑空,在书房与餐厅的衔接处开了一扇推窗,女主人平时在厨房做好了饭菜,就可以直接通过推窗让还在书房的先生下楼吃饭,互动满分,别提有多方便了!


三 楼
三楼空间分为大主卧,小主卧和早餐吧的形式。

△ 原始户型图

△ 平面布置图
大主卧进门以若隐若现的隔断进入,整体空间挑高且宽敞明亮,顶部的仿中式形的斜屋顶,引景入室。
家具色调以简介沉稳色调为主,材质延续一楼所用,在平调的基础上装饰吊灯呼应若隐若现的隔断,形体以薄纱形式的中式吊灯,配以舒适感实用好打理的皮质软包床,床头以边几加储物柜的不对称形式搭配。让空间在简洁的基础上,形式多样化。


次卧室为男主人休息用,软装选样造型收边利落为主,体现体现男主理工科的利落感实用派。


"双主卧"不打扰 / T女士的房间
T女士的日常工作时间比较固定,而身为技术人员的男主人常常很晚回家,因为怕打扰到浅睡眠的妻子,夫妻俩与设计师在综合考量下设计了“双主卧”



"伴着清晨的阳光一起早餐"
女主人有早起做早餐的习惯,设计师独具巧思,在两个卧室之间设立了早餐吧。那么唤醒夫妻俩清晨的将不再是声音而是热腾腾的早餐,窗户外的树木和那些习以为常却足够温暖两个人内心的小小互动。
夫妻俩时常感叹,在家中最幸福的事伴着阳光吃早餐,在疲倦累了的时候在花园上下走走,或者眺望远山,从每个房间看出去都都能见到绿色,在这个家可以感觉到慢生活的各种意境,轻松又解压!


《结语》
“ 装修是个冗长而繁复的系统工程,每个工地几乎都难以避免。远远不是几张图纸可以包罗的,现场施工时不时遇到各种棘手问题。
男主人是典型的理工男,整个装修过程中需要解决的技术难题都交给他。比如进口的入墙式花洒,他吃透英文安装说明,再教会师傅安装。比如顶楼的不规则坡顶,他现场和木工师傅讨论出方案后才实现了图纸的造型,比如锯柜子安装水龙头、自制喷淋等等。
与Z先生相比,T女士更擅长跟人打交道,所以负责外联设计师、项目经理、工人师傅、商家等,跟进度,买材料。夫妻二人全程并肩作战,各尽所能,这所房子是他俩的“另一个孩子”,花了很多心力来造就,最后终于将心中的理想变成现实,这种幸福感,不言而喻。

Q&A
设计微访谈
空间设计师 · 彭洋洋
本案女业主 · T女士

Q1 : 这套案例是养老房设计,请问你们在方案阶段考虑了哪些点呢?
设计师 彭洋洋:
“嗯,本案为养老房案子,对于这类群体的客户他们很清楚自己需要的生活方式,我们发现年纪越大的屋主,对物欲的需求反而会越弱,尤其在子女有了个人生活的情况下。本案业主都还尚处未退休阶段,有足够的自我能力,解决现有生活问题,其实不会考虑太多的功能性(比如养老设施),反而,他们倾向于保持年轻的心态,去享受两人世界,找寻更舒适的居住环境”。
”我们通过方案的数次沟通设计与业主达成统一,所用到的元素,在侘寂的基础上融合了中式元素和摩洛哥元素增加空间的丰富性和人文情怀。设计理念上也是更多考虑两个人如何共处的方式、如何会友、如何共同培养兴趣爱好?去包容未来更多样的生活方式,不过也充分注意为以后预留下可以增加辅助设施的地方。

Q2: 对于这套房而言,你们最喜欢的有哪些设计亮点?
T女士:
“要说家里喜欢的地方很多,这个家里一半是功能,一半是绿意…,省去了没有无意义的装饰,每一处造型都为我们需要的功能和情绪服务,在独处与共融中,让我们可以安稳舒适的居住到老。“
“最喜欢的地方,应该就是书房衔接餐厅的地方开的一扇上推窗吧,在那里我可以随时和先生实现互动。在这个过程中相互是有交流有情绪互动的,远比敲门更有温度。我们超级喜欢!”