大到沟通前期换过5轮的平面设计图,小到一个开关的留座,设计师都无不详尽地陈述了出来。这篇篇幅长达四千字140张图的全屋记,只要耐心阅读完毕,就能感受到里面满满的诚意和设计师的巧思妙想,处处为业主担当、考虑的心。
厨房、卫生间,甚至是卧室,都是设计师为业主量身打造的,拆墙、改格局,大动刀后终于成就了这套完全符合实际需求的三代同居。
堪称小户型做三房住三代人的完美典范。厨房有中岛台,浴室四分离,两房改成了三房,儿童房老人居都能相互互动,整屋动线完美,做饭的时候还能看小孩的设计,完美诠释了我们家的设计改变家人相处方式这一居家理念。

| 一兜糖家居APP认证设计师@如壹設計工作室慈猛
全屋记《两房改三房,还多出了一个厨房》

本案的业主是位法语老师,两夫妻还有一个在上幼儿园的可爱女儿,父母每年都会过来住上几个月。在设计之初,业主就提出了几个非常明确的需求:
① 原来的两房改为三房,一间主卧,一间儿童房,一间老人房;② 厨房要有一个大大的操作台面,方便老人家做一些饺子、盒子、面条之类的面食;③ 家里老人小孩都喜欢看电视,要考虑到他们这一块的需求,还有小孩以后电子钢琴的摆放;④ 洗衣机要靠近淋浴房,这样方便洗完澡顺便就把衣服洗了,并且要预留一个儿童洗衣机的位置;
⑤ 卫生间最好四分离,还要有一个小孩洗澡的浴缸;⑥ 床要全部采用榻榻米形式;⑦ 所有的电器及设备要合理的考虑进去(各种电器和设备共17种);


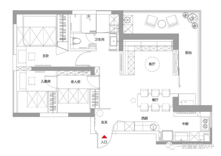
房子原始建筑面积89㎡,其中阳台面积就占据了14㎡,剩余可利用空间只有75㎡(红色区域)。

▲原始现状图

结合业主的要求,原始建筑存在以下主要问题及难点:① 业主希望把原有的两房改为三房,但原有建筑多是承重墙,布局上没有办法做大的改动。

② 厨房面积太小:原始厨房长度只有3170mm,宽度1850mm,要放下冰箱,洗碗机,蒸烤箱,微波炉,集成灶等电器,还要留出足够的操作台面,这么小的空间很难能实现!

③ 卫生间面积太小:原始卫生间长度2125mm,宽度1920mm。需要布置洗手盆,两个洗衣机,淋浴房,儿童浴缸,马桶,还要做四分离形式,这里面积也是不够的!

④ 在这有限的空间内,需要把17种不同的电器及设备完整的融入到空间中!

平面规划图:
针对上述存在的问题
① 将原有卫生间面积扩大,在不影响使用功能的情况下缩小主卧面积;
② 原有次卧通过新建隔墙划分为两个独立房间。

▲功能分区图

▲平面图演变:耗费时间最多的是前期平面方案阶段,前后讨论了5轮才最终确定我和业主都满意的方案。

▲平面图:最终确定的平面图方案


进门处用木格栅隔出了一个入户玄关的位置,方便坐下来换鞋,脱下外套,也可以随手挂到左手边墙上的挂钩上。

透过木格栅可以隐约看到屋内场景。

在进门的右手边是收纳区,可以放置雨伞鞋套等小物品,中间留出一块开放区放置钥匙。

玄关处的收纳柜为了避免直角过于尖锐,在拐角处做了斜边,入户可视门禁布置在这个位置,方便查看!

入户玄关地面用了六边形瓷砖,耐脏方便打理。

六边形瓷砖从玄关一直延伸到厨房区域,并过渡到满铺木地板的客厅。


在最初的设计阶段,业主及家人对建筑师玛格丽特设计的《法兰克福厨房》中的绿色调橱柜情有独钟,所以这次的色调灵感就是源于此。
在设计厨房的布局时候,因为原先的厨房太小,根本无法容纳业主要求的那么多电器设备。所以为了解决这个问题,将厨房分割为中厨区域和西厨区域。

厨房的外侧(靠近餐厅)为西厨区域, 1.5米的操作台面上面预留了两个插座可以放置一些咖啡机等小电器。

同时布置了蒸烤箱,微波炉。

考虑到微波炉使用频繁,并且会热一些带有汤汁的食物,所以微波炉设置在上方,不用弯腰就可以使用,烤箱不常用,放在了下方。

在西厨台面上方设计的开关控制着微波炉及烤箱!

储物柜上方(微波炉上方)是强电箱的位置,可以根据需要增加储物隔板。下方柜体用来放置鞋等物品。

西厨的区域设计了一个洗菜盆,下方是净水机的位置,剩余的地柜做了三个储物抽屉。

吊柜下方装有暗藏灯管,保证台面的照明,吊柜上方做了磨砂玻璃,可以展示一些精美的厨房用品,另外磨砂玻璃更加通透,会让空间感觉大一些!

冰箱位于中西厨的中间位置,方便两边的使用!

中厨布置了集成灶,洗碗机,冰箱和洗菜盆,并做了一个300mm深的台面用来放置电饭煲等电器!

这里的吊柜因为要放置一些非展示类的厨房用品,所以柜门做成了封闭式,吊柜下方也暗藏了LED灯管(厨房吊柜及暗藏灯管已经成为了我项目的标配,确实实用)

洗菜盆左下方是洗碗机,这里因为电器太多,设计的时候毫米必争,尺寸卡的很紧!

洗菜盆下方是垃圾处理器和加压泵的位置。

集成灶省去了抽油烟机的位置。

柴米油盐放在触手可得的地方。

这个300mm深的台面让厨房形成了U型布局,虽然不深,但很实用,下方是暖气片的位置。

厨房全部采用开放式布局,从中厨也能看到餐厅及客厅!即使在做饭也不耽搁家人之间的互动。

厨房的橱柜都是业主自购都芳水性漆,调好色后让家具厂喷的色彩!

▲西厨上方是新风主机的位置

▲西厨上方是新风主机的位置

▲从餐厅看向厨房。

餐厅是厨房的延伸,考虑到老人爱看电视并且经常做面食(面食花费时间都比较长),我就想可以让老人一边做饭一边看电视,于是就设计了一个大理石的餐桌,既是餐桌又是操作台。

2.2米长的台面足够承担餐桌兼操作台的任务!

老人在餐桌操作的时候可以照顾到小孙女在客厅的一举一动!

也可以一边包着饺子一边看着电视。

餐桌下方有收纳的空间,可以放上几本书或者其他小件。

平日里坐在这里喝喝茶看看书也是不错的选择。

厨房餐厅通过两种不同的材质来区分,六边形地砖和实木地板形成了自然的过度。


客厅是方案阶段和业主讨论最耗费时间的地方,两个人都有不同的想法,最终这个方案是双方都认可的方案,市面上找不到和现场合适的沙发,于是设计好图纸让家具厂订做,这样就将客厅的空间完全利用起来,L型的沙发可以满足一家几口人围坐的需求。

沙发下面是开放式的储物格,小女孩平时的玩具可以随手收纳起来。

基本整个沙发下面都是小女孩的玩具。

客厅没有放置茶几,整个沙发的围合区域都可以作为小女孩的游戏区域。

客厅布置了一个电视机还有一个电动投影幕,晚上一家人可以围坐在这里享受休闲时光。

▲电动投影幕

▲从客厅看餐厅和厨房

▲客厅里采用长条形的壁挂暖气片

▲在沙发靠背后面还有一路暖气,两路暖气足以保证客餐厅的取暖

沙发背景墙上方做了储物的吊柜,一部分封闭一部分开放;沙发靠背上面也可以放置盆栽,并且预留了插座,手机可以放这里充电。

沙发的侧面预留的开关插座,方便控制餐厅吊灯。

▲定制的灰色沙发垫

▲电视柜的一角

▲两个卧室之间的位置,做了一个展示柜

▲展示柜是妈妈为女儿日后的手工作品展示专门留的空间!


▲卫生间一共5个区域,采用四分离形式。

▲站在走道看卫生间

▲卫生间的最外侧是独立的洗手台区域

台面上方做了通高的镜柜,用来存放备用的洗漱用品,镜柜下方暗藏灯管。

▲地柜离地30mm,避免地面潮气对地柜的影响!

▲嵌入式水龙头

洗手台对面是独立的马桶空间,为了方便打扫卫生,采用了壁挂式马桶,采暖用的壁挂式小背篓暖气片。

▲卫生间不靠窗,通过换气扇保证卫生间的空气清新

洗手台往里面是洗衣区,根据业主的设计需求我们布置了一个大洗衣机和一个小洗衣机。

▲通过一个简单的拉帘可以将两个区域分割开

▲洗衣区上方的吊柜用来放置卫生间常用的生活用品

▲洗衣区台面预留插座,洗完澡可以很方便的使用吹风机或其他小电器

▲很精致的水龙头

▲洗衣区对面就是淋浴房和浴缸区域

▲用石材为小朋友砌了一个1.1米X0.7米的迷你浴缸!其实大人用也够的

▲嵌入式花洒&水阀

▲淋浴房和马桶区域中间用磨砂玻璃隔开,保证马桶区域的采光

这张卫生间的施工图可以看清楚淋浴房和马桶区域的位置关系。


▲主卧做了一个2.5米长、2米宽的榻榻米

▲榻榻米靠内侧储物区采用了这种气撑上翻门

▲榻榻米外侧则用抽屉形式,将榻榻米空间最大化利用

业主平时会在家里备课,所以在靠窗的位置做了通长的书桌,可以坐在椅子上看书备课。

也可以坐在榻榻米上备课。

角落预留插座方便使用香薰机或加湿器等小电器使用。

主卧的书桌是一桌两用。

当书桌掀开后可以当梳妆台使用,里面安装了镜子和灯带。

原先两个卧室之间有一扇窗户,改为了书架的形式,每个房间各用一半。书架上方预留了插座和网络的位置,可以接无线路由器。

壁挂式暖气片布置在靠近书桌的位置~

业主偏爱衣柜推拉门的形式~

▲衣柜侧面还可以挂一些外套

▲房间里的新风口

老人房与儿童房原本是一个房间,中间通过衣柜和一扇门隔成了两个独立的房间。

为了保证老人房的采光,衣柜中间做了一个玻璃窗,两个房间的门采用磨砂玻璃门,保证采光和隐私!

小朋友通过这个玻璃窗在和老人做着互动。

老人房靠墙的一侧做了书架,可以随时取自己喜欢看的书来读~

老人们也可以躺在榻榻米上看喜欢的电视~

电视机和暖气片都融合到书架里~

书架上摆放着老人喜爱的绿植~

新风系统保证这个封闭房间的通风

2米X1.5米的榻榻米,内部的储物功能同主卧一样,主要分布在中央和边侧。

中间玻璃窗预留了插座,可以使用香薰机或给手机充电~

从老人房看向儿童房~

儿童房的榻榻米与说桌连在一起。因为现在的年龄还太小所以暂时还没有一个人睡,不过小朋友很可爱,在拍照的时候,也给我们介绍“这是宝宝的房间”^_^

榻榻米尾部做了挡板,这样小孩睡觉会更有安全感~

儿童房的书桌也是可以一桌两用!

掀开后是放电子钢琴的位置!

里面也预留了插座,可以供电子琴或者笔记本电脑使用。

▲儿童房的小书架

儿童房的衣柜充当隔墙的作用,下面剩余的空间做了三个小抽屉~

儿童房的榻榻米储物同主卧、老人房一样,内部采用翻盖式,外侧采用抽屉式。

业主选的宜家拉手很漂亮。


阳台设计是颇有点小遗憾的地方~因为原本是计划做成玻璃阳光房,天花用石膏板吊顶封上,这样就不会看到要经历风吹日晒脏脏的玻璃顶棚!结果在阳光房做好了就要吊顶的时候,物业突然通知不能建阳光房,所以吊顶这个事情也就搁置了。

阳台一侧的柜子里隐藏了燃气热水器

上柜采用百叶门,保证燃气热水器的通风~

下柜隐藏了暖气的控制阀~

L型的阳台另一侧做了储物柜和洗手盆,这里属于晾衣区!

储物柜内侧为吸尘器等打扫用的物品留足了收纳空间

▲储物柜的外侧

L型的阳台非常大,除了晾晒衣服,还可以养养花。

阳台外就是优美的山景(拍摄当天是阴天,找了之前拍的一张晴天照片)