看完她家简约干练的亲子宅设计,日式风在我心中再也不能排第一了!
懂得生活的人,在装修设计时,也会考虑到家庭成员自己的交互性。 很多现代家庭,都比较青睐于 「亲子宅」的设计,把房子打造成一个舒适惬意、且能轻松交流互动的空间。
本期要为大家分享的,就是一套很有代表性的「亲子宅」案例。 和大部分「亲子宅」五颜六色的配色不同,本案在色彩和软装的配置上较为克制,整体感耐看又舒服! 下面,就让我们一起参观下女主的新家吧!

▲装修实拍图
//设计亮点//
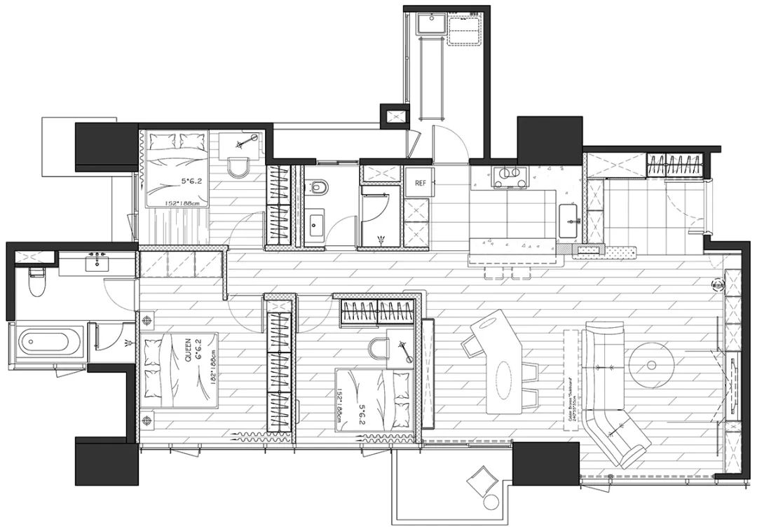
屋主是四口之家,夫妻俩有一儿一女,生活幸福美满。他们买的这套房子的套内面积约92㎡,是三居室的户型,格局较为方正。重点改造设计如下:
①入户设置独立玄关、定制储物柜,在玄关和客厅之间安装秋千,以提升趣味性。
②客厅定制满墙收纳柜,并将电视机隐藏在柜内,效果高级大气又不失实用性。
③做开放式客餐厨布局,餐厅融入书房的功能、把阳台纳入客厅,让公共空间显得开阔又通透。

▲装修平面图
整屋以白色和木色为基调,融入了丰富的生活功能;室内没有过多的装饰,以实用性和收纳为主,四口之家住起来非常舒服。

▲装修实拍图
玄关
设计师在入户规划了独立玄关,并沿着两侧墙面,定制了收纳柜:
①入户门的右侧,做了隐藏式收纳柜,用来收纳生活杂物。
②入户门的对面是鞋柜,其底部悬空,左侧延伸出穿鞋柜,美观又实用。

▲玄关实拍图
鞋柜左半部分很有特色,设计师按照常规鞋子的尺寸,把鞋柜分成一个个小格子,每个格子刚好放一双鞋子。 柜门采用了冲孔铝板,不仅效果高级,而且还能保证透气性。

▲玄关实拍图
玄关和客厅之间的横梁上,安装了 吊环秋千 ,孩子很喜欢坐在上面玩耍。
秋千采用了可拆卸式的活动拉环,安全性很高;拆卸下秋千后,可以搭配吊环来使用,屋主在家就能随时健身。

▲玄关实拍图
客厅
一进客厅,便被室内温润舒缓的氛围深深吸引住了。白色的墙面,搭配木质家具和暖木色的地板,即使没有过多的装饰,也让人感觉非常喜欢。
设计师利用电视背景墙,规划了 客厅收纳区 :
①底部是一排20公分高的抽屉,用来收纳遥控器、说明书、五金工具等小物件。
②上方做了悬浮式大柜子,储物空间很充足;电视机也隐藏在其中,视觉感简约清爽。
③柜子和抽屉中间,留出25公分高的空间,用来安排插座、路由器、游戏机等配件。

▲客厅实拍图
米白色的沙发紧挨餐厅的矮柜摆放,并取消客厅茶几的配置,把浅咖色的毛绒地毯铺在沙发前面,为孩子们留出更多活动空间。
值得一提的是,客厅窗户上安装了竖款百叶帘,不仅效果干净利落,还能随意调节进光量,让自然光成为家居装饰的一部分。

▲客厅实拍图
客厅和餐厅的成品家具,都是轻体款式的,可以轻松挪动位置。
每逢周末,男主人都会在客餐厅“搭建”一个小型篮球场,他把沙发、矮柜、餐桌挪到一边,将迷你篮球架布置在室内,和孩子们一起挥洒汗水,享受运动的乐趣。

▲客厅实拍图
餐厅
餐厅打破了传统单一的布局,融入了书房的相关元素,功能性更强。
设计师为屋主定制了一张大理石转角餐桌,在有限的空间里,实现更大的用餐空间。
除了用餐以外,餐桌也代替了办公桌的功能,方便大人办公和孩子学习。

▲餐厅实拍图
书柜占据了餐厅的一整面墙,厚度约35公分,比常规的柜子要薄一些,视觉感轻盈又大气。
柜体“有藏有露”,兼顾书籍收纳、手办展示和杂物收纳等多种功能,也是女主人最喜欢的屋内设计之一。

▲餐厅实拍图
厨房
厨房是L型开放式布局,不仅缓解了暗厨无窗的缺陷,同时也提升了使用空间。
侧面墙做了嵌入式收纳处理,除了储物柜外,还预留了烤箱、微波炉和冰箱的位置,将厨房杂物和电器一网打尽。

▲厨房实拍图
设计师用置物板代替吊柜,用来收纳调味料和常用的厨具,拿取一目了然。

▲厨房实拍图
厨房和餐厅之间,延伸出吧台做隔断,扩充了操作台面的空间。
工作日早上时间比较匆忙,屋主一家人都是在吧台用餐的,可以节约吃饭时间。

▲厨房实拍图
主卧
主卧是屋主夫妻的房间,背景墙安装女主的要求,刷了雾蓝色的乳胶漆,营造出静谧舒适的休憩氛围。
卧室的南侧,是一整面大落地窗,采光和视野都非常棒,坐在床上就能俯瞰城市美景,也太幸福了吧!

▲主卧实拍图
衣柜规划在床尾处,占据了一整面墙的空间,轻松收纳夫妻俩的衣物和床品。
大床的右侧还有一部分空间,设计师在这里定制了 卡座矮柜 ,女主很喜欢坐在这里看书、小憩。

▲主卧实拍图
主卫入口安装了内开式室内门,不会影响到主卧的走道空间。

▲主卧实拍图
女孩房
两间次卧分别做成了女孩房和男孩房,让两个小朋友都能拥有属于自己的独立成长空间。
女孩房以奶油色为主色调,用深浅不同的乳胶漆做了拼色处理,营造出满满的梦幻气息。

▲女孩房实拍图
设计师取消了传统的框架床,用20公分高的地台代替,并直接将床垫放在地台之上,不仅从视觉上拉伸了空间感,也丰富了室内的储物空间。

▲女孩房实拍图
男孩房
男孩房选择了小朋友喜欢的深蓝色,寄予了孩子对星辰大海的向往。设计师在墙面上,注入了圆弧、曲线等元素,让原本简约普通的空间,多了一份童趣无穷的活泼感。

▲男孩房实拍图
室内做了大量的留白空间,方便孩子玩积木、做游戏,未来也可以根据需求增设其它家具。

▲男孩房实拍图
【本期总结】
回顾本案,整屋设计简约时尚,设计师以屋主一家人的相处细节为出发点,打造出一个有利于家庭成员彼此交流的舒适空间,让房子成为生活的避风港。如果你也喜欢本期内容,欢迎点赞收藏!
想了解更多精彩内容,快来关注甜茶的极简生活