直升机机载电子设备AP155P自驾计算机虚拟化仪表试验器设计三
编写:贺军

1、概述
"机载电子设备AP 155P()()()自驾计算机虚拟化仪表试验器"是用虚拟化仪表控制方式设计的检测和试验"AP 155P()()()自驾计算机"的试验装置,本试验器适用于版本号为418-00452-105的AP 155P自驾计算机。
AP 155P自驾计算机是专门为SA332直升机开发的三轴自动飞行155型的主要部件。它从来自各种传感器(地平仪,陀螺罗盘同步发射机,气压和空速模块,H.S.I. 等)的信号中产生引导命令。 它们被传送到伺服控制。
每个轴通过两个独立和相互监测的通道控制,具有存储的姿态或航向参考,从而使信号得以传递。
自驾计算机使直升机能够保持在飞行员选择的参考值范围内的滚动、俯仰和航向,或仅抑制轻微运动(自动飞行阻尼器功能)。
它使透明驾驶和超过一定的速度保持高度或速度通过俯仰控制,坐标转弯通过偏航控制和保持选定的航向通过滚动控制。
它通过舵机单元驱动飞行控制,其中包括:
-对于俯仰和滚动,每个轴的双电输入伺服控制(系列控制)和一个人工感觉负载修剪液压千斤顶,由寻呼阀(平行控制:修剪)纳入输入。
对于偏航,双电输入开环伺服控制(双电输入对应于2个单独的伺服绕组)。用于透明引航的微开关链路串联在控制和液压单元之间的连杆上。
计算机包括自动内置测试电路,它告诉飞行员哪种功能不起作用。
"机载电子设备AP 155P()()()自驾计算机虚拟化仪表试验器"由于测试和控制项目多,设计中分为自动检测"ATE"和手动检测2种方式,自动检测时是启动"自动检测功能"就自动的按照预定的程序自动检测,检测过程中只显示运行步骤和检测项目,一直到检测结束时给出检测报告,并提供检测结果数据可供打印使用。
人工检测是采用分项目手动检测,检测不同的功能在虚拟化仪表显示屏幕显示不同的虚拟仪表结构,维修人员可分屏显示检测不同的项目,便于判别准确的故障点位。
本虚拟化仪表试验器设计依据文件:
本"机载电子设备AP 155P()()()自驾计算机虚拟化仪表试验器"设计检测试验AP 155P自驾计算机的执行标准依据为"sfim"公司的"22-29-11-2""AP 155P()()()维护手册"。
"机载电子设备AP 155P()()()自驾计算机虚拟化仪表试验器""测试程序-3"虚拟化仪表显示屏幕如下图所示。

2、AP 155P自驾计算机简介概述:
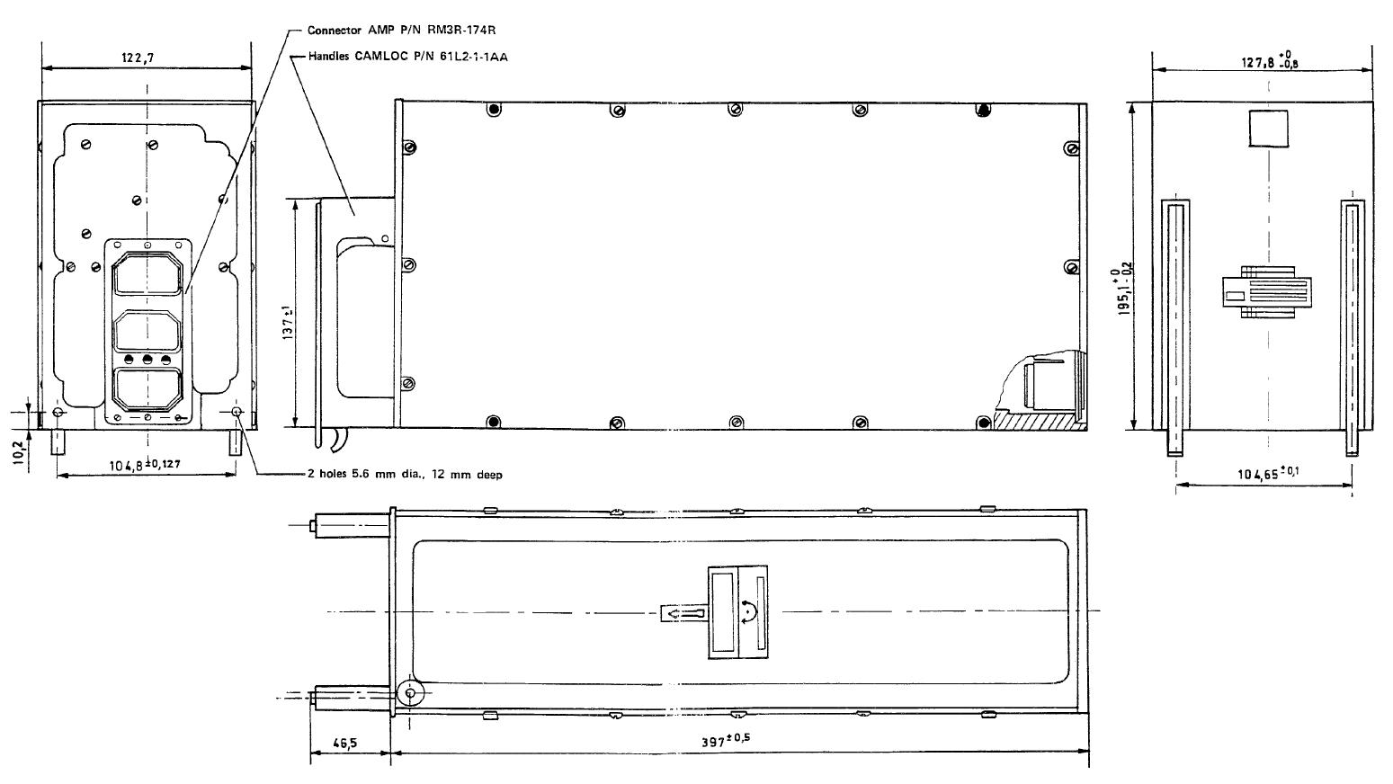
"AP 155P自驾计算机"外形如下图所示(图1)。

2.1、工作范围:
A、温度范围:
- 操作温度范围:-40℃ 到 +70℃。
- 性能温度范围:-40℃ 到 +70℃。
B、高度范围:
- 0 到 20.000英尺。
C、震动范围:
- 正弦振动根据标准AIR 7304
- 绝对性ZB和DO160类别N定义的包络和振幅。
2.2、安装:
A、机械装置:
- 计算机应在前述规定的环境条件下安装。
- 它安装在直升机前方头部的支架上,如图所示,因此标签上与上表面结合的箭头朝向直升机飞行的方向。

B、电气安装
- AP 155P自驾计算机通过3个插头PH(40针)、PM(67针)和PB(67针)连接到直升机布线,构成位于后面板上的连接器。
- 这个连接器插入安装单元的支架上的插座。
安装位置

PH40针插头接线图:

PM67针插头接线图:

PB67针插头接线图:

2.3、技术特点:
(1)机械特性(如图所示):

整体尺寸:
宽度: 127.8 mm
高度: 195.1 mm
深度: 444 mm
重量: 大约8 kg
(2)电气特性
电源供应 消耗电流
115 V 400Hz 网络 1 : 小于 35 W
115 V 400Hz 网络 2 : 小于 50 W
26 V 400Hz 网络 1 : 小于 3 W
26 V 400Hz 网络 2 : 小于 15 W
28 V DC 基本的 1 : 小于 2 A
28 V DC 第2路 1 : 小于 2 A
(3)技术特点
- 带有姿态的引导和存储标题引用。
- 自动修剪与螺距和滚动阈值。
- 通过驱动踏板在偏航中进行透明引导。
- 透明的驾驶在俯仰和滚动通过人工操作,没有失去参考,但与自动互动。
- 改变姿态的操作-修剪,操作-操作杆脱离。
- 速度大于110公里/小时的自动转弯协调。
- 气压或空速稳定的螺距。
- 内置安全系统的电路和自动修剪监测。
- 从控制点触发的自动定性测试过程。
- 串行控制的整体机械提供了高效、稳定的试验,并保证在故障时手动覆盖,在3秒内最大。
- 伺服放大器在一秒故障(一个通道接合)后饱和获得的每个通道的权限保证手动覆盖在最大1.5秒内。
- 最大纵倾执行器工作时间:
俯仰每秒2.3%的控制。
滚动每秒3.5%的控制。
2.4、AP 155P自驾计算机结构概述(如图所示):

A、外部描述
计算机外部采用矩形形状的单元,两个CAMLOC类型的手柄(1)连接到前窗格用于安装,并将其锁定到其支架上,与前窗格粘合:
- 装饰板(2)。
- 名称牌(3)。
- 修改板(4)。
标签粘在上表面,指示直升机的前进方向和速率陀螺偏航轴。
后窗格具有连接到其他安装设备的连接器,由3个连接器组成,从上到下:
- 40针接头PH(5)。
- 67针接头PM(6)。
- 67针接头PB(7)。
电气安装部分显示了连接器引脚上电压和信号的类型和方向。
B、内部描述
两个可移动的侧板(9),每个面板由16个螺钉连接,一侧提供对各种插件卡的访问,另一侧提供对互连电路的访问。
插件卡分两级设置,它们在套管(10)和隔板(11)的轨道上滑动,它们的连接符号标记在分区(11)上。 它们是:
- PL2(12):电源1(ALS)
- PL3(13):滚动同步通道1延迟(ROLL同步1)。
- PL4(14):滚动稳定通道1节(ROLL稳定1)。
- PL5(15):俯仰同步通道1延迟(P ITCH同步通道1)。
- PL6(16):俯仰稳定通道1档(俯仰稳定1)。
- PL7(17):YAW 1同步延迟(YAW 1)。
- PL8(18):YAW 2同步延迟(YAW 2)。
- PL9(19):偏航引航器(YAW PILOTING)。
- PL10(20):俯仰、偏航、横滚匹配延迟(俯仰、横滚、航向匹配)。
- PL11(21):俯仰、横滚、偏航通道1伺服控制放大器(PITCH ROLL YAW 放大器)。
- PL12(22):滚动自动修剪控制(ROLL TRIM)。
- PL13(23):俯仰自动修剪控制(PITCH TRIM)。
- PL14(24):TRIM监控(TRIM*控器监**)。
- PL15(25):俯仰辊偏航电路监测器。
- PL16(26):开关卡(开关)。
- PL17(27):接合逻辑延迟(ENGEMENT LOGIC)。
- PL18(28):电源2(ALS)。
- PL19(29):航向阻尼器延迟( YAW DAMPER )。
- PL20 (30):俯仰辊偏航通道2伺服控制放大器(PITCH ROLL YAW AMPLI FERS)。
- PL21(31):横滚稳定通道2(横滚稳定2)。
- PL22(32):滚动同步通道2延迟(ROLL同步)。
- PL23(33):俯仰同步通道2(平同步同步通道2)。
- PL24(34):俯仰稳定通道2节(俯仰稳定2)。
- PL25(35):一般步骤修整预控制延迟(TRIM预控制)。
这些卡的连接器插入安装在互连电路刚性侧部分(36)上的插座,该电路包括一个刚性后部(37),支持开关电路的各个部件。 并连接到连接器PH(5)、PM(6)和两个刚性部分通过柔性电路(38)连接在一起。
在套管的下部和后部是:
- 供电变压器T1(39)和T2(40)。
- 支撑偏航率陀螺仪(41)和横向加速度计(42)的单元。
- 通过连接器P26(43)连接到互连电路。
- 电源滤波器(44)、调节稳压二极管MPZ1和MPZ2(45)
- 热敏电阻RH1和RH2连接在隔板(11)下。
3、AP 155P自驾计算机虚拟化仪表试验和故障部件分析:
3.1、概述
本节涵盖通过自动化程序进行的自驾计算机操作测试和监测。
- 这些测试可以确定要从自驾计算机中移除的设备项目的状况,或者在更换有故障的元件后检查正确的装配。
3.2、测试和设置操作条件
测试应按照给定的顺序进行。 如果在以前的操作中已经可以检测到,则特定故障的原因将不会出现在图表中。 除非另有规定,测试和设置是在正常操作条件下进行的。
A、环境条件:
在760毫米汞柱的压力下,在25°C的温度下,在相对湿度为85%的条件下。
B、位置:
测试和设置在正常操作位置与单元一起执行。
4、测试AP155P自驾计算机虚拟化仪表试验和和故障隔离:
4.1、所需的设备和产品.:
(1)工具
- 控制盒单元SFIM P/N418-00453-100或其模拟器。
- 高阻表。
- AP 155P()()()自驾计算机虚拟化仪表试验器。
(包含:电压表、示波器、测高仪、温度计等虚拟仪表)
- 温度传感器。
- 飞行模拟器。
- 耦合模拟器。
- 巴兰(Baran)模拟器。
- 同步信号模拟器26V 400Hz与115V 400Hz。
- 电阻1K ohm +/- 1% 1/4W伺服阀模拟。
- 电阻15K ohm+/- 1/4 W比较器负载.。
- 电阻56欧姆+/- 5% 7W蜂鸣器阀门模拟。
- 旋转台WURTZE l度/100精度。
(2)可用同等产品代替所列产品。
4.2、初步步骤。
(1)绝缘测量。
在没有安装过滤器的情况下,检查连接到直升机布线的连接器PH、PM和PB的绝缘电阻,穿过连接的引脚和计算机外壳接地,电阻应在50V DC时大于50M ohm.。
(2)执行。
个别的自驾计算机测试程序需要一个附加测试设置和以下模拟器或它们的等效设备,测试设置允许自驾计算机连接到各种模拟器和电源网络,并包括检查所需的测量点。
(a)、从控制器P/N SFIM 418-00453-100或418-00453-200或从其它模拟器进行的控制;但测试输入需要使用模拟器,
(b)、稳定输入模拟器(垂直陀螺仪、陀螺磁罗盘)是同步发射机,相位为26V 400Hz,115V 400Hz网络使用梯度为200mV rms/度,热点(S1=X)冷点(S3=Y)。
(c)、输出模拟器是伺服阀的1Kohm +/- 1% 1/4W电阻和蜂鸣器阀门的56K ohms +/- 5% 7W电阻。
(d)安装或不安装直升机逻辑功能(开关、按钮、指示灯等)的飞机模拟器。
(e)、由发电机组成的耦合模拟器用于应用逻辑信号(+27V或+15V)和直流或交流模拟信号(在+/-15V范围内)。
(f)、Baran(空速和压力)模拟器,有两个相互补充的输出,用于偏差和集成。
梯度:海拔50 mV/英尺=1.35 V/mbar;35V/mbar;速度400 mV/ft
动态:高度150 ft;速度15 kt。
备注:对于所有相同的设备,应用要点或测量要点都是根据描述的,作为引脚的辅助旋转接头探测器的识别:
检查:H-25(H):引脚25连接器PH(热点)。
M-32(C):针32连接器PM(冷点)。
(3)供电:
计算机通常由飞机中的两个独立网络提供;相应的输入通过跳线成对地连接到设置。
网络1: 消耗电流低于
适用范围: 115V 400Hz, 跨越 M-5(H)和M-4(C) 之间 35 VA
26V 400Hz, 跨越 M-6(H)和M-4(C) 之间 3 VA
27V DC 跨越 M-3(H)和M-4(C) 之间 0.2 A
网络2:
适用范围: 115V 400Hz 跨越 B-5(H)和B-4(C) 之间 35 VA
26V 400Hz 跨越 B-6(H)和B-4(C) 之间 15 VA
27V DC 跨越 B-3(H)和B-4(C) 之间 0.2 A
网络1和2的115V 400Hz和26V 400Hz电压消耗必须保持小于整个测试中指示的值。
4.3、测试程序:
自驾计算机连接到"机载电子设备AP 155P()()()自驾计算机虚拟化仪表试验器"和相应的模拟器。,对于增益、峰值限制和同步时间测量,M-30、B-14和B-39(连接参见引脚分配),考虑到接合,在第二次线路维护的框架内说明故障的原因。
测试中使用的缩写:+/- 加或减
<小于
>大于
信号地:
为了简化操作,目前在M-14 这种冷测试点使测量更容易,信号地利用点是非特异性的,也存在于H-38,参见飞机布线图。
5、测试步骤:
5.1、开关电路:
开关电路电源检测虚拟化仪表检测屏幕如下图所示。

检测前首先要将屏幕屏幕上方的"+28V"、"26V 400Hz"、"115V 400Hz"、"+15V"、"-15V"5种试验器中工作电源监测部分打开,这五种电源监测是监测的给"机载电子设备AP 155P()()()自驾计算机虚拟化仪表试验器"供电的工作电源,每一路工作电源均有电压超出上限或下限报警控制电路。

自动修整通道1和2接合检测:

PL11电路板工作原理示意图:

PL16电路板工作原理示意图:

PL13电路板工作原理示意图:

PL14电路板工作原理示意图:

PL17电路板工作原理示意图:

PL15电路板工作原理示意图:

(e)自动修整通道1和2接合。
- 用鼠标点击"H-24 M-14"按钮,按钮上△指示灯燃亮,在H-24(H)和M-14(C) 中应用27V DC+/- 5%:自动导频功能(ASE)参与。
- 用鼠标点击"M-18 M-14"按钮,按钮上△指示灯燃亮,在M-18(H)和M-14(C) 中应用27V DC+/- 5%:通道1参与。
- 用鼠标点击"B-18 B-14"按钮,按钮上△指示灯燃亮,在B-18(H)和B-14(C) 中应用27V DC +/- 5%:通道2参与。
- 用鼠标点击"H-8 M-14 27V"按钮,按钮上△指示灯燃亮,在H-8(H)和M-14(C)之间应用27V DC +/- 5%:在静止时连接。
- 用鼠标点击"M-21 M-4"按钮,按钮上△指示灯燃亮,连接M-21和M-4:自动修剪控制..
- 用鼠标点击"M-63 M-64"按钮,按钮上△指示灯燃亮,用鼠标点击调节数字输入窗口"通道1信号发生器相位角度"旁边的▲按钮,观察数字显示窗口"M-63 M-64 400Hz Vrms"将同步发射机模拟器(通道1)移动到M-63(H)和M-64(C)获得300mVrms 400Hz/0°。
- 观察数字显示窗口"M-32 M-30"显示,测量跨越M-32(H)和M-30(C) 之间电压为+0.93V DC +/- 10%。
- 用鼠标点击调节数字输入窗口"通道1信号发生器相位角度"旁边的▲按钮,观察数字显示窗口"M-63 M-64 400Hz Vrms"将同步发射机模拟器(通道1)移动到M-63(H)和M-64(C)获得300mVrms 400Hz/180°。
- 观察数字显示窗口"M-32 M-30"显示,测量-0.93V DC+/- 10%跨越M-32(H)和M-30(C)。
- 用鼠标点击"B-18 B-14"按钮,按钮上△指示灯熄灭,从B-18(H)和B-14(C):通道2脱离接触处移除27V DC+/- 5%。
- 观察数字显示窗口"M-32 M-30"显示,测量-1.86V DC+/- 10% 跨越M-32(H)和M-30(C)。
- 用鼠标点击调节数字输入窗口"通道1信号发生器相位角度"旁边的▲按钮,观察数字显示窗口"M-63 M-64 400Hz Vrms"移动同步发射机模拟器(通道1)以获得+0.4VDC然后-0.4VDC跨越M-32(H)和M-30(C)。
- 用鼠标点击"H-3 M-4"按钮,按钮上△指示灯燃亮,接入"波形图1"观察"波形图1"示波器窗口,检查H-3(H)和M-4(C)之间没有脉冲,然后鼠标点击"H-4 M-4"按钮,按钮上△指示灯燃亮,接入"波形图2"观察"波形图2"示波器窗口,在H-4(H)和M-4(C)之间没有脉冲。
- 用鼠标点击调节数字输入窗口"通道1信号发生器相位角度"旁边的▲按钮,观察数字显示窗口"M-63 M-64 400Hz Vrms"移动同步发射机模拟器(通道1)以获得+1.28V DC然后-1.28V DC跨越M-32(H)和M-30(C)。
- 观察"波形图1"示波器窗口和观察"波形图2"示波器窗口,检查一个短脉冲每秒+/- 20%发生在H-3(H)和M-4(C),以及发生在H-4(H)和M-4(C)。
- 用鼠标点击调节数字输入窗口"通道1信号发生器相位角度"旁边的▲按钮,观察数字显示窗口"M-63 M-64 400Hz Vrms"移动同步发射机模拟器(通道1)以获得+2V DC然后-2V DC跨越M-32(H)和M-30(C)。
- 观察"波形图1"示波器窗口和观察"波形图2"示波器窗口,检查信号是否发生在H-3(H)和M-4(C),以及发生在H-4(H)和M-4(C):信号应该是75毫秒长,每820毫秒发生一次(公差:+/-20%)。
- 用鼠标点击"B-18 B-14"按钮,按钮上△指示灯燃亮,在B-18(H)和B-14(C) 应用27V DC+/- 5%:通道2参与中。
- 用鼠标点击调节数字输入窗口"通道1信号发生器相位角度"旁边的▲按钮,观察数字显示窗口"M-63 M-64 400Hz Vrms"移动同步发射机模拟器(通道1)以获得+0.91V DC然后-0.91V DC跨越M-32(H)和M-30(C)。
- 观察"波形图1"示波器窗口和观察"波形图2"示波器窗口,检查一个短脉冲每秒+/-20%发生在H-3(H)和M-4(C),以及发生在H-4(H)和M-4(C)。
- 观察"波形图1"示波器窗口和观察"波形图2"示波器窗口,检查H-3(H)和M-4(C)或H-4(H)和M-4(C)之间的短脉冲在下列情况下是否消失:
*当用鼠标点击"M-21 M-4"按钮,按钮上△指示灯熄灭, 当M-21从M-4中分离时:修剪。
*当用鼠标点击"B-27 M-14"按钮,按钮上△指示灯燃亮,27V DC应用于B-27而不是点击"H-24 M-14" 27V DC不是应用于H-24:SAS参与时。
*当用鼠标点击"H-8 M-14 GND"按钮,按钮上△指示灯燃亮,0V DC应用于H-8而不是27V DC:链路l驱动时。
- 用鼠标点击"B-18 B-14"按钮,按钮上△指示灯熄灭,断开B-18(H)和B-14(C)的27V DC+/- 5%:通道2释放。
- 用鼠标点击调节数字输入窗口"通道1信号发生器相位角度"旁边的▲按钮,将同步发射机模拟器(通道1)设置为0°。
- 用鼠标点击调节数字输入窗口"通道1信号发生器相位角度"旁边的▲按钮,在同步信号发生器(通道1)上调节几度的变化:调节约5°到10°。
- 观察"波形图1"示波器窗口和观察"波形图2"示波器窗口,检查脉冲是否发生在H-3(H)和M-4(C)或H-4(H)和M-4(C),这些脉冲应该发生在延迟2到5秒之间。


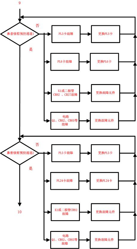
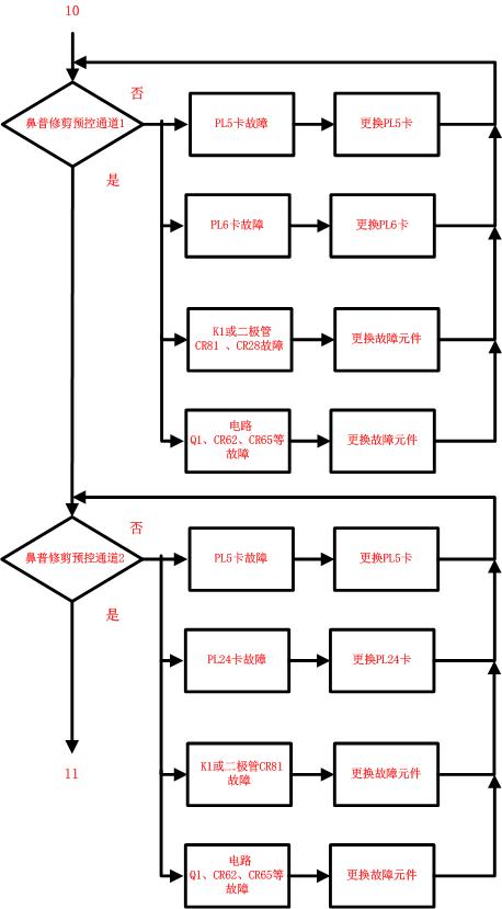
(f)鼻普鼻子向下修剪预控
- 用鼠标点击"H-8 M-14 27V"按钮,按钮上△指示灯燃亮,在H-8(H)和M-14(C)之间应用27V DC +/- 5%:在静止时连接。
- 用鼠标点击"H-24 M-14"按钮,按钮上△指示灯燃亮,应用27V DC+/- 5%跨越H-24(H)和M-14(C):自动导频功能(ASE)接通。
- 用鼠标点击调节数字输入窗口"通道1信号发生器相位角度"旁边的▲按钮,调节为"0",观察数字显示窗口"M-63 M-64 400Hz Vrms"移动同步发射机模拟器(通道1)以获得0Vrms跨越M-32(H)和M-30(C)。
- 用鼠标点击"M-18 M-14"按钮,按钮上△指示灯熄灭,从M-18(H)和M-14(C) 移除27V DC+/-5%:通道1脱离:同步到0位置。
- 用鼠标点击"M-18 M-14"和"B-18 B-14"按钮,按钮上△指示灯燃亮,在M-18(H)和M-14(C)以及B-18(H)和B-14(C)之间施加27V DC +/- 5%:通道1和2参与。
- 用鼠标点击"H-12 M-30"按钮,按钮上△指示灯燃亮,应用27VDC+/-5%的H-12(H)和M-30(C):鼻普向下修剪控制。
- 观察数字显示窗口"M-10 M-11"和"B-10 B-11"显示,测量D.C.电压Ul跨越M-10(H)和M-11(C)和U2跨越B-10(H)和B-11(C)。
- 用鼠标点击"H-12 M-30"按钮,按钮上△指示灯熄灭,从H-12(H)和M-30(C)之间移除27V DC+/- 5%。
- 观察数字显示窗口"M-10 M-11"和"B-10 B-11"显示,测量D.C.电压U'l穿过M-10(H)和M-11(C),U'2穿过B-10(H)和B-11(C)。
- 观察数字显示窗口"U1-U'1"和"U2-U'2"显示,它们应该使|U1-U'1|=1.38V DC +/- 20%和│U2-U'2|=1.38V DC +/- 20%。
- 用鼠标点击"H-12 M-30"按钮,按钮上△指示灯燃亮,在H-12(H)和M-30(C)上施加27V DC+/- 5%。
- 观察数字显示窗口"M-10 M-11"和"B-10 B-11"显示,再次测量D.C.电压Ul跨越M-10(H)和M-11(C)和U2跨越B-10(H)和B-11(C)。
- 用鼠标点击"H-8 M-14 GND"按钮,按钮上△指示灯熄灭, 跨越H-8(H)和M-14(C)应用0V DC,而不是27V DC +/-5 %:链接打开。
- 观察数字显示窗口"M-10 M-11"和"B-10 B-11"显示,检查D.C.电压Ul跨越M-10(H)和M-11(C)和U2跨越B-10(H)和B-11(C)不变。
- 注:在SAS模式(阻尼)中抑制预控。

(g)鼻普鼻子向上修剪前控制。
- 用鼠标点击"H-8 M-14 27V"按钮,按钮上△指示灯燃亮,在H-8(H)和M-14(C)上应用27V DC+/- 5%:在静止时连接。
- 用鼠标点击"H-24 M-14"按钮,按钮上△指示灯燃亮,在H-24(H)和M-14(C) 应用27V DC +/- 5%:自动导频功能(ASE)参与中。
- 用鼠标点击调节数字输入窗口"通道1信号发生器相位角度"旁边的▲按钮,调节为"0",观察数字显示窗口"M-63 M-64 400Hz Vrms"移动同步发射机模拟器(通道1)以获得0Vrms跨越M-32(H)和M-30(C)。
- 用鼠标点击"M-18 M-14"按钮,按钮上△指示灯熄灭,从M-18(H)和M-14(C) 移除27V DC +/- 5%:通道1脱离:同步于0处,。
- 用鼠标点击"M-18 M-14"和"B-18 B-14"按钮,按钮上△指示灯燃亮,跨越M-18(H)和M-14(C)以及跨越B-18(H)和B-14(C)的27V DC+/- 5%:通道1和2参与。
- 用鼠标点击"H-13 M-30"按钮,按钮上△指示灯燃亮,在H-13(H)和M-30(C)上增加27V DC+/- 5%:鼻普修正控制。
- 观察数字显示窗口"M-10 M-11"和"B-10 B-11"显示,测量D.C.电压Ul跨越M-10(H)和M-11(C)和U2跨越B-10(H)和B-11(C)。
- 用鼠标点击"H-13 M-30"按钮,按钮上△指示灯熄灭,从H-13(H)和M-30(C)之间移除27VDCt/5%。
- 观察数字显示窗口"M-10 M-11"和"B-10 B-11"显示,测量D.C.电压U'l跨过M-10(H)和M-11(C)和U'2跨B-10(H)和B-11(C)。
- 观察数字显示窗口"U1-U'1"和"U2-U'2"显示,它们应该使|U1-U'1|= 1.28V DC +/- 20% 和|U2-U'2|=1.28V DC +/- 20%。
- 用鼠标点击"H-13 M-30"按钮,按钮上△指示灯燃亮,适用27V DC +/- 5%跨越H-13(H)和M-30(C)。
- 再次观察数字显示窗口"M-10 M-11"和"B-10 B-11"显示,测量D.C.电压Ul跨越M-10(H)和M-11(C)和U2跨越B-10(H)和B-11(C)。
- 用鼠标点击"H-8 M-14 GND"按钮,按钮上△指示灯熄灭,应用0V DC,而不是27V DC+/- 5% 跨越H-8(H)和M-14(C):链接打开。
- 观察数字显示窗口"M-10 M-11"和"B-10 B-11"显示,检查D.C.电压Ul跨越M-10(H)和M-11(C)和U2跨越B-10(H)和B-11(C)不变。
注:在SAS模式(阻尼)中抑制预控。

(h)鼻普修剪控制
- 用鼠标点击"H-8 M-14 27V"按钮,按钮上△指示灯燃亮,在H-8(H)和M-14(C)上应用27V DC+/- 5%:在静止时连接。
- 用鼠标点击"H-24 M-14"按钮,按钮上△指示灯燃亮,应用27V DC+/- 5%跨越H-24(H)和M-14(C):自动导频功能(ASE)接通。
- 用鼠标点击调节数字输入窗口"通道1信号发生器相位角度"旁边的▲按钮,调节为"0",观察数字显示窗口"M-63 M-64 400Hz Vrms"移动同步发射机模拟器(通道1)以获得0Vrms跨越M-32(H)和M-30(C)。
- 用鼠标点击"H-8 M-14 27V"按钮,按钮上△指示灯熄灭,从M-18(H)和M-14(C) 移除27V DC+/- 5%:通道1脱离:同步0处,。
- 用鼠标点击"M-18 M-14"和"B-18 B-14"按钮,按钮上△指示灯燃亮,适用于M-18(H)和M-14(C)以及B-18(H)和B-14(C)的27V DC +/- 5%:通道1和2参与。
- 用鼠标点击"H-12 M-30"按钮,按钮上△指示灯燃亮5秒,在H-12(H)和M-30(C)上应用27V DC +/- 5% 5秒种:鼻普向下控制。
- 用鼠标点击调节数字输入窗口"通道1信号发生器相位角度"旁边的▲按钮,移动同步发射机模拟器(通道1),观察数字显示窗口"M-10 M-11"以获得跨M-1O(H)和M-11(C)的0V DC。
- 观察数字显示窗口"M-63 M-64 400Hz Vrms"移动同步发射机模拟器(通道1)以获得测量M-63(H)和M-64(C)电压400Hz/180"2Vrms+/- 20%"。
- 用鼠标点击"H-8 M-14 27V"按钮,按钮上△指示灯燃亮,在H-8(H)和M-14(C)上应用27V DC+/- 5%:在静止时连接。
- 用鼠标点击"H-24 M-14"按钮,按钮上△指示灯燃亮,应用27V DC+/-5% 跨越H-24(H)和M-14(C):自动导频功能(ASE)接通。
- 用鼠标点击调节数字输入窗口"通道1信号发生器相位角度"旁边的▲按钮,移动同步信号发生器(通道1),将同步信号发生器设置为0°:跨越M-63(H)和M-64(C)为 0Vrms。
- 用鼠标点击"M-18 M-14"按钮,按钮上△指示灯熄灭,从M-18(H)和M-14(C):通道1脱离:同步0处,移除27V DC+/- 5%。
- 用鼠标点击"M-18 M-14"和"B-18 B-14"按钮,按钮上△指示灯燃亮,跨越M-18(H)和M-14(C)以及跨越B-18(H)和B-14(C)施加27V DC+/- 5%:通道1和2参与。
- 用鼠标点击"H-12 M-30"按钮,按钮上△指示灯燃亮5秒,在H-12(H)和M-30(C)上应用27V DC+/- 5% 5秒钟:鼻普向下控制。
- 用鼠标点击调节数字输入窗口"通道1信号发生器相位角度"旁边的▲按钮,移动同步发射机模拟器(通道1),观察数字显示窗口"M-10 M-11"以获得跨M-1O(H)和M-11(C)的0V DC。
- 观察数字显示窗口"M-63 M-64 400Hz Vrms"测量跨越M-63(H)和M-64(C)的400赫兹电压为2Vrms/-20%。

(i)鼻普+操作杆控制。
- 用鼠标点击"H-24 M-14"按钮,按钮上△指示灯燃亮,在H-24(H)和M-14(C) 应用27V DC+/- 5%:自动导频功能(ASE)参与中。
- 用鼠标点击"M-18 M-14"和"B-18 B-14"按钮,按钮上△指示灯燃亮,在M-18(H)和M-14(C)和/或B-18(H)和B-14(C):渠道1和/或渠道2参与范围内应用27V DC +/-5%。
- 用鼠标点击"B-52 M-14"按钮,按钮上△指示灯燃亮,测量27V DC +/- 5%跨越B-52(H)和M-14(C):信号(T1+T2).ASE
- 用鼠标点击"H-8 M-14 GND"按钮,按钮上△指示灯燃亮,在H-8(H)和M-14(C)上应用0V DC而不是27V DC +/- 5%:链接打开。
- 用鼠标点击"H-12 M-30"按钮,按钮上△指示灯燃亮,应用27V DC +/- 5%跨越H-12(H)和M-30(C):鼻普向下修剪控制。
- 观察数字显示窗口"H-4 M-30"显示,测量电压>25VDC跨越H-4(H)和M-30(C):鼻普阀饱和。
- 观察数字显示窗口"M-10 M-11"显示,跨越M-10(H)和M-11(C)检查伺服阀1没有隔离,但通道1处于同步状态(测量小于+150mVDC)。
- 用鼠标点击"H-8 M-14 27V"按钮,按钮上△指示灯燃亮,再次跨越H-8(H)和M-14(C) 应用27V DC+/- 5%:链接打开。
- 以前的结果不应改变:
*观察"H-4 M-30"数字显示窗口,跨越H-4(H)和M-30(C)鼻普阀饱和>25VDC。
*观察"M-10 M-11"显示,检查跨M-10(H)和M-11(C)和通道1的同步:伺服阀不隔离。
- 用鼠标点击"M-18 M-14"和"B-18 B-14"按钮,按钮上△指示灯熄灭,移除27V DC +/- 5%,从M-18(H)和M-14(C)以及B-18(H)和B-14(C):通道1和2脱离接触处。
- 观察数字显示窗口"H-4 M-30"显示,测量电压>25VDC跨越H-4(H)和M-30(C):鼻普阀饱和。
- 观察数字显示窗口"B-52 M-14"显示,测量0V DC+/- 5%跨越B-52(H)和M-14(C)。
- 用鼠标点击"M-18 M-14"和"B-18 B-14"按钮,按钮上△指示灯燃亮,在M-18(H)和M-14(C)以及B-18(H)和B-14(C) 应用27V DC+/- 5%:通道1和通道2参与。
- 观察数字显示窗口"B-52 M-14"显示,测量27V DC +/- 5%跨越B-52(H)和M-14(C):信号(T1+T2).ASE。
- 用鼠标点击"H-8 M-14 GND"按钮,按钮上△指示灯燃亮,在H-8(H)和M-14(C)上应用0V DC而不是27V DC +/- 5%:链接打开。
- 用鼠标点击"H-13 M-30"按钮,按钮上△指示灯燃亮,在H-13(H)和M-30(C) 应用27V DC+/- 5%:鼻普向下修剪控制。
- 观察数字显示窗口"H-3 M-30"显示,测量电压>25VDC跨越H-3(H)和M-30(C):鼻普阀饱和。
- 观察数字显示窗口"M-10 M-11"显示,跨越M-10(H)和M-11(C)检查伺服阀1没有隔离,但通道1处于同步状态(测量小于+150mV DC)。
- 用鼠标点击"H-8 M-14 27V"按钮,按钮上△指示灯燃亮,再次应用27VDC/-5%跨H-8(H)和M-14(C):链接打开。
- 以前的结果不应改变:
*观察数字显示窗口"H-3 M-30"显示,在H-3(H)和M-30(C)之间>25VDC:鼻普阀饱和。
*观察数字显示窗口"M-10 M-11"显示,检查跨M-10(H)和M-11(C)伺服阀不隔离:和通道1的同步。
- 用鼠标点击"M-18 M-14"和"B-18 B-14"按钮,按钮上△指示灯熄灭,移除M-18(H)和M-14(C)以及B-18(H)和B-14(C)的27V DC +/- 5%:通道1和2脱离接触。
- 观察数字显示窗口"H-4 M-30"显示,测量电压>25VDC跨越H-4(H)和M-30(C):鼻普饱和。
- 观察数字显示窗口"B-52 M-14"显示,测量0V DC +/- 5%跨越B-52(H)和M-14(C)。
- 用鼠标点击"H-13 M-30"按钮,按钮上△指示灯熄灭,从跨越H-13(H)和M-30(C) 中移除27V DC +/- 5%。

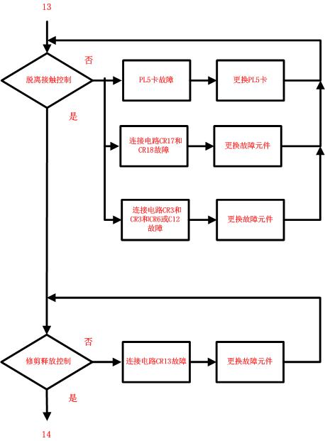
(j)操纵杆和修剪释放控制。
- 用鼠标点击"H-24 M-14"按钮,按钮上△指示灯燃亮,在H-24(H)和M-14(C) 应用27V DC +/- 5%:自动导频功能(ASE)参与中。
- 用鼠标点击"M-18 M-14"和"B-18 B-14"按钮,按钮上△指示灯熄灭,从M-18(H)和M-14(C)以及B-18(H)和B-14(C) 移除27V DC +/- 5%:通道1和2脱离接触处。
- 用鼠标点击调节数字输入窗口"通道1信号发生器相位角度"旁边的▲按钮,观察数字显示窗口"M-63 M-64 400Hz Vrms"移动同步信号发生器(通道1)以跨越M-32(H)和M-30(C)获得4Vrms。
- 用鼠标点击"M-18 M-14"按钮,按钮上△指示灯燃亮,在M-18(H)和M-14(C) 应用27VDC/-5%:通道1参与中。
- 用鼠标点击调节数字输入窗口"通道1信号发生器相位角度"旁边的▲按钮,观察数字显示窗口"M-63 M-64 400Hz Vrms"移动同步信号发生器(通道1)返回到0°:跨越M-63(H)和M-64(C) 为0Vrms 400Hz,。
- 用鼠标点击"B-25 M-14"按钮,按钮上△指示灯燃亮,在B-25(H)和M-14(C)上应用27VDC+/-5%。
- 观察数字显示窗口"M-10 M-11"显示,检查跨越M-10(H)和M-11(C)的电压是否对应于剩余电压,因此电路是同步的。
- 观察数字显示窗口"H-3 M-30"和"M-4 M-30"显示,检查跨H-3(H)和M-30(C)以及跨越M-4(H)和M-30(C)的电压>25V DC的存在:鼻普阀门饱和。
- 用鼠标点击"B-25 M-14"按钮,按钮上△指示灯熄灭,从跨越B-25(H)和M-14(C) 移除27V DC+/- 5%。
- 用鼠标点击"H-23 M-14"按钮,按钮上△指示灯燃亮,在H-23(H)和M-14(C) 应用27V DC +/- 5% :修整释放控制。
- 观察数字显示窗口"H-3 M-30"和"M-4 M-30"显示,检查跨越H-3(H)和M-30(C)以及跨越M-4(H)和M-30(C)的电压>+25V DC:鼻普阀饱和。
- 用鼠标点击"H-23 M-14"按钮,按钮上△指示灯熄灭,从H-23(H)和M-14(C)上拆下27V DC+/- 5%。

PL5电路板工作原理示意图:

PL6电路板工作原理示意图:

PL20电路板工作原理示意图:

PL23电路板工作原理示意图:

PL24电路板工作原理示意图:
