今天齐家小菜分享的案例是130㎡的新房装修,大白墙和木质家具搭配,营造出温馨舒适的居家氛围。
经典案例
面积:130㎡
户型:两居室
风格:简约日式风
亮点:大白墙简约耐看,木质家具温润大气,细节布置充满禅意。

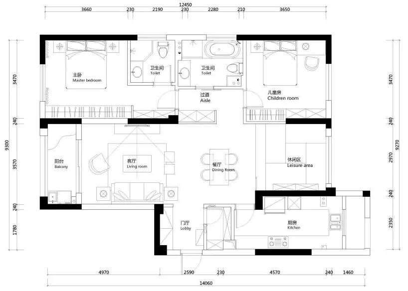
户型图

建筑面积130㎡,典型的日式风格,禅意的布置打造放松的居家氛围。
玄关

玄关设计很简单,左侧是鞋柜,右侧是叠级换鞋凳,木质空间营造自然舒适的氛围感。
客厅

客厅采用白墙搭配原木家具,天花板大面积木色装饰,让客厅空间都笼罩在原木的温润质感之下,别有一番风味。

沙发墙刷白漆,用简洁的时钟装饰空间。原木框架的灰色布艺沙发温馨舒适,搭配木质茶几,格调满满。

电视墙也没有多余装饰,原木电视柜气质端庄,有藏有露的设计,层次感极强。

电视柜旁边是一个简单的端景架,摆上极简的插花,与空间呼应出独特的禅意感。
(此处已添加小程序,请到*今条头日**客户端查看)
餐厅

在木质天花板和木地板的基础下,搭配原木餐桌椅和餐边柜,还有木质屏风,营造轻松时尚的氛围。

过道的蓝色门帘,点缀空间,呈现出一种静雅端庄的气质感。

木质托盘、玻璃茶杯,自然简洁的摆饰,看着就很精致。
休闲区

餐厅后面是休闲区,小茶具搭配*团蒲**坐垫,平时可以*坐静**独处,也可以约上两三好友喝茶聊天,随意自然。

餐厅和休闲区之间采用木质屏风隔断,整体做了抬高设计,增添收纳,清新雅致。

靠墙布置一个矮小的书架,摆着书籍、茶具与小饰品,空间文艺精致。


细节上禅意的布置,也让空间在不经意间透露出成熟端庄的气质。
厨房

厨房采用U型布局,哑光灰地面+白色工字砖墙面,再搭配白色定制橱柜,整体设计宽敞舒适,清新时尚。


隔板设计补充收纳,实用的小家电和精致的餐具,让生活充满仪式感。
主卧

主卧延续整体的空间风格,所有的家具都是木质的,配上灰色的床单和窗帘,空间中呈现出简约自然的舒适感。

木质床头柜上摆一盏简单的台灯,也使得空间充满惬意现代的端庄感。
儿童房

儿童房也是原木家具,搭配粉色调的床单和窗帘,迎合小女孩的审美。

细节设计很用心,可爱的抱枕,满满的情趣与惬意感。
卫生间

卫生间采用哑光灰地砖+白色小格砖墙面,设计淋浴与浴缸,提供良好的卫浴体验。

淋浴区的地面采用防腐木材料,防滑而又自然。

主卫空间较小,椭圆形淋浴房简约舒适,干湿分离方便清洁卫生。
阳台

阳台墙面大面积使用防腐木,布置石台与鹅卵石,种上竹枝,迎面扑来清新自然的气息。
结语
大白墙+原木家具,日式风格令人神清气爽。休闲区和阳台的设计,让人倍感轻松,值得借鉴。
本文由齐家小菜编辑,图片部分来源互联网,侵删!
文章来源:小户型装修案例精选(jiaxhx)
装修助手:齐家微微(qijiavv)