一种坐享北京顶级配套资源的体验。出门就是鸟巢、国家美术馆、奥体中心、水立方等世界级地标建筑。唯一的副作用就是贵,但看看有不要钱,今天给大家介绍个有意思的项目—— 万科NAVA

70年产权的公寓
万科NAVA有三大特点:产权、地段、装修。 我们先来说产权,你肯定听过40年或50年产权的公寓,但极少,甚至没有见过70年产权的公寓。这个项目,是妥妥的 70年产权。
但遗憾的是,70年公寓也逃不出50年产权的魔咒。万科于2000年拿地,2022年开盘,产权确实是70年,但因为已经过了20年,所以实际剩余产权不到50年。有朋友可能会说,开发商不是骗人么。也不能算骗,我到过现场,销售也确实并不避讳——产权70年,剩余不到50年。
另外,公寓和住宅产品有本质的区别,首先是交易受限,个人不能购买,必须以公司名义才可以。另外是商水商电,物业费一般比较贵,万科NAVA每平米24.8元/月。也没有学区概念,上学只能选择私立学校。
属于豪宅范畴的万科NAVA
万科NAVA整体居住系统挺完善。大堂高6米,是日常业主的会客厅,可以提供免费茶歇。

楼顶有空中花园,空中连廊是健身房,整体免费,如果请私教需要额外收费。


东向外立面是垂直森林幕墙,覆盖面积100%

西向是四色琉璃遮光板

总结:万科NAVA的逼格是上去了。坦白讲,我第一次看外立面有点别扭,有种画风突变的冲击力,不知道怎么形容,但实际看习惯了,也还行。
位于亚奥板块的千万公寓
万科NAVA位于亚奥板块的核心位置 ,南侧大约500米,是地铁5号线惠新西街北口站,北侧2公里内,是地铁15号线安立路站。周边配套自然不用说了,鸟巢、水立方、奥体中心大家都知道,各种高端商场也都在附近;有名的安贞医院,中日友好医院等三甲医院都在三公里范围内。亚奥板块的配套,就不用多说了。

项目于2022年9月1日开盘,项目一共120多套,目前卖了40多套,还有不到90套房源。 在售面积段为113㎡-248㎡,均价10万元/㎡,总价约700万-4000万之间 。先来看看样板间:






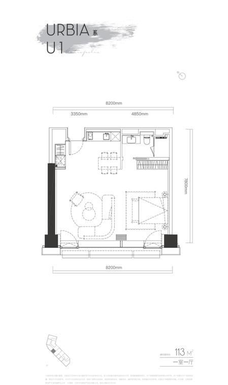
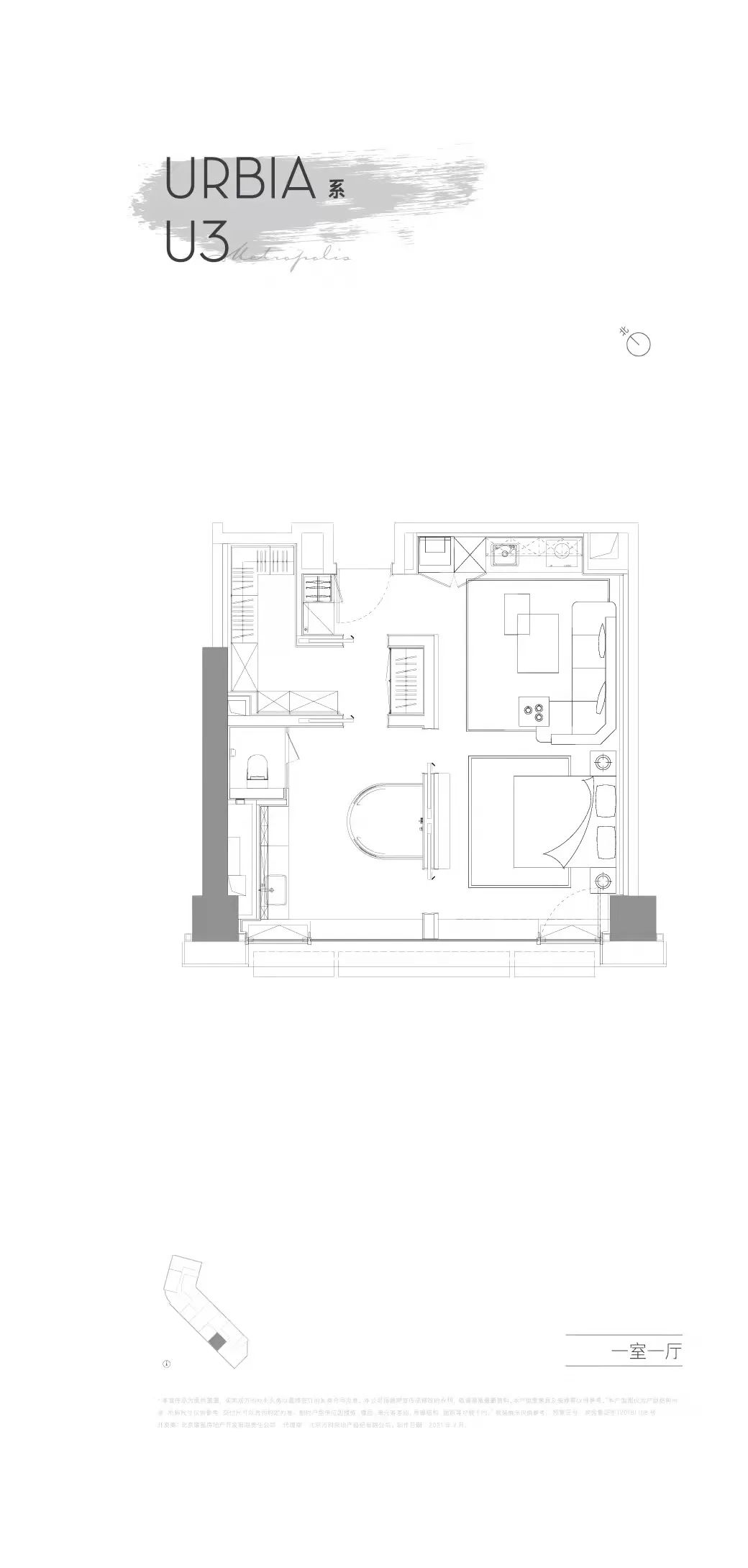
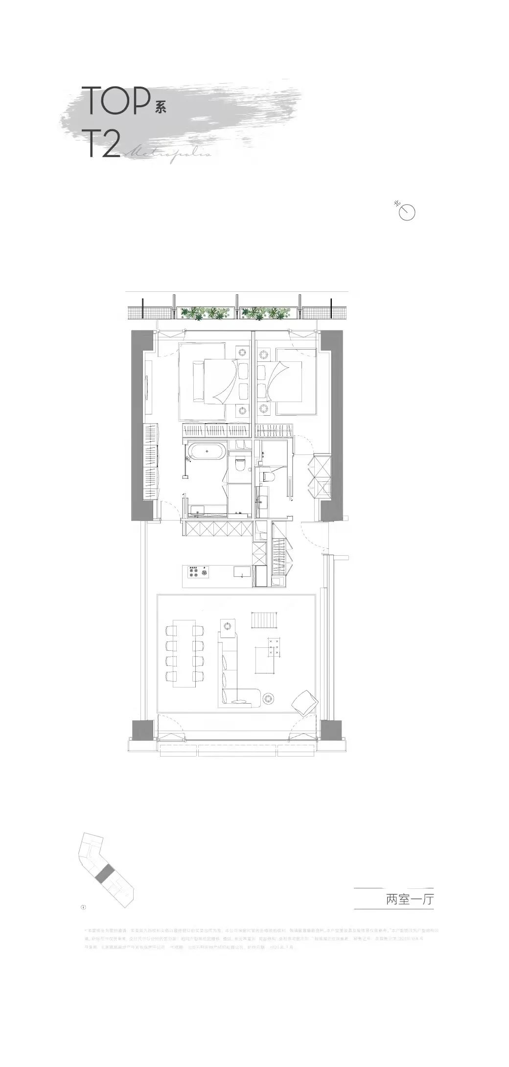
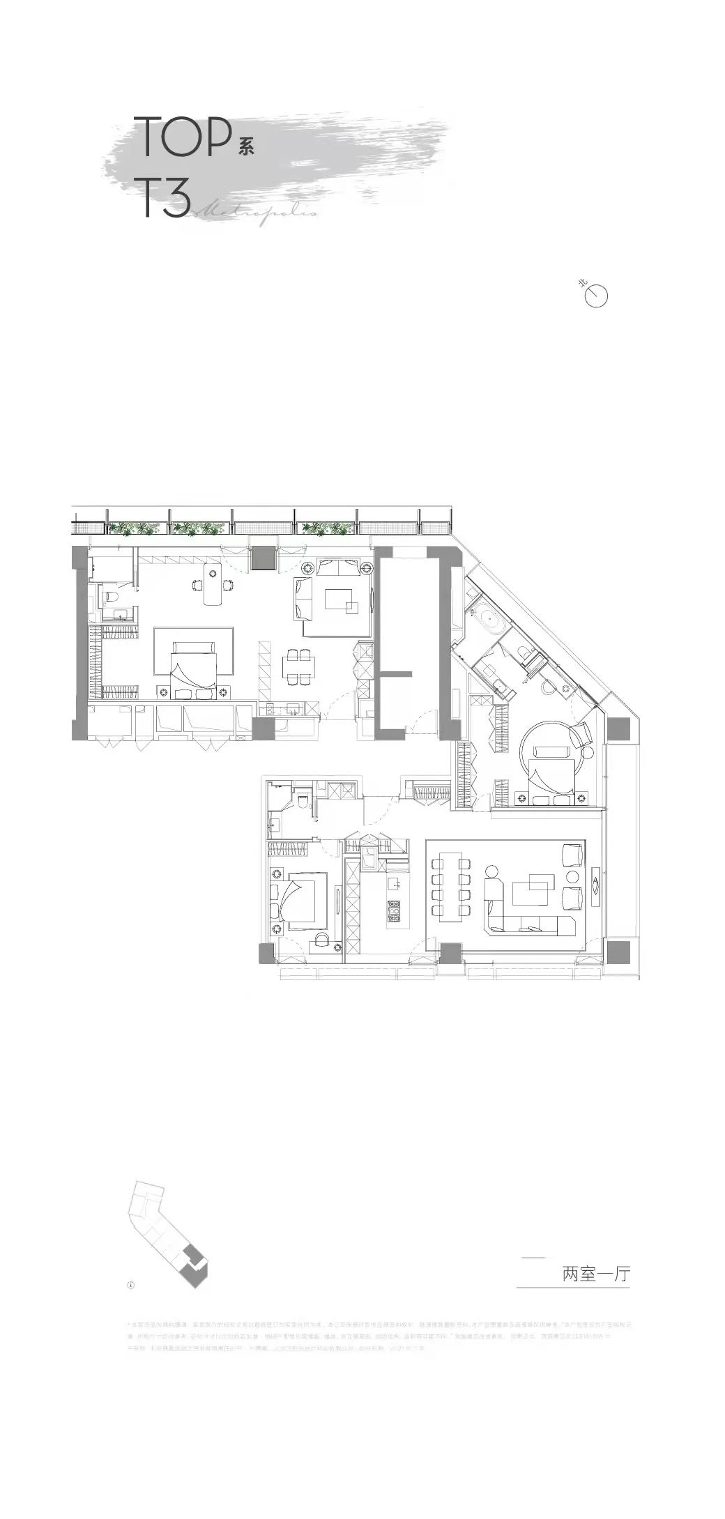
9种户型图
在售楼层6—19层,共9种户型 1–5层大型商业,20层高端会所。
U系户型一室一厅,面积113㎡,总价约800-1200万。本质是个大开间,千万左右买个开间,非富即贵



F系户型两室一厅,面积104-118㎡,总价约1200-1800万
虽然户型图写着两居室,但我怎么都找不到另一个卧室在哪,估计要在客厅打隔断了。倒是卫生间有两个,大一居在什么样的情况下需要两个卫生间呢???



T户型两室一厅,面积203㎡,总价约1400-2000万。T1户型图需要转一下,是个东西向户型,卧室朝北。

T2变方正了,客厅窗户多,俩卧室背靠背。

户型图写着两居,这应该算是三居了。大客厅+卧室套房,实际样板间看上去就是五星级酒店的范儿。

万科NAVA总结
公寓类产品个人不能购买,必须以公司名义。位置好配套好,但周边“老破小”较多,站在十几层的样板间里,眺望远方,风景确实好看,但往下看,会发现项目被老破小包围。
如果是个人住宅,我不建议购买,流通性较差,使用成本也高,而且没有学区,孩子上学只能去周边私立学校。但如果不用于第一居所的话,这里交通方便,周边配套成熟。换句话说,对于手头预算充足的朋友,这是很理想的第二居所。