白色栅格化的外立面,全景的落地玻璃,极简风格的复式模块化售楼处伫立在青浦区“祥源·溪悦”园区之中,吸引着往来游客的注意。
该项目是国内房地产开发商祥源地产迭新力作,“溪”代表邻近青溪园的诚挚敬意,也刻画了水系资源的享有,“悦”则重于营造多维度的生活情境,为青浦带来优悦从容的生活范本。顺延城市文脉的场域精神之下,用稀缺的水岸组合全情境居所的愉悦生活体验,为城市创造属于当代的记忆。互集受邀对项目售楼展厅进行设计建造。

“祥源·溪悦”项目位于青浦新城,南侧紧邻沪青平公路和沪渝高速,东侧约600米即为外青松公路,距离地铁17号线青浦新城站直线约2.5公里。周边有沪青平公路,外青松公路,沪渝高速和绕城高速环伺,自驾便捷;距地铁17号线青浦新城站,约2.5km,交通便利。项目1.5km范围内有凯特利广场、东方商厦等商业中心,同时,青浦吾悦广场也在约2.5km范围内,可满足住户的购物需求。且南侧约500m为上海市毓华学校(九年一贯制),奇星幼儿园,北侧建有帕缇欧香幼儿园,青浦东方中学等全龄化教育配套。项目北侧约1.2km为二级甲等医院的青浦区中医医院,当出现发烧、感冒等病情时,便于满足基础打针、点滴等治疗需求,挂号看病相对方便。

项目区位图
从学习生活、交通出行等方面综合考量选址的“祥源·溪悦”项目,是祥源地产青浦首作,更是集中集团优势资源及专业赋能的项目,匠心打造,格外重视。也因此,祥源地产对于项目售楼处的设计更为看重,作为项目起步阶段的对外营销中心,售楼处的设计也应当与项目风格匹配。具备丰富的售楼处设计、搭建经验的互集自然不失所望,也以项目风格为主题,打造出极简风的复式模块化售楼处。
一、模块化建筑优势
售楼处的设计与建造历经二十年变迁,从过去一味强调重金打造,浮夸画风的传统建筑到如今倾向于节约成本,匹配项目风格的临时建筑,这不仅是地产商与住户的审美风格的转变,当然还有政策的倾斜与扶持。

效果图
2022年10月,“二十大”明确表示,推动绿色发展是全面建设社会主义现代化国家的内在要求。聚焦绿色建造、“双碳战略”,持续打造新能源、科技赋能,紧抓绿色低碳产业发展机遇,构建全产业链发展模式。 以钢结构、木结构为主体并采用金属围护系统和保温材料的建筑具有绿色节能、强度高、防火保温隔热安全高、工程造价低、自重轻、施工周期短、可工厂化制作和可回收利用等优点,近年来得到了建筑机构的广泛重视并迅速推广。
同时2023年2月,*共中**中央、国务院近日印发《质量强国建设纲要》,《纲要》明确指出“鼓励企业建立装配式建筑部品部件生产、施工、安装全生命周期质量控制体系,推行装配式建筑部品部件驻厂监造”等,将装配式建筑作为提升建设工程品质、打造“中国建造”升级版的重要内容。

模块化售楼处便是迎合装配式建筑政策发布的产物之一,借助装配式的模块化建筑工厂预制的优势,在工厂内便可完成产品打造的大部分环节,还减少了建筑垃圾的产生,运至现场后整体吊装搭建,落地便可营业。模块化售楼处的出现,节省项目前期运营的准备时间,同时兼顾了绿色环保的建筑要求。
二、项目落地

钢筋水泥的都市之间,“祥源·溪悦”以闹中取静的水岸情境,宛若一叶扁舟,带人脱离白日的繁重工作与压力,还以夜晚的安宁与平静。互集作为模块化建筑一站式服务商,对“祥源·溪悦”项目进行充分调查与了解后,便根据项目要求对售楼处进行了详细规划与设计。
提取了项目中水岸结合的情境,互集设计师以极简风格为主题,选用白色作为售楼处外部的主题色,注重室内外空间的互动感,以亲密的姿态连接项目客户于无形之中。一层选用大面积的落地玻璃窗,于内布置项目沙盘,与过往游客形成交互。



二层外立面采用集装箱板材,切割成片,以网格化的排列布置,形成半透格栅,既是建筑立面、庭院围挡,又是极具风格的造型设计,通风透光的同时,化解了集装箱原有的厚重感,使其轻盈,通透起来。


内部设计则是温馨舒适的原木风格,步入其中,贴心规划布置的内部映入眼帘,巧妙的转折设计划分出不同的功能区,满足项目的营销需求。


穿过功能区,不同大小、不同装修风格的样板间为前来参观的客户也作出了详细参考。


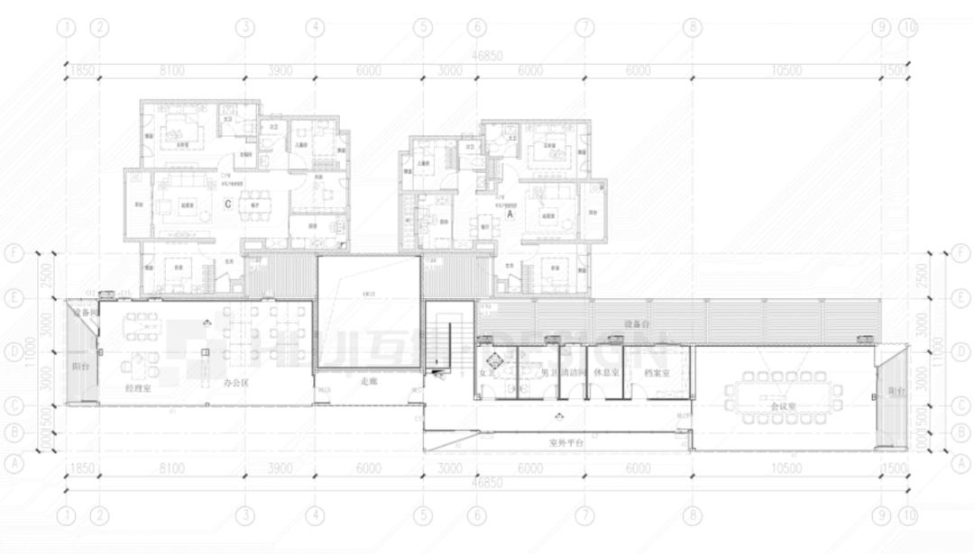
青浦祥源售楼处总建筑面积达642㎡,一层建筑面积329㎡,二层建筑面积313㎡,样板间面积总和204㎡,运用20个箱体进行创造再设计,于互集工厂内完成内外装修100%预制,运输至现场后吊装而成,耗时仅需40天。

一层平面图

二层平面图
三、互集经验
互集深耕模块化装配式建筑多年,拥有资深设计师团队,倡导用设计重新定义模块化建筑,坚持打造可预制化、高周转、可重复利用的模块化建筑和可持续建筑空间,为客户提供设计-生产-施工-采购-运营-策划一体化服务和整体解决方案,已落成竣工的项目遍布全国各地。
除却售楼处设计,互集还擅长文旅营地策划、模块化公区设计、城市建设等内容,旗下经营产品众多,广泛适配于乡村振兴、主题科幻乐园IP、特色酒店民宿、高端景区营地、商业办公第三空间等应用领域。

效果图
当下,临建性质的模块化售楼处设计风行于地产建筑,互集始终积极参与其中,经验丰富,好评不断。未来互集也将努力拓宽能力边界,提升产品品质,为打造更为优秀的模块化建筑而奋斗。