
北京是一座瞬息万变的城市,古老与经典在这个城市中源源不断地迸发出新的活力,也让这座城市从来不因时光的流失而失色。和锦诚园生活美学馆位于北京市大兴区旧宫镇,亦庄新城西侧,紧邻北京南海子公园,是城市公园大宅标杆作品。历史上的南海子,从辽金时期便是皇家的游幸之所。
Beijing is a rapidly changing city. The ancient and classics continuously burst out new vitality in this city, and the city has never been eclipsed by the loss of time. Beijing Greentown Sincere Garden Sales Gallery is located in Jiugong Town, Daxing District, Beijing, on the west side of Yizhuang New City, next to Beijing Nanhaizi Park. It is a benchmark work of urban parks. Nanhaizi in history has been a place of fortune for the royal family since the Liao and Jin Dynasties.

南海子,
京城之南,
五朝皇家苑囿

△ 《乾隆皇帝巡狩射猎图》清 郎世宁 此图表现乾隆帝及*亲近**王公大臣在南苑猎场捕射野兔的动感瞬间。
南海子是北京历史上最大的湿地,是古代皇家猎场、皇家园圃,曾是燕京十景之一的“南囿秋风” 。2010年1月“城南行动”第一项重大生态工程,公园重点建设湿地景观、皇家文化、麋鹿保护、生态休闲等功能区,与北部奥运文化、中心城历史文化遥相呼应。现在是北京规模最大的湿地文化公园。与瀛海镇、亦庄镇、旧宫镇形成了三镇一园综合服务配套区。
Nanhaizi is the largest wetland in Beijing’s history. It is an ancient royal hunting ground and royal garden. It was once one of the ten scenic spots of Yanjing, the "Nanyu Autumn Wind". In January 2010, the first major ecological project of "City South Action", the park focused on the construction of wetland landscape, royal culture, elk protection, ecological leisure and other functional areas, which echoed the northern Olympic culture and the historical culture of the central city. It is now the largest wetland cultural park in Beijing. With Yinghai Town, Yizhuang Town, and Jiugong Town, it forms a comprehensive service area.

别苑归城辇路开,天峰昨夜起宫槐
秋 随 万马 嘶空至, 晓松 千骑拂地来
落雁 远惊云外浦, 飞鹰 欲下 水 边台
宸游睿藻年年事,况有长扬事从才
——《南囿秋风》李东阳
城市化的时代背景下,皇家猎场如今演变成“城市中的湿地公园”,我们尊重时代的发展,同时追溯文化,以自由、先锋的艺术手法打破常规,运用现代的手法还原南海子皇家猎场的力量、神秘、变幻,呈现万象天镜般的氛围。
Under the background of urbanization, the Royal Hunting Ground has now evolved into a "wetland park in the city". We respect the development of the times, while tracing the culture, breaking the convention with free and pioneering artistic techniques, and using modern methods to restore the Nanhaizi Royal Hunting Ground Power, mystery, and change, presenting a mirror-like atmosphere in Vientiane.

△ 和锦诚园生活美学馆改造前后对比
和锦诚园将庞大的南海子园林体系巧妙整合融于美学馆内,营造了南海子代表性的 "南囿秋风、中心广场、漪鉴、溪谷春晓、麋鹿苑"几大景观,让你身临南海子,领略它的古往今来。设计团队让金、木、水、火、土的“五行色”均匀分布、流转于室内种,让旧城的厚度,包容着新城的魅力。
The exhibition hall cleverly integrates the huge Nanhaizi garden system into the space, creating the representative landscapes of Nanhaizi: "Nanyu Autumn Wind, Central Square, Yijian, Spring Dawn in the Valley, and Milu Garden", allowing you to experience Nanhaizi Its history. The design team allowed the "five element colors" of metal, wood, water, fire and soil to be distributed and circulated evenly, so that the thickness of the old city contained the charm of the new city and collided with the ancient charm.

售楼处由租借的临街商铺改造而成,如何将固有建筑梁多且层高低的室内处理得更具空间感,是设计团队首要克服的关键。“*局破**”——打破现有单一空间,改变墙顶的材质,形成相呼应的斜角关系,强调空间的力量,烘托出皇家猎场的气韵。
The sales office was transformed from leased street-side shops. How to make the interior with many inherent building beams and storeys more spaced is the key to the design team. "Break the game"-break the existing single space, change the material of the top of the wall, and form a corresponding oblique relationship, emphasizing the power of space, highlighting the charm of the royal hunting ground.

△ 空间SU效果图

△ 简洁有力的折现打破格局
No.01 南囿秋风
沉浸式体验区
今日,从北京南三环成寿寺开车出发,经小红门进入亦庄开发区,再向南大约十分钟,就到了当年的南囿,如今这里叫作“南海子公园”。“南囿秋风”是著名的“燕京十景”之一,景观设在公园一期湖区北岸。
Now you can drive from Chengshou Temple on the South Third Ring Road in Beijing, enter Yizhuang Development Zone via Xiaohongmen, and then head south for about ten minutes to arrive at Nanxin, which is now called "Nanhaizi Park." "Southern Autumn Wind" is one of the famous "Yenjing Ten Scenic Spots". The landscape is located on the north bank of the first phase of the park.

△ 以斜墙分割成环形有趣的动线

秋天是北京最好的季节,前厅的设计概念将景区大面积秋色叶芦花飞雪,层林尽染的秋日景致囊入室内。金风来时,鹿雉出没,晴云碧树,红果黄叶,鸢飞鱼跃,猿啼鹤唳,踏入前厅便沉浸在这般意境中。
Autumn is the best season in Beijing. The design concept of the front hall encloses a large area of the scenic area with autumn leaves, reeds, flowers, and snow, and the autumn scenery filled with forests. When the golden wind came, deer and pheasants appeared, clear clouds and blue trees, red fruits and yellow leaves, kites flying and leaping, and monkeys crowing and cranes. When they stepped into the front hall, they were immersed in such a mood.
△ 入口处以LED屏与石材墙面结合的打造手法,融入项目建筑外立面裙房石材、金属铝板线条特色,即可体现项目贵气和庄重感,同时通过环绕屏幕打造的沉浸式体验让客户进入售楼处后感受更安定更美好。

No.02 漪鉴
艺术展示区
艺术展示区以“漪鉴”景观为设计母体,将水面化为镜面,安置发光树干、麋鹿,利用竖向金属镜面,完成空间延伸,从而在小空间内营造自然森林的景象。静谧的环境氛围,好似走入森林,与灵动麋鹿来一场邂逅之旅。
The art exhibition area uses the "Yijian" landscape as the design matrix, turning the water surface into a mirror surface, placing luminous tree trunks and elk, and using vertical metal mirror surfaces to complete the spatial extension, thereby creating a natural forest scene in a small space. The tranquil environment feels like walking into the forest and having an encounter with the smart elk.

No.03 中心广场
街心公园区
沙盘区的“中心广场”的场景设定,表现南海子公园的人流聚集处,这里会是空间中的人流汇聚点,街心公园的活力被引入了室内。中心广场沙盘区,与传统沙盘不同,灵感源自城市“街心公园”理念。设计初衷就是为了展示人、建筑、城市景观三者之间的互动关系。
The scene setting of the "central square" in the sandpan area represents the gathering place of Nanhaizi Park. This will be the gathering point of the flow of people in the space, and the vitality of the street park is introduced into the interior. The central square sand table area is different from the traditional sand table, inspired by the city’s "street park" concept. The original intention of the design is to show the interaction between people, architecture and urban landscape.

△ 沙盘区的设计就如中心广场的人流聚集处
公园中嬉笑的人群,悠闲地享受晚霞,相谈甚欢——“中心广场”营造了这样一个生活场景。而沙盘也不再是简单的展示台,当我们坐在设计师巧妙设计的台阶座椅上时,沙盘区所展示的建筑已完美融入景观之中。LED大屏的运用,带来便捷科技感体验,同时能够高效、全面地了解项目状况。
The laughing crowds in the park leisurely enjoy the sunset and talk happily—the "central square" creates such a life scene. The sand table is no longer a simple display stand. When we sit on the stepped seats designed by the designer, the buildings displayed in the sand table area have been perfectly integrated into the landscape. The use of large LED screens brings a convenient scientific and technological experience, as well as an efficient and comprehensive understanding of the project status.

No.04 溪谷春晓
服务体验区
洽谈区设计灵感来源于南海子主题景观“溪谷春晓”。洽谈区顶部大幅采用北京城墙传统色彩红色。当暖意城墙红遇见当代设计手法,光影穿过建筑装饰,在地面形成层层叠叠的光影变化,从“色”到“形”进一步呼应北京城墙。
The design of the negotiation area was inspired by the theme landscape of Nanhai sub-theme "Spring Dawn in the Valley". The top of the negotiation area adopts the traditional red color of Beijing city wall. When the warm red city wall meets contemporary design techniques, light and shadow pass through the architectural decoration, forming layered light and shadow changes on the ground, which further echoes the Beijing city wall from "color" to "shape".

△ 为优化梁体关系,打通吊顶多余的楼板,增设红墙概念的艺术装置

吧台作为咖啡区,提供全方位展现服务的休闲空间,让到访者感受身临公园咖啡馆的服务和体验。
As a coffee area, the bar provides a leisure space with a full range of services, allowing visitors to feel the service and experience of being in a park cafe.

走廊的艺术装置设计为空间增设视觉张力,也指引着你带入另一个童趣世界,儿童区的金色空间仿若在秋日洒满阳光的公园里欢欣雀跃。
The art installation design of the corridor adds visual tension to the space, and also guides you into another world of childishness. The golden space in the children’s area is like joy in a park full of sunshine in autumn.

No.04 麋鹿苑
深度交谈区
深洽区将北京城市的色彩提炼其中,黑、白、金、红,呼应展厅建筑的景泰蓝“掐丝工艺”,呼应着历史的厚度。
The guest area refines the colors of Beijing city, black, white, gold, and red, echoing the cloisonné "filigree craft" of the exhibition hall building and echoing the thickness of history.

南海子麋鹿始于明代,现如今麋鹿苑依旧是人们观鹿胜地。如此举足轻重的神圣象征,在和锦诚园美学馆内必然不可缺失。晶莹剔透、如梦如幻的棱镜鹿艺术装置立于馆内,麋鹿苑中灵秀、神秘之气在生活美学馆蔓延,恰与美学馆“万象天境”主题相契。
Nanhaizi elk began in the Ming Dynasty, and the Elk Garden is still a deer-watching resort today. Such a pivotal sacred symbol must be indispensable in the Hejinchengyuan Aesthetic Museum. The crystal clear, dreamlike prism deer art installation stands in the museum. The spirit and mystery of the Elk Garden spreads in the Life Aesthetics Hall, which is in line with the theme of the "Vientiane Heavenly Realm" in the Aesthetics Hall.

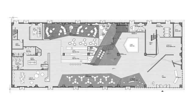
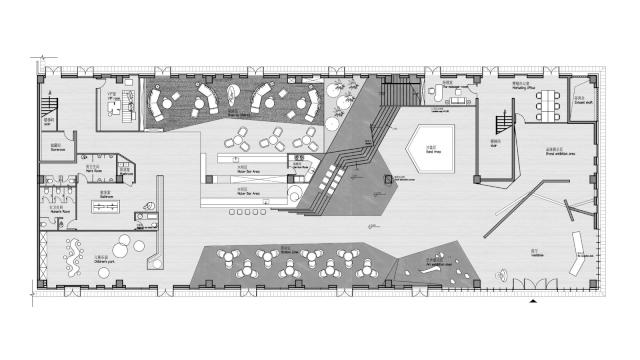
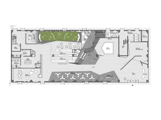
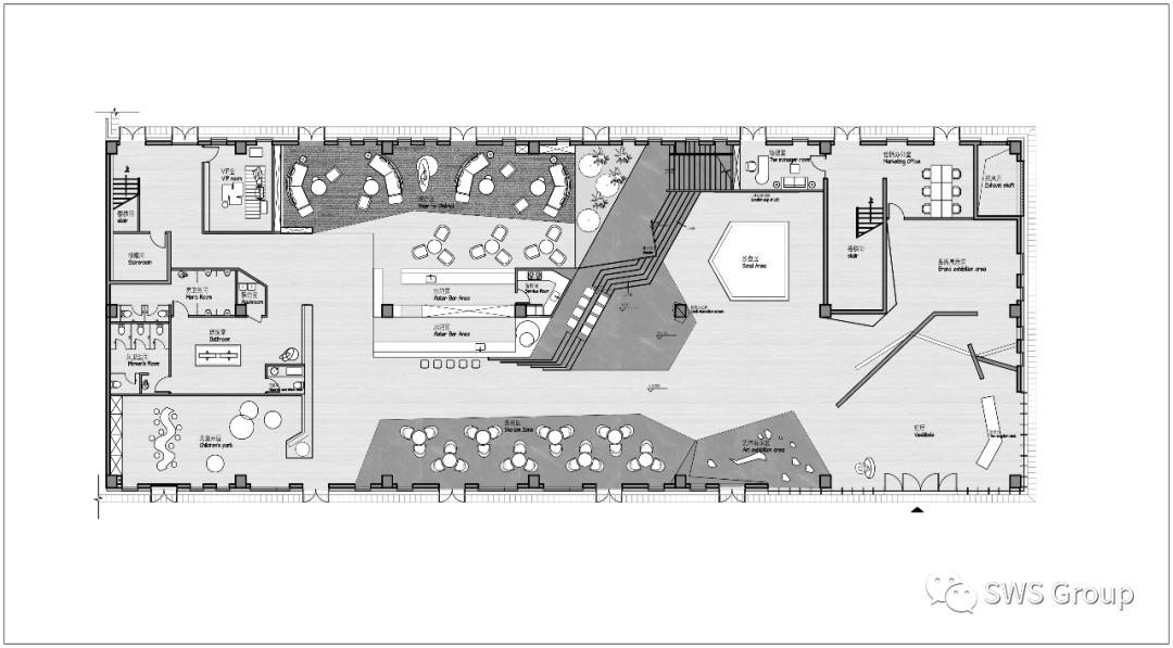
Renderings

Floor Plan
-上下滑动观看图片-

项目信息 Project Information
项目信息 Project Information
业主 Developer:绿城集团 Greentown
项目地址 Address: 北京 Beijing
项目面积 Area:1765m2
硬装与软装 Interior Design/ FF&E:SWS Group
设计总监 Design Director:邬斌 Wu Bin
主创设计师 Design Lead:李建国 Li Jianguo
硬装团队 Design Team:范文馨 Fan Wenxin,那文琪 Na Wenqi,叶臻颖 Ye Zhenying,吴征智 Wu Zhengzhi,冯志鹏 Feng Zhipeng
软装总监 FF&E Design Lead:梅芳 Mei Fang
效果表现总监 CGI Team Lead:秦军 Qin Jun
软装团队 FF&E: 王佳元 Wang Jiayuan,张岩 Zhang Yan
效果表现团队 CGI Team:陈宇栋 Chen Yudong ,王珊珊 Wang Shanshan ,夏子程 Xia Zicheng
摄影:刘思盟 Liu Simeng 夏添 Xia Tian

邬斌,SWS Group创始人之一,在地产设计管理和中高端室内设计上有着超过20年的丰富经验。他的代表作绿城·沁 Gallery 生活艺术馆与上海新鸿基滨江凯旋门样板间荣获2018年和2019年英国SBID国际设计大奖。代表作品:杭州绿城沁园 E18,武汉绿城凤起听澜,杭州绿城晓风映月,苏州华贸,九龙仓静安花园,九龙仓E18, 苏州新鸿基环贸中心,武汉中信滨江,长沙九龙仓 IFS 中心等。近期,他主导的多项作品入选2020 SBID Design Awards, 2020 London Design Awards, 2020 The Plan Award 等国际设计大奖。

SWS Group室内设计一部

SWS Group软装设计团队
本资料声明:
1. 本资料为要约邀请,不视为要约,所有政府、政策信息均来源于官方披露信息,具体以实物、政府主管部门批准文件及买卖双方签订的商品房买卖合同约定为准。如有变化恕不另行通知。
2. 因编辑需要,文字和图片无必然联系,仅供读者参考;
3. 本资料制作时间为2020年10月。
END
