哈喽,大家好,我是左岸老师,今天和大家分享一下刚刚接触UG大家遇到的一些关于约束和布尔运算的问题 对于很多初学者朋友来说,草图约束是一个很烦恼的东西。看过我之前文章的朋友应该明白,UG是一个比较智能的软件,很多时候往往可以提示我们下一步该干什么,如果没看的朋友点这个链接—— UG基础认识

我们画图的时候经常可以看到图中的提示“ 草图已被xx个自动标注尺寸完全约束 ”,而出现这个问题表明百分之99你画出的来的图是少了尺寸,欠约束。至于为什么是99而不是百分之百,以为还有其他的特殊情况,往下看。
想要完全约束,首先我们要明白约束的含义是什么,其实约束,约束的就是尺寸和位置,打个比方好像我们家里买家具一样,多大的家具,家具该放家里什么位置,当这些都确定好了之后,买回来的家具直接放在已经想好的位置就行。


值得注意的是,除了上面说的尺寸约束和位置约束,还有下面这些详细的约束(其实也是位置关系,位置约束)

至于之前为什么说是百分之99,表示少了尺寸,剩下的百分之一其实就是在这,有的时候我们画完图形之后,有的是因为两条线的 端点位置重合 在一起了,但是没有显示重合约束,软件才会判断缺少约束。只要图纸上的尺寸全部用到了( 这个也检验约束的一个方法 ,小笔记记下来),图形也是一样的,草图也没必要完全约束。

另一个方法就是,我们可以拖动节点位置(当拖动的图形变形的时候,就说明该位置是少了尺寸)。

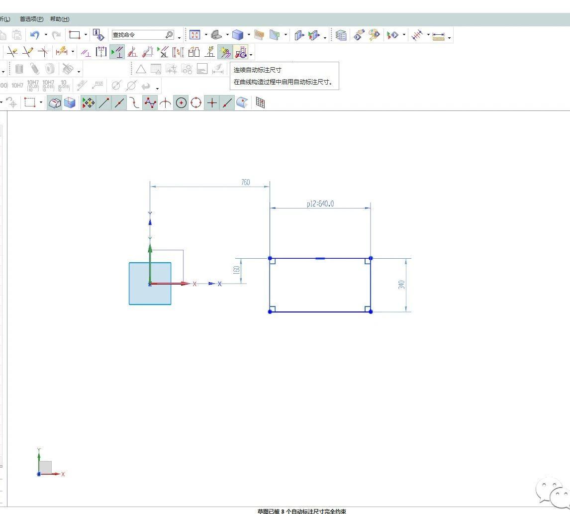
我们也可以打开 连续自动标注尺寸 (如果找不到可以 命令查找 ),通过图形我们可以很清楚的发现,系统自动标注的和我们自己标注的尺寸颜色上有着很明显的区别。(这个时候你还不知道我就没办法了)
好了,关于约束就到此结束了,我们开始下一个话题, 布尔运算 。 在8.5版本布尔运算是求和、求差、求交。而在10.0版本及以上的是合并、减去、相交,而且图形也很明显的表示出来了该功能的一个含义

其实合并就是将两个图形或者多个图形合并在一起;减去则是将相同的部分除去,保留未相交的部分(注意主次关系);相交就是将重合部分保留,将未重合的部分移除。当我们明白这个之后,建模也就更加容易了。道路千万条,只要运用好布尔运算,建模成型不是问题。