装修风格:简美风格
实际面积:80㎡
空间格局:2房2厅
设计师:云中鹤
项目位置:海南三亚
装修造价:10W
大海是我们每个内陆人都向往的地方吧,凡有长的假期都希望能去海边玩耍,坐在沙滩上吹吹海风,感受无际的大海那种浩瀚感;今天分享的这套设计来自长沙的一对夫妻,因为喜欢长期在三亚旅游,有时候也做做代购,所以在这边来的次数特别多,所以干脆就在此买了一套小两房,这样也算是在这个城市留下了烙印。
整体风格以不常见的北美风格为主,全屋干净利落的装饰搭配,以鲜亮的色彩搭配为主,由于不是长期居住,所以装修比较简洁,尽量用色彩去体现设计感,把钱花在“刀刃上”。
01 原始结构图

原始结构图
本案原始结构是两房两厅的精装房,户型比较周正,每个空间都有窗户,采光不错。但承重墙体较多,空间很紧凑,结构上的可塑造性较小。开发商在规划的时候,就连柜子的凹槽味都给预留好了。可谓是细致入微。
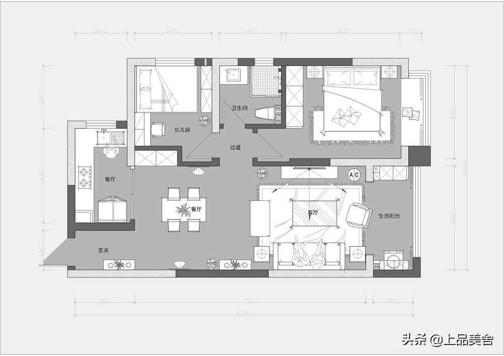
02 平面设计图

平面布置图
业主希望不动墙体,在现有结构上尽量地满足各功能需求。业主希望有一个简洁、温馨的家,不需要太复杂的装饰,干净清爽。设计侧重软装,风格上选择简约美式风格,清爽大气。整体的房屋结构不同,在此基础上完善各区域的功能,同时根据业主的需求进行软装搭配,满足业主需求。
03 客厅

客厅

客厅

客厅
客厅色调以浅色为基调,这样显得空间更大一些。电视背景墙用了极浅的灰色墙漆,没有做造型,只以三幅黑白画作为装饰,视觉上清爽大气,金色的金属画框,更凸显出一丝轻奢的韵味。电视背景墙用了米黄色的墙布,两侧镶金属边条作为装饰造型,同样非常简洁明了。家具选择了白色带收纳功能的沙发、茶几和电视柜等,实木质地,非常适合三亚这样比较炎热的气候。色调上与整个空间非常统一,同时也大大增加了储物空间。对于面积不是很大的房子来说,收纳空间越大,家里越容易保持整洁。
04 生活阳台

生活阳台

生活阳台
因空间比较小,客厅阳台做了生活阳台,一侧做洗衣伴侣,另一侧做满墙的柜子增加储物空间。和客厅连通中间仅用门槛石来区分空间,这样不仅显宽敞,而且空间感也是挺强的,顶面安装的电动晾衣架,让晒衣服变得更加方便。地面砖和客厅地面砖选择同款颜色和规格,整体性更强。
05 餐厅

餐厅

餐厅
餐厅和客厅同处一个空间,地面和吊顶都没有严格区分,因此和客户保持了统一的色调。原始结构在次卧方向有一个凹处,正好用来做了一组储物柜,又大大提升了家里的储物空间,nice!餐桌椅同样选择了白色的实木套,简单不失大方。餐厅另一侧的大片空白墙用实木条走了两圈造型,中间以金属花卉进行装饰,呼应对面墙上的装饰挂画,让餐厅空间丰富起来。
06 主卧

主卧室

主卧室

主卧室
主卧同样用了浅灰墙漆 ,墙面没有做任何造型,搭配灰白色原木纹的实木家具,整洁清爽。白色的衣柜门,为了避免床头柜挡住柜门无法打开,干脆在此位置做了一列开放式的储物格,放置一些实用的小物件简直是太好不过了。飘窗做了软垫,方便闲时的小憩。床头为避免单调,同样用了挂画进行装饰;而床尾保留了大片的空白墙面,这是业主用作投影幕布的。