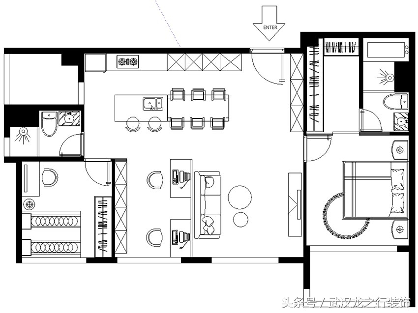
若要举办风格票选,北欧风绝对名列前茅,简约清新,拥有满满的幸福氛围,是许多房主规划空间的首选!这间屋子的主人相当喜欢北欧风,所以在动工前便做了不少功课,提前选好了一些个人喜爱的装饰品,通过与设计师的沟通,决定对房屋只做小部分的格局变动,让家里更为开阔、明亮,并以开放式布局串连客厅、餐厅、厨房与书房,利用大面积的白色调,加上缤纷家具布置搭配,墙面周围也配置了收纳柜,在不失实用收纳机能的前提下,又能娓娓道出北欧居家的独特幸福感。


1. 客厅设计
开放式客厅规划,为了让客厅风格更加充满趣味,在电视墙规划上运用方框设计组合拼贴,里头的彩色方柜可自由拿取,并能与后方书柜交换配置,设计师强调,一定要选择美耐板而非喷漆处理板材,不然使用时间一久,一定会脱漆。



2. 餐厅设计
与中岛厨房相连的餐桌,选择简约利落造型,少了复杂线条自然看起来干净清爽,加上两盏灰色吊灯,精心配制下超有北欧餐厅的氛围。至于收纳问题就交由后方整面收纳柜,摆放女主人最心爱的餐具和铸铁锅,东西再多也不怕没地方放。


3. 厨房设计
除了基本一字型厨房功能,另外加上中岛区域,增加收纳机能外,也能安装更多厨房家电,包括一定要有的洗碗机、烤箱、微波炉等,透过大面积白色复古砖使厨房成为好清洁又舒适的料理区域。靠近阳台的墙面,设计师透过双色油漆(深灰+浅灰)涂刷,产生类似水泥感的刷痕。


4. 卧房设计
由于家中本身采光非常明亮,考虑到卧室睡眠问题,主墙以墨绿色油漆涂刷,透过深色效果创造更好的睡眠品质。另外设计师保留原本更衣室规划,仅更换木头门片,透过小技巧便让卧室更美观。


5. 书房设计
一空间多用的开放式书房,放置两张书桌,随时满足全家人的阅读需求,此外也同时可以是孩子的游戏区域,因其开放式特色又邻近厨房,家长料理时也能一边观看游戏情形。


6. 浴室设计
白色复古砖加上黑白花砖,呈现出略微夸张抽象的氛围感。同时设计师建议浴室柜体可用木头材质打造,若是真的怕潮湿,可挑选系统浴柜,都已经做好防水处理,无须担心发霉问题。

7. 玄关设计
一进门左手边便是摆放大量鞋柜的玄关区,底部特意预留高度,下方还能放拖鞋或是扫地机器人。可别小看这组鞋柜,可是能收纳上百双鞋子,再透过花砖与木头柜崁入其中,藉由板材呈现多变化的视觉效果。

8. 收纳规划
看得出来屋主家中隐藏大量收纳柜吗?因为东西实在太多,一开始就要求设计师规划多处收纳区域,分别在玄关、厨房后方整面墙壁、电视墙下方以及书房靠墙区等置入柜体,并以白色系为主,环绕墙面设计,把柜子隐藏起来,让家裡看起来毫无压迫感又具有实质收纳功能。

9. 建材挑选
最近在北欧屋主家中常常看到的白色复古磁砖也被使用在这里,最抢眼的就是厨房中岛位置,采用白色瓷砖拼贴搭配黑色填缝剂,不怕细缝产生黑垢又好清理,重点是还防水,所以厨房墙面以及浴室也同步运用,以人字拼贴、垂直拼贴等方式呈现一种建材的多种效果。

10. 家具配置
设计师表示,北欧风空间最主要的就是家具与布置品搭配运用,最好多挑选活动式家具,降低固定家具配比,若是空间本身简单洁白,可选择色彩缤纷、造型简约款式,譬如说用餐区域的餐桌与餐椅,经由木头板材为基底,运用四款不同色彩的餐椅,让家中北欧特色更鲜明。

11. 色彩计画
回归最根本的北欧色调,利用大量白色为主,从天花板、收纳柜一直到厨房中岛区域,使空间更有放大效果,再搭配浅灰色系以及粉彩色家具家饰,纯净舒适的居家中,多了一些活力的缤纷感。

更多精彩内容可关注我们的官方微信公众号:龙之行装饰(whlzxzs)