
这是成都摄影师Icy操办的第一个家
拆了两面墙得到采光超棒的开放式大厨房
阳台隔一半空间做喵主子的“豪华阳光宅”
31㎡的客厅虽没有电视却可以变身mini观影房
他将130㎡空间内的每个角落都装满阳光

认识他们

男主 Icy
从事过音乐行业,曾经是乐手,编曲人,也做过手工吉他。目前从事摄影工作,主要是做商业摄影(美食、静物、空间)。

女主Galene
成都电视台主持人,现在兼职为先生Icy做一些自媒体的撰稿和策划工作。

二趴和牙胖子
家里还有两只喵主子,叫牙牙和趴趴,一般喜欢管他们叫牙胖子和二趴。

左右滑动查看图片
我们时而去旅行,时而宅在家,因为是摄影师的缘故,所以总能将生活的点点滴滴以照片的形式记录下来。
房屋信息

改造前原始房型图
原本的户型厨房很小,但好在厨房的墙壁可以打掉,圆了我这个美食爱好者的开放式厨房梦;客厅与阳台间的墙体打通,洗衣区规划在阳台;打通主卧与相邻次卧,改为超大主卧连通书房。

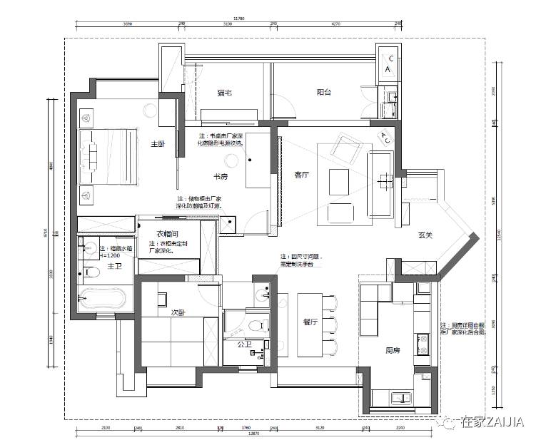
改造后的平面布置图
户型:两室两厅两卫一厨
面积:130㎡(使用面积)
装修花费:50W
改造灵感:个人的审美倾向是接近kinfolk杂志的,但日本的wabi-sabi理念也很棒,在日式和北欧中间摇摆过,直到后来认识了为我们改造的设计师,我家的风格更偏向于她擅长的北欧风,除此之外她“自然生长”的设计理念(即居住者才是一个空间最终形态的决定因素),也成为影响我们家风格的重要因素。
玄关&走廊

◆ 红色虚线区域为入户玄关&走廊

穿鞋凳 ◆ 定制
墙漆 ◆ 舒尔茨儿童漆
◆ 入户玄关处的定制衣柜,用于进门后的衣物和鞋包的收纳。

橡木隔板 ◆ 定制
◆ 入户隔板上的玻璃瓶内的是新鲜的尤加利果子,与过道装饰画内的尤加利叶子相呼应。

◆ 位于玄关的晾衣区。为实现开放式大厨房的初衷,我们将厨房与临近厨房的生活阳台打通,将其并入厨房空间,因此家里缺少了晾衣的空间,不得已我们将它设定在入户窗边。经过布帘和下沉式飘窗沿的遮挡,晾衣区被完美隐藏。

边柜 ◆ 定制
地板 ◆ 必美 安装后几个月翘起较严重,不推荐
◆ 走廊尽头的边柜,是自己画图设计并找工厂定制的,用于收纳一些零碎物品,也起到装饰作用。
客厅

◆ 红色虚线区域为客厅平面图

墙漆 ◆ 舒尔茨
沙发 ◆ 雅然居
木质茶几 ◆ 定制
◆ 客厅打通了阳台,增加视觉延伸感。作为摄影师,考虑到会有在家进行拍摄的需求,不论是美食拍摄或是商品拍摄,都需要一个相对宽敞的区域。于是在客厅的规划中舍弃了所有不必要的装饰和设施,工作的时候只要简单收拾一下就能变成宽敞的影棚。

◆ 客厅一秒变影棚。

◆ 没有传统的客厅娱乐设施,用投影仪取代电视机的功能,电动幕布放下即是电视,收上又还原成一面干净的墙面。

投影仪 ◆ 明基
音响 ◆ MACKIE
幕布 ◆ 网淘·影辉 具体尺寸还需根据自家情况实地测量
◆ 客厅133寸大的幕布,完全能满足我们的日常观影需求。

◆ Galane与二趴平时最爱窝在沙发一角,读书、喝茶或看部电影,宅在家的周末就应该在放松中度过。
阳台休闲区&猫宅

◆红色虚线区域为阳台区域平面图。

单人躺椅 ◆ MUJI
◆ 原户型将近15㎡的阳台被我们充分的利用起来,封窗后连通了客厅,紧邻客厅的半个阳台改造成了阳光房+种植区。

◆ 阳台休闲区夜里的样子和在这里看星星的销魂二趴。

白色花盆 ◆ 宜家
◆ 阳台的模块式花架,是入住后受设计师启发,自己设计完成的,每个模块可自由组合,变换出不同的造型。

◆ 另一个视角的花架。不得不说,绿植绝对是提升家里颜值的利器。

◆ 因为将原本的生活阳台并入厨房,洗衣区也要重新规划,我们利用原本阳台巨大的空调位,隔离出一半位置作为洗衣区,并隐藏在定制储物柜内。一方面能将空调噪音减小,另一方面也能将拖把、吸尘器等不美观的清洁用品隐藏起来,一举两得。
阳台内的猫宅

木质花架 ◆ 宜家
◆ 阳台的另一半,我们隔出来为家里的两只喵星人们打造了一个“豪宅”。

◆ 定制的储物柜上,规划了喵主子睡觉和登高玩耍的地方,底下是猫窝,上面的隔板都有洞上下连通,可以供主子们尽情玩耍,带柜门的区域可用来储存主子的口粮和日常用品。

◆ 每天看着它们抱着从厨房偷来的小毛刷睡着,也是件幸福的事。

◆ 阳光明媚的午后,喵主子们也能透过阳台的落地窗晒晒太阳。
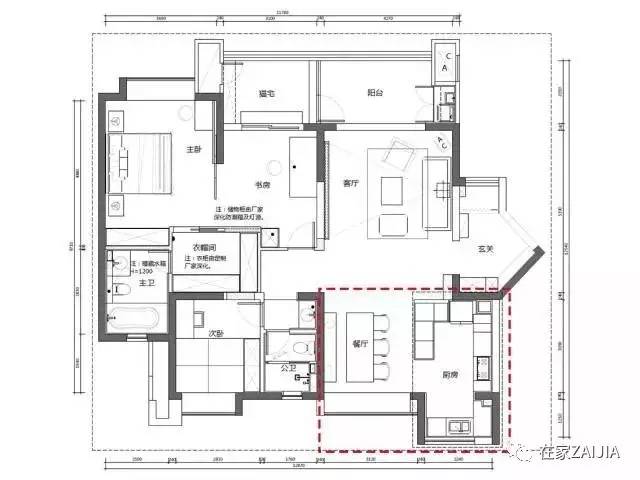
厨房&用餐区

◆ 红色虚线区域为餐厨区域平面图,厨房10.5㎡、餐厅10㎡。
厨房

◆ 装修中的厨房。作为一个美食和烹饪爱好者,一个好的厨房是很必须的,并且开放式厨房最大的好处就是可以在烹饪的同时和朋友家人交流,而不再像传统厨房一样把自己封闭起来孤独的烹饪。

水龙头 ◆ Axor
水槽 ◆ Schock
厨师机 ◆ kitchenAid·7QT 可用于烘焙的打发鸡蛋和奶油,或者揉面
洗碗机 ◆ 西门子·SC73M610TI 提高效率节约时间的好物
◆ 厨房打掉了外墙,变成开放式厨房,打通了生活阳台的墙壁并入厨房内作为洗涤区。

吸油烟机 ◆ 方太 对付油烟效果很棒
岛台 ◆ 宜家定制
◆ 厨房的定制岛台是橡木制作,实木的材质比石材多了一分不可替代的温暖感,并不用太在意水油什么的,实木经过时间的打磨以后会越发的有质感。下沉式收纳架是根据设计师的想法定制而成,既可以起到收纳作用,也是装饰,让那些颜值很高的餐具有了一个展示的地方。

◆ 我喜欢研究美食,也喜欢将食物拍出它本应该有的美好的模样。

◆ 因为崇尚不断的去发掘生活中美好的事物,而不是千篇一律的为生计而忙碌,所以我也做了很多在别人眼里显得有点“不务正业”的事情,例如摄影、音乐、美食,也都收获了一些不错的成果。

左侧抽屉 ◆ 宜家定制
◆ 厨房的大岛台考虑到收纳的便利性,选择了宜家的产品。宜家的橱柜尺寸可以完美的适配各种类型的收纳件,极大的提高收纳和工作的效率。

收纳框、密封罐 ◆ 宜家
◆ 用密封玻璃罐收纳香辛料再合适不过了,能密封保鲜,也方便查看和取用。
餐厅

白色吊灯 ◆ 宜家
木质百叶窗 ◆ 定制
◆ 餐厨区全景。我家饮食习惯爆炒并不多,太太是西安人,我平日更喜欢做西餐和日料,做牛排油烟会比较大,但是目前看来方太油烟机还是能很好的解决这个问题,只要开到最大档基本在厨房以外不会有明显的油烟。

餐桌椅 ◆ 定制
◆ 餐厅的对称之美。餐桌是2.3*1米的长桌,虽然平日多是我和太太在家,但因为很喜欢请朋友来聚餐,就索性做了个大桌子。

◆ 夜晚的餐厅,立马变成一盏灯下的工作区。

◆ 喵主子们在餐厅用膳。
主卧&书房

◆ 红色虚线区域为主卧&书房区域平面图,改造前主卧19.5㎡,改造后加书房和衣帽间共计33㎡。

黄铜吊灯 ◆ Designer store
◆ 考虑到只有2人居住,把主卧旁边的次卧并入作为一个工作区。床头并没有选择传统的床头灯,而是受设计师的启发,用吊灯自己改造。起初设计师建议直接吊灯泡,后来斟酌再三选了这个黄铜的灯,架子也是自己画图制作的。
嵌入式衣柜 ◆ 定制
◆ 更改了卧室入口,将嵌入式衣柜与衣帽间入口规划在同一个墙面。家里的家具大多是选择的实木定制,外观风格也是与全屋风格较搭的北欧风。
墙漆 ◆ 舒尔茨儿童漆
床、床头柜 ◆ 黑胡桃木定制
◆ 床头细节。床头墙面的颜色,是自己用舒尔茨PS16的面漆加色浆调的。
◆ 夜晚开灯后主卧的效果。
音响 ◆ ADAM
办公椅 ◆ Haworth·zodytask
◆ 因为做图像处理需要三联屏,也因此被设计师吐槽书房变成了“网吧”。对于需要久坐办公的人群来说,一把好椅子必不可少,这把Haworth陪伴了我好几年,体验非常不错。目前书房的墙面稍显空旷,以后还会渐渐丰富起来。
橡木隔板 ◆ 定制
◆ 在书房书房的墙面设置了许多隔板,本来打算放书,后来考虑到容易落灰,现在隔板就用来放小物件和装饰品。
两个卫浴间
◆ 红色虚线区域为卫浴区域平面图,主卫6㎡、次卫5.5㎡(含洗手区),两个卫生间,尝试了两种不同的风格。
水龙头 ◆ Hansgrohe
吸收瓶 ◆ MUJI
◆ 性冷淡风6㎡主卫。水泥砖+极简风格的洁具,这是一个可以让心情瞬间平静的空间,墙壁的镜子做成了隐藏式镜柜,增加收纳功能的同时也能不破坏干净的墙面。
浴缸 ◆ 卡德维
水龙头 ◆ GROHE
壁挂式马桶 ◆ Duravit
◆ 主卫的淋浴区做成了浴缸,壁挂式马桶砌墙做出了中空,刚好预留了空间做隐藏式镜柜。
浴室柜 ◆ 宜家
浴缸龙头 ◆ Hansgrohe
◆ 北欧风5.5㎡次卫。次卫的洗手区是在外面,内部淋浴区和马桶用玻璃做了隔断。
分装瓶 ◆ MUJI
花洒 ◆ Hansgrohe
◆ 卫生间最想推荐的是Hansgrohe的龙头和花洒,龙头做工精细、起泡细腻,花洒带空气注入,能使沐浴的体验大大提升。
这就是Icy和Galene的家
房子装修6个月,入住三个月
时至今日仍有许多“未完成”状态的区域
相对于一股脑的将软装置办齐全
屋主更倾向于在生活中慢慢积累
选择真正符合居住者生活习惯的
才能成为最自然合适的存在
福利来了
宅sir将选出2位留言精彩的盆友,
赠送年*公轮**园 书写垫板
快快积极留言参与哦!
若想了解购买,可点击文末下方的阅读原文
更多可以买得到的好物,
点击微信号内的商店链接,马上找到。

关注“在家”公众号
这里有专家,也有生活达人
等着与你聊生活谈美学
或许你还喜欢
策划、执行/里里 图/摄影师Icy 文/屋主 Icy、里里
版权声明
在家原创内容,欢迎个人分享至朋友圈。
如需平台转载或商务合作,请联系
微信号:TrendsZaijia006
案例图片未经同意,请勿擅自使用,侵权必究!
↓↓点击阅读原文,即可进去微店!