1.接触器是开关电器的一员,属于开关设备中主回路的开关电器,是电动机控制主回路的三元件之一
我们首先弄懂什么是开关设备。我们看国家标准GB14048.1-2012《低压开关设备和控制设备 第1部分:总则》,其中给出了具体定义:

图1:国家标准定义的开关设备和控制设备
在开关设备中,我们把执行电能的开合控制、传递和调节的回路叫做主回路,又叫做一次回路。把执行控制、信号放大和传递、测控和电参量调节的回路叫做辅助回路,又叫做控制回路或者二次回路。
接触器属于主回路的元器件。
我们看下图:

图2:电动机回路的一次系统图
图2中左侧是电动机所在的二级配电系统,我们看到主回路中有断路器QF,有接触器KM,有热继电器FR。这里的断路器执行短路保护,接触器执行合分线路,而热继电器则执行过载保护。
在小功率电机的一次回路,有时会把断路器与热继电器合并,用电动机型断路器来取代两者。即便如此,接触器也是无法替代和取消的,可见其重要性。
接触器除了可控制电机的合分,还可以控制照明回路,以及无功补偿电容回路。
2.接触器的结构原理图
接触器的结构原理图如下:

图3:接触器的结构原理图
图3中我们看到了接触器的主触头、铁芯、衔铁、线圈和灭弧罩。
再看接触器的实物图:

图4:接触器实物图
图4中一次回路接线端子的内部就是接触器的触头,而二次回路接线端子的内部就是接触器的辅助触点。
注意1:触头和触点不一样。触头用于主回路,其开合能力更大,且配套灭弧罩;触点用于辅助回路,其电流一般不超过5A,且不配灭弧罩。
注意2:接触器的线圈、辅助触点所在回路为二次回路,而接触器的主触头所在回路为一次回路。
3.从电动机控制看接触器主触头、辅助触点和线圈的用途
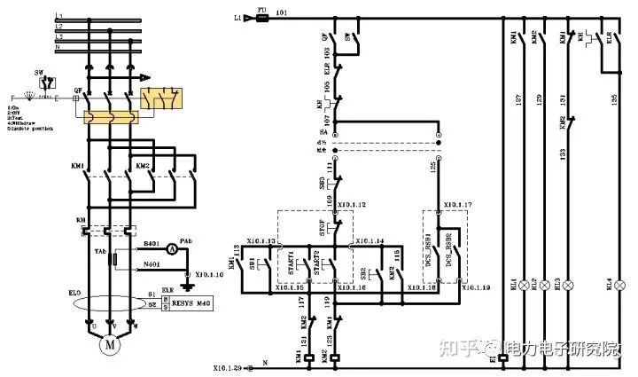
我们看下图:

图5:电动机可逆控制原理图中的接触器
图5是电动机可逆控制原理图。图5的左侧是主回路,我们看到了单磁断路器QF,其下就是正转接触器KM1和反转接触器KM2,再往下就是热继电器KH,以及漏电保护器的零序电流互感器ELD。
注意3:对于热继电器的符号,我们国内用FR来表示热继电器,图5中则用国际标准化组织规定的符号KH来表示热继电器。
图5的右侧是控制原理图,我们在下方看到了接触器的线圈KM1和KM2。由于题主并未问及接触器的控制,也为了压缩篇幅,此处不做解释。如果期望了解详情,可以参阅我的书《低压成套开关设备的原理及其控制技术》第三版的第六章“低压成套开关设备的辅助回路及其控制原理”。
4.关于交流接触器原理的几个技术要点
交流接触器的线圈既可以是交流的,也可以是直流的。如果是交流的,它的铁芯是用硅钢片叠加而成的,且在铁芯磁极处还有铜质短路环,又叫做分磁环;如果是直流的,则它的铁芯是整块电工软铁。
5.交流接触器的选配方法
一般来说,交流接触器的额定电流选择为电机额定电流的1.25倍。
我们看下图:

图6:电动机的起动特性曲线
图6中黄色线就是电机的起动线。我们看到,当电机刚刚加电起动时,它的转子还未旋转,此时的电流最大,叫做起动冲击电流Ip,我们选配断路器时,断路器的短路保护门限必须大于起动冲击电流。接着电机起动加速,电机电流等于4到8.4倍额定电流,我们把它叫做起动电流,一般为6倍额定电流。之后,电机进入运行稳态,电流回归到正常额定电流。由此可见,交流接触器一次触头必须要能够容忍起动电流的冲击。
此外,如果电机是点动或者直接可逆起动,则接触器承受的起动电流就更大。如果接触器不满足要求,则它的一次触头会发生熔焊。
在国家标准GB14048.4-2010《低压开关设备和控制设备 第4-1部分:电动机起动器,……》中有如下定义:

图7:接触器与电机起动方式配套的使用类别
在图7中,我们看到电机直接起动,则叫做使用类别AC-3,而电机可逆起动则叫做使用类别AC-4。对于AC-3,接触器的过载倍率为8倍;对于AC-4,接触器的过载倍率为10倍。
此外,当发生短路时,由于断路器开断短路电流需要一定的时间,短路电流最大值会流过接触器触头。在国家标准GB14048.4中把此叫做短路协调配合关系,见下图:

图8:短路协调配合关系
我们在选用接触器和断路器时,应当选用类型2,确保断路器短路保护时不会发生接触器熔焊。
下图是ABB的断路器、接触器、热继电器在电机直接起动方式下的选配表,供参考:

图9:在短路电流规模为36kA以下的电动机主回路三元件选配表
图9中的断路器与接触器之间满足图8的类型2要求。