来自上海微观室内设计的柯尚达先生,为上海欣旺壁纸办公室打造了全新的工业风loft办公空间,一个灵动通透又粗犷质朴的多功能空间。

项目名称:上海欣旺壁纸办公室
项目地点:上海市闵行区紫秀路100号(虹桥总部1号)
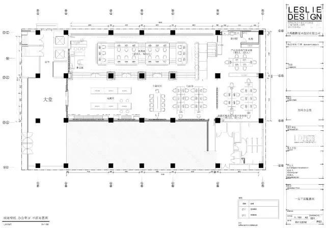
项目面积:一层650平方米+二层200平方米
设计机构: 上海微观室内装饰设计有限公司
▼


公共区(商品选配区、会议区、休息区),办公区(电商部、品牌形象部及大客户事业部、产品设计部与资讯部及2楼的摄影棚、经理办公室)整合在这个足够开敞的loft空间里,布局理想实用,提供了极高的通透性和透明性。
具有浓厚工业风的滑动谷仓门后,木制柜子和展示架呈现了商品选配区的整体格调,朴素自然而真诚。在这个区域,公司的产品得以最直观的的呈现。



一层的电商部。不同部门间,空心砖砌成的墙起到了隔断和分区的作用。粗糙且镂空的空心砖,让空气和光线能够自由流通。略显冷淡的灰色系墙面塑造强烈的冷静和理性质感。

办公室的大部分壁面都呈现这种砖块的粗糙质感,塑造一种阳刚、冷静的氛围。

袒露的天花构造和管道,直率地呈现工业气息。地面采用人字拼花木地板,用稍暖的色调缓和了整个空间的严肃感,也增加了更多层次。

一层大客服部区域。
办公区处处可见的绿植为空间增加了亲和感,为高强度的工作提供了一点舒缓的音符。

不同纹理的木料运用在空间中,形成对比。
空心砖+木料打造了独特造型的台阶,通向架高层。


架高层既是通往2层的过道,也是将工作区作出区分的一个设计。

架高区域的电商部因工作特殊性,采用下沉设计,增加环境的围合感。架高走道贴近桌面并加设磨砂玻璃屏,在没有硬性间隔下保持了流通性,打造独立而易于专注的工作区。位于架高区域下方留有大面积储物空间,满足整个办公室需求,并让通透的空间保持整洁和明朗。



架高层的尽头被划分为休息区。
阶梯上顺势安插一个色彩明亮的卡座,打开休息区活泼的氛围。


吧台的设计也保持浓重的工业风,金属线条吊灯、粗糙的砖块再加上皮具沙发,这个狂放的角落,能让员工远离条框,放松神经愉快交流。

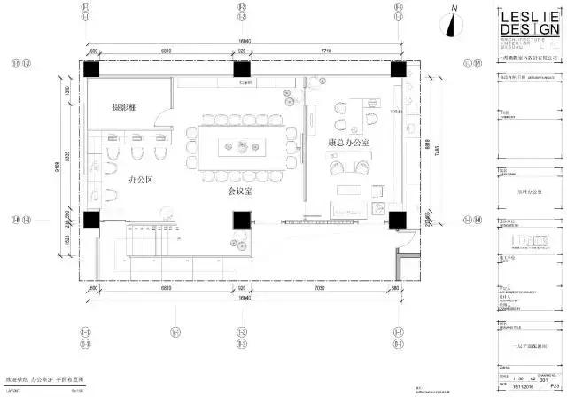
架高层往二楼楼梯处。


长台阶直接通往2楼的高层办公室。


即使是2楼处,和1楼也并非绝对的隔绝,开放的格局让人在二楼放眼看去即可掌控整个办公室的情况。这个地道工业风loft的办公空间发挥了极强个性,体现了新时代城市美学的潮流。
