
一、模板工程
1.1柱模板
施工工艺流程

(1)施工准备
(1)模板施工方案及配模计划齐全,并进行交底;模板按照放样尺寸制作;拼接相邻两模板表面高低差控制在2mm 以内;
(2)使用材料必须满足方案及规范要求,模板应涂刷脱模剂,编号分类堆放,二次周转使用前必须清理干净;
(3)使用机具准备到位。

(2)弹柱边线及控制线
工艺说明:
(1) 按图纸要求弹出横竖向轴线、柱子边线及控制线;
(2) 柱轴线部位可采用红色边长50mm 的“△”标记,并标记“轴线”二字;
(3) 柱边线采用墨线沿设计柱边位置弹出框线;边框线宜两端各延长不少于20cm,备做吊线检查使用;
(4)柱边线向外偏移500mm 处用墨线平行于柱边线弹柱控制线。

(3)剔凿混凝土表面浮浆
工艺说明:
(1) 柱根凿毛,首先剔除柱边线范围内的砼浮浆,直至露出均匀的石子;
(2) 凿毛深度不小于5mm,应将剔凿点间距控制在20~30mm 以内,凿毛应覆盖柱边线内全部范围;
(3) 剔除的浮浆残渣及时清理,并用水冲洗干净。
(4) 应经过监理和业主检查验收

(4)弹柱边线及控制线
工艺说明:
按放出的柱边线焊接Ø20内截面控制筋,每个方向两根。(直径同箍筋,设置于柱模上中下三道)或者在放出的柱边线的柱四个角钻孔打入限位筋。

(5)安装柱模板
工艺说明:
(1) 按放线位置先钉好压脚板再安装柱模板;
(2) 柱子两垂直向加斜拉顶撑;
(3) 柱根部缝隙封堵到位,也可采用砂浆将柱根部外围封堵,不宜采取下压海绵条或其他杂物塞填等形式;
(4) 柱子截面内部尺寸控制在+4、-5mm 以内。

(6)安装柱箍
工艺说明:
(1)柱箍材料选择应根据模板施工方案进行确定;
(2)柱箍间距应符合方案设计要求、并加固牢靠;
(3)柱箍安装应保证其水平,单边长度超过500mm 的柱应考虑设计对拉螺杆加强,对拉螺栓直径应通过计算确定,螺杆扭矩值符合方案要求。

(7)校正垂直度、柱模板验收
工艺说明:
(1) 检查垂直度前首先对其控制线进行复核,再进行垂直度检查。
(2) 模板拼缝严密,相邻两模板表面高低差控制在2mm以内;
(3) 层高≤5m 时垂直度偏差控制在6mm 以内,层高>5m 时,垂直度控制在8mm 以内;
(4)模板柱箍和对拉螺杆符合设计要求,对拉螺杆间距不大于500mm;
(5) 柱根部封堵符合要求。

1.2梁模板
施工工艺流程

(1)施工准备工作(弹轴线及定位线)
(1) 模板施工方案及配模计划齐全,并进行交底;模板按照放样尺寸制作;
(2) 使用材料必须满足方案及规范要求,模板应涂刷脱模剂,分类堆放,并清理干净;
(3) 使用机具准备到位。
(4) 在柱子上弹出轴线、梁位置及水平线,轴线允许偏差5mm,梁截面尺寸线允许偏差+4mm、-5mm。

(2)梁板满堂架搭设
工艺说明:
(1) 架体搭设应符合规范及模板设计专项施工方案要求;
(2) 梁下支柱支承在基土面上时,应对基土平整夯实,满足承载力要求,并在立杆底加设厚度≮100mm 的硬木垫板或混凝土垫板等有效措施,确保混凝土在浇筑过程中不会发生支撑下沉。
(3) 支架立杆的垂直度偏差不宜大于5/1000,且不应大于100mm。
(4) 在立杆底部的水平方向上应按纵下横上的次序设置扫地杆。

(3)安装梁底模
工艺说明:
(1) 根据图纸计算出梁底小横杆标高,并固定牢固;
(2) 梁底模安装前先钉柱头模板,底模安装时需拉线找平,梁跨度≥4m 时,应按规范要求起拱, 起拱高度宜为梁跨度的1/1000~3/1000。起拱顺序:先主梁起拱后次梁起拱;
(3) 模板支设完成后,应对梁底模板标高进行复核。

(4)安装梁侧模
工艺说明:
(1) 梁侧模制作高度应根据梁高及楼板厚度确定;
(2) 支模宜遵循边模包底模的原则;
(3) 梁侧模板须拉线安装;
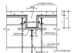
(4) 如遇到梁高超过650mm 时,侧模板安装先安装一边,等梁钢筋绑扎完毕后再进行另一侧梁模板的安装,有效安排工序先后情况,以满足施工要求。

(5)侧模加固及梁模板验收
工艺说明:
(1) 梁高超过600mm 时,梁侧模宜加穿梁螺栓加固;
(2) 梁侧模必须有压脚板、斜撑,拉线通直后将梁侧钉牢;
(3) 梁侧模板应垂直,梁内截面尺寸偏差应控制在+4,-5mm 内;
(4) 梁模板加固方式符合模板施工方案。

1.3模板安装其它要求
(1)柱模板安装
工艺说明:按图纸尺寸制作柱侧模板后,测放好柱的位置线,钉好压脚板后再安装柱模板,两垂直向加斜拉顶撑。柱模安装完成后,应全面复核模板的垂直度、对角线斜拉长度差及截面尺寸等项目。柱模板支撑必须牢固,预埋件、预留孔洞严禁漏设且必须准确、稳劳。

(2)梁模板安装
工艺说明:当梁高超过600mm时,梁侧模须必须采用对拉螺杆加固,梁下必须设单独立杆并与支模架有机连接,且连接点数不少于两处。

(3)边梁模板安装
工艺说明:边梁支模体系严禁与外架连接。

(4)板模板安装
工艺说明:根据立杆支撑位置图放线,保证每层立杆都在同一条垂直线上,应确保上下支撑在同一竖向位置上。对需起拱的模板,应先支好模板,然后将跨中的可调支托丝扣向上调动,调到要求的起拱高度。

(5)剪力墙模板安装
工艺说明:剪力墙外墙模板安装时,需预留老螺杆并贴海绵胶,防止上下层接茬处错台及漏浆。内墙墙根处为防止烂根,模板下部外侧采用砂浆封堵。

二、钢筋工程
1.1柱钢筋绑扎
施工工艺流程

(1)施工准备工作
(1) 按图纸和操作工艺标准向班组进行交底,对钢筋绑扎安装顺序予以明确规定:
(2) 施工方案中,对于锚固、搭接、连接等各节点的引用应给予明确,统一方案、施工、验收依据一致。
(3) 材料准备:成型钢筋、钢丝、垫块等到位;
(4) 主要机具准备到位。

(2)修理柱钢筋
工艺说明:
(1) 下层伸出的柱纵向筋或插筋上的混凝土、油渍、锈斑和其他污物应清理干净;
(2) 复核柱主筋定位情况,确保柱主筋保护层厚度满足设计要求,主筋均匀排布;

(3)套柱箍筋
工艺说明:
(1) 按图纸要求间距计算好每根柱箍筋数量;
(2) 按照箍筋定位线套箍筋,箍筋弯钩叠合处沿柱四角错开摆放;
(3) 先将箍筋套在下层伸出的钢筋上;
(4) 箍筋的端头应弯成135°,平直部分长度不小于10d;
(5) 柱主筋间距定位准确。

(4)安装竖向受力筋
工艺说明:
(1) 4.1 柱竖向钢筋连接方式一般为机械、焊接连接和绑扎连接;
(2) 当受力钢筋采用机械连接接头或焊接接头时设置在同一构件内的接头宜相互错开,连接区段的长度为35d倍(d为纵向受力钢筋的较大直径)且不小于500mm;
(3 同一构件中相邻纵向受力钢筋的绑扎搭接接头宜相互错开,接头连接区段的长度1.3L;
(4) 接头宜避开柱端箍筋加密区;
(5) 机械连接和焊接接头符合规程要求。
(5)画箍筋间距线(或立皮数杆)
工艺说明:
(1) 在柱对角纵向钢筋上划箍筋定位线,且柱第一道箍筋的位置离板面50mm;箍筋间距控制线偏差控制在20mm 以内;
(2) 柱底部箍筋的加密高度不应小于柱的长边尺寸和所在楼层楼层柱净高度的1/6,且不应小于500mm;
(3) 柱顶部箍筋的加密高度不应小于“柱底部箍筋加密区高度+柱顶部截面最大的梁的截面高度”。
(6)绑扎箍筋
工艺说明:
(1) 箍筋一般由上往下绑扎,采用缠扣绑扎;
(2) 箍筋与主筋要垂直,箍筋转角处与主筋交点均要绑扎,主筋与箍筋非转角部分的相交点成梅花交错绑扎;
(3) 箍筋的弯钩叠合处应沿柱子竖筋交错布置,并绑扎牢固;
(4) 设计要求箍筋设拉筋时,拉筋应钩住箍筋外面;
(5 柱筋保护层厚度:垫块(水泥垫块、塑料垫块)应绑在柱竖筋外皮上,间距一般为1000mm。
(7)柱钢筋验收
工艺说明:
(1) 钢筋的型号规格必须符合设计要求和有关标准的规定,并需经检验合格;
(2) 钢筋的表面必须清洁;
(3) 钢筋规格、形状、尺寸、数量、间距、锚固长度、接头位置,必须符合设计要求和施工规范的规定;
(4) 钢筋焊接或机械连接接头的机械性能结果,必须符合钢筋焊接及机械连接验收的专门规定;
(5) 钢筋保护层厚度措施到位。
1.2 直螺纹钢筋加工
(1)直螺纹加工(端头处理)
工艺说明:所加工的钢筋应先调直后再下料,切口端面与钢筋轴线垂直,不能有马蹄形或挠曲。采用钢筋切断机下料时,必须根据钢筋大小采用特制的带半圆弧的刀片或者采用砂轮切割机进行下料。

(2)直螺纹加工(丝扣加工)
工艺说明:在丝头加工时应对每种规格的丝头螺纹进行外观质量、螺纹尺寸(采用环规)、螺纹长度、螺纹数自检,做好检验记录,已检验合格的丝头螺纹应做好检测标示并用塑料保护帽或拧上连接套筒加以保护,防止装卸时损坏,并按规格分类堆放整齐。安装完成的外露丝扣不得大于2P。

(3)梯子筋加工
工艺说明:梯子筋加工时以剪力墙纵向筋为主架骨,水平筋为支筋,通过焊接方式将主筋与支筋连接。梯子筋的具体做法要依据施工方案,水平筋在竖向筋外侧时,梯子筋的主架骨间距为墙体厚度减去2个保护层厚度减去2个水平筋厚度,水平筋内置时为墙体厚度减去两个保护层。

1.3 钢筋工程其它要求
(1)板钢筋安装
工艺说明:板钢筋安装须弹下部受力钢筋标记线,第一道距两边间距为1/2的板间距,再按间距依次弹线。

(2) 梁钢筋安装
工艺说明:梁端第一个箍筋应设置在距离柱边缘50mm处。梁端与柱交接处箍筋应加密,其间距与加密区长度均应符合设计要求。在主、次梁受力筋下均应垫垫块,保证保护层的厚度。

(3)柱钢筋安装
工艺说明:箍筋需画箍筋间距,从地面向上50mm起线,画线间距必须保证柱筋垂直,应拉长尺寸分段标注。

(4) 直螺纹连接
工艺说明:连接钢筋时应采用扳手或管钳进行旋拧,应使钢筋丝头在套筒中央位置相互顶紧,安装后必须有外漏螺纹且不宜超过2P,钢筋接头拧紧后采用力矩扳手进行拧紧力矩值检查并做好检查表示和检查记录。
(5)柱箍筋位置
工艺说明:框架柱模板上口设置定位箍筋框,用于控制钢筋位移,定位箍分内控式和外控式两种,置于柱顶的定位箍可周转使用。
(6)剪力墙钢筋安装
工艺说明:剪力墙间距1500mm左右设置一道梯子筋,取代该处纵向钢筋及拉钩。剪力墙在混凝土浇筑前,设置一道定位筋,防止剪力墙钢筋偏位。
(5)复杂节点处放样
工艺说明:在多梁交叉或梁柱接头等复杂节点处,可采用BIM等软件进行软件放样,方便节点处模板支设。

(6)梁柱接头钢筋优化
工艺说明:梁柱接头配筋较多,存在梁钢筋无法从柱立筋间穿过的现象,优化方案为按照1:1的比例进行电脑放样,并与设计沟通,将部分柱主筋调整到二排。直径小的钢筋用大直径钢筋代换。部分无法代换的梁,调整一、二排钢筋的数量。
三、混凝土工程

(1)施工准备工作
(1) 技术准备:已进行技术交底,标高、轴线、模板等已进行技术复核;
(2) 商品混凝土准备到位,保证不间断浇筑;
(3) 主要施工机具准备到位;
(4) 在浇筑混凝土前,木模板应浇水湿润,但模板内不应有积水;
(5) 完成钢筋隐蔽验收和安装预留预埋等相关工作;
(6) 并已办理浇筑申请表和配合比。
(2)砼浇拌及运输
工艺说明
(1) 严格按照确定混凝土设计配合比进行生产搅拌;
(2) 不定期去搅拌站检查原材料、根据配合比下料及自控情况。
(3) 混凝土运输车装料前应将拌筒内、车斗内的积水排净;
(4) 运输途中拌桶应保持3-5 转/分的慢速转动,混凝土应以最少的转载次数和最短时间,从搅拌地点运到浇筑地点。

(3)混凝土进场验收
工艺说明:
(1) 检查预拌混凝土出厂合格证(收料单);
(2) 混凝土外观检查(色泽是否异常、是否有离析等;
(3) 塌落度检测;
(4) 根据混凝土试块留置试验方案要求留置混凝土试块。
(4)砼浇拌及运输
工艺说明:
(1) 柱水平接缝水泥砂浆接浆层厚度不应大于30 ㎜,接浆层水泥砂浆材料应与浇筑混凝土浆液成分相同,混凝土应分层振捣,一般情况下分层厚度不超过300—500mm,振捣器插入下一层混凝土不小于100mm,振捣器不得触动钢筋和预埋件。派专人“看模”:模板和支撑变形监测、混凝土振捣密实程度检查和混凝土辅助振捣;
(2) 柱高超过3m 时,应采取措施用串桶或在模板侧面开门子洞安装斜溜槽分段浇筑;
(3) 柱混凝土应一次浇筑完毕,如需留施工缝时应留在主梁下面。无梁楼板应留在柱帽下面。

(5)剪力墙混凝土浇筑与振捣
工艺说明:
(1) 水平接缝处理同柱,剪力墙混凝土浇筑前,应先在底部均匀浇筑5cm 厚与墙体混凝土相同的水泥砂浆,并用铁锹入模,不应用料斗直接灌入模内;
(2) 每层混凝土的浇筑厚度控制在500mm 左右进行分层浇筑、振捣。混凝土下料点应分散布置。墙体连续进行浇筑,间隔时间不超过2h;
(3) 墙体上的门窗洞口浇筑混凝土时,宜从两侧同时投料浇筑和振捣;
(4) 振捣棒移动间距应小于50cm,每一振点的延续时间以表面呈现浮浆为度,为使上下层混凝土结合成整体,振捣时注意钢筋密集及洞口部位。
(6)梁板混凝土浇筑与振捣
工艺说明:
(1) 梁板应同时浇筑,浇筑方法应由一端开始用“赶浆法”,即先浇筑梁,根据梁高分层浇筑成阶梯形,当达到板底位置时再与板的混凝土一起浇筑,随着阶梯形不断延伸,梁板混凝土浇筑连续向前进行;
(2) 和板连成整体高度大于1m 的梁,允许单独浇筑,其施工缝应留在板底以下2~3cm 处。浇捣时,浇筑与振捣必须紧密配合,第一层下料慢些,梁底充分振实后再下料,梁底及梁侧部位要注意振实,振捣时不得触动钢筋及预埋件;
(3) 施工缝位置:宜沿次梁方向浇筑楼板,施工缝应留置在次梁跨度的中间1/3 范围内。施工缝表面应与梁轴线或板面垂直,不得留斜搓。施工缝宜用木板或钢丝网挡牢。
(7)楼梯混凝土浇筑与振捣
工艺说明:
(1) 楼梯段混凝土自下而上浇筑,先振实底板混凝土,达到踏步位置时再与踏步混凝土一起浇捣,不断连续向上推进,并随时用木抹子(或塑料抹子)将踏步上表面抹平;
(2) 施工缝位置:楼梯混凝土宜连续浇筑完,多层楼梯的施工缝应留置在楼梯段1/3 部位且不得少于3 步。
(8)混凝土养护
工艺说明:
(1) 混凝土浇筑完毕后,应在12h 以内加以覆盖和浇水,浇水次数应能保持混凝土有足够的湿润状态,一般混凝土养护期不小于14 昼夜;
(2) 当温度低于5℃时,不得浇水养护混凝土,应采取加热保温养护或延长混凝土养护时间;
(3) 冬期施工的混凝土拆模后混凝土的表面温度与环境温度差大于150C 时,应对混凝土采用保温材料覆盖养护;
(9)混凝土质量验收
工艺说明
(1) 模板拆除后及时对混凝土外观质量进行验收,并检测其混凝土强度和碳化值;若存在混凝土外观一般质量缺陷,应及时进行处理;
(2) 应对墙、柱、楼梯阳角部位设置护角,防止损害。
四、砌体工程
施工工艺流程

(1)施工准备工作
(1) 主体结构尺寸偏差交接工作(安装工程的预留预埋等)。
(2) 砌体工程施工方案及技术交底。
(3) 使用材料必须满足设计和施工技术规范的要求。
(4) 主要机具准备到位。
(2)基层处理
楼层进行清理,将基层上的浮灰清扫干净并浇水湿润,以保证粘结牢固。
(3)墙体弹线定位
(1) 在结构墙柱上弹好标高控制线,在楼地面上弹好墙身线、门洞口线、构造柱定位线;
(2) 在结构墙上、框架柱上弹好填充墙立边线、过梁位置线等位置线。
(4)清理核实安装预埋管
(1) 机电管线在墙内时,由安装施工人员将原结构中的预埋管清理干净、破坏的维修到位,核实预埋管的定位位置,并做好保护;
(2) 水电安装提前提供出穿墙的管道、管线位置,以便砌筑时预留孔洞。
(5)构造柱钢筋绑扎及墙体拉结筋植筋
(1) 砌筑前,按照图纸中构造柱的设置要求及钢筋配置情况,绑扎构造柱钢筋;
(2) 内外墙按照图纸设计的构造要求,在框架柱、剪力墙等原结构上进行打孔植筋,设置墙体拉结筋,并在拉结筋端头绑扎扎丝以便砌筑完毕后可检查结筋长度。
(6)墙体排砖、撂底
(1) 将墙体按照层高进行画出排版图,并张贴于墙柱上;
(2) 部分楼、地面凹凸不平,在砌筑前用1:3 水泥砂浆撂底找平。
(7)立杆挂线、墙体砌筑
(1) 墙体挂线,设置皮数杆砌筑。皮数杆标注出门洞口、过梁、圈梁等标高。将皮数杆竖立于墙的转角处和交接处;
(2) 每层开始砌筑时,应从转角处或定位砌块处开始砌起;有构造柱的墙体砌筑时,从构造柱开始向两侧进行。
(8)构造柱支模、混凝土浇筑
(1) 构造柱支模前沿砌体马牙槎凹凸边缘贴上双面胶,保证严密不漏浆;
(2) 构造柱模板一侧满封,另一侧模板顶端临空做成V 口,伸出构造柱面10cm,形成斜三角,与构造柱一起浇筑,使顶部混凝土密实,待拆完模板,混凝土达到强度后,将斜三角剔凿平。
(9)斜砌、顶缝处理
(1) 填充墙砌筑至梁底或板底时留20cm,待砌筑完14 天后采用蒸压粉煤灰砖按60°补齐挤紧;或留3-5cm 用干硬性C25 膨胀细石混凝土填塞;
(2) 墙中填塞等边三角形加气混凝土块或预制混凝土块,两端填塞直角三角形块加气混凝土块或混预制凝土块。
(10)养护及验收
(1) 要求墙面应整洁,灰缝横平竖直、厚薄均匀、饱满;
(2) 砌体组砌方法正确,上下错缝,转角、定字接头部位搭接正确;
(3) 构造柱混凝土外光内实,马牙槎先退后进,尺寸一致。
来源网络,版权归作者所有