[比心]立品装饰 树立行业标杆-打造品质工程 [中国赞]该项目位于郑州市银基王朝,面积400平方米。 [加油]本案是妙谛瑜伽的分店,经过旗舰店的设计之后,于甲方的沟通更加顺利,整体设计20天完成。 [给你小心心]弧形前台及接待台得设计让空间更具趣味性,等待区采用卡座式,不占用空间,亦能容纳更多的人。

平面图1

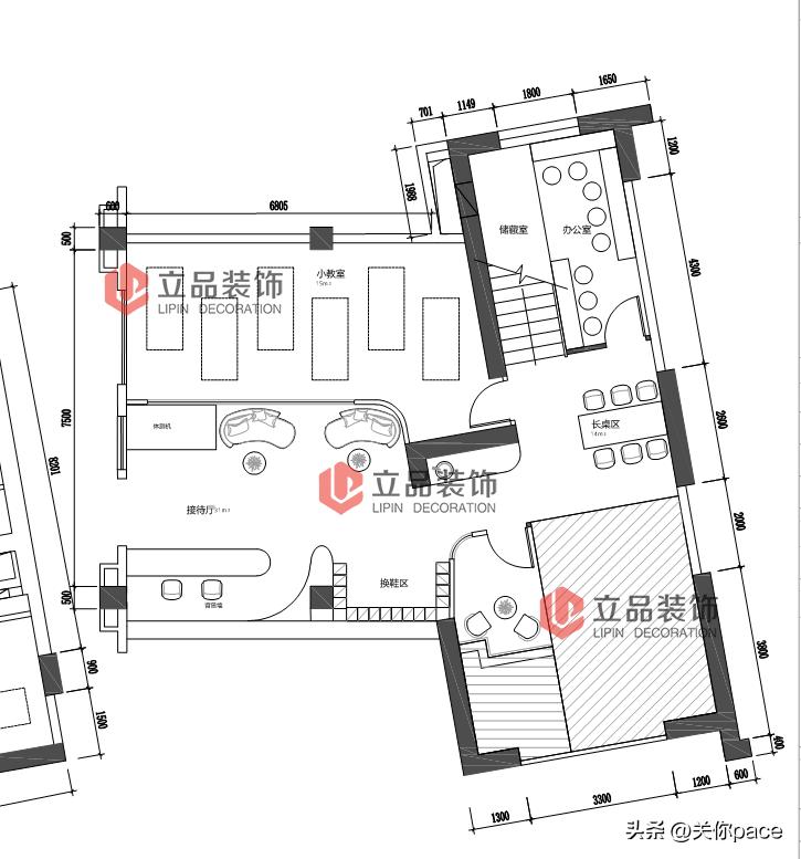
平面图2

接待大厅1

接待大厅2

一层小团课教室

二层大团课教室

走廊

公共休闲区1

公共休闲区2

更衣室/淋浴房
[比心]立品装饰 树立行业标杆-打造品质工程 [中国赞]该项目位于郑州市银基王朝,面积400平方米。 [加油]本案是妙谛瑜伽的分店,经过旗舰店的设计之后,于甲方的沟通更加顺利,整体设计20天完成。 [给你小心心]弧形前台及接待台得设计让空间更具趣味性,等待区采用卡座式,不占用空间,亦能容纳更多的人。

平面图1

平面图2

接待大厅1

接待大厅2

一层小团课教室

二层大团课教室

走廊

公共休闲区1

公共休闲区2

更衣室/淋浴房