
来自 Dal Pian Arquitetos 对gooood的分享
位于瓜鲁柳斯的社会服务商会(SESC)办公大楼是一座为大众设计的、友好而亲切的公共建筑,融合了文化、运动、教学、健康、娱乐和休闲等多种功能,旨在鼓励和促进人与人的相遇、共存与互动。
▼项目概览

项目坐落在瓜鲁柳斯国际机场和Zezinho Magalhães住宅综合体附近的一个城市化区域,其周围景观拥有较为复杂的肌理,有时呈现为碎片化和不连续的状态,这是城市发展和变化过程带来的一种典型的影响。基于这种环境,该项目期望能够凸显出SESC作为社会沟通者和文化推进者的身份,使其不仅以建筑功能和特定的解决方案为导向,还致力于构建更加连贯、统一和富有凝聚力的城市场景。
▼城市环境
▼户外运动场地鸟瞰

建筑的入口与城市道路相融,给人以宽敞和放松的感觉,吸引着人们走进并真正地去使用它的每个空间。内部的功能区域围绕着宽阔的“共生广场”(Coexistence Plaza)分布,后者在接收和汇聚人流的同时,也连接了建筑内部的各种功能空间。透明的立面将广场内的场景暴露在周围环境当中,反过来也为室内引入了周围的景观。屋顶系统由金属栅格、玻璃、排气装置构成,同时装有以穿孔铝板制成的横向百叶窗,起到遮阳和过滤光线的作用。
▼入口立面

▼入口立面和屋顶系统细部

▼透明的立面将广场内的场景暴露在周围环境当中

▼“共生广场”

▼“共生广场”连接了建筑内部的各种功能空间

交通空间通过斜坡、步道和走廊简单而精确地被组织起来,将使用者的活动呈现在建筑外部,增强了大楼的外向性特征。功能空间主要分布在三个楼层:
▼斜坡、步道和走廊

▼交通空间

首层
首层空间通过“共生广场”与周围环境联系起来,包括客户服务中心、展览空间、牙科诊所以及儿童和青少年活动中心等。室内体育馆和与其配套的厕所及更衣室使公共区域的功能变得更加完善。汽车停车场的两侧分别设有装卸庭院和物流区,并各自拥有独立的入口。这一布局能够有效地组织服务流线,提高剧院、餐厅和综合体中其他区域的运行效率。
▼室内体育馆

▼体育馆与“共生广场”相连

▼从步道望向体育馆

中间层
剧院和朝向共生广场的门厅构成了一个独立的实体,将舞台、观众席、设备翼以及后台区域结合起来,能够满足SESC大楼活动的各种需求。
▼剧院

与自然地形相融合,该层还设置了水上运动中心(露天和室内)以及户外运动场。设有日光浴平台的泳池与朝向共生广场的美食广场为使用者带来丰富多彩的视觉体验。
▼水上运动中心

▼室内泳池

▼户外运动场

▼运动场和泳池鸟瞰

该楼层还包含行政办公室、图书馆、环保站和户外花园等空间。
▼图书馆

▼活动室

▼展览空间

▼通往花园的走廊

▼户外花园

▼花园鸟瞰

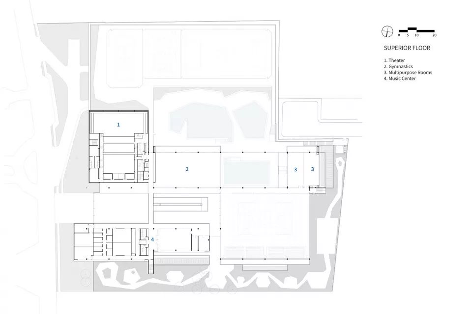
顶层
顶层空间包含多功能的体育馆和体育活动室。入口走廊同时连接了体育馆的双层高中庭、室内游泳池以及共生广场。面向水上运动综合体和运动场的阳台提供了户外健身空间,在提高空间利用率的同时还为下方的美食广场提供了荫蔽。功能齐备的音乐中心最终为整个综合体充满活力的功能空间添上了完美的一笔。
▼夜间整体鸟瞰

▼夜间外观

项目图纸
▼一层平面图

▼中间层平面图

▼顶层平面图

▼剖面图

▼光照和通风分析

版权©www.gooood.cn,欢迎转发,禁止以gooood编辑版本进行任何形式转载

▼ 网站最新24小时精彩项目集锦
