审美者常常并不需要知道原理,但是创造美的人必须有方*论法**,否则不可能持续创造。
高端大气极具奢侈感的老佛爷百货向来被看作是精英文化的具体展现。运用稀缺的装饰材料、精致的细部处理以及别具一格的空间设计手法,是环境带有尊贵气质,给消费者以尊贵的身份象征。
在全球百货业市场不景气的情况下,老佛爷百货也开始通过兼顾轻奢、高端和重奢不同定价段位的品牌,门店设计风格和商业模式等方式积极应对外界冲击与老旧内部运营模式所带来的问题。
本文就从老佛爷百货新开业的3家门店内部设计风格进行简析,看百货业“万神殿”如何打造崭新百货体验空间。

-1-
巴黎·老佛爷百货香榭丽舍大道旗舰店
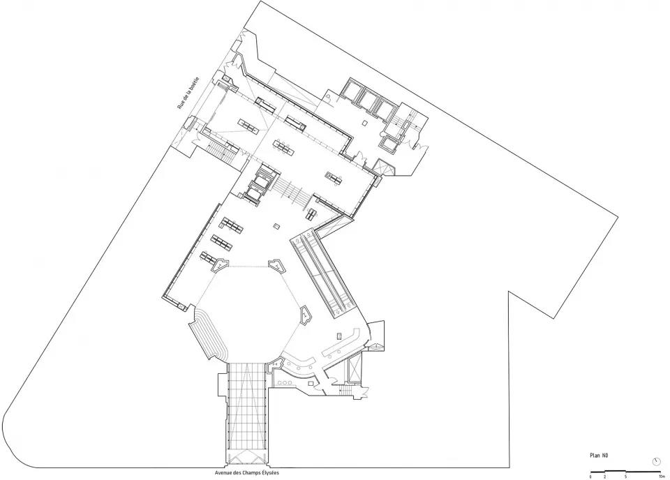
老佛爷百货香榭丽舍大道旗舰店位于一座修建于1932年Art Deco风格(艺术装饰风格)的银行大楼内,并请来了知名丹麦建筑师Bjarke Ingels和他的团队BIG设计这家香榭丽舍大街新店,旨在保留建筑本身1930年代的艺术装饰风格,又能够融入21世纪的当代设计元素,使室内和室外空间巧妙衔接,购物、餐饮和活动空间轻松转换。
佛爷百货集团将该店定位于“21世纪的高端商场”,希望能够营造一个愉悦轻松、充满游乐氛围的购物空间。从开业后的情况来看,占地面积6500平方米的店内提供600多个奢侈品牌和设计师品牌,并非如传统依照品牌和性别陈列,而是按照风格推荐,还安排专门陪同客户并提供咨询的“个人造型师”等,为客户提供高端购物体验,该店专门进行了方便客户自拍和上载社交媒体的设计,以应对来自世界各地的新型消费形式。

商场外观
作为著名的香榭丽舍大道上面积最大的商店,四层高的宽敞空间结合了旧时的优雅与现代的时尚感,将为公众带来一系列经典和新潮的品牌以及各种各样的活动和体验。

核心与外围:Art Deco建筑的温暖核心与新门店的现代化设计形成碰撞。

重新焕发光彩的Art Deco建筑
按法国对历史建筑的保护规范来说,对于这样一座有头有脸的老建筑进行改造,还需要满足政府和老佛爷集团的要求,其操作难度和可发挥的余地可想而知。而在本次的改造中,设计充分尊重了历史建筑的触感和肌理。在游览商场的过程中,顾客将不断邂逅建筑中以现代方式重新被诠释的珍贵材料与精美细节。
试想在一座没有玻璃保护罩博物馆里参观,能与历史亲密对话是是何等的体验,该旗舰店便是让消费者漫步在画廊般的空间周围,如同穿越一系列尺度亲切的建筑元素,并从中收获各具特色的购物体验。

核心与外围:建筑历史悠久的内部空间与画廊般的围合结构
形成和谐的关系,高高的天花板带来充足的光照。

中庭空间
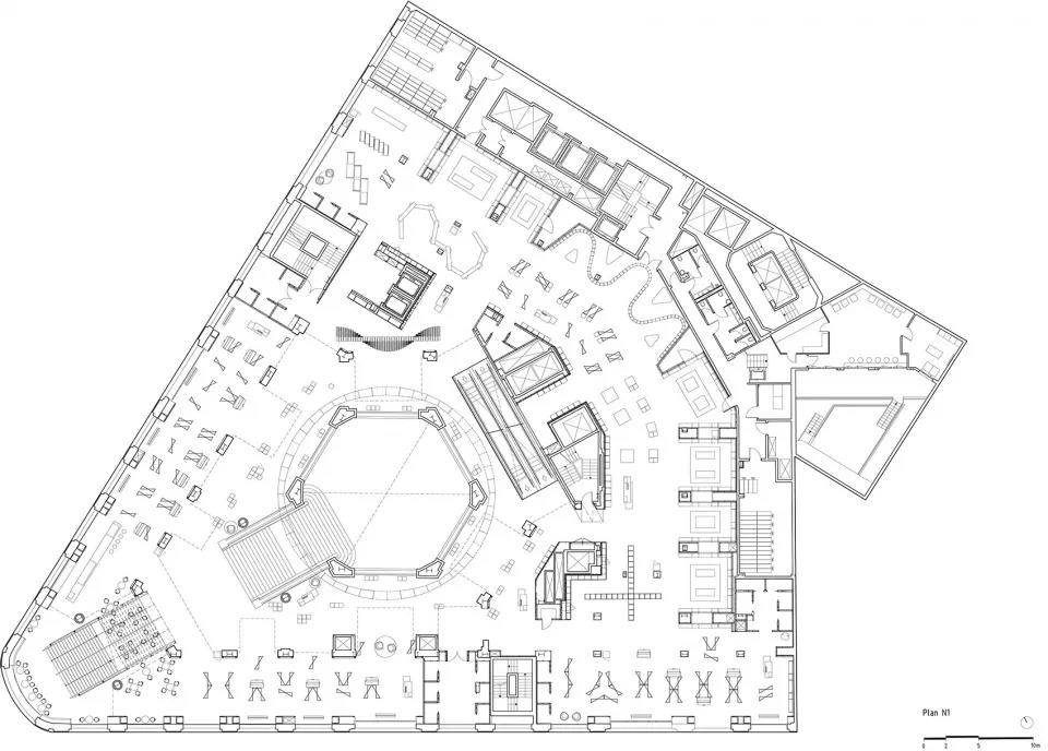
顾客们可以从街道层的内向式入口进入大楼,一座耀眼夺目的桥将人们带往建筑的中心:一座富有戏剧性的、由巨大玻璃圆顶覆盖的圆形中庭,在经过修复之后可以带来最大化的光照。

首层空间

内向式入口走廊

圆形中庭

巨大玻璃圆顶带来最大化的光照

天窗细部
整个商场在首层空间充分打开,为品牌宣传、时装秀和其他特殊活动提供了明亮的聚集场地。在活动期间,宏伟的楼梯也可作为观众区域。
在平时,楼梯将顾客引向二层的多功能空间,这里主要用于展示创意新兴品牌,同时还提供丹宁布实验室、珠宝展示空间以及限量版运动鞋和科技产品展示空间。由穿孔金属板构成的金色圆环将所有的立柱围绕起来,创造出一个连续的面向中庭的嵌入式展示空间。

二层空间

由穿孔金属板构成的金色圆环将所有的立柱围绕起来

圆环围绕着中庭构成展示空间

顾客们可以从商场一层直接看到上方楼层的空间,这能够吸引他们去探索不同的空间和活动。楼梯采用了温暖的金属饰面和与中庭配色相呼应的条带状玻璃。

楼梯

金属饰面和条带状玻璃
探索商店和不同楼层的体验就像是参观一场精心设计的展览,家居元素早已超越了存储物品的功能:地毯被做成了更衣室;展示台面同时也是雕塑作品;鞋子被展示在一张张“魔毯”上——它们同时也可用作试鞋时的座位。

试衣间

探索商店和不同楼层的体验就像是参观一场精心设计的展览

珠宝展示区

珠宝展示区

运动鞋被展示在一张张“魔毯”上

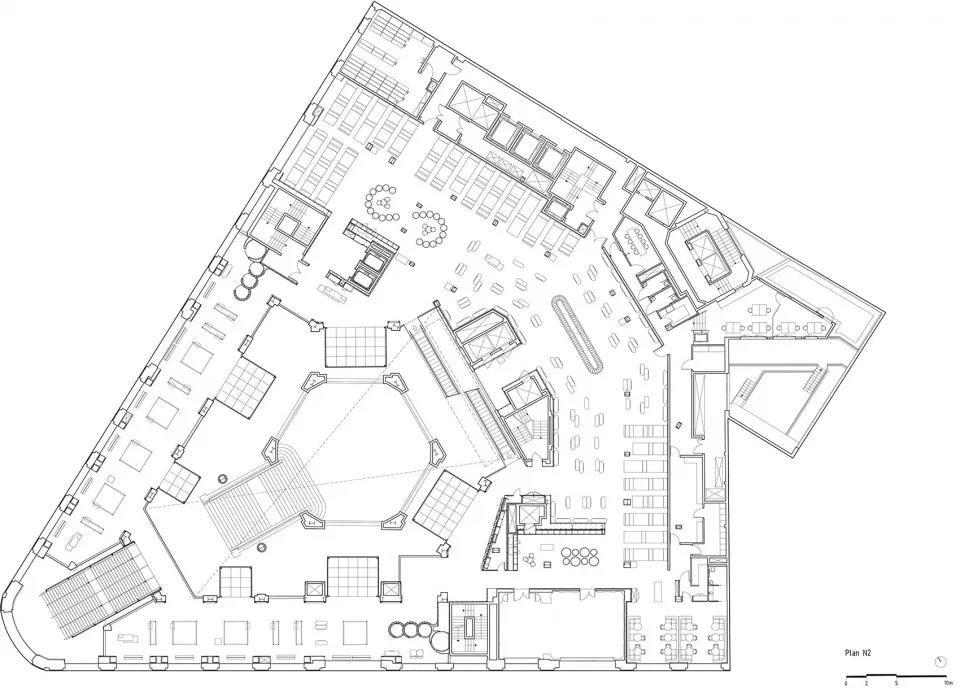
顶部的几个楼层更为精致,延续了将家具视为工艺品的理念。顶层空间设有一系列悬浮的玻璃橱窗,看上去如同是独立的艺术品,可以承载不同类型的活动,并且可以直接从底下的楼层望见。

三层空间

悬浮的玻璃橱窗犹如独立的艺术品

橱窗细部

三层的Oursin餐厅为顾客提供了用餐和欣赏城市美景的空间。二层的Citron咖啡厅也是放松身心的好去处。餐厅和咖啡厅均是由法国时装设计师Simon Porte Jacquemus设计并由Caviar Kaspia餐饮公司运营。
与此同时,商场的地下层是一座巴黎美食广场,包含各式各样的杂货店和饮食店,并分为“甜味”和“咸味”两个部分。此外还有大量的吧台围绕在热闹的共享餐桌旁边。

休闲咖啡厅

咖啡厅由法国时装设计师Simon Porte Jacquemus设计

临街立面

首层平面图

二层平面图

三层平面图

地下一层平面图

立面图
-2-
土耳其·老佛爷百货伊斯坦布尔店
老佛爷百货伊斯坦布尔店坐落于土耳其亚洲文化区emaar广场,面积达9500平方米,是为追逐法式时尚的土耳其消费者准备的化妆品,首饰珠宝,提包,鞋品,儿童服装和家居用品集成店。

商城入口外观

商城入口外观
老佛爷伊斯坦布尔店是进入土耳其的第一家门市店,这就意味着,该店铺需以精准的设计定位和独特的空间呈现来奠定良好的市场基础。因此如何用全新的设计语言,趣味性的材料混搭,独特的灯光投射和色调来突出老佛爷百货独有的风格以及迎合土耳其潮流达人们的喜好是关键。
外立面入口的法式招牌深深的印刻在橱窗外,木质或是磨砂玻璃打造的商店内墙成为子品牌的边界围挡,它们以统一的设计语言贯穿商店始终。各子品牌展示空间内的家具和搭配装饰,营造了各自独特又私密的环境,自然光的映射让外立面彰显舒适的氛围。

区域分明的内部环境
直径达20米长的中庭成为该购物商城的设计亮点,重达80吨的抛光钢棱镜面穹顶凌驾于该中庭之上。该中庭穹顶采用全新的激光切割技术,是对法国老佛爷商城穹顶的艺术化呈现,也是美丽和高科技的化身。

中庭拥有抛光钢棱镜面穹顶

中庭拥有抛光钢棱镜面穹顶

穹顶采用全新的激光切割技术

直观导示系统是购物商城的室内设计难点。与设置中央轴线这种惯用手法不同的是,plajer & franz采用对比性材料来强调不同的空间环境,让顾客感受到场景的变化。天然石材地板将步行通道分别开来,商店区域由木质地板铺设。装饰性的照明及天花板材让售货区与众不同。

商品销售区采用木质地板

步行通道采用天然石材地板铺设


独特的天花装饰创造营造不同的区域氛围

试衣间

试衣间

底层平面图

底层平面图

底层平面图
-3-
中国·老佛爷百货上海旗舰店
与伊斯坦布尔店一样,老佛爷百货在上海开出的第一家旗舰店,也是在购物中心——L+Mall里,该购物中心位于上海浦东“黄金角”地段,其商业定位是针对中高端,精致卓越的精英人群及家庭对生活品质的追求,在室内空间设计中也体现着精品奢华的同时凸显未来科技感。因此“身居其中”的老佛爷百货,与购物中心做了协调和呼应,一改巴黎总部拜占庭奢侈贵族画风,整体设计走轻快明亮色调,更偏现代感的法式文艺风。
老佛爷百货上海旗舰店走的是设计、年轻、时尚、潮流路线,用彩虹色作为空间内的一大看点,处理的还是非常讨巧和时尚。



即便是在购物中心内,老佛爷百货也另打造了贯穿1~4层都做了高大挑空中庭,在2-4层是知名艺术家Felice Varini设计的作品Danse d’Ellipses(圆之舞),其实图形局部分布在各个楼层的墙面、顶部、扶梯之上,但奇妙地利用了空间视觉差后,在2层的最佳点位让作品看起来仿佛悬空挂在空中。


挑空区域的另一侧,则是灵感来自梯田的错层绿植装饰平台,养殖的都是真植物。



上海老佛爷百货的中庭则会用来开设快闪店、举办活动,还有放一些有趣的装置。
由于上海老佛爷百货是作为陆家嘴中心L+Mall的主力百货店形式存在,在布局上更显开放,商场内部是单动线,比较流畅。

老佛爷百货与购物中心每层分界
250005层面积,并且得益于商场的单动线,老佛爷百货还是非常好逛的,整个动线是带有一点点分枝的Ω形。

平面图
老佛爷百货卫生间设计风格与商场一致,也是极具未来感的“银河主题”,每层格局有些变化,但大致上都是超大洗手池和化妆镜。但唯一的bug是厕所隔间偏小,关门、开门都需要侧身才能进行。另外,或许是试营业阶段的关系,老佛爷百货内的厕所隔间内没有如商场内一样配备手机置物台和马桶盖消毒液。


每个楼层都专设一个精心策划的跨品牌区域EDIT,由老佛爷百货的时尚买手精心挑选时尚前沿设计师品牌。并对应每个楼层的主题以不同颜色做一区分,设计休息处和试衣间。

客服中心

“时尚的缔造者(Fashion Creator),但不仅限于时尚,更是融合了艺术、设计的多元空间。” 这是老佛爷百货国际业务高级副总裁Philippe Pedone对上海旗舰店的定义。
过以上项目,可以体会到,老佛爷百货不只是打造人们购物的目的地,更是通过结合零售、时尚、设计和艺术的创意空间,来强化“老佛爷百货”这个超级符号,这就是不管其内部设计的风格如何创新,运营模式怎样革新,依旧能感受到其高辨识度、信息压缩和强指令性。光滑的大理石地面,精心设计的橱窗、舞台感的装饰,不断强化着脱离日常生活的奢侈感,都是在刺激消费者的感官,让消费者能够在这里一掷千金。