十米面宽十五米长二层欧式别墅 (面宽25米进深12米二层欧式别墅)

24.3m×7.9m,福建三明超大面宽的欧式别墅

80平米经典欧式二层小别墅设计图,13.6米面宽带小院的欧式二层别墅

项目名称

福建三明阙家欧式别墅

项目经理

林枝和

图纸编号

1420

建筑面积

331.5㎡

占地面积

179.2㎡

建筑尺寸

24.3m×7.9m

建筑结构

砖混结构

参考造价

53.1万元(不含室内装修费用)

项目概况

80平米经典欧式二层小别墅设计图,13.6米面宽带小院的欧式二层别墅

△总平面示意图

基地情况:

东:荒地

西:村内道路

南:水池

北:山坡

项目简介:

业主在项目前期提出了空间功能上的大致需求,在平面上,对于屋子的数量也有自己想法。并提出所有数据按照鲁班尺吉数进行设计。设计师根据现场情况,加上业主的需求和喜好,将项目形式确定南北朝向的欧式二层别墅。

平面布局

户型概况:

2层 / 4室 1堂室 1土灶 1厅 5卫 1厨 1储藏 1茶室 1杂物 1平台 1阳台 1露台

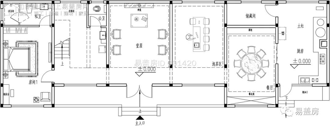
80平米经典欧式二层小别墅设计图,13.6米面宽带小院的欧式二层别墅

△一层平面图

一层以实用为主,建筑的南侧设置两个出入口。东侧的土灶和开放式厨房相衔接;中部的堂室空间增设佛龛,西南侧预留卧室套房空间,增设休息区功能,以满足业主接待亲友居住需求。

80平米经典欧式二层小别墅设计图,13.6米面宽带小院的欧式二层别墅

△二层平面图

二层作为主要起居空间,继续扩充待客的公共空间,使得空间划分更加明确,东侧增设主人套房搭配露台使用,在屋里就能享受到独特、环境清幽的生活。

造型设计

80平米经典欧式二层小别墅设计图,13.6米面宽带小院的欧式二层别墅

△南侧效果图

80平米经典欧式二层小别墅设计图,13.6米面宽带小院的欧式二层别墅

△西南侧效果图

80平米经典欧式二层小别墅设计图,13.6米面宽带小院的欧式二层别墅

△东南侧效果图

建筑整体为简欧风格,立面以真石漆和文化石为主,淡雅的颜色将建筑的优雅浪漫表达出来。南侧门头选用方柱通过拱形门洞,配合欧式经典线脚展现精美和大气。

80平米经典欧式二层小别墅设计图,13.6米面宽带小院的欧式二层别墅

△院门口效果图

80平米经典欧式二层小别墅设计图,13.6米面宽带小院的欧式二层别墅

△鸟瞰图

80平米经典欧式二层小别墅设计图,13.6米面宽带小院的欧式二层别墅

△西侧效果图

除主体建筑外,南北两侧预留庭院区域,通过设计将建筑点缀在周边景色中,自然又具有温馨的气氛。后期种植鲜花绿植,精美大气的建筑,从整体营造出壮阔之感。

80平米经典欧式二层小别墅设计图,13.6米面宽带小院的欧式二层别墅

△西北侧效果图

80平米经典欧式二层小别墅设计图,13.6米面宽带小院的欧式二层别墅

△东侧效果图

庭院的水池区域与东侧设置露台空间相呼应,也增加了室内外的交流。北侧立面统一,南侧的整体造型不同,但细节上的变化使得建筑层次分明,视觉上极为舒适。

80平米经典欧式二层小别墅设计图,13.6米面宽带小院的欧式二层别墅

△东立面图

80平米经典欧式二层小别墅设计图,13.6米面宽带小院的欧式二层别墅

△西立面图

80平米经典欧式二层小别墅设计图,13.6米面宽带小院的欧式二层别墅

△南立面图

80平米经典欧式二层小别墅设计图,13.6米面宽带小院的欧式二层别墅

△北立面图