2019年8月21日,中投地产、*钟金**集团6.02亿斩获衡阳高新区地块——*钟金**·环球中心正式诞生:

据悉,*钟金**拿地当天晚上,当即地勘入场,接电、清场等工作。今天,所长实探该地块:

该地块住宅项目*钟金**府已经全面开工,同时利用了原中德部分建筑和厂房。

同时拿地方必须配建并无偿移交给政府的集贤路也已经开工,而全城瞩目的208米*钟金**环球中心项目暂时没有动工。

有一个好消息就是,所长上次推送的绿地202米超高项目根据今天的卫星实拍图正在有条不紊施工。网传衡阳绿地超高地块已经动工?所长带你一探究竟
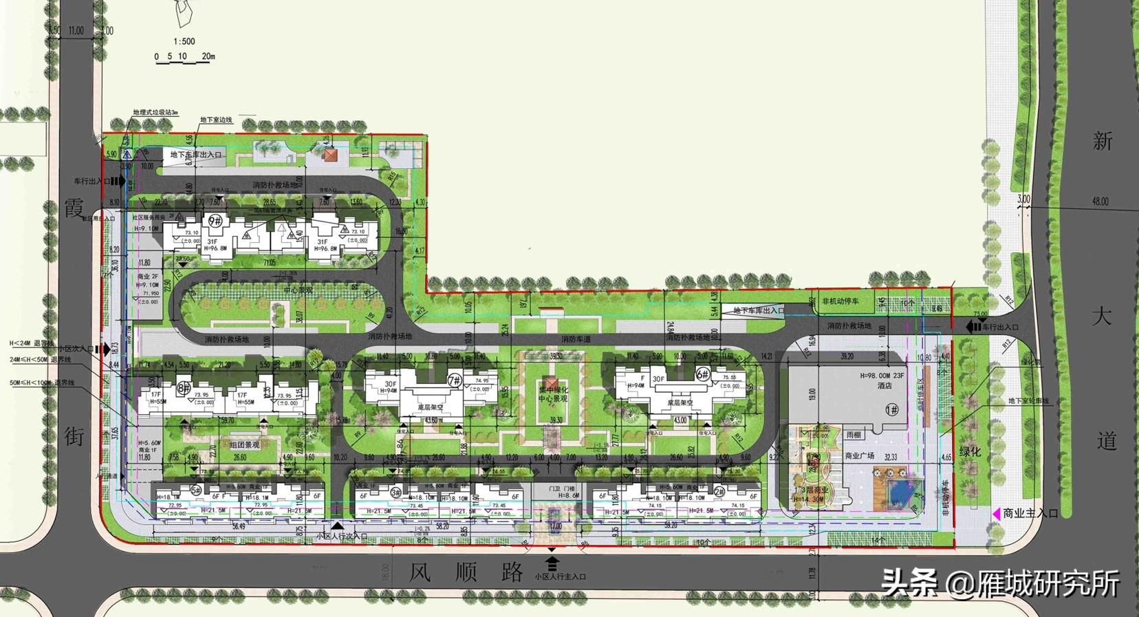
同时值得注意的,经历过一波三折的生态天宸项目终于在今天迎来了方案公示:


从规划图不难看出,该项目在靠近西二环一侧规划了一栋98米的酒店,同时背靠生态公园,确实也是个不错的选择。

生态天宸项目

安发信息产业园用地
