- 风格: 美式
- 面积: 156㎡
- 户型: 跃层/复式
- 小区: 泊林公馆
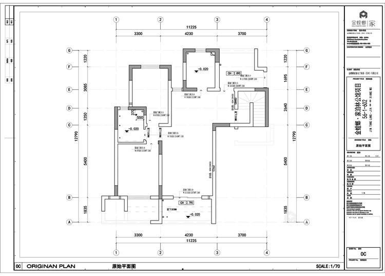
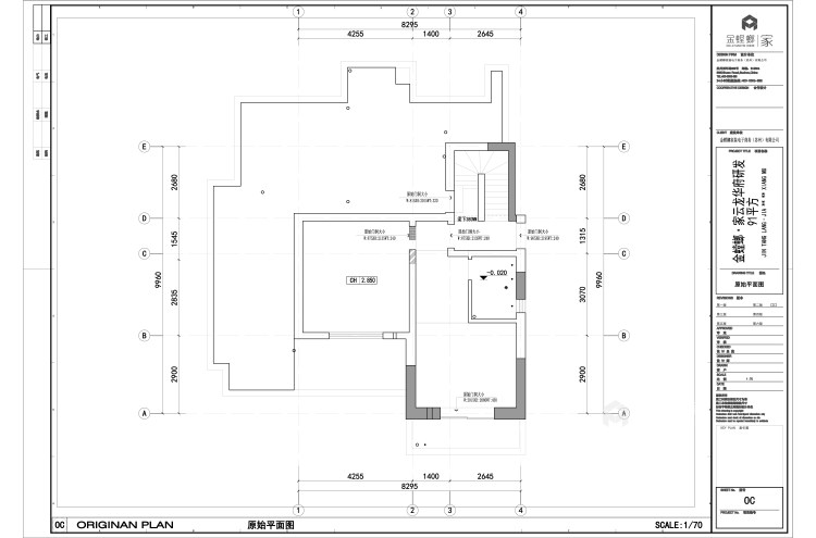
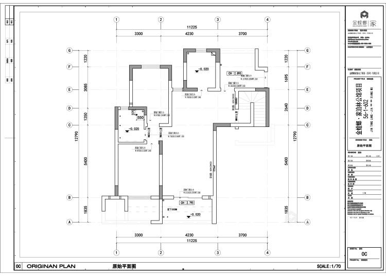
业主需求&原始结构图
本户型简美轻奢风格,业主是公务员,年龄30岁,成熟稳重,计划给自己的爱人打造一个有格调的家。


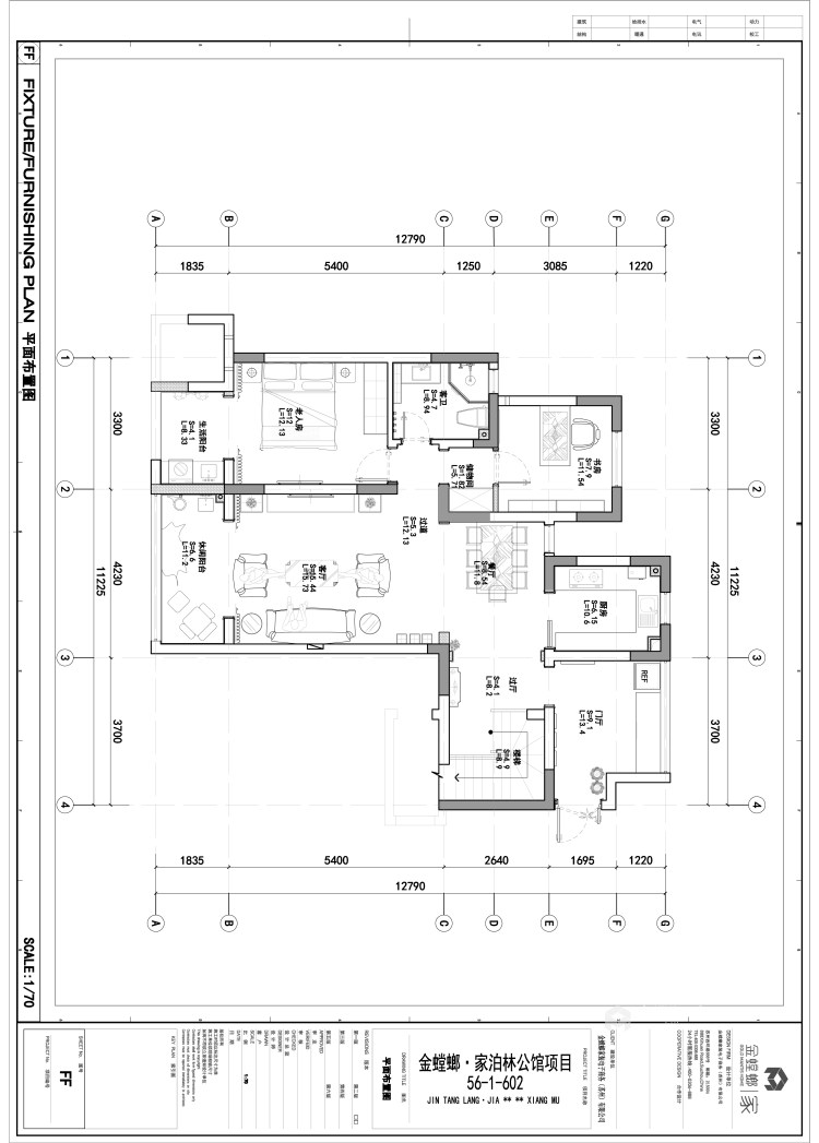
平面设计图及设计说明
简美轻奢,还原空间深度,也要保留空间功能的完善。本案例主要使用木材于石材的结合,色调多变又不失现代感元素。以需求为第一要素,充分理解并满足需求。


客厅效果图及设计说明
客厅选用客户钟爱的浅蓝色色调做为整体颜色追主线,配以橙色做为跳色,整体家居搭配在蓝黄色上游走,主次颜色清晰。 入户做为入室第一景,选用近代流行的谷仓门做为厨房次门,利用将错就错的设计手法,在解决问题的同时使效果更加贴合场景的选择。


餐厅效果图及设计说明
餐厅地面采用钢琴键造型,灵动且分区清晰。

卧室效果图及设计说明
主卧室增加了时尚的金色线条元素,配合美克美家的家具,让轻奢质感发挥的淋漓尽致

儿童房
对于马上要结婚的俩年轻夫妇,儿童房的设计,俩人也畅想无限,最终选择比较中性的颜色,配合整体色调,落地一个温馨的空间。

老人房
老人房的装修色调,房主选择了老人洗好的浅紫色,空间简单,但是富有格调,半百的岁数却保有初心的感情,在这里得到了充分的诠释,

卫生间
客卫采用白色系列仿爵士白的整理基调,让卫生间在视野空间无限扩大,干净明亮将是一层卫生间最主要的感觉。
