说起公文写作,作为身在机关单位工作的人们肯定有所感触,最累的工作不仅是奋斗在一线的普通体力劳动者,还有那些长期奋斗在材料堆里的笔杆子们。从自身的工作经验来看,写材料累脑子,比体力上的累还要命。材料人们里最高兴的事也许就是终于不用写材料了。废话不多说,写材料累,但是好材料确实最能传达正确的信息,让人读着易懂、舒心,还有美感,今天就简单聊聊材料格式的基础知识。

说起公文,先给大家说一个国标标准,没错公文也是有公家标准的,这个标准应该是结合阅读习惯和大部分人的审美设计的。不过你可以翻阅下身边的各类材料,就能够发现,一般比较正规的文件从排版、字体、页面设置等方面都比那些比较随意的材料要美观大方,一看就是科班出身制作的。如果您看完下面的文章,以后出自你手的材料也可以自豪的说“这可是国标格式,有GB的”。
今天主要从页面设置、字体设置、层次结构、页码设置、标题主送落款等方面进行简单的交流分享,全部手敲,如有问题并包涵指正。
交流前,先说明下我平时用的是WPS,因为多事打字、PPT和简单的表格处理,感觉WPS更符合我的需求。没有选择OFFICE是因为体积大、注册麻烦、功能冗余,最重要一点很多地方感觉不如WPS符合国人需求。还有重要一点,我在WPS有免费的8g(新用户是免费1g空间,我是平时完成任务赠送的)在线共享空间,非常实用。

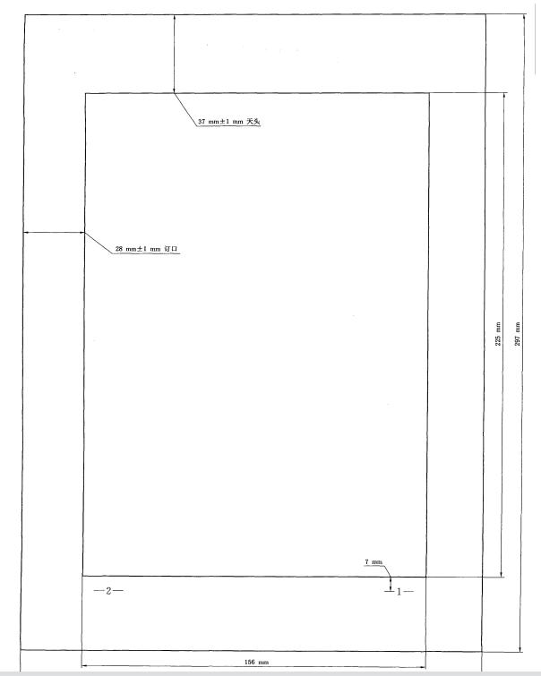
【页面设置】新建一个文档打开后,我习惯第一件事是先设置页面,除了特别要求或需求外,都是按照国标公文格式来的。在“页面布局”选项中设置好纸张(一般都是A4),填写页边距,上3.7cm、下3.5cm、左2.8cm、右2.6cm。

基本就达到了国标的第一步

【字体设置】看一份公文正不正规,从字体上就能一眼看出来。一般系统里自带的字体有很多,我们经常用到的宋体、仿宋、黑体、微软雅黑等等,但是在公文里经常用到的有4种:国标方正小标宋体、黑体、国标楷体、国标仿宋。为什么这几个字体基本都加上了国标,举个列子,但就仿宋这个字体就成找出几十个版本的,有系统自带的仿宋、仿宋gb2312、华文仿宋、古体仿宋等等等。虽然都是仿宋类的字体,但是字形都不一样,下面就几种公文字体、字号及用法作简要说明。
1.方正小标宋_GBK:这个字体主要用于文章的大标题,一般为二号字体,常用的是GBK这个。
2.黑体:这个字体就用系统自带的就可以,一般为正文的一级标题使用,一般为三号字体。
3.楷体_GB2312:这个字体也是要用带国标的,系统里虽然也有楷体字体,但是从美观上比较还是国标的看着舒服些,一般用于正文的二级标题,字号为三号字体。
4.仿宋_GB2312:和楷体国标一样,要使用带GB的,一般用于普通正文,字号为三号字体

【层次结构】顺着刚才的字体说,公文主体结构一般包含标题、主送单位、正文、附件说明、落款及日期、附件。这里介绍的是公文主体,因为公文有多种类型,什么请示、通知、命令、通告等等,涉及的版头和版记都不大相同,所以后续再和大家交流红头文件的拟制,今天重点说明公文主体的结构,这些适用于机关和普通单位等等。
1.标题:一般用“关于XXX的通知”或“关于XXX的请示”等等格式,二号方正小标宋居中;
2.主送单位:也就是文件发送的对象或告知对象,在标题下方空一行顶头写加冒号,三号仿宋字体;
3.正文:正文就在主送单位下一行空两格写,每段都另起一行空两字,字体就按上面收的那样。
4.附件:如果需要有附件就在正文下方空一行空两字写 “附件:1.”,过个附件一次按序号写,但是附件按照数字对齐。
5.落款及日期:落款就是发文单位名称,一般用全称或规范简称,在附件下方空一行右空两字对齐,日期按照“2022年9月27日”格式在单位名称正下方。


附件的写法一定要注意,如果是带红头的正文,落款日期还要与上方落款单位空两字对齐,普通行文可以居中对齐即可。
【页码设置】页码的格式有多种多样,系统自带的格式也有好多种,但是公文里的页码就只有一种,而且不是系统自带的哪几种格式。收到页码设置方面,WPS比office好多N倍,比较智能,而且能够记忆你经常用的格式,就不用每次都重复设置了。
公文页码一般在页脚外侧,四号宋体的双横线加数字形式。“— 1 —”。这个横线是在中文半角状态下用“shift+—”打出来保留一半,然后空一格,再加页码数字,再空一格,再加一个横线。

上面就是简单介绍下公文页面和主体的一些注意事项, 相信使用国标标准写出来的材料,首先从格式上就会正规起来,看起来也会更大气上档次。后续会继续与大家交流下写作方面的注意事项。
上方内容纯闲暇时手敲,有的写的不是很清楚明白,可以留言交流,不对之处也请批评指正。