今天要介绍的屋主王小姐的家,是真·科技造福生活的典范,也可能是我们有史以来介绍过的最智能也最高科技的了!除了洗菜机、洗碗机等这些老生常谈能解放双手的高能家电之外,她还在整个家里使用了 70 余种智能硬设备。她家完全就是科幻片里那种最让人梦寐以求的家嘛!
早上醒来,窗帘自动拉开、音乐响起、咖啡机已在等候,小爱语音会自动汇报今天的天气、路况、从家里到公司的时间;夏天太热时,空调会自动运行,到了冬天,气温过低时,地暖又自动运行;空气质量差时,自动启动新风系统;随需取电,走到家里任意一个空间,人来灯亮,人走灯灭。全部这些操作,都不需要自己动手。

▲ 家居智能系统主要用的是小米(例如网关、灯、开关、插座、指纹锁、电子猫眼、空气监测仪、门窗报警器、烟雾报警器、燃气报警器、净水器、电动窗帘、花花草草监护仪、激光电视等)

▲ 家里的智能开关定位图,使用小米的家居智能系统,通过网关 + APP场景预设 + 传感器 + 语音人机交互来实现联动。使用的家电产品包括调光玻璃、电动按摩床、全自动电视柜、浴室电动窗帘、电子穿衣镜、感应衣杆灯、智能镜柜、智能凉霸、升降油烟机等。
又服气又羡慕!先精准定位每一位家人每一分钟的生活习惯,在装修时以这些生活习惯为前提,不嫌麻烦地将智能黑科技「布局」好,之后的几年甚至几十年,自己和家人就能彻底地「懒」在家里享清福,永远置身舒适圈内了。
⚠️ ⚠️ ⚠️
关于有可能的提问(杠),小白提前做了回答
Q:电器太多,坏了怎么办?
A:坏了换新的不就行了? ?
Q:智能系统不成熟,停电看你怎么办?
A:谁家电器停电时还能用?关智能系统什么事?现在的智能系统的确不完美,但若你等到 5 年后完美时才使用,我已经提前享受5年的舒适生活了,人生有多少个5年?不要因噎废食!
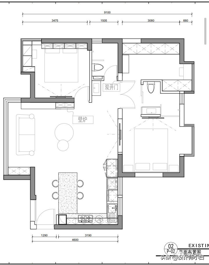
房子位置 广东深圳
房型 2 室1 厅
面积 72 ㎡


▲ 改造后的房型为两室一厅一厨双卫一阳台。
(1)开放的厨房+餐厅+客厅;
(2)将阳台变成客厅的一部分,以烘干机来解决晾晒衣服的问题;
(3)全房无主灯,多为隐藏光源,见光不见灯,灯光环境色温4000K。

▲ 借助上面这张图片来了解色温,了解不同色温对家居氛围的影响。

▲ @hm小姐家使用的是这款颠覆她认知的神灯!亮度可调,色温也能实现手机无极调控,雨天调暖光、夏天调冷光、化妆调亮、要氛围调暗,总之想用什么色温的光,就调什么光。通常,恒定在 4000k 的色温。

▲ 家里的环境架构: 地暖 + 空调 + 新风由专业的暖通公司安装,通过空气检测仪和模块智能联动。当实时指数低于数值时,自动启动新风机、加湿器等设备。全热交换的新风系统,即使长时间开空调,室内空气也不浑浊也能保持室内干净无灰。


▲ 当按下指纹锁进门的那一刻,全屋的灯就会自动亮起、投影打开、窗帘拉上(夜间触发)。家门与玄关大量运用高科技智能系统不仅是方便,更多是安全。
(1)有人在门外移动或按门铃,电子猫眼会将门外的人投屏到显示器上;
(2)不在家时,有人非法入侵房子,摄像头立刻上传警报和影像到手机 APP 上;
(3)半夜有贼开窗的话,门窗传感器会触发警报;
(4)忘记锁门的话,还没走出小区就会接到通知;
(5)忘记关灯或下雨想关窗帘的话,手机可以远程关掉就好啦。

▲ 出门时,一键关闭所有灯具电器(冰箱除外),不必逐个房间检查;家里没人时,扫地机器人也会自动开始出来工作。


▲ 可以根据日出日落、或者语音指令自动开关的电动窗帘。

▲ 雾化火光壁炉,可以回忆小时候冬天里全家围着火塘烤火聊天的场景,而且,雾化的水蒸气刚好可以缓解冬天干燥的室内环境。

▲ 摈弃传统的电视形态,采用激光电视,在墙上刷了宣伟投影漆,整面墙投影,150寸大屏(3.32米宽×1.87米高)。激光电视和传统投影仪的区别在于可以短焦近投,不需要在天花板吊装。进入观影模式后,家里的灯光自动调暗,窗帘自动关上,营造观影环境。

▲ 激光电视对投射距离的要求,参数如上图。

▲ 家里 150 寸投影需要大约 49 厘米的投射距离,加上激光电视自身的尺寸,共需要大约 70 厘米的墙距。常规的电视柜宽度只有 40 厘米,达不到投射尺寸,所以订制了一个可以全自动延伸的伸缩台,隐藏安装在电视柜抽屉里。当激光电视开机时,抽屉自动打开,延伸到 70 厘米的投射距离。

▲ 使用了自带隐藏式灯带的发光地脚线,接入智能开关,通过人体传感器实现人来灯亮。

▲ 沙发两旁安装了带 USB 的插座,两人可同时坐在沙发上边玩手机边充电,选购时请尽量购买 2A 的接口,比 1A 的充电快,还有一个英式插座,从欧洲或香港买回的电器都能用。


▲ 开放式厨房提供大量的储物空间,也是全屋最明亮的配光区域,令家人自然而然地一起参与做饭过程中,主妇不再孤单闷在厨房默默劳作。厨房共 17–19 个插座,足以应付各种厨房电器需求,墙面 3 个明插座、柜内 11 个电器插座、岛台面 3 个轨道插座(可以扩展到 5 个)。

▲ 厨房玻璃窗,断电后为磨砂状态,因为厨房油烟大,为清洁方便不装窗帘,而使用智能调光玻璃。顶部安装了智能凉霸,既能缓解夏天做菜的闷热,在燃气泄露时,也会自动启动排风,化解风险。

▲ 备菜区,墙上的发光搁板即能放置物品、又能补充光源确保食物清洁;灶台上方安装了万向折叠水龙头,做菜过程中需要用水,打开龙头就好,不必再走到水槽处接水了。

▲ 升降式抽油烟机有自动清洗功能,使用时升起,不然便降下隐藏在橱柜中,保持台面清爽。灶具选择了一电一气的双灶,矮灶头是电磁炉,对小朋友安全,夏天做饭不热,适合我的身高,高灶头是燃气灶,适合男主的身高,停电时有燃气灶用,停燃气时有电磁炉用。(型号:美的 JZDT-2ST2108)

▲ 抽拉龙头便于清洗水槽的每个角落,石英石水槽采用台下盆的安装方式,更方便清洁。

▲ RO 净水器龙头的光圈为蓝色,表示可正常饮用;如果变成橙色,表示不可饮用或需更换滤芯。等天气冷些,会考虑安装直接出开水的管线机,免除煮开水的繁琐。

▲ 手机 APP 上也会提醒滤芯使用情况,还能直观地看到每天、每周、每月用的纯水量及废水量。

▲ 厨房按着「冰箱取菜→洗→切→做菜→清洁」的动线来规划设计。
(1)洗菜机,10 年前开始用,是解放双手的家务利器,市面上主流的洗菜机有声波清洗和喷淋清洗,个人一直偏好波轮喷淋,利用离心率把泥沙物理甩净。型号:友人洗菜机
(2)58L 大容量的嵌入式蒸烤箱,可蒸可烤,可以同时蒸三个菜不串味,烤箱还配套了19L 电子保温抽屉,做好的菜放在保温抽屉里不会凉。型号:惠而浦
(3)厨下的垃圾处理器平时处理菜叶果皮、剩饭剩菜等厨余垃圾,家里不再产生湿垃圾的异味,也不用再频繁跑楼下丢垃圾。
(4)洗碗机,按键在顶部,无需弯腰就可以操作,非常便利。型号:西门子

▲ 厨房岛台上安装了轨道式隐藏插座,可以移动插座位置调整距离,也可以根据电器数量增加插座,打破了墙壁插座的局限。不用的时候取下来,台面看不出有插座,平整美观。


▲ 主卧,床下还装了感应小夜灯,起夜上厕所时,朦胧的小夜灯就会打开 15 秒自动熄灭。如果是老人家的房间,建议夜灯装条形的,从床边沿着墙脚到厕所,对老人家也有引路的作用,不易摔跤。

▲主卧订制了乳胶电动按摩床,主要靠床垫底部的气泵管来实现气压按摩,晚上睡前用按摩扫去一身疲惫入睡,或早上用一次舒服的按摩唤醒自己;分体床的好处是男女主人可以根据自身习惯调节床的角度,各取所需。只要说一声「睡觉啦!」,电视和灯就会全部自动关上,门窗报警器也会自动进入布防状态。

▲ 如果家人已经睡着,不方便用语音操控关灯关电视的话,那用无线开关也是很方便的,像遥控器一样,放哪儿都行,不用下床。

▲ 智能烛光灯,床边放着一两盏,只要调节其中一盏灯的亮度,其它盏烛光灯就会同步响应调节。遇到特别的日子,搬到餐桌,就是烛光晚餐啦。

▲ 床头和厨房一样轨道式插座,可以移动插座位置调整距离,也可以根据电器数量增加插座。


▲ 将一间客卧改造成步入式衣帽间,位于两个浴室之间,动线方便。独立的衣帽间可以保证卧室回归放松睡觉的单纯功能,每人拥有一个衣柜外,也有被子类的家庭存放区,分区明显。所有的家具、橱柜都是暗拉手,避免钩坏衣物,也不会碰伤小朋友。

▲ 衣帽间设置了一张隐形床,以备偶尔有人留宿之用,收起后仅占地 30cm 。

▲ 每次进入衣帽间时,窗帘就自动关上,灯光同时自动亮起,电子穿衣镜会实时更新天气情况,以便选择适合气温的衣服;挂衣杆带灯,衣柜内不用隔板,只用挂衣方式,省去叠衣服步骤;衣帽间配置蒸汽挂烫机,每天穿衣前熨好。

▲ 订制衣柜时特意设了一组高柜空间,高柜里带缓冲的升降衣杆。


▲ 洗手间门使用了智能玻璃,可以在透明和磨砂之间自由切换,满足视野及隐私的双重需求,门把手也可以当毛巾架用。卫生间里还有地暖、电热毛巾架、松下热干燥暖风机不仅让冬天洗澡暖烘烘,也能让使用后的浴室快速恢复干爽。

▲ 电动窗帘每晚天黑就自动关上, 以免洗澡走光,早上天亮再自动打开。

▲ 嵌入天花板的顶喷提供暴雨级别的淋浴体验,所有水龙头和花洒即开即热。

▲ 智能马桶盖是好朋友,最隐私的部位也能被它照顾得最舒适,同时,排气扇开关放在马桶旁而非卫生间门外,能在上厕所臭气熏天时立刻打开排气扇开关。浴室没有金属置物架,全是墙上的壁龛用来储物,包括马桶旁也是嵌入式的纸巾盒与垃圾桶。

▲ 马桶喷枪是必备,不用再使用湿哒哒黏糊糊还占地面空间的马桶刷。

▲ 淋浴间里使用长型地漏,排水快。

▲ 有除雾、照明、蓝牙音响、收音机功能的镜柜,可以边洗澡边听音乐。
觉得有用,就 赞 一下再走呗 (๑•́ωก̀๑)
(收藏总比点赞多的编辑哭着说