随着疫情影响,人们的居家生活越来越多,收纳需求也日渐上升。大部分屋主会选择定制满墙的电视柜用来做客厅收纳,但是“死板”的电视柜会显得呆板沉闷,不如留出40cm做书架,实现教科书级收纳模板。

具体怎么做的,我们接着往下看:
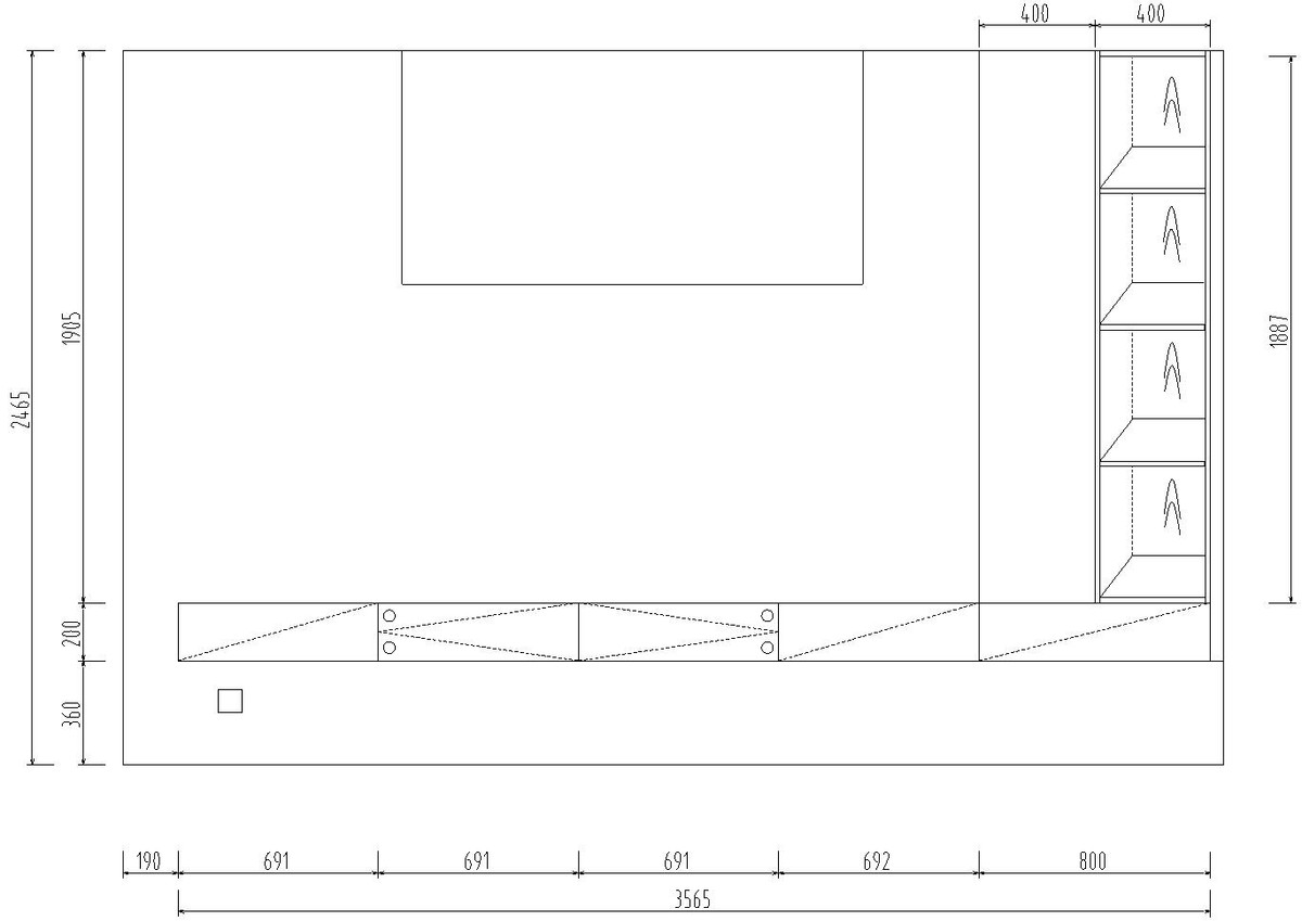
尺寸方面
打破了传统电视柜的整面贴地设计,采用L型吊顶悬浮设计,抬高了电视柜的整体高度。美观的同时,也便于打扫电视柜下方空间的卫生,减少卫生死角。

电视柜尺寸图:

美观方面
白色柜体和墙壁颜色呼应,简单又大气。充满自然气息的原木色书架和客厅地板颜色匹配,整屋定制的协调性立马就体现出来了。

实用性方面
柜体台面还可以充当置物台,放家庭日常用品都没有问题。书架整体设计为四层,满足屋主多样的收纳需求,也可以放置喜爱的摆件,增加客厅的氛围感。

在整屋定制环节,电视柜和书架的组合样式丰富多样。简单总结一下,大概有以下三种。
电视柜加单侧书架
单侧书架顾名思义就是将电视柜的左侧或者右侧留空做书架,这是最常见的组合样式。这种组合方式适合客厅面积较小的房屋,其优点在于兼顾书籍收纳的同时,也不会模糊电视柜的主体性能。



电视柜加双侧书架
双侧书架相对于单侧书架来说,更需要通过线条的延伸带给人视觉上开阔的感觉。如果背景墙的长度不够,反而会显得客厅环境拥挤。

如果在电视柜的左右两侧均留空做书架,一般会把电视放置在较居中的位置。这样更具有对称美感,留给屋主的书架空间也会更大。


电视柜加环绕式书架组合
环绕式书架是指将电视柜除了放置电视以外的其余部分全部定制成书架。这种组合方式实际上更加强调书架在客厅的阅读区的功能。

宽敞的书架可以收纳多种书籍,对于随时随地喜欢阅读的屋主来说,是一个十分完美的选择。

电视柜和书架看上去虽然没有很大的关联,但是只要发挥奇思妙想,也可以组合在一起,擦出不一样的火花。小小的改动,带给屋主的却是极好的居住体验。这也是全屋定制的意义之一。
(部分图片来自网络,如侵权请联系后删除)