
因为家中有小孩和长辈,在风格的选择上面,中和各成员意见,选择了现代简约风格,中间穿插原木色,大面积的落地窗,得以让绿色肆意的展现在家中。这种设计的美,在于家庭和自然相结合,低调而内敛又不失沉静悠然。“家庭与自然”这个主题不仅贯穿始终,更是这个空间的灵魂。
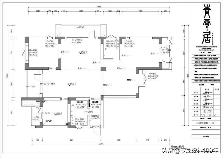
户型图

不知道大家有没有发现,明明有2层的项目小编只放了一张原始图,Why?原来实际可用层高为4.55米,做两层会很尴尬,一层太高不实用,那怎么处理这个问题呢?施工现场采用钢架结构,由于层高有限,保留槽钢原始造型,这样视觉上保留了层高,起到美观的作用。这样槽钢和角铁之间的部分不封闭,只在槽钢和角铁面上贴上木饰面,这样可以增加10厘米左右的视觉层高。

一楼保留石膏与槽钢做的假梁,二楼槽钢上铺5毫米钢板,打磨平整后直接铺地板,省去了2公分的厚度。想保留主卧室的正常层高,就将楼上的杂物间处做了一个错层,这样就把主卧层高增加到2米了。工艺这么复杂,其过程之艰辛,还好最终的结果达到了预期的效果。该项目很好的满足了屋主的实际需求,同时又不失美观,二者相融合最终呈现出下面的成品!

玄关

玄关处的镜子很加分,起放大空间的效果。鞋柜与换鞋凳等很好的满足生活的需要,格子地砖作为玄关与客餐厅的空间区分,没有多余的装饰,简洁自然。
客厅

在开放与独立之间,设计师把握好了最适中的尺度,各个功能区相互连接,又不打扰。

绿树几年栽,窗应为尔开。此时可以诗,可以画,而正恐诗不尽言,画不尽意。

屋主将客餐厅定义为家的生活中心,宽敞的面积,多处的开窗设计,保证了室内充足的采光视野。打破传统观念,客厅没有茶几,让设计回归生活!

在二楼以俯视的角度拍摄客厅全貌,灰色布艺沙发与北欧风地毯上,蓝黄色抱枕作为跳色活跃了整个空间。

纯净的白与温润的木,成为室内主要的元素。足够的功能要求,为全家人营造舒适的生活环境。

充满设计感的灯具,利落的线条。空间配色上面更加的轻松自然,与窗外绿植相映成趣。

整体空间将木元素进行分散式布局,玻璃护栏加木扶手给人感觉通透灵动又不失温馨


黑白灰+原木,简洁干净而不缺时尚味道。

厨房

厨房的设计选材和色彩搭配上,注重实用美观与颜值并存法。厨房原铺设槽钢的假梁保留,视觉上起到增加层高的作用。
餐厅

本案非常注重细节的设计,每一处尺寸、物品的摆放如此别致精巧,无形中美化了餐厅的用餐环境视觉效果非常的让人惊艳。

餐桌与吧台相结合,回归简单的幸福生活

实木家具具有独特清晰的纹理,散发着木材特有的香气和来自森林的自然气息。注重质感的白色大理石吧台,打破空间,却又不喧宾夺主,很好的融入其中。

卫生间

卫生间整体统一的深灰色水泥砖,淋浴区地面用了大理石拉槽,方便排水还增加防滑的功能。(哈哈,窗外的芭蕉叶抢镜了~)

卧室

主卧整体色调比较淡雅,以木色为背景。再加上大面积落地窗的加持,一副窗帘隔开卧室与室外。半藏半露之间透出的绿色,很符合我们“家庭与自然”的主题。


床头柜上一边放置满天星花束,一边放置床头灯,简单的搭配,清雅之感油然而生
书房

儿童房

其他
