第一章、工程概况
第一节 工程简介
工程名称:长征片区棚户区改造项目
建设单位:遵义市红花岗城市建设投资经营有限公司
设计单位:四川高地工程设计咨询有限公司
监理单位:贵州建工监理咨询有限公司
施工单位:七冶建设集团有限责任公司
长征片区棚户区改造工程项目位于遵义市红花岗区长征镇凉水井村,东临新建遵义客运总站,210国道(东联线)与326国道交汇处,南临石佛北侧拟开发用地,西临川黔铁路,北面山地为天然林地,场地地理位置优越,交通十分便利。
拟建项目占地面积约289033 m2,总建筑面积约966790.42 m2。地下车库负1~4层,建筑面积约267152.4㎡,本工程基础为桩基础,结构形式为剪力墙结构,建筑结构类别为二类、建筑等级为二级、合理使用年限为50年、抗震设防烈度为小于6度、建筑防火分类为一类高层、其耐火等级为二级、屋面防水等级为一级。
第二节 基础设计概况
地基基础设计等级为甲级,桩基础设计等级为甲级,岩层为中等风化泥灰岩。
基础类型为桩基础、筏板基础。
混凝土强度等级:筏板基础为C35,桩基础为C30。
钢筋保护层:桩基础50mm,筏板基础40mm。
钢筋接头采用机械连接,同一截面的钢筋接头率不得超过50%,接头位置按规定错开35d且大于500。
垫层均采用100mm厚C15混凝土,每边宽出100mm。
第三节 筏板基础设计概况
本工程结构形式为钢筋混凝土结构,结构体系为框剪结构;本方案主要针对筏板基础进行编制;
筏板基础混凝土强度等级为C35,抗渗等级为P6;混凝土内掺加膨胀防水剂,其掺量为水泥用量的8%;筏板厚度为2000mm。大体积混凝土底板,当采用粉煤灰混凝土时,可利用60d或90d强度进行配合比设计和施工。
第二章、编制依据
1、设计图纸及设计变更、洽商;
2、《施工组织设计》;
3、合同文本;
4、主要规范、规程、标准及图集。
5、其他规范要求
第三章、施工总体部署
第一节 项目组织机构
严格按ISO9001质量体系文件《管理手册》中的《项目工程组织机构管理办法》执行,成立项目经理部,对所属施工队伍进行生产指挥、技术管理、安全质量检查,按规定使用和调度资金。
项目组织机构(略)
第二节 工程管理目标
本工程施工中,我司将充分发挥优势,利用成熟的施工工艺和技术优势,科学组织,精心施工,严格履行合同,确保实现如下目标:
1、工程质量目标:确保工程质量一次性验收合格。
2、施工工期目标:计划20天内完成筏板基础施工(另详施工进度计划表)。
3、安全施工目标:实现工程施工全过程"六无",即无死亡、无重伤、无中毒、无火灾、无崩塌、无重大机械事故;施工期间职工负伤率控制在0.5‰以下。
4、环境保护及文明施工目标
按照JGJ59-2011标准和贵州省文明施工工地标准。实现"三无":即无施工污染,无当地居民投诉,无当地有关部门警告。
5、职业健康安全目标
定期对从事有害作业人员进行健康检查,员工职业病发生率为零。
第三节 筏板基础大体积混凝土施工重点和难点分析及应对措施
一、筏板基础大体积混凝土施工重点和难点分析
大体积混凝土指的是最小断面尺寸大于1000mm以上的混凝土结构,必须采用相应的技术措施妥善处理温度差值,合理解决温度应力并控制裂缝开展的混凝土结构。由于筏板基础混凝土厚度达2000mm,混凝土浇筑量约为2000m3,属大体积混凝土的施工。
大体积混凝土与普通钢筋混凝土相比,具有结构厚,体积大,钢筋密、混凝土数量多、工程条件复杂和施工技术要求高的特点,在混凝土硬化期间水泥水化过程中所释放的水化热所产生的温度变化和混凝土收缩,以及外界约束条件的共同作用,而产生的温度应力和收缩应力,是导致大体积混凝土结构出现裂缝的主要因素。因此,除了必须满足普通混凝土的强度、刚度、整体性和耐久性等要求外,大体积最重要就是如何控制其温度变形裂缝的发生和开展。
由于大体积混凝土工程条件比较复杂,施工情况各异,混凝土原材料品质的差异较大,因此控制温度变形裂缝就不是单纯的问题,而是涉及到构造要求、混凝土配合材料组成和其物理力学指标,施工工艺、养护方法等方面的综合影响因素。
二、筏板基础大体积混凝土施工的应对和浇筑措施
(1)为了防止混凝土的有害裂缝的发生,同时有效控制表面裂缝的发展,本工程大体积混凝土在施工方法上拟采用推移式连续浇筑、分层捣实的方法(但必须保证上下层混凝土在初凝之前结合好,不致形成施工冷缝),同时在混凝土内掺加优质高效抗裂膨胀剂方法,优化混凝土配合比,采用低热化的水泥、掺加优质粉煤灰和减水剂,减少水泥用量,延缓混凝土初凝时间,增长混凝土的散热时间,同时降低混凝土的出管温度,加强混凝土养护,以达到控制混凝土内外温差、减少混凝土变形,防止有害裂缝的发生和开展。
(2)本工程大体积混凝土全部采用泵送商品混凝土,为满足混凝土浇筑的连续性,避免出现施工冷缝,施工时,必须与混凝土生产厂家进行密切配合,精心组织,混凝土供应量应确保满足施工需求,浇筑时间内需不间断供应混凝土,在浇筑混凝土时,采用2台臂架泵,同时配合施工,以确保混凝土连续输送施工,保证混凝土施工质量。
(3)针对筏板基础大体积混凝土的重要部位,质量的好坏直接影响结构性能及使用性能,故混凝土浇筑时,筏板基础须一次浇筑,不留施工缝,这样可减少人为接缝,提高混凝土的自身密实性,降低结构的渗水机率,确保大体积混凝土的施工质量。
3、筏板基础钢筋工程施工重难点分析
由于筏板较厚,筏板基础钢筋荷载较大,按常规的安装马蹬支撑难满足施工需要,解决施工过程中人员的安全问题是施工关键。
三、施工平面场地布置
30、31#楼现场施工平面布置详下图:

施工平面布置图
第四章 施工准备及资源配置
第一节 施工技术准备
(1) 根据图纸设计标高,复核柱、墙钢筋上抄上的1000mm标高线,确保混凝土浇筑标高的准确。
(2) 熟悉施工图纸、规范及有关验收标准等,编制相关施工方案及技术交底文件。
(3) 组织施工管理人员对参与施工的所有人员进行技术交底,使其熟悉混凝土浇筑操作要点、质量标准、测温养护措施等,以便统一操作工艺、统一质量标准、统一验收方法。
(4)做好天气变化收听工作,尽量避开雨天浇筑混凝土,如浇筑过程中碰到下雨应提前备好覆盖材料,以保证混凝土浇筑质量。
第二节 现场准备
1、施工场区内道路必须畅通无阻,确保运输通畅,砼浇筑时现场安排专人统一协调指挥,做到忙而不乱。
2、筏板混凝土浇筑物资设备准备
在筏板混凝土浇筑前及施工过程中,工程部机械动力组按照施工配合、临电、临水、机械协调组织分班,配备电工检修值班人员,提前对现场机械设备、临水和临电检查。
在混凝土浇筑过程中,每栋楼筏板现场1台塔吊随时调用,塔吊司机和信号工24小时在各自岗位待命,保证浇筑期间所需物资转运及时到位。
满足整个施工现场照明、振捣棒用电。在混凝土浇筑前对泵车,工程部组织安全部、物资部联合验收,并对其进行空载试机试验,确保使用过程中无故障、无安全隐患,同时考察泵工操作的熟练程度。检验项目有:启动(电瓶)、仪表盘面控制系统、正反泵送、主缸推动、蓄能器压力、分配阀系统、润滑系统、冷却系统、搅拌液压系统和有线遥控系统等项内容。
第三节 机械设备用具准备
本工程拟投入的主要机械用具需用计划
注:浇筑前所有机械设备均应性能良好、运转正常。
第四节 主要材料需用计划
第五节 施工主要试验、检测仪器及测量设备配备
第六节 主要劳动力需用计划
为保证混凝土浇筑连续性,项目部安排两个班人员进行砼24h浇筑作业,每班需要施工人员工种、数量及具体分工见下表:
劳动力需用计划(每栋人员)
第七节 现场材料计划
第五章 施工进度计划安排
筏板基础暂定施工计划工期为20天(未考虑施工期间大雨等不可抗力因素对工期的影响),因不可抗力因素的影响,施工进度将随时进行动态调整。筏板基础工程施工进度计划见下表:

施工进度计划横道图
第六章 主要施工方法及技术措施
车库底板及筏板基础主要施工流程:
土石方开挖→垫层施工→车库底板及筏板防水层施工→筏板钢筋施工→模板安装→混凝土浇筑→混凝土覆盖保温保湿养护→混凝土测温监控。
第一节 车库底板及筏板基础垫层、防水层及保护层施工
本工程基础垫层设计采用100厚C15混凝土垫层,垫层施工完毕后做CPS反应粘结型高分子湿铺防水卷材(双面粘),防水面层浇筑细石砼保护层后进行车库底板及筏板基础结构施工。其主要施工流程如下:(自下而上)
素土夯实→100厚C15混凝土垫层→20厚1:2.5水泥砂浆找平层→1.5厚CPS反应粘结型高分子湿铺防水卷材(双面粘)→1.5~2.5厚水泥凝胶粘结层→50厚C20细石混凝土保护层→防水混凝土底板详结施
一、车库底板及筏板基础土石方开挖及预埋处理
人工挖孔桩、机械旋挖桩施工完成后对建筑内基底土石方进行二次平场开挖,机械开挖至垫层底标高上300mm,余下300mm人工清理找平到垫层位置。
电梯井、电梯井排水管按照施工图纸要求标高开挖,开挖顺序为先低后高的原则,电梯井排水管安装按水电专业设计图纸施工,为确保基底土方密实度,应对管道回填区域土层进行分层夯实处理。
将已施工完成的桩基顶部毛化处理,采用人工凿打浮浆。
二、垫层模板施工
基底处理完毕后,即开始垫层模板支设。本工程垫层设计为100mm厚C15素混凝土,每边宽出筏板基础100 mm,侧模可采用50×100mm方木支模,接茬处在外侧用短方木或木板条连接,转角处应钉斜撑固定。方木外侧用木楔或短钢筋锚入地下加固,间距以≤1500mm为宜。垫层施工前应对轴线、标高进行复核,并报监理验收,无误后方可进行下道工序施工。
三、垫层混凝土施工
①垫层混凝土施工时为避免水分过快渗入地下,保证垫层混凝土质量,混凝土浇筑时可采取以下措施:
A、在混凝土浇筑前基底适当洒水,降低其吸水率;
B、垫层混凝土坍落度适当加大,可控制在160~180mm;
C、增加混凝土工人数,加快振捣和抹面施工速度;
D、收面时应根据设计标高控制垫层上表面标高和平整度,混凝土初凝后应采用塑料薄膜覆盖或浇水养护。
②垫层混凝土标高控制:混凝土浇筑前采用桩基钢筋笼上抄测的垫层上+0.5m标高拉小线控制,筏板边缘和桩距较大部位采用在垫层基底植入短筋按测出的进行标高控制;垫层面标高施工时应考虑防水层材料和防水保护层厚度。
③垫层施工其他施工规定:当大体积混凝土长度超过50m,而又不掺膨胀剂,施工期又处于日平均温度在20℃及以上时,垫层底部必须平整;如果垫层底部有较多的岩石嵌入垫层时,应在垫层上铺设柔性滑动层,使大体积混凝土在硬化收缩时能有少量的位移,防止中部产生裂缝。
四、车库底板及筏板防水施工
车库底板及筏板防水另详本工程《防水工程专项施工方案》
一、车库底板及筏板防水施工流程
基层清理、修补、润湿→节点密封、附加增强层→配制水泥素浆→弹基准线试铺→撕开卷材底部隔离纸→刮涂水泥素浆→卷材铺贴(滚铺法、抬铺法)→辊压排气→卷材搭接、收头密封→成品养护及保护→检查修补→防水质量验收
二、基层处理
在已浇筑完毕的基础垫层上按照设计要求先作20厚1:2.5水泥砂浆找平层;找平层表面应坚实、平整、干净、充分湿润无积水,阴阳角采用水泥砂浆抹成圆弧形,阴角圆弧最小半径50,阳角圆弧最小半径20。
三、车库底板及筏板防水施工方法
本工程车库底板及筏板防水设计采用1.5厚CPS反应粘结型高分子湿铺防水卷材(双面粘)(另详施工图纸)。
1、基层清理、修补、润湿
对基层表面进行清洁、修补处理,干燥的基面应充分湿润,但不得有明水。
2、节点做法
按规范要求,对节点部位进行加强处理,如管根边、阴阳角、变形缝等做加强层处理;管根边用专用CPS密封膏密封,后浇带设加强层(避免受拉)。节点做法如下图:

桩基防水做法大样
桩头防水做法(另详西南11J/T312(二)第15页)

裙楼孔桩与筏板细部大样

转角处防水卷材加强大样
3、配制水泥凝胶
按水泥:水=2:1(重量比)的比例先将水倒入原已备好的拌浆桶,再将水泥放入水中,浸泡15~20分钟并充分浸透后,把桶面多余的水倒掉;在气温高、基面干燥时,加入水泥用量约5%的聚合物建筑胶(保水剂),用电动搅拌机搅拌不少于5分钟。
4、弹基准线试铺
根据施工现场状况,进行合理定位,确定卷材铺贴方向,在基层上弹好卷材控制线。
5、撕开卷材底部隔离膜
卷材试铺后,将要铺贴的卷材裁好,反铺于基面上(即底部隔离膜朝上),撕剥去卷材隔离膜。
6、基面刮涂水泥凝胶
其厚度视基层平整情况而定(一般1.5~2.5厚),刮涂水泥凝胶应均匀、平整。刮涂的宽度比卷材的长、短边宜各宽出100mm。
7、卷材铺贴
采用滚铺法把隔离膜轻划开(注意不要划伤卷材),将卷材沿基准线向前推铺,边撕隔离膜边铺贴。卷材间搭接不小于100mm。
8、辊压排气
铺贴卷材时,用木抹子、橡胶板或辊筒等从中间向两边刮压排出空气,使卷材充分满粘于基面上。搭接铺贴下一幅卷材时,将位于下层的卷材搭接部位的隔离膜揭起,将上层卷材对准搭接控制线平整粘贴在下层卷材上,刮压排出空气,充分满粘。
9、防水质量验收
防水施工完毕后采用48小时灌水试验,试水合格后报请监理单位对防水进行隐蔽验收。
10、防水保护层施工
保护层采用50厚C20细石混凝土浇筑,施工时应做好标高控制,确保筏板基础厚度,保护层应抹平、压实、收光,混凝土强度达到1.2MPa后方可上人和进行下道工序施工。
第二节 筏板基础测量放线
用全站仪、经纬仪,将图纸设计的筏板基础控制轴线测设在混凝土垫层上,复核无误后再弹墨线,并用油漆做好标记;以此为基准,依次将其余控制轴线和筏板边线测设到垫层上;最后,将基础上剪力墙、暗柱等结构构件位置弹出,以方便后续基础插筋施工。
上述轴线、边线和细部尺寸测设完毕后,应再次复核,并报专业监理工程师复验,无误后方可进行筏板基础施工。
第三节 筏板基础钢筋施工方案
一、筏板基础钢筋结构设计情况
(1)本工程筏板基础为平板式筏板基础钢筋工程,30、31#楼筏板基础厚度均为2000mm。钢筋规格有C 12、C 14、C 16、C 18、C 20、C 22、C 25、C 28共8种,钢筋总用量约220t。本工程筏板基础钢筋工程具体配筋详见相关设计图纸。
(2)本工程中,筏板底面、顶面钢筋配筋为(HRB400)C25@150双层双向,二排钢筋配筋详施工图,筏板中部设置C 12@300双向钢筋网片,筏板主筋保护层厚度:40㎜。
(3)裙楼筏板厚度为250mm,筏板中部设置C 12@150双向钢筋网片混凝土强度为C35P6抗渗膨胀混凝土,筏板主筋保护层厚度:40㎜。裙楼筏板与桩基节点大样,详裙楼桩基防水节点大样图。
二、筏板基础钢筋支撑方案
1、筏板钢筋支撑方案选择
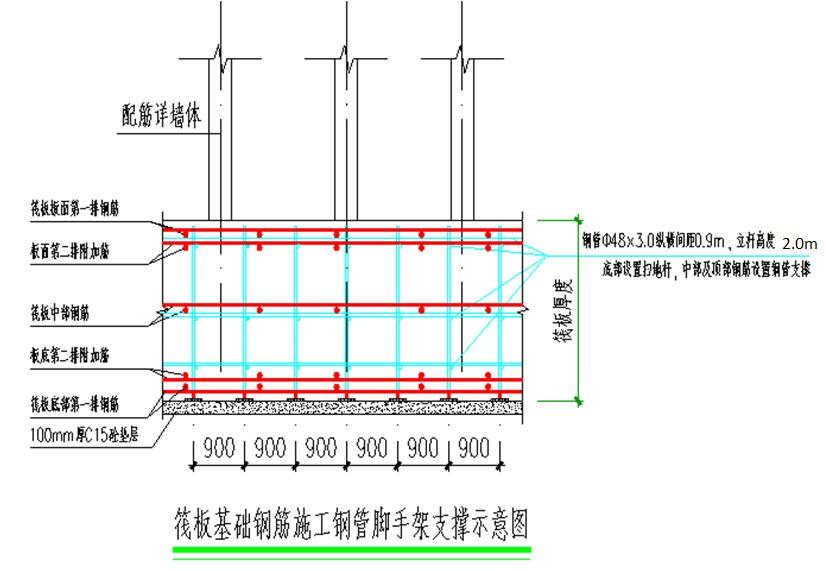
本工程筏板基础钢筋分为下层网片钢筋(双向钢筋)、中部网片钢筋和上层网片钢筋。支撑上层网片钢筋的支撑,传统做法是用与筏板基础相同的钢筋做成马凳筋,由马凳筋支撑上层网片钢筋。由于本工程筏板较厚,筏板基础钢筋荷载较大,按常规的安装马蹬支撑难以满足施工需要,解决施工过程中的安全问题是本工程筏板基础钢筋工程施工重点,如果采用外径为48mm、壁厚3.0mm的钢管,用钢管替代马凳筋来支撑上层网片钢筋。由于钢管内部空心,并具有良好的散热性能,利用钢管作为混凝土的散热孔,混凝土内部的热量通过钢管来散热,降低混凝土内部的温度,通过降低混凝土内部和外部的温度差来减少混凝土由温度应力造成的结构裂缝。采用钢管作为支撑,即可满足上层网片钢筋的稳定性,又可以通过钢管来散热,达到降低混凝土内部的温度,一举多得。故本工程拟采用钢管扣件式支撑体系替代马镫筋作为上部钢筋网片的竖向支撑。
2、筏板基础钢筋施工支撑材料作法要求
筏板中部、板面钢筋网片及墙体钢筋荷载采用Ф48×3.0钢管,立杆及纵横水平杆纵横间距0.9m,架体搭设三道纵横水平杆确保架体整体刚度和稳定性(架体底部距地0.2m高设置扫地杆,筏板中部和顶部搭设钢筋网片纵横水平杆),钢管支撑立杆高度为2.00m,支撑钢管长度比筏板基础的厚度高出30mm(控温结束后采用角磨机切除)。钢管底部焊接一块3mm厚的钢板,钢板的长×宽为100×100mm(详见图1),防止混凝土从钢管底部进入钢管内堵塞钢管。钢管支撑浇筑至筏板内一次性使用不拆除(筏板内水化热趋于稳定后采用M30水泥浆压力注浆)(详见下图)

大体积混凝土钢筋支撑脚手架剖面图
3、钢管支撑搭设施工方法
在完成下层网片钢筋的绑扎后,摆放已经加工好的钢管支撑,并用纵向钢管(脚手架钢管)和横向钢管临时固定钢管支撑,让脚手架钢管与钢管支撑形成一个稳定的架体(详见下图),然后在架体上再铺设上层网片钢筋。混凝土浇筑前用胶带把钢管上口封死,避免混凝土从钢管上部进入钢管内部堵塞钢管。注意:混凝土浇筑完成后应及时揭开封堵钢管上口的胶带,确保钢管的散热畅通,等到筏板基础内部的温度降低后,再向钢管支撑内灌注混凝土。
三、筏板基础钢筋连接
根据图纸设计要求,除特别注明外,筏板上部纵筋一般在跨中1/3范围之外连接或锚固在支座内,下部纵筋一般在跨中1/3范围内连接。本工程筏板及车库底板钢筋直径<16的采用绑扎搭接,直径≥16的采用机械直螺纹连接。
四、钢筋加工
施工机具有钢筋切断机、钢筋弯曲机、钢筋剥肋滚丝机。钢筋进场后,应根据规范要求现场取样,进行拉伸和弯曲试验等相关检验,检验不合格的钢材应立即退场,不得使用。
1、钢筋应根据设计图纸和规范要求进行翻样,钢筋配料单必须经有关技术人员审核合格后,方可根据配料单进行现场加工制作。
2、钢筋在加工过程中,如发现脆断、焊接性能不良或力学性能显著不正常等现象,应根据相关标准对该批钢筋进行化学成份检验或其它专项检验。
3、成型后的钢筋按要求进行半成品分类挂牌标识,堆放整齐,分区合理放置,防止误用乱用影响现场文明施工。
4、成型后的钢筋采用塔吊运输,以加快施工进度,提高工作效率。
五、筏板钢筋安装
①钢筋绑扎前,对筏板基层作全面检查,作业面内的杂物、浮土、木屑等应清理干净。
②板钢筋骨架在筏板基底混凝土垫层硬化完工后进行。放线→筏板底层1排钢筋布置、绑扎→筏板底层2排钢筋布置、绑扎(钢筋垫铁支撑保护层)→支撑钢管脚手架搭设→筏板中部钢筋布置绑扎→筏板上层2排钢筋布置、绑扎→筏板上层1排钢筋布置、绑扎→筏板柱、墙插筋绑扎→校正、固定。
③钢筋绑扎时,要严格按照设计图纸及规范要求进行操作,并做到规格无误、尺寸合格、位置正确、绑扎牢固。筏板钢筋网片的绑扎应成梅花状,并交叉进行,绑扎时,外围两行钢筋交叉点必须全部扎牢,中间部分则可一隔一梅花形绑扎,但必须保证受力钢筋不移位,双向受力钢筋交点必须全部扎牢。
④绑扎筏板底部钢筋时,先扎底部纵筋,再扎底部横筋,钢筋末端弯钩朝上,为保证钢筋位置,可采取临时固定措施。绑扎筏板顶部钢筋时,先扎顶部横筋,再扎顶部纵筋,钢筋末端弯钩朝下。要注意电梯井等不同标高特殊部位钢筋做法。
⑤钢筋网片绑扎时,筏板底部及板面钢筋一二排为确保高度位置准确,采用C 25@1000垫铁短钢筋(1个/m2),垫铁短钢筋长度500mm,并保证其位置的准确。
⑥严格按设计及规范要求设置钢筋保护层垫块,筏板底部网片应设40mm厚的大理石垫块,筏板侧面封边可设置塑料垫块。在放垫块时,原则上间距1000㎜,现场根据实际需要,可加密设置。
⑦筏板钢筋绑扎时如遇预留洞、预埋件、管道位置妨碍钢筋,应按图纸要求增加加强筋,严禁任意拆割。
⑧裙楼筏板钢筋按设计图纸施工,筏板底部网片应设40mm厚的大理石垫块,250mm厚的筏板控制底、面筋的保护层和筏板的厚度采用"S型"马镫钢筋(C12@1000),尺寸详下图大样。

裙楼筏板钢筋马镫大样
六、墙柱插筋施工
底板钢筋绑扎完毕,绑扎柱子插筋和墙板插筋,先把定位箍筋焊接在筏板钢筋上,后插筋,墙柱插筋详施工图纸;为确保墙柱插筋竖向稳固不偏移,支撑加固钢筋采用直径C 20钢筋支撑与筏板板顶钢筋和水平钢筋点焊接,定位筋、水平筋采用直径C 16钢筋,定位筋与筏板顶部钢筋点焊接,水平筋与墙柱插筋绑扎时采用双扎丝进行绑扎。

柱插筋加固大样
墙柱插筋应插到图纸设计位置,锚固长度应满足设计及图集16G101-1要求,插筋位置要准确,固定要牢固,接头在同一截面上要错开,并不超过50%。
基础钢筋绑扎完毕,自检合格后,邀请设计、甲方、监理、质监站验收钢筋,验收合格后方可进行下道工序施工。
七、钢筋工程技术质量控制措施
①严把钢筋进场关。凡是进场的钢筋均按试验规定抽样进行复试,复试结果方可投入使用。
②严把审图关。专派有经验的技术人员进行审图和钢筋翻样工作。若钢筋过密一定要提前放样,提前采取措施。
③控制钢筋下料成型。因钢筋成型在现场集中加工,为保证下料和成型尺寸准确,技术人员要到现场进行交底,并派专人现场负责监督检查钢筋的加工成型质量。同时加工好的钢筋运到施工现场后,严格按照配料单和施工图纸进行绑扎,不能错用乱用,接头长度要用尺检验,满足设计及规范要求。
④在筏基模板上口加贴模定位定距箍,该箍应有足够的钢度,以保证构件截面钢筋位置准确,混凝土保护层均匀。
⑤筏板钢筋绑扎成型后,首先由班组和钢筋工长先自检。再由项目部技术负责人、主办施工员和质检员进行检查,合格后再向现场监理工程师、总监理工程师报验,申请对筏板钢筋最后检查验收,并在隐蔽工程验收单上签字后,方可进行下一道工序施工。
⑥混凝土浇筑完毕后,派专人负责及时调整钢筋的位置,纠正浇筑混凝土所产生的钢筋位移,及时清理粘在柱插筋上的水泥砂浆。
⑦钢筋焊接必须严格按照焊接规范工艺由持证上岗焊工进行操作,在施焊前必须进行试焊,经检验合格后才能进行正式焊接,其搭接长度和焊缝高度应符合设计和规范的要求。
八、钢筋安装质量标准
钢筋安装位置的允许偏差和检查方法详见下表:
第四节 筏板基础模板工程方案
一、地梁砖胎模施工
1、本工程挡墙地梁采用砖胎模施工。
2、砖胎模施工工艺流程:垫层→砌砖→回填夯实→内侧抹灰→地下防水及保护层→基础底板及地梁施工
3、砖胎模施工方法:砖胎模采用240mm厚烧结页岩砖砌筑,砌筑采用M7.5水泥砂浆,砖胎模内侧面采用18mm厚1:2.5水泥砂浆抹面压光为下道工序防水施工创造条件(防水施工另详本章第一节)。
4、砖胎模施工时应考虑防水构造层及砖胎模抹灰层厚度,确保基础结构尺寸符合设计要求。
5、砖胎模节点做法详下图:

基础梁砖胎模大样
二、筏板基础模板
筏板基础模板采用18mm 厚胶合板现场制作,胶合板外侧设50×100木方竖肋,间距150mm,并在木方外侧设φ48×3.5双钢管横肋,间距450mm,用端部设U型可调顶托的钢管支撑在基坑周边,井字形布置,间距500mm。
三、地下室挡墙导模
为了有效的避免墙体水平施工缝渗水,按设计要求外墙水平施工缝留置在板面以上300mm位置,本工程留置高度3000mm导墙。导墙模板采用18厚胶合板,50×100@200mm木方做背楞,采用M14止水螺杆加固。在筏板导墙上口的水平施工缝处设钢板止水带,钢板止水带宽300mm,厚度3mm,1/2埋入导墙混凝土内。钢板止水带交接处采用双面搭接焊接,注意焊缝厚度及平密均匀。钢板止水带通过两侧的固定钢筋点焊固定在外墙中间处。
四、电梯井、集水坑模板施工
1、集水坑模板
根据积水坑设计尺寸,采用18mm厚胶合板及50×100木枋制作成定尺寸的大盒子,并统一进行编号,施工时采用塔吊整体吊装就位。
2、电梯井模板
筏板基础核心筒变截面处电梯井高差达2.2m,只能进行单侧面支吊模,内模板采用钢管三角斜撑作支撑系统或采用对拉丝杆与筏板钢筋做加强焊接,吊模底部可焊接钢筋马凳作为模板的支撑;18mm厚胶合板为模板面板,次龙骨采用50×100mm方木水平向布置,间距不大于200mm,主龙骨采用φ48×3.5钢管竖向布置,间距不大于500mm。电梯井模板具体设计如下详见本工程《模板工程施工方案》。
第五节 筏板基础大体积混凝土施工方案
一、混凝土浇筑前技术准备
①技术部门提前对商品混凝土供应厂家进行技术交底,明确对商品混凝土的技术要求,进行资质备案,并要求商品混凝土供应时匀速进场不断档,并要求搅拌站按标准提供其全套商品混凝土技术保证资料。
②根据施工组织设计、方案及工艺标准要求组织所有的混凝土施工员和操作者进行培训,并做好书面的技术、质量、安全等交底。建立责任制,分工周密,按照操作规程规定进行施工。交底目的必须让每位参加大体积混凝土底板浇筑的人员知道:混凝土的浇筑量、浇筑时间、浇筑流水线、浇筑振捣的技术要求、质量要求、各岗位人员的职责、各岗位人员的配合。
③项目经理、技术负责人到现场参与协调、指挥大体积混凝土浇筑,工长、质检员、技术员深入施工一线,跟踪监督、检查现场的施工状况。
混凝土浇筑过程中安排专职施工技术人员负责商品混凝土供货验收(坍落度16cm)并认真填写浇灌记录技术资料。
④项目技术负责人应针对工程特点,明确施工方案, 制定施工方法、施工步骤,保证混凝土浇筑均衡性和连续性。对施工阶段大体积混凝土块体的温度、温度应力及收缩应力进行验算,确定施工阶段大体积混凝土浇筑块体的升温峰值、里外温差及降温速度的控制指标,制定切实有效的温控技术措施,确保将混凝土的应力值控制在允许范围之内。
⑤提前绘制测温点平面布置图,冷却管平面布置图,将测温管、冷却管布置到位,并进行保护,确保测温管能正常工作。设置专人负责大体积混凝土浇筑后的养护、测温工作,发现控制温差值超过指标,及时反馈到项目技术部,及时采取措施,降低混凝土温升和温降的梯度,降低混凝土中心温度和表面混凝土温度差,降低混凝土表面温度和大气环境温度差。
二、施工人员职责分工安排
1、项目施工组织管理体系
①为保证基础底板混凝土的连续浇筑,浇筑时配备两个浇筑小组,具体人员配备如下(含其它工种配合)在筏板浇筑时,项目经理部对筏板混凝土的浇筑、养护等各项工作做出总部署,管理人员和劳务人员配备白班、夜班两套人员,管理、监督控制混凝土的施工过程、施工顺序、筏板混凝土的施工质量。
②人员班次按12小时一班,工人交接班时间,管理人员晚半小时交接班。
③组织管理体系如下:
总 指 挥:XXX
副总指挥:XXX 电话:***
现场指挥:XXX 电话:***
钱胜秋 XXX 电话:***
技术负责:XXX 电话:***
质量负责:XXX 电话:***
试验负责:XXX 电话:***
测量负责:XXX 电话:***
测温负责:XXX 电话:***
安全负责:XXX 电话:***
现场工长:XXX 电话:***
材料负责:XXX 电话:***
机械及用电负责:XXX 电话:***
劳务作业负责:XXX 电话:***
混凝土班组长:XXX 电话:***
后勤负责:XXX 电话:***
2、项目各部门安排
工程部:混凝土现场调度、现场指挥、安全监督等;
技术部:测温、取样、质检、放线、摄影等;
安全部:食堂、卫生、抢险、临电、道路等;
管理人员安排如下表所示:
混凝土浇筑期间每班劳动力安排如下表所示:
3、浇筑小组连续进行施工,砼浇筑施工人员按2班安排,在夜间作业时进行无缝轮换,中餐及晚餐统一供饭至现场,确保混凝土浇筑一气呵成。施工过程中间歇时间不得超过30min,以防止筏板基础混凝土出现施工冷缝。
4、混凝土浇筑时间计划安排
根据本工程各栋楼混凝土工程量及臂架泵每小时产能,按照以往施工经验数据每小时40m3计算,30#楼1850m3混凝土,采用2台臂架泵同时作业,筏板基础混凝土预计浇筑时间约24小时。
三、混凝土材料选用
1、商品砼供货技术指标
本工程基础底板混凝土强度为C35,抗渗等级为P6,采用九鼎商品混凝土,根据厂家多年大体积混凝土供货生产经验及项目部的施工技术设计,混凝土供货技术指标如下:
四、筏板大体积砼施工流程、施工作业段划分
1、大体积砼施工流程
2、施工作业段划分
30、31#楼每栋设置两个施工作业段同时进行作业,并分工协作,筏板基础大体积砼必须进行连续浇筑,不得形成施工缝,考虑到本工程由于砼单栋砼工作量较大,砼浇筑施工采用两台臂架泵和两个砼浇筑作业小组
本工程筏板基础大体积砼采用推移式连续浇筑施工,其施工作业段划分见下图:

大体积混凝土浇筑施工顺序图
五、预拌混凝土的运输
1、砼运输交通组织
①为了保证混凝土的连续供应,本工程选择的九鼎商品混凝土公司,搅拌站距工地距离约10km,另选择距工地距离不超过15km的九鼎商品混凝土分公司搅拌站备用,以应对意外情况。通过实地行车试验,确定最佳行车路线及堵车时的备用路线。
②混凝土浇筑前与政府相关部门协调,做好道路交通指挥及交通高峰期放行工作。
③由于本工程正在进行土石方大面积平场施工,混凝土搅拌车到达现场后,由现场保安人员及安全部门进行指挥,在出入口处设两名保安维持交通,确保混凝土运输车及时进出、按序停靠、卸料返回。根据现场及周边道路情况,必须保证混凝土车的有序行进。
2、场外运输
①搅拌站距施工现场约10公里,采用混凝土罐车(容量10m3)进行场外运输,要求每辆罐车的运输时间不得超过40分钟,每个泵送机组车与车(5台)时间间隔不得超过20分钟,并将混凝土出机到入模的时间间隔控制在60分钟内,施工现场有特殊情况发生时,按照现场管理人员通知,可适当调整发车频率。
②混凝土泵的实际平均输出量:
Q1=Q max·α·η
式中:Q1 ――每台混凝土泵的实际平均输出量(m³/h);
Q max――每台混凝土泵的最大输出量(m³/h),一台泵车输送量为100;
α ――配管条件系数,可取0.8~0.9;
η ――作业效率,根据混凝土搅拌运输车向混凝土泵供料的间断时间、拆装混凝土输出管和布料停歇等情况,可取0.5~0.7。
实际计算100×0.8×0.5=40 m3/h。依据实际施工经验,Q1可取30~40 m3/h。
③当混凝土泵连续作业时,每台混凝土泵所需配备的混凝土搅拌运输车台数:
式中:N ――混凝土搅拌运输车台数(台);
Q1――每台混凝土泵的实际平均输出量(m³/h),取40 m³;
V――每台混凝土搅拌运输车的容量(m³),取10 m³;
S――混凝土搅拌运输车平均行车速度(km/h),取30 km/h;
L――混凝土搅拌运输车往返距离(km),取20km;
Tt――每台混凝土搅拌运输车总计停歇时间(h),取0.5 h。
计算得 N=
台。
故,每个泵送机组配备5台混凝土运输车就能够满足不间断的浇筑混凝土的要求。
六、筏板基础大体积混凝土浇筑
本工程筏板混凝土浇筑面积和厚度都较大,强度较高,为了不出现施工冷缝,保证混凝土施工质量,浇筑时混凝土应尽快入模,采用斜面分层浇筑法,最大可能减小混凝土的浇筑厚度。
1、浇注方式采用斜面分层浇筑,分层高度以尺杆衡量。遵循"斜面分层,一个坡度(泵送混凝土为1:6~1:10),薄层覆盖,循序渐进"的原则,每层厚度为300~500mm,从短边开始沿长边浇筑。分5层到顶,以后依次薄层浇捣、一次到顶。施工时应从浇筑层下端开始,逐渐上移,以保证混凝土的质量。浇筑顺序见本章第二节,混凝土分层振捣示意见下图:

大体积混凝土分层浇筑、振捣示意图
混凝土分层振捣示意图
2、将所有泵管支设到位,浇筑时各排输送管定点定人,各负其责。
3、利用泵管或泵管前连接的软管在筏板上皮钢筋的表面上直接布料,在保证混凝土不出现冷缝的前提下,利用软管左右移动,作扇形状散布混凝土,尽量使入模混凝土散布面积大以增加散热与热量交换。
4、已浇混凝土表面覆盖薄膜的时间不得超过混凝土初凝时间,以免出现冷缝。
5、电梯井内混凝土的浇筑施工方法
①根据大体积基础底板混凝土流淌速度和范围,采用"先低后高"的浇筑原则,需提前进行临近电梯井内泵送混凝土的施工,并振捣密实。将电梯井大底板平齐,与基础底板混凝土部分交接严密。
②由于本工程电梯井较深,故采用间歇浇筑的方法,其模板做成整体式并预先架立好,先将电梯井底板浇至与模板平,待坑底混凝土流动性不大,可以承受坑壁混凝土压力时,再浇筑地坑坑壁混凝土,要保证底与壁接触处的质量,间歇时间在2h 左右;电梯井周边砼施工时可与商砼站联系将此部位砼塌落度作适当调小,确保吊模底部不出现漏浆、烂根现象。
③派专人检查电梯井底板混凝土状态,在混凝土初凝之前进行大面积基础底板混凝土施工。
④坑底浇筑顺序由长度方向从一端向另一端浇筑推进。坑壁应形成环行回路分层浇筑。电梯井侧壁混凝土浇筑时,采用对称浇筑的方法,确保侧壁模板受力均匀,模板不偏移,浇筑过程中如有偏移应及时纠偏。
七、筏板基础混凝土的振捣
1、振捣棒选用:浇筑前,每条泵管配备足够的振捣棒。采用(50和(30两种规格的插入式振捣棒振捣,对一般地方用(50振捣棒振捣,对钢筋密集处(插筋的地方)则采用(30振捣棒振捣。
2、混凝土振捣方法:在下层混凝土初凝前采用二次振捣工艺,施工时具体作法是:第一次振捣,混凝土入模后采用插入式振捣器;第二次振捣,根据试验人员在现场测出的混凝土出机后坍落度损失到30~50mm的时间第二次振捣时间,经当时在现场测定,这个时间为2h~2.5h,在这个时间内用振捣器按第一次振捣顺序进行第二次振捣,二次振捣的时间应控制在上述测的时间内,不得随意拖延,避免混凝土在初凝后振捣产生振动破坏与钢筋的结合,使混凝土出现早期破坏。振动棒分三道布置,第一道布置在出料点,使混凝土形成自然流淌坡度,第二道布置在坡脚处,确保混凝土下部密实,第三道布置在斜面中部,在斜面上各点要严格控制振捣时间、移动距离和插入深度。振捣时振动棒振捣方向须与推进方向相反,沿斜面自下而上进行,逐渐上移。

3、振捣由有经验的工人负责,严格按照操作规程进行操作,操作振动棒要做到到"直上和直下,快插与慢拔;插点要均匀,不漏振不过振;上下要插动,层层要扣搭;时间掌握好,密实质量佳",振捣棒插点移动次序采用梅花法,每一振捣点从斜面下端向上移动,振动器移动间距不大于作用半径的1.25倍。振捣时间一般为20S—30S,混凝土表面不显著下沉、不冒气泡、表面泛起灰浆为止,要防止出现漏振、欠振及过振的现象。振捣棒插入混凝土的深度以进入下一层混凝土50~100mm 为宜,消除两层之间接缝,在振捣上层混凝土时,要在下层混凝土初凝之前进行。可在振捣棒距端部500mm 处绑红皮筋作为深度标记。
4、当施工到吊模处,需小心操作,严禁混凝土直接从泵管里放出,冲击模板,应该采用旁边堆灰,铁锹布料的方式,防止对模板造成大的冲击;振捣也应严格谨慎,掌握好振捣时间,防止出现过振,致使模板偏位,也要防止出现漏振,使该处结合不到位,成为薄弱部位;施工中,还需安排专人看模,出现偏位,立即进行补救(并进行测量复核),保证吊模处的混凝土的成型效果。振捣时应避免碰撞钢筋、模板、预埋件、预埋管等。
5、夜间混凝土施工时,用塔式起重机上两个鏑灯、塔吊臂灯全方位提供基坑整体照明,除此之外,还应根据需要配备足够数量的碘钨灯照明,保证施工作业面明亮。
6、混凝土施工期间,模板工、钢筋工、安装工要跟班作业观察,发现涨模、跑模、钢筋移位、预埋管件破坏或移位,要随时纠正,保证在混凝土初凝前修整到位。
7、新浇混凝土面强度未达到1.2Mpa前,视当时的天气一般在浇筑混凝土24小时内表面不准堆放任何料具。
8、混凝土浇筑前应提前对近期天气进行预判,尽可能避开雨季浇筑,并提前做好防雨措施,配备足够的彩条布和塑料薄膜;浇筑混凝土过程中,如遇阴雨天气,应用塑料薄膜对已浇筑混凝土及时进行覆盖,当雨量较大时,应短时暂停施工,待雨势较小,具备施工条件时开始进行浇筑施工。
9、成品保护措施:为确保筏板上部钢筋不变形,砼浇筑前对操作人员操作部位及人行通道部位应铺竹跳板进行钢筋保护。
八、筏板基础混凝土收面
1、混凝土表面处理
1、混凝土采用二次收面工艺,基础底板大体积混凝土浇筑施工中,其表面水泥浆较厚,为提高混凝土表面的抗裂性、在混凝土浇筑到底板顶标高后要认真处理,待混凝土收水后,初步按标高用铝合金刮杠刮平混凝土表面。待混凝土表面无明水、上人不明显下陷时,用铁滚筒沿筏板纵横向碾压,然后在混凝土初凝前用木抹子进行第一次收面工作,第二次抹面在混凝土终凝前用手指按稍软,采用抹光机进行抹面。消除表面塑性裂缝,以防止产生收缩裂缝。
2、二次收面完成后即可覆盖塑料薄膜养护。
混凝土在浇筑完毕后,要及时在混凝土表面收水初凝时及时覆盖一层塑料薄膜,在 10h 内加以覆盖和浇水,浇水养护时间不少于 14d。柱子、墙体钢筋里侧区域必须也要做好同样的保温措施。
九、混凝土泌水处理
混凝土拌合物浇筑之后到开始凝结期间,由于骨料和水泥浆下沉,水分上升,在已浇筑混凝土表面析出水分,形成泌水,使混凝土表面拌合物的含水量增加,产生大量浮浆,硬化后使面层混凝土强度低于内部的混凝土强度,并产生大量容易剥落的"粉尘"。混凝土在采用分层施工浇筑工艺时,必须清除泌水和浮浆,否则会严重影响上下层混凝土之间粘结能力。影响钢筋和混凝土握裹强度,产生裂缝。大体积混凝土基础底板在浇灌振动过程中,可能会产生大量的泌水,由于混凝土为一个大坡面,泌水沿坡面流至坑底,随着混凝土浇筑向前渗移,最终集中在基坑顶端排除。
当混凝土大坡面的坡角接近顶端模板时,改变浇灌方向,从顶端往回浇灌,原斜坡相交成一个集水坑,并有意识的加强两侧模板处的混凝土浇筑速度,使泌水逐步在中间缩小成水潭,使最后一部分泌水汇集在上表面,采用小型潜水泵将过滤出的泌水排出坑外;不断排除大量泌水,有利于提高混凝土质量和抗裂性能。

十、混凝土养护
根据规范GBT51028-2015要求,混凝土施工作业环境温度低于5度时,应进行混凝土的保温、保湿养护;当环境温度高于5度时,根据混凝土内部温升情况,可推迟保温养护。
1、混凝土浇筑完毕初凝前,应立即进行喷雾养护工作,采取覆盖保湿养护措施,严防脱水、裂缝。本工程大体积混凝土采取保湿、保温养护方法,在混凝土边浇筑成型边采用塑料薄膜覆盖保湿,防止表面失水过快产生裂缝,砼终凝后根据不同的浇筑时间及时用草袋进行保温;为防雨水造成表面温度的突降须在草垫上又加盖一层塑料薄膜,隔离雨水对草垫的直接影响,同时又使表面已升高的温度不易降低,有效缩小了砼内外温差。
2、保温材料选用塑料薄膜外加保温材料,同时加强测温以随时了解内外温差。以20°C温差为预警温差,达到预警温差时应加大测温频率,当内外温差达到23°C时,及时采取增加覆盖保温材料、启动水循环冷却系统等控温措施。覆盖时塑料簿膜、保温材料幅与幅之间接缝处应有10cm搭接。
3、筏板侧壁养护措施:筏板侧壁模板如需拆除应粘贴40厚挤塑聚苯板进行保温。如模板不拆除时可根据筏板基础大体积混凝土温控情况采用铺挂草袋进行保温。
4、养护时间不小于14d。塑料薄膜覆盖养护时,混凝土全部表面应覆盖严密,夏季大体混凝土每两小时进行一次洒水养护,持续7天,7~14天时间段每四小时进行一次洒水养护,保持混凝土表面湿润。冬期大体积混凝土采用综合蓄热法,即设置保温棚并在混凝土表面覆盖薄膜和草袋,利用大体积混凝土自身热量进行养护。保温覆盖层拆除应分层逐步进行,当砼的表面温度与环境最大温差小于20°C时可全部拆除。
十一、砼试件留置、检验
1、每拌制 100 盘且不超过 100m 3 的同一配合比混凝土,取样不得少于一次。
2、每工作班拌制的同一配合比的混凝土不足 100 盘时,取样不得少于一次。
3、当一次连续浇筑超过1000m3时,同一配合比混凝土每200m3取样不得少于一次。
4、同一配合比混凝土,取样不少于一次。
5、同条件养护试件的留置组数按每600m3取样不得少于一次。
7、对有抗渗要求的混凝土结构,其混凝土试件应在浇筑地点随机取样。同一工程、同一配合比的混凝土,取样不应少于一次,抗渗试块留置组数按连续浇筑抗渗混凝土每500m3应留置一组抗渗试件,每项工程不少于2组。
8、同条件养护试件拆模后,应放置在靠近相应结构构件或结构部位的适当位置,并应采取与现场构件相同的养护方法进行养护,同条件试块也要按规范要求留置,且试块要放在筏板混凝土表面,用钢筋笼锁好。
9、试块制作由专人负责,所有制作试块应标明强度等级、成型日期、施工部位,并有书面台账记录;标准养护试块达到28d龄期后送检试压,筏板大体积混凝土可按设计要求60d或90d龄期进行评定送检试压;同条件养护试件在达到等效养护龄期时进行强度试验。等效养护龄期为日平均温度逐日累计达到600℃·d时所对应的龄期,0℃以下的龄期不计入,等效养护龄期不应小于14d,也不得大于60d。
十二、筏板大体积混凝土测温
1、 测温系统
①混凝土测温采用JDC-2型建筑电子测温仪及配套的探头进行测温,采用2台电子测温仪进行温度数据采集。大气温度采用温湿仪测试,场地内挂设2处。
仪器型能技术参数如下:
测温范围:-30-125℃;测温精度:0.2℃; 分 辨 率:0.1℃;数据存储量:1000个; 测试通道:32路。
测温仪器如下图:

电子感应测温仪器及探头
②测温管材料采用φ50mm热镀锌钢管制作(壁厚3.5mm),管底须封闭,管口混凝土浇筑时采用彩条布进行封口堵塞,避免混凝土进入测温管,测温管露出混凝土完成面标高300mm。测温管大样详下图:

2、测温点布置
(1)根据现场实际情况测温点的位置应在中心、边缘等有代表性和温度变化大的部位,容易散失热量的部位和受环境温度影响大的部位、绝热温升最大和产生收缩拉应力最大的部位。
(2)测温管布置要求
①每条测试轴线上,监测点设置不少于4处,应根据结构的几何尺寸布置;
②沿混凝土浇筑体厚度方向,必须布置外面、底面和中间温度测点,其余测点宜按测点间距不大于600mm布置;
③混凝土浇筑体的外表温度,宜为混凝土外表以内50mm处的温度;
④混凝土浇筑体的底面温度,宜为混凝土体底面上50mm处的温度;
⑤测温元件的测温误差不应大于0.3℃(25℃环境下),测试范围-30~150℃;
⑥测试元件安装前,必须在水下1m处经过侵泡24h不损害;
⑦测试元件周围应进行保护,浇筑混凝土时,下料不得直接冲击测试测温元件,振捣时,振捣器不得触及测温元件。
⑧测温点布置详见下图:

(3)测温点应按埋点位置图准确埋设,其埋设原则为:上下测点均位于距混凝土表面50mm处,中间测点位于混凝土底板厚度的中心处。空气中测点位于混凝土表面以上1.5m左右的空气中(温湿度计)。为了防止所埋设的测温遭到损伤或破坏,应在其它工序完工之后,混凝土浇筑之前进行埋设。在埋设有测温点的部位设置标示牌,以防止在浇捣时将其破坏。
(4)测温频率
混凝土浇筑后,前7d每4h测1次,第8~14d每6h测1次,同时测出大气温度;对测出的数据应及时整理和分析,对温差超过23℃时,应及时在混凝土表面加温养护。对混凝土的温度从浇筑起开始进行监测,包括混凝土内部温度从升温、降温、趋近于环境温度及拆除保温层,进入安全范围的全过程。测温时间原则上延续14d,但根据测温情况和气候变化情况必要时适当延长测温时间,具体根据现场情况而定,混凝土的降温速率和表里温差应满足大体积混凝土温度测控技术规范GBT51028-2015第5.3.3条要求,混凝土最高温度与环境最低温度之差连续3d小于25时,可停止温度监测。
测温人员,每测完一次应立即向技术质量部报告温度情况,着重报告混凝土中心和表面、表面和环境温度之间的最大温差、混凝土降温的最大速度,每次测温温度数据收集后要及时绘制温度变化曲线,以便随时掌握温度变化情况。图中要有混凝土中心、底部和表面三种不同的温度变化曲线,测温完成后要写出分析意见。
(5)温控指标
①混凝土浇筑体在入模温度基础上的温升值不宜大于50℃
②当混凝土块体里表温差(不含混凝土收缩的当量温度)不宜大于25℃
③混凝土浇筑体的降温速率不宜大于2.0℃/d。
④混凝土浇筑体表面与大气温差不宜大于20℃。
(6)混凝土测温小组
①主要任务
——熟习了解、全面掌握测温工作全过程;
——熟习掌握测温仪器的使用和操作;
——负责按施工方案要求进行现场布点,并对测出的数据及时整理和分析;
——当中心和表面,表面与大气间温差大于温控指标时和降温速率接近时,应立即向技术质量部报告,采取相应技术措施;
——认真做好测温全部记录,测温完毕后绘出温度变化曲线,并写出分析意见。
②测温小组成员
组长:技术质量部主管;
组员:质检员、试验员、测量员,分二班昼夜监测,每班2人,共4人。
筏板基础大体积混凝土测温记录表详见下表:
筏板基础大体积混凝土测温记录表
本工程成立两个混凝土温度测量小组,定时对温度测量点进行测量,并如实填写。
十三、混凝土水循环冷却系统
(一)水循环冷却系统
1、筏板大体积混凝土通过内部水循环冷却管降温;
2、工作原理:在筏板施工过程中,预先在结构体内预埋水循环冷却管,当浇筑完成后或浇筑过程中及时通冷却水,使冷却水管中的水在混凝土升温的同时被加热,以保证开启冷却水管时其冷却水的温度和混凝土的温差不会过大。利用水管的导热性能,由冷却水的流动带走混凝土的部分热量,降低混凝土的温度。如果不预先加水,会导致冷却水管周围的混凝土出现放射状的裂纹。根据降温的阶段目的,水循环冷却管的整个运行过程可分为两期,即初期冷却和后期冷却。初期冷却是在混凝土初凝以后,甚至常在混凝土浇筑时就开始,目的在于削减混凝土水泥水化热峰值,减少水化热引起的温差,从而降低由水化热温差引起的温度应力,满足允许温差的要求。
(二)混凝土冷却管的布置原则:
根据本工程混凝土的厚度,冷却管间距按1.0m 设置,冷却管在筏板中部设置一层,冷却降温管呈u形布设,最外侧水管距混凝土边缘亦控制在0.5~1m。
(三)冷却系统材料选用
1、材料:冷却管水管采用工程常用的热镀锌DN50 mm钢管制作(壁厚3.5mm),循环系统冷却管接长采用丝接方式。
2、系统设备:水泵3台,现场每栋筏板基础设置3个容积大于10m3的蓄水池配合循环系统。水池采用0.37m厚砖砌水池长*宽3.0m*3.0m,深度1.2m,水池底部采用C20素砼,底板厚0.2m(水池布置另详循环系统图)。
(四)冷却管的制作安装
1、冷却管应先下料套丝,接口采用直螺纹套筒连接,弯头采用两个90°弯管加直管连接制成,接口安装时应设置防水胶带,确保接头不漏水。进水口和出水口均安装球阀止回。
2、冷却水管网按照冷却水由热中心区流向边缘区的原则分区布置,采用单循环多回路冷却水系统,于筏板中心高度处设置一层,置于中间层钢筋网片部位,进水管口宜设在靠近混凝土中心处,出水口设在混凝土边缘区。遇到电梯井及集水坑,冷却管下落到坑底。
3、冷却管横向间距为1.0m,最外层水管距离筏板边0.5~1.0m。
4、布管时,水管要与筏板主筋及测温元件错开,当局部管段错开有困难时,适当移动水管的位置;电梯基坑、集水坑应随板一并下沉;预留洞处应绕开。
5、水管网与筏板中部钢筋绑扎牢固,防止混凝土浇筑过程中,水管变形或接头脱落而发生堵水或漏水。
6、水管网安装完成后,将进、出水管口与进出水总管、水泵接通,进行通水试验,以确保水管畅通且不漏水。混凝土浇筑前,应在冷却水管中预先注满冷却水。混凝土初凝后,应及时启动水冷却系统。
7、水循环管路布置如下图所示:

循环水冷凝管安装布置图
(五)水循环冷却系统的运行
1、温度控制要求
混凝土内外温差达到23℃时,做好运行准备,水泵、水箱就位,管路接通;内外温差达到25℃时应重新启动水冷却系统,应通过调节进水流量及水温,控制进水温度与混凝土最高温度之差,温差宜为15℃~25℃,;出水温度与进水温度之差宜控制在3~6℃之内;降温速率不宜大于2℃/d,且不宜大于1℃/4h。当混凝土最高温度与表层温度之差不大于15℃时可暂停水冷却作业
2、冷却水温度控制措施:冷却水循环过程中进水温度与混凝土中心的温差较大会导致管壁周围的混凝土出现放射形的温差应力裂缝,所以必须控制进水温度,进水温度与混凝土中心最高温度之差应小于25℃;如进水与混凝土中心温度温差较大,应对冷却水进行加热处理。因此严格的做法是用热水去冷却更热的混凝土,不能把冷却水理解为用冷水去冷却热的混凝土。
(六)冷却管后期处理
筏板大体积混凝土养护完成后,采用JBZ-2型注浆设备将P·O 42.5水泥浆灌入管网中,水泥浆采用商砼站C35砼去石子水泥浆,水灰比0.48。待水泥浆凝固后,用手持式切割机将冷却管外露部分切除。
十四、筏板基础大体积混凝土施工特殊情况的应急措施
1、如在筏板基础混凝土浇筑过程中出现停电情况,首先启动施工现场已经配备到位的300KVA柴油发电机,保证混凝土连续施工。
2、若浇筑过程中商砼厂家搅拌站出现故障,及时联系备选的商品砼厂家继续浇筑。
3、混凝土浇筑前要及时掌握近期天气预报气候变化情况,并做好防雨措施。以便合理安排混凝土浇筑时间,避免浇灌混凝土时遭遇恶劣天气,做到事前控制。现场常规状态下配备足够的彩条布、塑料薄膜等。
小雨时,除人员和设备进行采取防雨措施外,可进行正常施工。
当突遇中雨时,在所浇筑面用钢管搭设架子或借助钢筋上面盖料薄膜,以免雨水直接冲刷混凝土面层。
当突遇大雨时,对已经浇灌的混凝土上部进行覆盖和振捣,如果雨过后超过混凝土的初凝时间,混凝土现场按照施工缝处理进行凿毛,在第7~10天时进行上部二次混凝土浇灌。如果雨过后未超过混凝土的初凝时间,继续进行混凝土的浇灌。
4、炎热天气浇筑砼时,宜采用遮盖、洒水、拌冰屑等降低砼原材料温度的措施,砼入模温度宜控制在300C以下;条件许可时,应避开高温时段浇筑砼。
5、冬期浇筑混凝土,宜采用热水拌和、加热骨料等提高混凝土原材料温度的措施。混凝土入模温度不宜低于50C。
6、现场输送系统发生故障的处置:现场成立抢修小组,当泵送设备出现问题时,立即进行抢修。若输送泵短时修不好,立即要求商混凝土站调配新设备到场工作。当泵管发生堵塞时,及时将泵管拆除,并将泵管内堵塞的混凝土用塔吊吊至场地外冲洗干净,现场用备用泵管再接管。
十五、筏板基础混凝土质量标准
(一) 外观质量
1、现浇结构的外观质量不应有缺陷;
2、连接部位无影响结构安全的严重缺陷;
3、无缺棱掉角、棱角不直、翘曲不平、飞边凸肋等外形缺陷;
4、表面无麻面、掉皮、起砂、沾污等外表缺陷;
5、无露筋、蜂窝、孔洞、夹渣、疏松、裂缝、连接部位缺陷、外形缺陷、外表缺陷等外观质量缺陷。
(二)位置和尺寸偏差
第七章 筏板基础施工质量保证措施
一、组织保证措施
1、选派责任心强,质量意识高,施工经验丰富,技术水平高的施工人员,团结,互助,齐心协力,调度灵活,步调一致,决心实现优良目标,争创名牌工程的项目工作班子。
2、项目经理必须懂技术,善管理,重质量,与项目技术、施工、材料负责人组成强有力的项目核心班子,严格过硬,奖罚分明确保项目各类人员在组织行动方便,上岗尽职方面,分工合作方面,质量保证和进度目标,物质供应等各方面达到政令畅通,从组织管理措施上得到落实。
3、设专职质检人员,在班组自检、互检、交接检的基础上,独立行使质量监督职能,赋予质检员在质量上一票否决权,严格监督生产班组,质量好坏与分配报酬挂钩,其奖金金额多少,有无,必须经质检员检查,认可,专职质监员签字后,方可增发质量优质工资。质监员的工作直接由项目经理负责。
4、每天定期开质量碰头协调会,解决施工中出现的技术问题,商讨解决问题的方法,方案,各区段部门对材料,质量,进度,资金,技术信息,相互交流,互相学习,相互警示,避免质量事故发生。
5、虚心接受监理、业主的检查,督促旁站监督,提出问题虚心接受,及时整改。作好质量信息汇报、交流、协调,消除障碍,使工作能顺利进行,每道工序质量符合规范要求。
二、技术保证措施
1、编制基础专项施工方案,并作好施工技术人员,班组和操作工人的技术交底及贯彻执行。
2、施工人员对工人班组除了交待任务外,每天应在现场巡视检查、指导、督促、改进,使每个质量点施工质量达到一次合格。
3、对入场工人和施工队伍要进行选拔,考核,培训,入场教育、技术交底后,方可上岗,确保每道工序质量合格,符合规范。思想技术素质差,达不到合格产品的,应及时退场。
4、加强测量控制,确保工程定位准确,垂直度上下对齐,横平竖直,几何尺寸准确。
三、材料保证措施
1、严格把好材料质量入场关,工程材料必须有出厂合格证。特别是钢材、水泥、砂、石必须抽检合格后才能入场和使用。
2、抽检材料,特别是钢材、水泥、砼必须有足够规定数量并有监理验证的复检资料,否则复检资料无法说明其真实性。
3、材料采购必须采购正规厂家产品,产品必须有厂家、厂品、产地、生产标准、技术资料、市场准入、备案证等,杜绝三无产品入场。采购时应货比三家,择优采购。
四、机具设备保证措施
1、加强设备维护,确保正常运转,保证工序连续进行,特别是浇注砼,应避免机械故障停歇而造成质量缺陷。
2、保证水、电正常供应,坚持水电值班人员跟班作业,出现水电故障及时维护、排除、确保施工正常进行。
五、施工管理控制措施
1、墙柱插筋在浇砼前应固定好位置,上口加固定箍筋与纵筋绑扎牢固,防止浇砼时柱主筋位移。
2、浇砼时严禁随意踩踏、移动已绑好的板筋,钢筋工要派人随时检查钢筋的位置、保护层、骨架顺直、柱插主筋位置,发现问题及时修理。
3、砼开盘浇筑时,先组织技术人员对商砼公司运至施工现场砼的坍落度、和易性进行鉴定,符合要求后方可投入施工使用。以后随时检查砼的坍落度须符合要求。
4、振捣砼时振捣棒严禁碰模板和钢筋。严禁使用振捣棒摊开砼。振捣应细致,密实。在纵、横交错处钢筋较密不易振捣时可采取如下措施:
①、使用小直径的振捣棒,分层铺料;可先松开部分筏板上层附加筋,拨开,待砼振捣完成后再恢复移动过的钢筋位置。
②、浇砼时经常观察模板及钢筋,看模板有无异常,支撑是否有松动,钢筋保护层、插筋位置有无变化。发现问题通知有关班组及时修正。
5、砼表面标高的控制。浇砼前在模板边弹出砼表面标高平线,
在柱插筋上标出高于砼上表面500mm的平线。砼摊料、抹面时据此拉线作为标高控制线。
6、筏板基础混凝土施工时,技术人员24小时旁站监督,严把质量关。项目部领导干部分班值班。
7、在筏板基础浇砼之前由项目部主管技术的技术负责人向项目执行经理、施工员、材料员、质检员、及重点把关的工人进行一次技术交底,同时请建设单位现场代表和监理工程师参加,统一思想,统一要求,统一指挥,确保浇筑质量。
8、在筏板基础浇砼浇筑之中,加强对商品砼生产厂的值班联系,加强领导轮流值班,设置通讯车一部,加强浇筑中平衡调度和应急意外情况。
第八章 工期保证技术措施
一、组织保证措施
成立以项目经理为第一责任人的工期管理体系,负责本工程的施工工期管理、布置、落实、检查工作。施工前按规定要求制定出各职能部门和班组的各自职责,将责任落实到每个人头上。
二、工序穿插措施
科学合理安排各项工程的施工顺序,缩短平行交叉作业的流水间距,加快工程进度,编制分项工程详细的网络施工计划,以确保工期。
每天上班前召集施工员、班组长会,布置当天工作任务,下班后调查工作实施难点,及时解决。每天检查进度计划实施情况。为缩短工期,合理组织各班组人员进行施工,抓晴天,抢雨后,保证工程进度的完成。
三、劳动力组织措施
筏板钢筋施工执行一班半工作制。所有进场施工队伍和人员必须经过精心挑选,从筏板基础开始到完工都必须选第一流的施工队伍,充分发挥先进施工企业技术力量雄厚,机械化程度高,生产效率高,质量好的优势,确保工期按时按质完成。
在各关键工序中组建班组突击队,突击队由班组技术骨干负责,充分发挥青年人有干劲、有冲劲、能吃苦耐劳的精神,确保关键线路的工期,满足总进度需求。
四、物资、设备组织措施
模板、架料等周转材料,机具设备,公司保证满足本工程使用。对于远地物资和紧缺物资,提前采购、按时入场。施工机械随时维修及保养。同时配足常用零件,施工机械配置方案中已考虑备用,全力以赴保证供应。
第九章 安全、文明环保施工保证措施
目的:安全技术措施是安全生产的重要保证,对加快工程进度,提高工程质量起着重要的作用,因此在施工过程中必须坚决贯彻执行,确保安全生产,维护企业社会形象。
一、组织措施
(1)建立健全安全生产组织,成立以项目经理为组长的安全生产领导小组,本工程设安全组主持日常安全检查和监督指导工作。
(2)公司工程部派一专人指导、督促安全生产工作。
二、制度保证措施
(1)项目部建立、健全各职能部门安全生产管理职责以及管理人员的安全生产岗位职责,责任落实到部门、人头。
(2)必须坚决贯彻执行建设部JGJ59-2011《建设施工安全检查标准》及各种规范、规定,严格执行公司制定的各种安全生产规章制度,根据国家规定,制定各种专门的安全措施。
(3)按规定执行安全生产检查、考核奖惩制度,项目部管理人员,由项目经理根据各管理人员所分管的专业、区域、安全生产效果,每月考核;工人班组在签订分部、分项工程施工承包合同时,贯彻落实奖惩制度,完工时由安全员签字兑现,同时严格执行公司的安全生产管理制度及其奖惩制度。
(4)分部分项工程,必须进行安全技术交底,做到针对性强,签证手续完整,督促检查实施情况,及时制定增补措施,保证安全施工。
(5)建立安全生产检查制度,做到班组岗位日查、项目周查,公司每月检查。公司每季进行一次安全生产检查评比,并执行公司的安全生产奖惩制度。使警钟常鸣、常抓不懈。
(6)安全员、施工员,工人班组长认真填写各项安全生产管理记录,定期交安全员分类、保管、存档。
三、安全意识保证措施
(1)定期组织安全条例学习、宣传,使广大职工对安全工作从思想上有足够的认识,自觉遵守安全制度和认真执行安全操作规程,对新入场职工要进行认真的入场教育并形成书面资料,与施工班组签定安全施工合同。
(2)对职工安全生产的安全常识教育,牢固树立法制观念,建立"安全第一""安全责任重于泰山"的思想意识,对参加施工的所有人员进行安全技术培训。
四、日常安全管理措施
(1)认真贯彻执行施工现场"安全三宝"规定。
a.进入施工现场必须戴好安全帽。
b.悬空作业必须拴挂好安全带。
(2)脚手架搭设
各类脚手架的搭设,必须按有关规程规范要求的材质、结构、连接方法进行,经验收合格后使用,并指定专人检查维修,及时消除隐患。各种架子必须保证稳定、坚固、不变形、不倾斜、不摇晃。拆除脚手架时,周围应设围栏或警戒标志,并设专人监护,严禁入内。
(3)加强用电管理
1)严格执行建设部JGJ46-2005《施工现场临时用电安全技术规范》现场使用的动力线、照明线路的架设要符合线路架设要求,采用"三相五线制"供电线路,三级配电二级保护,并编制专门的临时用电方案,确保用电安全。
2)电器设备和线路绝缘必须良好,维修电工要经常检查,防止漏电伤人。
3)电工检修电气设备时线路先断电源,保证安全,非电工严禁操作。
4)使用手持电动工具应戴上绝缘手套。
5)夜间施工必须有电工值班,照明要满足施工要求。
6)严禁动照混用,必须一机一闸,并按规范规定搭配保险丝。
(5)加强设备管理
1)各种机械设备安装完毕必须组织专门验收,合格挂牌后方能使用,设备操作人员必须遵守各种操作规程和有关规定,严禁无证操作。
2)加强设备维修保养工作,保证设备正常运转发现问题作好记录及时处理。
3)严禁违章指挥,严禁无证操作。
(6)加强消防管理
1)认真执行国家及市有关防火规定,落实公司"施工现场临时设施防火制度"。
2)用火作业前,有关人员必须向防火负责人报告,召集保卫部门、技术部门和其它部门,认真研究具体防火安全措施,并认真贯彻执行,执行时注意了解新的火险情况,及时认真消除火险,保证安全。
3)各种易燃材料、物品必须妥善保护,防止着火燃烧。
4)施工现场必须配齐消防器材,并按标准设置足够的消防水源,配电房材料库房、食堂及危险区域要有相应数量的干粉灭火机,危险区域要有警示标志。
五、环境保护管理措施
(出场车辆一律用水冲洗干净轮胎,做到轮下不粘泥,不污染城市道路;现场内设专人打扫卫生、洒水,保持现场干净整洁,无扬尘。
②振捣棒采用低噪音振捣棒。
③施工现场的照明灯具根据施工需要进行设置,避免对周围的影响。
④加强对混凝土泵、混凝土罐车操作人员的培训及责任心教育,保证混凝土泵、混凝土罐车平稳运行、协调一致,禁止高速运行。要求混凝土泵工加强对混凝土泵的维修保养,及时进行监控,对超过噪声限制的混凝土泵及时进行更换。
⑤水的循环利用:现场设置洗车池和沉淀池、污水井,罐车在出现场前均要用水冲洗,以保证市政交通道路的清洁,减少粉尘的污染。
⑥施工现场铺设混凝土硬化路面,以确保降低施工现场扬尘污染。
第十章 应急救援预案
为有效防范重大安全事故的发生,强化重大安全事故应急救援处理责任,最大限度控制和减少潜在施工安全事故或应急情况对施工安全造成的影响及危害,并对可能出现的基坑坍塌、触电、火灾、高处坠落、机械伤害、烟尘污染、中毒及油品、化学品、危险品泄漏等重大安全危害的紧急情况进行预防和控制,尽量减少对安全的影响,保证人员和财产的安全。
根据《安全生产法》及《建筑工程安全生产管理条例》(国务院第393号)以及国家有关部门的要求,本着"预防为主、自救为主、统一指挥、分工负责"的原则,结合本项目部的实际情况,特制定重大安全事故应急救援预案。
现场主要危险源分类
1、机械伤害安全事故;
2、火灾安全事故;
3、防坍塌事故。
一、 应急救援机构和职责
(一)成立应急准备管理体系
救援组组长:XXX 电话:***
救援组副组长:XXX 电话:***
成员:XXX、XXX
下设五个专业小组,分别是:通讯联络小组、技术支持小组、抢险抢修小组、医疗救护小组、后勤保障小组。
主要管理人员电话通讯录:
项目经理 XXX 电话:***
项目技术负责人 XXX 电话:***
生产经理 XXX 电话:***
商务经理 XXX 电话:***
图1 应急救援组织机构图 (略)
抢险救援组:由现场工程、保卫、质量安全部门负责,组织协调保卫和消防、工程抢险等专业抢险队伍,进行抢险救援。
医疗救治组:由项目部会同当地有关医疗急救中心对伤员进行现场急救处理,及时合理转送医院治疗进行救治,并对现场救援人员进行医学监护。
安全保卫组:由保卫部门负责组织保卫人员对事故现场及周边地区和道路进行警戒、控制组织人员有序疏散,维护安全区或安置区内的秩序和治安。
后勤保障组:由财务部门、材料部门负责组织协调有关部门,对应急救援所需的各种设施、设备、物资以及生活、医药等的后勤保障。
事故调查组:由质量安全部门、设备材料科负责会同有关部门进行现场勘察、取证,配合上级主管部门开展对重大安全事故的调查处理工作。
(二)项目部应急准备领导小组的主要职责
1)负责本项目部应急预案的制定和修订;组建应急救援专业队伍;组织实施和定期开展应急救援演练;检查督促做好对重大安全事故的预防措施和应急救援的各项准备工作。
2)组织和指挥各方面力量处理重大安全事故,统一指挥对重大安全事故现场的应急救援,控制事故蔓延和扩大。
3)负责组织对重大安全事故的调查,并将调查结果及应采取的措施向公司决策机构提出正式报告。
4)检查督促有关部门做好抢险救援、信息上报、善后处理及恢复生活和生产秩序的工作。
5)建立重大安全事故的信息发布制度,及时、准确、全面地发布信息。
6)定期听取各部门关于安全生产中存在的重大隐患和加强管理、实行控制情况的汇报,提出切实有效解决问题的建议和解决问题的办法。
二、应急救援工作程序
(1)当事故发生时小组成员立即向组长汇报,由组长立即上报公司,必要时,汇报当地有关部门,以取得政府部门的帮助。
(2)由应急救援小组组织项目部全体员工投入事故应急救援抢险工作中,尽快控制险情蔓延,并配合、协助事故的处理调查工作。
(3)事故发生时,组长不在现场时,由在现场的其他组员作为临时负责人指挥安排。
(4)事故发生时,应急救援小组立即组织营救受害人员,组织撤离或者采取其他措施保护危害区域内的其他人员。抢救受害人是应急救援的首要任务,在应急救援行动中,快速、有序、有效地实施现场急救与安全转送伤员降低伤亡率,减少事故的损失。
(5)事故发生后迅速控制危险源,对事故造成的危害进行监测、测定事故危害区域、危害性质及危害程度。做好现场清洁,消除危害后果。查清事故原因,查明人员伤亡情况,协助上级部门对事故调查
(6)项目部指定专人负责事故的收集、统计、审核和上报工作,并严格遵守事故报告的真实性和时效性。
(7)规划应急线路,确定医院位置,便于事故发生后及时送治。
三、应急救援装备
应急救援装备包括:值班电话、报警电话、无线对讲机、灭火器材、消防专用水管、消防水池、防毒面具、应急药箱、担架、应急车辆、抽水机及切割机等。
四、应急救缓药品
(1)外用药品:双氧水、雷佛奴尔水、红药水、碘酒、消毒的棉签、药棉、纱布、胶布、绷带、创可贴、跌打万花油、眼水、眼膏、磺胺结晶、烫火膏、清凉油或驱风油、三角巾、急救包。
(2)服药品:人丹、十滴水、保济丸或藿香正气丸、一般退烧药品。
五、应急响应措施
(一)事故现场的呼救
当发生泄漏、抛洒、失火、中毒事件,最先发现情况的人员应大声呼叫,呼叫内容要明确:某某地点或某某部位发生某某情况,将信息准确传出。听到呼叫的任何人,均有责任将信息报告给与其最近的项目部管理人员、抢救小组成员,使消息迅速报告到现场负责人(项目经理)处。现场负责人(项目经理)负责现场抢险救援的组织工作。
(二)事故现场的报警
1)遵义医学院附属医院
电话8649999,如需可直接拨打医疗120
报警员负责打急救电话120,(如遇火灾应拨打119火警电话),将发生所在位置、工程名称、联系人、事故种类、伤害情况等通知医务人员(消防部门)前来救护,遇特殊情况应打110通知警方前来协助抢救人员。报告发生伤亡伤害的地点、伤害类型(或失火地点、火势、失火材料),同时必须告知工程附近醒目标志建筑,以利急救中心迅速判断方位。安全员负责将伤亡(火灾)伤害情况及时报告应急领导小组。
2)遵义医学院附属医院交通路径(略)
(三)事故现场的接车
接车员迅速到路口接车,引领急救车(消防车)从具备驶入条件的道路迅速到达现场。
六、应急救援措施
(1)物体打击急救措施:
当发生物体打击事故后,抢救的重点放在对颅脑损伤、胸部骨折和出血上进行处理。
1)发生物体打击事故,应马上组织抢救伤者脱离危险现场,以免再发生损伤。
2)在移动昏迷的颅脑损伤伤员时,应保持头、颈、胸在一直线上,不能任意旋曲。若伴颈椎骨折,更应避免头颈的摆动,以防引起颈部血管神经及脊髓的附加损伤。
3)观察伤者的受伤情况、受伤部位、伤害性质,如伤员发生休克,应先处理休克。遇呼吸、心跳停止者,应立即进行人工呼吸,胸外心脏挤压。处于休克状态的伤员要让其安静、保暖、平卧、少动,并将下肢抬高约20°,尽快送医院进行抢救治疗。
4)出现颅脑损伤,必须维持呼吸道通畅。昏迷者应平卧,面部转向一侧,以防舌根下坠或分泌物、呕吐物吸人,发生喉阻塞。有骨折者,应初步固定后再搬运。 遇有凹陷骨折、严重的颅底骨折及严重的脑损伤症状出现,创伤处用消毒的纱布或清洁布等覆盖伤口,用绷带或布条包扎后,及时送就近有条件的医院治疗。
5)防止伤口污染。在现场相对清洁的伤口,可用浸有双氧水的敷料包扎,污染较重的伤口,可简单清除伤口表面异物,剪除伤口周围的毛发,但切勿拔出创口内的毛发及异物、凝血块或碎骨片等,再用浸有双氧水或抗生素的敷料覆盖包扎创口。
6)在运送伤员到医院就医时,昏迷伤员应侧卧位或仰卧偏头,以防止呕吐后误吸。对烦燥不安者可因地置宜地予以手足约束,以防伤及开放伤口。脊柱有骨折者应用硬板担架运送,勿使脊柱扭曲,以防途中颠簸使脊柱骨折或脱位加重,造成或加重脊髓损伤。
(2)高空坠落急救措施
当发生高处坠落事故后,抢救的重点放在对休克、骨折和出血上进行处理。
1)发生高处坠落事故,应马上组织抢救伤者。首先观察伤者的受伤情况、部位、伤害性质。如伤员发生休克,应先处理休克。去除伤员身上的用具和口袋中的硬物。遇呼吸、心跳停止者,应立即进行人工呼吸,胸外心脏挤压。处于休克状态的伤员要让其安静、保暖、平卧、少动,并将下肢抬高约20°,尽快送医院进行抢救治疗。在搬运和转送过程中,颈部和躯干不能前屈或扭转,而应使脊柱伸直,绝对禁止一个抬肩一个抬腿的搬法,以免发生或加重截瘫。
2)出现颅脑损伤,必须维持呼吸道通畅。昏迷者应平卧,面部转向一侧,以防舌根下坠或分泌物、呕吐物吸人,发生喉阻塞。有骨折者,应初步固定后再搬运。 遇有凹陷骨折、严重的颅底骨折及严重的脑损伤症状出现,创伤处用消毒的纱布或清洁布等覆盖伤口,用绷带或布条包扎后,及时送就近有条件的医院治疗。
3)颌面部伤员首先应保持呼吸道畅通,摘除义齿,清除移位的组织碎片、血凝块、口腔分泌物等,同时松解伤员的颈、胸部钮扣。若舌已后坠或口腔内异物无法清除时,可用12号粗针穿刺环甲膜,维持呼吸,尽可能早作气管切开。
4)发现脊椎受伤者,创伤处用消毒的纱布或清洁布等覆盖伤口,用绷带或布条包扎。搬运时,将伤者平卧放在帆布担架或硬板上,以免受伤的脊椎移位、断裂造成截瘫,招致死亡。抢救脊椎受伤者,搬运过程严禁只抬伤者的两肩与两腿或单肩背运。
5)发现伤者手足骨折,不要盲目搬动伤者。应在骨折部位用夹板把受伤位置临时固定,使断端不再移位或刺伤肌肉、神经或血管。固定方法:以固定骨折处上下关节为原则,可就地取材,用木板、竹片等。
6)复合伤要求平仰卧位,保持呼吸道畅通,解开衣领扣。
7)周围血管伤,压迫伤部以上动脉干至骨骼。直接在伤口上放置厚敷料,绷带加压包扎以不出血和不影响肢体血循环为宜,常有效。当上述方法无效时可慎用止血带,原则上尽量缩短使用时间,一般以不超过1h为宜,做好标记,注明上止血带时间。
(3)防触电措施
在工程中常常使用潜水泵进行抽水,一般的预防触电的措施是抽完水后才允许挖孔,并且采用动作电流为30mA的漏电保护器。但是如果地下涌水量较大,工人挖桩时往往会一边抽水一边开挖。为保证安全施工,用深水泵代替潜水泵抽水,将抽水管伸到桩内抽水,管不带电,避免触电危险。
施工现场的一切电源、电路的安装和拆除必须由持证电工操作。用电设备必须严格接地或接零保护且安装漏电保护器,各桩孔用电必须分闸,严禁一闸多用。孔上电缆必须架空2.0m以上,严禁拖地相埋压土中,孔内电缆、电线必须采用护套等有防磨损、防潮、防断等保护措施。孔内照明应采用安全矿灯或12V以下的安全灯。孔中操作工应手戴工作手套,脚穿绝缘胶鞋。
(4)坍塌事故的预防措施
筏板基础施工前应提前做好预控措施,筏板基础脚手架及钢筋马蹬在施工前应制定可靠的支撑措施方案确保施工作业人员操作安全。
七、事故善后及处理
1、应急领导小组应根据现场实际情况,按照本预案组织抢救、抢险工作,统一调派所需的车辆、人员、物资,派人协助指挥交通、疏散人群,努力将事故造成的财产损失减少到最低的限度。
2、应急领导小组派人协助重大安全事故调查组进行事故调查。
3、应急领导小组派人进行事故善后处理事宜,并将事故处理报告上报公司安全生产小组。
4、根据事故调查组认定的事故原因的分析,举一反三,采取积极有效措施防止类似事故的发生。
《另详本工程安全事故应急救援预案》
第十一章 季节性施工措施
采取的雨季施工措施如下:
(1)做好场地和基础周围的挡护工作,开挖有组织排水明沟,防止筏板基础外雨水流向筏板内,另外,还要作好基础集水井的排放工作,在基础工程施工前,形成施工现场有一个完整的临时排水系统。
(2)由技术内业负责收集天气预报,浇砼要避开大雨和中雨天气。
(3)浇砼前,随时准备好防雨材料,如塑料薄膜、彩条塑料布等,如遇零星小雨或毛毛细雨等可及时遮盖砼。
(4)现场的雨水、施工污水等要有组织经沉淀后排入业主指定位置,防止污染环境和影响施工。
(5)现场使用的机具设备要有防雷措施。
(6)各种建筑材料要有相应的保管措施,如模板堆放必须底部架空,防止被水浸泡生锈,水泥库房必须考虑可靠的防雨防潮措施等。
(7)施工人员要进行雨天安全施工教育,并有雨天防雨、防滑、防雷、防漏电等安全保护措施。
(8)雨太大时,室外工作必须暂停施工。
第十二章 大体积混凝土热工计算
一、绝热温升计算
Th= mcQ/Cρ(1-е-mt)
式中:
Th—混凝土的绝热温升(℃);
mc——每m3 混凝土的水泥用量,取350Kg/m3;
Q——每千克水泥28d 水化热,取375KJ/Kg;
C——混凝土比热,取0.97[KJ/(Kg•K)];
ρ——混凝土密度,取2400(Kg/m3);
е——为常数,取2.718;
t——混凝土的龄期(d);
m——系数、随浇筑温度改变,取0.384;
计算结果如下表:
二、混凝土内部中心温度计算
T1(t)=Tj+Thξ(t)
式中:
T1(t)——t 龄期混凝土中心计算温度,是混凝土温度最高值
Tj——混凝土浇筑温度,取25℃(可采取浇筑当日的询平均气温)
ξ(t)——t 龄期降温系数,取值如下表
计算结果如下表
由上表可知,砼第6 d左右内部温度最高,则验算第6 d砼温差
三、混凝土养护计算
混凝土表层(表面下50-100mm 处)温度,底板混凝土表面采用保温材料(阻燃草帘)蓄热保温养护,并在草袋上下各铺一层不透风的塑料薄膜(厚型)。筏板结构侧面混凝土表面,模板拆除后及时采用保温材料铺贴(阻燃草帘)蓄热保温养护,并在草袋上铺一层不透风的塑料薄膜。
①保温材料厚度
δ= 0.5h·λi(T2-Tq)Kb/λ·(Tmax-T2)
式中:
δ——保温材料厚度(m);
λi——各保温材料导热系数[W/(m·K)] ,取0.14(阻燃草帘);
λ——混凝土的导热系数,取2.33[W/(m·K)]
T2——混凝土表面温度:24.7 (℃)(Tmax-25)
Tq——施工期大气平均温度:25(℃)
T2-Tq—--0.3 (℃)
Tmax-T2—21.0(℃)
Kb——传热系数修正值,取1.3;
δ= 0.5h·λi(T2-Tq)Kb/λ·(Tmax-T2)*100=-0.09 cm
故可采用一层阻燃草帘并在其上下各铺一层塑料薄膜进行养护。
②混凝土保温层的传热系数计算
β=1/[Σδi/λi+1/βq]
式中:β——混凝土保温层的传热系数[W/(m2·K)]
δi——各保温材料厚度
λi——各保温材料导热系数[W/(m·K)]
βq——空气层的传热系数,取23[W/(m2·K)]
代入数值得:β=1/[Σδi/λi+1/βq]= 27.19
③混凝土虚厚度计算
hˊ=k·λ/β
式中: hˊ——混凝土虚厚度(m)
k——折减系数,取2/3;
λ——混凝土的传热系数,取2.33[W/(m·K)]
hˊ=k·λ/β=0.0571
④混凝土计算厚度:
H=h+2hˊ=2.11 m
⑤混凝土表面温度
T2(t)= Tq+4·hˊ(H- h)[T1(t)- Tq]/H2
式中:
T2(t)——混凝土表面温度(℃)
Tq—施工期大气平均温度(℃)
hˊ——混凝土虚厚度(m)
H——混凝土计算厚度(m)
T1(t)——t 龄期混凝土中心计算温度(℃)
不同龄期混凝土的中心计算温度(T1(t))和表面温度(T2(t))如下表。
混凝土温度计算结果表
由上表可知,混凝土内外温差<25℃,符合要求。
四、抗裂计算
1、各龄期混凝土收缩变形
式中:
--龄期t时砼的收缩变形值;
--标准状态下最终收缩值,3.24×10-4
e常数 e=2.718;
M1、M2、M3…Mn--各种不同条件下的修正系数;
混凝土收缩变形不同条件影响修正系数
各龄期砼收缩变形值如下表
2、各龄期砼收缩当量温差
ξy(t):不同龄期混凝土收缩相对变形值;
α:混凝土线膨胀系数取1×10-5/℃;
各龄期收缩当量温差
3、各龄期混凝土最大综合温度
Tj:砼浇筑温度,取25℃
T(t):龄期t的绝热温升
Ty(t):龄期T时的收缩当量温差
Tq:砼浇筑后达到稳定时的温度,取30℃
混凝土最大综合温差
4、混凝土各龄期弹性模量
E0:砼最终弹性模量(Mpa),c35取定E03.25×104 N/mm2
混凝土各龄期弹性模量(×104N/mm2)
5、外约束为二维时温度应力计算
E(t):各龄期砼弹性模量
α:混凝土线膨胀系数 1×10-5/℃
ΔT(t):各龄期混凝土最大综合温差
μ:砼泊松比,取定0.15
Rk:外约束系数,取定0.4
Sh(t) :各龄期砼松弛系数
混凝土松弛系数如下表
外约束为二维时温度应力(N/mm2)
6、验算抗裂度是否满足要求
根据经验资料,把砼浇筑后的15d作为砼开裂的危险期进行验算。
(抗裂度验算)
fct=2.39 Mpa(28天抗拉强度设计值)
同条件龄期15天抗拉强度设计值(达28天强度的75%)
龄期15天温度应力1.04MPa
0.6064≤1.05,抗裂度满足要求