在一线城市当中生活,有很多的年轻人都会感到买房的压力,所以选择公寓是一个不错的方向,但是一般小户型的房子无法满足一家三口或者更多的人来居住,这时有人将眼光放到了复式小公寓上,那么复式小公寓到底能不能买呢?有没有居住的实用性呢?其实。如果借助装修也是能实现的。
那么今天就跟Coco来看一看这家的35平米小复式吧,在Coco看来是非常具有实用性,并且文艺范儿十足。本期案例的公寓层高有五米高,但是面积只有小小的35平方。借助其层高优势增加楼板,建成双层住宅,使实际居住面积增加一倍。该房屋的业主是一对非常年轻的小夫妻,结婚刚刚三年,有一个一岁左右的小孩子。
业主在跟设计师沟通的时候,就提出了八点需求,分别是:
1、 要注意房间的采光问题,视觉空间感要大。
2、 要在入户的位置安排一个鞋柜,能够满足日常的换鞋需求。
3、 厨房中的操作台面一定要大,这样能够满足一家三口的饮食需求,并且希望厨房的位置空间是封闭式的。
4、 还希望要有一个独立的餐厅进行用餐。
5、 客厅位置也要扩大,这样可以方便自己日后接待朋友。
6、 要给孩子打造一个独立的空间。
7、 安排足够多的储物空间来储存衣物等生活用品。
8、 营造和谐的家庭气氛,要体现出loft风格的独特韵味。
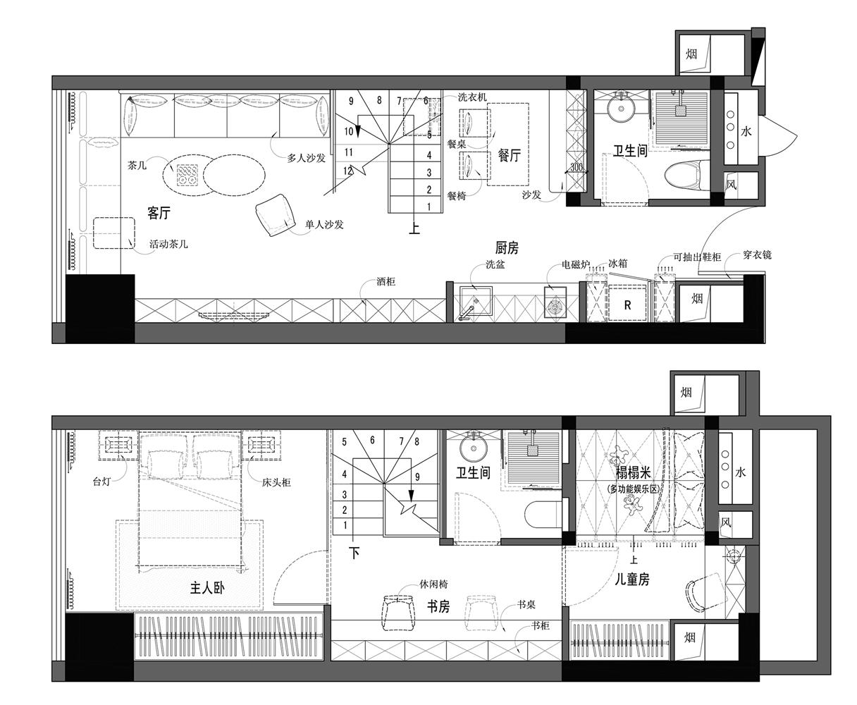
户型信息

平面户型图
房屋面积:35㎡
装修预算:20万以上
风格: LOFT
房型:3室2厅
设计师在初期的设计过程中充分采纳了业主的这些意见进行设计,该户型是属于狭长型,并且采光面积小。如何营造大空间以及光线通透性较强的感觉呢。设计师首先将空间的分隔做好,要坚持透、空、灵三个字的准则,让室外的光线能够尽可能的多照进室内来。然后就是根据业主的功能需求来进行设计,借助复式公寓的层高优势打造双层空间,一楼位置作为接待和日常生活的休闲区域,而二楼位置则是卧室的存在,这样能够动静分离。

平面布置图
设计师还考虑到由于业主夫妇需要在家中接待朋友,所以给客厅的区域分到了很大的空间。对平面图进行了重新规划,设置为两层空间,一层空间,有独立的入户区域,厨房、餐厅、客厅和卫生间,这能够使房间内的功能性得到体现。一楼上二楼的位置选用的是黑色挑钢结构楼梯,比较轻巧结实,而且能够体现出极强的loft风格。整间房子的收纳空间是经过系统化设计的,能够让整个家越住越大。

厨房

入户入户
这套房型一进门的时候感觉比较狭窄,而且在原户型的布局上并没有安置鞋柜的空间,整个入户门的位置让人感觉很局促,与餐厅的区域并没有空间感。并且餐厅的位置与卫生间的位置有些尴尬,视觉上看起来不好,因此设计师对其进行了重新布局,将厨房的功能向后移动。借助原来厨房的空间改造成独立的玄关入户,这样让我们在一进门有一个缓冲的区域。其次,还能够安排一个鞋柜进来,方便业主日常进出换鞋用。
设计师设计了一组玄关柜,将日常所用的冰箱、酒柜、书柜等集中到一起,让我们看起来空间比较干净整洁,对于提升空间品质,打造精致生活有一定的促进作用。其次,也是因为这个户型面积小,所以设计师将鞋柜做成大容量的可抽拉式鞋柜,能够储存大量的鞋子。

餐厅
餐厅区域也是作为一个独立的空间出现的,选择一组十分个性的吊灯来进行装饰,使整个餐厅的品味瞬间上升。

客厅
业主的电视背景墙则是一整面墙的书柜,比较符合业主夫妻的身份,并且在书柜下方安置了集成式壁柜组合灯管,营造出温馨浪漫的气氛。在客厅的吊顶上方,是一组艺术吊灯能够使客厅整个空间的文艺气质体现的淋漓尽致。

客厅
沙发背景墙则是男业主最喜欢的飞人乔丹全能科比王等,这是多少男同胞内心深处的记忆呀。

楼梯处

楼梯处
双向楼梯采用的是钢结构,墙面采用的是镜面设计,这样会使整个空间的视觉感更加丰富,让我们的小空间可以变成大house。

卧室
二楼的空间主要是运用了钢和玻璃两种材料,这样有助于光线照射进每一个角落,使每个房间都亮堂起来,精挑细选的软装,家具以及吊灯等都能够使整个空间的文艺气质表现出来。

卧室卧室

儿童房
书架则是选用的钢管焊接制成,搭配结实的木纹板材,能够让书房的工业气息显露无疑,这个书架可是定制出来的,是设计师经过多次研究和制作的,给这个家增添了不少光彩。

儿童房
儿童房的色彩是非常丰富的,是符合孩子的天性。安排的独立区域,学习时也是非常安静的,在孩子的床下面是设计师设计的巨大容量的储藏空间。

卫生间
二楼也有一个卫生间,卫生间是用玻璃隔断打造的,能够让采光性能提升,其次还可以增大面积,布帘的运用,是为了保证这个空间的私密性,整个空间的干湿分区也是借助玻璃隔断体现的。
编后语
在写完这篇案例之后,Coco就觉得添置一套复式楼也是很不错的选择,在布置方面可以学一学业主他们家,这样装修起来真的是很舒服。当然了,每个人对于户型的选择想法是不同的。谁说不能去买复式小公寓,其实有好也有坏,因此在选择的时候要尽量的挑选适合自己的。
