旋挖钻机自动化水平高,适应能力强。但受不同钻机的机械性能、人员操作水平、现场技术管理能力等存在的差异,特别是受场地地层条件的影响,加之行业尚未编制相关旋挖钻孔桩施工技规范,没有形成系统的工法研究,施工过程中大量的旋挖成桩的质量问题也随之产生,桩底沉渣过厚即是较普遍的质量通病之一。 桩底沉渣超标或过厚对桩基质量将产生严重的影响,主要体现在:沉渣过厚严重制约桩端承载力的发挥和增大桩的沉降位移,对桩基上层建筑整体结构安全会造成巨大不良隐患。
鉴于以上问题,现行桩基规范对钻孔灌注桩孔底沉渣厚度提出了明确要求。在《建筑桩基技术规范》(JGJ94-2008)中,规定端承桩沉渣厚度≤50mm,摩擦桩沉渣厚度≤100mm,许多地方性行业规范也出台明确规定对此进行约束。然而在实际施工中,由于对旋挖钻机操作人员培训不够,现场技术管理人员对施工工序把握不严,特别是受复杂地层的影响,造成桩底沉渣超标问题依然严峻。
因此,如何在旋挖钻孔桩施工过程中预防桩孔沉渣的产生,合理选择桩孔的二次清孔工艺,保证孔底沉渣满足设计和规范要求,成为困扰业界对旋挖钻机的客观评价和使用前景。 本文结合深圳地区旋挖钻孔灌注桩施工情况,分析了旋挖桩孔底沉渣产生的原因,提出了几种有效的二次清孔方法,论述了不同清孔方法的特点,提出了综合优化选择的方法。

01 旋挖桩桩底沉渣原因分析及控制措施
旋挖钻孔灌注桩桩底沉渣可能产生于旋挖钻机施工的钻进成孔、安放钢筋笼、灌注混凝土等多个环节中,分析认为沉渣产生的原因大致分为以下几类:
1.1 桩孔孔壁塌落
1.1.1原因分析 桩孔孔口填土层不稳定塌落孔内;泥浆比重过低,悬浮能力差;提升钻具太快,形成孔内向上的抽吸作用;提钻时孔内泥浆液面下降,未及时补充孔内泥浆;钻具提放刮碰孔壁;下放钢筋笼刮碰孔壁;终孔后未及时灌注砼,孔壁浸泡时间过长。
1.1.2控制措施 孔口安放钢护筒保护孔口,护筒长度根据地层条件,适当加长;加大泥浆比重,提高泥浆的粘度,减少孔底沉淀;控制旋挖每回次进尺,严禁钻筒打满提钻,避免抽吸现场;钻具提高孔口前,及时补充孔内泥浆,保持泥浆液面高度;钻具提放时保持对中,慢提、慢放,防止刮碰;下放钢筋笼保持对中、垂直;终孔后及时灌注桩身混凝土,减少辅助作业时间。
1.2 泥浆沉淀
1.2.1原因分析
泥浆性能参数不合格,护壁效果不佳;灌注前等待时间过长,泥浆发生沉淀;泥浆含砂率高。
1.2.2控制措施
配制合适参数的泥浆,并及时检测、调整泥浆性能;缩短灌注等待时间,避免泥浆沉淀;设置泥浆沉淀池或者泥浆分离器将泥浆中泥砂沉淀分离,并调整泥浆性能。
1.3 钻孔残留
1.3.1原因分析
钻具钻底变形或者磨损过大,渣土泄露生成沉渣;钻底结构本身限制,如钻齿布置高度、间距等原因造成渣土残留过多生成沉渣。
1.3.2控制措施
选用合适钻具,经常检查钻底结构;减小旋转底和固定底间隙;及时补焊保径条,更换磨损严重的边齿;合理调整钻齿布置角度、间距;增加清渣次数,减少桩底残留。
1.4清孔工艺
1.4.1原因分析
清孔时的抽吸作用造成垮孔;清孔时泥浆性能不达标,沉渣无法携带出孔底;清孔工艺选择不合理,沉渣无法清除干净。
1.4.2控制措施
清孔时控制泵的抽吸力,减少对孔壁的冲击;清孔时换浆,并调整好泥浆性能指标;根据钻孔情况,选择适合的二次清孔工艺。
旋挖钻孔灌注桩二次清孔技术
旋挖钻孔施工过程中应采取适当措施避免沉渣产生,在钢筋笼、灌注导管安放后,对沉渣过厚的桩孔,须选用合适的二次清孔工艺进行沉渣处理。二次清孔是在完成旋挖成孔、下入钢筋笼和灌注导管后,利用灌注导管清除孔底沉渣的关键工序。桩孔二次清孔工艺的合理选择,对清除孔底沉渣,保证桩身工程质量极其重要。 目前,业内旋挖桩桩孔二次清孔技术按泥浆循环方式可分为以下三类:泥浆正循环清孔、反循环清孔和钻具无泥浆循环清孔。
02 泥浆正循环清孔
2.1.1 工艺原理
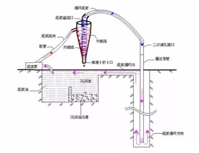
泥浆正循环清孔工艺是普遍采用的一种清孔方式,是由泥浆泵泵送的泥浆经过胶管,与孔口的灌注导管连接,并把泥浆送到孔底;送到孔底的泥浆悬浮并携带孔底沉渣,再经过灌注导管与孔壁之间的环状空间返回地面,流入循环沟、沉淀池,然后进入泥浆池循环使用。 正循环二次清孔工艺原理见图1示。

图1正循环二次清孔原理示意图
2.1.2 清孔操作注意事项
泥浆正循环清渣运行时须注意以下事项:
(1)选择合适的泥浆泵,泥浆流量过大,对孔壁冲刷大,容易塌孔;泥浆流量小,沉渣上升速度慢,清渣效果差,耗费时间长。实际施工中,流量、扬程作为选择泥浆泵的依据,可根据桩孔直径大小配制功率在12~30KW之间的3PN泥浆泵。
(2)减少管道接口,避免管道直径剧烈变化、运行方向剧烈变化,减小泥浆循环系统中的沿程阻力和局部阻力消耗。
(3)泥浆循环过程中,泥浆循环系统中含有较多的粗颗粒或岩渣,会反复循环带入孔内,影响清孔效果。应定期对沉淀池、泥浆池废渣进行清理,可加大、加长泥浆循环沟,并派专人沟内捞渣。
(4)清孔过程中,根据清渣效果适时上下提放、左右移动导管,加快扰动孔底沉渣,以达到快速清渣的效果。
2.2泥浆旋流器正循环清孔
2.2.1 工艺原理
为减少正循环二次清孔过程中泥浆中粗颗粒含量大,提高泥浆性能指标,缩短清孔时间,提升清孔效果,在泥浆正循环清孔系统中,引进了泥浆旋流器辅助清孔,即:在泥浆泵泵送泥浆入孔底的胶管上,在地面串联泥浆旋流器,在泥浆被泵入孔底前将泥浆中的粗颗粒排出,预先进行浆渣有效分离,保证优质泥浆进入孔底,减少岩渣的重复带入,并有效地提高了泥浆的携渣能力,大大缩短清孔时间,既提高工效,又保证清孔效果。泥浆旋流器二次清孔工艺平面布设见图2示。

图2旋流器二次清孔示意图
2.2.2 清孔操作注意事项
泥浆旋流器正循环二次清孔凭借旋流装置对泥浆进行有效分离,其操作简便、分离效果好,是普通泥浆正循环清孔系统的升级工艺,是我公司拥有的实用新型专利技术,同时被评为2011年度深圳市工程建设市级工法、广东省工程建设省级工法,具有实用性、有效性,为二次清孔提供了新的可靠选择。
泥浆旋流器正循环二次清孔时应注意:
(1)派专人负责旋流器工作状态,观察排渣口是否堵塞;如出现旋流器进口部分吸入块石、牡蛎壳、水泥块等较大异物时,会使进浆速度降低,应及时清除。
(2)如果旋流器进口泥浆中的固相粗颗粒含量过高,或底流口阀门调节过小,会使旋流器过载,会导致底流口堵塞,可通过调节底部阀门,以保持底部排渣通畅。
(3)旋流器出渣口设置专门的排渣池,并及时进行清理排渣。
(4)旋流器的选择应与泥浆泵量相匹配。
2.3 泵吸反循环二次清孔
2.3.1 工艺原理
为保证清孔满足设计和规范要求,对大桩、深桩通常的做法是采用泥浆泵吸反循环工艺。泵吸反循环二次清孔是利用砂石泵的抽吸作用,在灌注导管内腔造成负压状态,在大气压力作用下,处在灌注导管与孔壁之间环状空间中的泥浆流向孔底,被吸入灌注导管内腔,随即上升至地面泥浆循环系统,经泥浆沉淀池沉淀处理后,再由泥浆池、泥浆循环沟流入孔内。 泵吸反循环二次清孔工作原理见图3示。

图三泵吸反循环二次清孔工作原理示意图
2.3.2 清孔操作注意事项
采用泵吸反循环二次清孔具有抽吸能力强、清孔时间短、孔底干净的特点,但清孔时需注意:
(1)清孔时需增加6BS反循环砂石泵,整体循环系统管路布设较复杂,反循环现场操作专业性较强,真空度的形成具有一定的难度。
(2)由于泵吸反循环砂石泵流量可达180m3 /h,抽吸能力超强,形成的负压对孔壁稳定有一定的影响,对深厚淤泥、砂层厚的桩孔,应控制反循环流量。
(3)清孔时,应注意保持护筒内泥浆面的水头高度,保持回流入孔内的泥浆量与抽吸量平衡一致。泵吸反循环泥浆使用量较大,需控制好泥浆的性能和参数,做好废浆废渣的处理。
2.4 气举反循环处理方法
2.4.1 工艺原理
气举反循环清孔是在导管内安插一根长约2/3孔深的镀锌管将高压空气送入导管内2/3孔深处,与导管内泥浆混合,经充气后在导管内产生低压区,连续充气导管内外压差不断增大,当达到一定的压力差后,平衡打破,则迫使泥浆在高压作用下从导管内上返喷出,同时孔底岩渣被高速泥浆携带从导管上返喷出孔口。 气举反循环原理如下图4示。

图4 气举反循环原理
2.4.2 清孔操作注意事项
气举反循环二次清孔工艺压力差大,流速快,携渣能力强。清渣工艺运行时,除减少阻力、移动导管、分离泥浆中泥砂等,还须注意:
(1)气举反循环设备配置较为复杂,在进行实际工作之前必须进行一定的调试和优化,尤其是空压机选型,设置合适的进气管长度直接影响循环清渣效率。
(2)气举反循环会引起桩孔底部产生抽吸负压,在不稳定地层使用须防止塌孔。
(3)反循环作业过程中,须始终保持护筒内泥浆液面的水头高度,保持回流入孔内的泥浆量与抽吸量平衡一致,防止产生塌孔。
2.5 “潜水电泵+泥浆净化器”二次清孔系统
2.5.1 工艺原理
为解决大直径桩、超深桩的二次清孔效果差、泥浆循环复杂、泥浆排放量大等难题,我司研发出“潜水电泵+泥浆净化器”二次清孔系统, 即:采用潜水电泵与灌注导管连接,当潜水电泵开动时,直接抽吸孔底沉渣,形成泥浆反循环;潜水电泵用胶管与泥浆净化装置相连,抽吸上来的泥浆进入泥浆净化系统,实现浆渣分离,渣直接排出装车外运,泥浆重新通过泥浆净化器出口流入孔口,以保持孔内泥浆液面高度,维护孔壁稳定,并循环使用,以达到清孔的目的。
“潜水电泵+泥浆净化器”二次清孔系统工作原理见图5、图6示。

图5 “潜水电泵+泥浆净化器”二次清孔系统原理图

图6 “潜水电泵+泥浆净化器”二次清孔现场布设图
2.5.2 清孔操作注意事项
(1)泥浆净化装置型号的选择将根据潜水电泵型号、处理能力等综合考虑,当潜水电泵流量不大于100 m3/h时,可选择ZX-100型;当潜水电泵流量大于或等于100 m3/h时,可选择ZX-200型,以达到流量和处理能力之间的平衡,满足泥浆净化能力的需求。
(2)孔口潜水电泵是二次清孔过程中重要的机具设备,潜水电泵分别与灌注导管和泥浆净化装置相连,形成泥浆反循环二次清孔工艺;为了确保潜水电泵的密封性,一般将潜水电泵沉入到泥浆液面下,防止漏气。
(3)清孔系统安装完成后,进行专项检查,包括:灌注导管离孔底高度、各接口的密封性、泥浆净化装置的稳定性、各类电器的安全性等,检查符合要求进行二次清孔。
(4)清孔过程中,密切监测孔口泥浆液面的高度,保持潜水电泵抽排泥浆量与回流的泥浆量基本一致,以确保孔内泥浆的水头高度,以保持孔壁稳定。
2.6旋挖钻斗清孔(无泥浆循环清孔)
2.6.1 工艺原理
旋挖钻斗清孔即利用专用的捞渣钻斗清除孔内的沉渣,在钻进成孔过程和灌注混凝土前,不需要使用泥浆正循环或反循环进行孔内清孔的一种清孔方式。这种清孔方式,主要由旋挖钻斗捞取钻孔底沉渣,同时依靠泥浆起到保护孔壁稳定和悬浮沉渣的作用,使孔内泥浆中的粗颗或钻渣在较长时间内处于悬浮状态,在钢筋笼、灌注导管安装后,孔底保持少沉渣或无沉渣。
2.6.2 旋挖钻斗无泥浆循环清孔实践
(1)工程概况:深圳福田中心区国信金融大厦桩基础大直径钻孔灌注桩桩径为φ1800、φ2000、φ2200、φ2600mm,桩孔深度38~41mm,桩底持力层为入中风化花岗岩2m或入微风化花岗岩0.5m,微风化花岗岩抗压强度达到75MPa。
(2)桩基础施工及清孔措施:桩基础施工选择三一重工SR420Ⅱ旋挖钻机,孔口埋设3m护筒,采用纳基粉、氢氧化纳、CMC调制成化学泥浆。 以桩径φ2600mm孔为例: 上部填土、粉质粘土、残积土及强风化岩层(约38m深)采用旋挖取土钻斗按直径φ2200mm、φ2600mm分二级依次成孔,由于旋挖成孔以静态泥浆无循环钻进,且成孔速度快(约需6h),孔壁泥波薄,因此,此阶段泥浆控制在比重1.08~1.20、粘度18~20S。 下部中风化、微风化岩层坚硬、入岩深,旋挖硬岩钻进采用分级扩孔,即先用直径φ800mm截齿钻筒钻进,钻至设计终孔深度后,直接取出岩芯;终孔深度确定后,依次采用直径φ1300mm、φ1500mm、φ1800mm、φ2000mm、φ2200mm、φ2400mm、φ2600mm旋挖钻斗或钻筒从上而下扩孔钻进,每级孔钻进完成后,采用捞渣钻斗清孔。这种岩层分级扩孔、捞渣,缩短了每级孔钻进硬岩的施工时间,减小硬岩钻进的阻力,提高入岩钻进效率。为减小钻具截齿与硬岩摩擦的热能,岩层钻进时泥浆控制为低比重、中粘度,比重为1.05~1.15、粘度18~22S。 在终孔后、下入钢筋笼、灌注导管之前,采用氢氧化纳调整孔底段泥浆性能,使孔底以上10m左右范围内形成小比重(比重1.05~1.10)、大粘度(粘度22~25S)泥浆,使孔底段泥浆状态处于絮状,保持泥浆中的粗颗粒处于悬浮状态,确保在钢筋笼、灌注导管安放后,孔底沉渣满足设计要求。
(3)旋挖钻进、成桩效果:国信大厦旋挖桩施工直径φ2600mm、深度41m、入中(微)风化花岗岩3m的桩,采用无泥浆循环清孔,每2.0~2.5天完成成桩;施工直径φ2000mm及以下桩,每天可完成2~3根。
2.6.3 旋挖钻斗无泥浆循环清渣注意事项
(1)做好孔口、孔壁的保护。采用旋挖捞渣钻斗清渣,应充分做好孔口护筒埋设,切实维持好护筒内泥浆液面的水头高度,防止钻进过程中孔口垮塌和孔壁坍孔。由于桩径大,每次旋挖钻斗提离孔口前,护筒内泥浆面都会下降1.2m左右,此时需进行及时补浆,维持护筒内液面高度。
(2)捞渣钻斗结构合理。钻进至桩孔设计持力层深度后,使用截齿捞砂斗在不加压的情况下空转数圈,使得桩底尽量平坦,便于清渣;岩层钻进清渣导板尽量短小或平底,以便于孔底渣土进入筒体;清渣导板高度越小,清渣效果越理想。清渣钻斗钻底结构必须依据截齿斗底形状进行对应修改,尽量减小导板和中心锥高度。
(3)泥浆管理是关键。旋挖钻机应设置专门的泥浆班组,派专人负责泥浆的调制和管理。
(4)控制泥浆性能是旋挖钻斗清渣过程中的关键,要想实现无泥浆循环清孔,必须科学合理掌握泥浆的调配,并动态使用好泥浆。如:上部土层钻进时间短,此时应适当加大泥浆比重,维护孔壁稳定;岩层钻进回转阻力大,时间相对较长,泥浆比重可适当降低;终孔后旋挖钻斗捞渣处理后,由于需要安放钢筋笼、灌注导管,此时将泥浆调制成低比重、高粘度,使底部段泥浆形成絮状和稠度,提升泥浆的悬浮能力,避免泥浆内固相颗粒沉入孔底。
(5)钻具清渣后,缩短辅助作业时间,即刻下笼灌注桩身混凝土,最大限度减少孔底沉渣量。
03
旋挖钻孔桩孔底沉渣二次清孔技术对比分析
从适用范围、设备配置、清渣效率、泥浆使用量共4个方面进行对比分析所述清渣方法特点:
3.1适用范围
(1)正循环清渣:包括旋流器正循环清渣,其适用于直径和深度都较小的桩孔,便于泥浆携带沉渣上返,一般桩径1.5m及以下,深度40m以内。否则需要配置超大功率泥浆循环泵才能实施。
(2)反循环清渣:包括泵吸反循环、潜水电泵+泥浆净化器反循环清孔、气举反循环清渣,其适用于桩径1.5m以上的大直径桩,为使循环有足够的压力差,一般要求桩孔深度大于10m,泵吸反循环桩深可达80m左右,气举反循环孔深可超过100m。
(3)钻具清渣采用捞渣钻具配合泥浆清孔,其适用于所有旋挖钻进工艺,尤其适合长护筒、全护筒钻进及泥浆循环容易引起塌孔的情况。 综上所述,正循环清渣适用范围较小,反循环清渣适用范围较大,钻具清渣适用范围最广。
3.2设备配置
(1)正循环清渣:所需设备为泥浆泵、导管等;
(2)旋流器正循环清渣:所需设备为泥浆旋流器、泥浆泵、导管等;
(3)泵吸反循环清渣:所需设备为砂石泵、导管;
(4)气举反循环清渣所需设备:空压机、泥浆泵、导管、进气管、接头等;
(5)潜水电泵+泥浆净化器反循环清孔:潜孔电泵、泥浆净化器、导管等;
(6)钻具清渣:配置与桩径适应的清渣钻头。 在以上六种清渣工法中,反循环系统所需设备最多,系统结构也较复杂,操作有一定的技术难度,如反循环真空度的掌握等。另外,钻具清渣无需太多外配设备,但由于旋挖清渣钻斗价格与普通旋挖钻具接近,大直径清渣钻具价格较为昂贵,并且孔径不同时需要不同直径的清渣钻斗,初期投资较多是它与泥浆循环清渣相比存在的缺点。
3.3 清渣效率
在以上正循环、反循环、钻具无泥浆循环清渣工法中,以钻具清渣效率最高,通常经过3~5次提放清渣即可满足灌注要求;气举或泵吸反循环次之,清渣耗时往往在2~4h之间,而正循环清渣效率最低,往往耗时4~6h。然而,实际清渣时间与设备配置、工程地质特征、泥浆质量等因素密切相关,难以一概而论。
3.4 泥浆使用量
以上六种清孔工艺中,反循环泥浆使用量最大,正循环次之,钻具清渣最小。
04
旋挖钻孔桩清渣工艺优化选择
对于旋挖钻孔桩清渣及二次清孔工艺的优化选择是确保桩孔质量的关键,我们认为主要应把握以下几点:
(1)旋挖钻孔桩清渣方法较多,我们提倡的是没有最好、只有合适,每一种工艺方法都必须与设备、人员、地层、环境相适宜,能简单处理,就不复杂操作,以达到清孔效果为目的。
(2)小直径桩、浅桩,由于桩孔断面小、清孔深度小,采用泥浆正循环二次清孔能较好满足要求。
(3)对于大直径桩、超深桩,采用泥浆正循环清孔速度慢、效果差,此时必须采用泥浆反循环清孔工艺。反循环清孔工艺中,根据孔径、孔深,合理选择泵吸或气举循环工艺。
(4)在二次清孔过程中,泥浆净化装置(如旋流器、黑旋风系列)的使用,能快速分离泥浆中的固相粗颗粒,减小泥浆含砂率,提高泥浆的性能,可加快浆渣分离,提高清孔速度、保证清孔质量、减少泥浆量排放,可以起到事半功倍的效果。
(5)钻具无泥浆循环清渣,是旋挖钻孔桩施工中值得提倡的一种清孔新工法,其最大的特点是在钻孔安放钢筋笼、灌注导管后,可以保持孔底少沉渣或无沉渣,无需再进行二次清孔,具有清渣效果好、辅助设备少,大大提升了成桩效率,最大限度地发挥出了旋挖机高效的特性。这项清渣技术已在国信金融大厦、阿里巴巴大厦、阿里云大厦在、人寿大厦等一批旋挖桩基工地上运用,取得了令人满意的效果,应大力推广。
(6)深圳地区旋挖桩施工队伍众多,且以个体拥有数量大,旋挖钻机性能、管理水平、桩机工操作能力差别大,其往往仓促上马、缺乏培训,对旋挖桩施工技术、操作技能掌握不足,尤其对钻进泥浆性能的掌握大多数一知半解,往往难以达到预期的效果。因此,在二次清孔具体操作时,应根据实际情况,调整清孔工艺。特别是如采用钻具无泥浆循环清渣工艺,其实际运用技术含量高,在安放钢筋笼、灌注导管后,在灌注混凝土前如测量孔底沉渣不能满足设计要求,则必须采用泥浆正循环或反循环进行二次清孔。