长期奔波都市中的奋斗者,越加向往着一处静雅的天地,远离尘嚣,无丝竹之乱耳,无案牍之劳形,让疲惫的身心得以放松,与家人共度生活的乐趣。本案介绍是是一套两层带顶楼的复式楼,一共有三层,三代人居住,业主的父母和两个小孩一共六个人。
整体以现代风格展现,拥有成熟稳重的格调,也有很轻快的现代风搭配,很符合三代人的审美观。第一次听男主述说他对家的假象时,能感受到这位外表严肃的建筑师对家人的那种细腻的关怀与呵护,兴许是在外舟车劳顿,而能使之放下一切担子的唯有家人给予的温暖。

本案的整体简介:
装修风格:现代简约风格
实际面积:485平米
空间格局:三层复式楼
设计师:POPPY酱设计
项目位置:山东临沂市
装修造价:126W
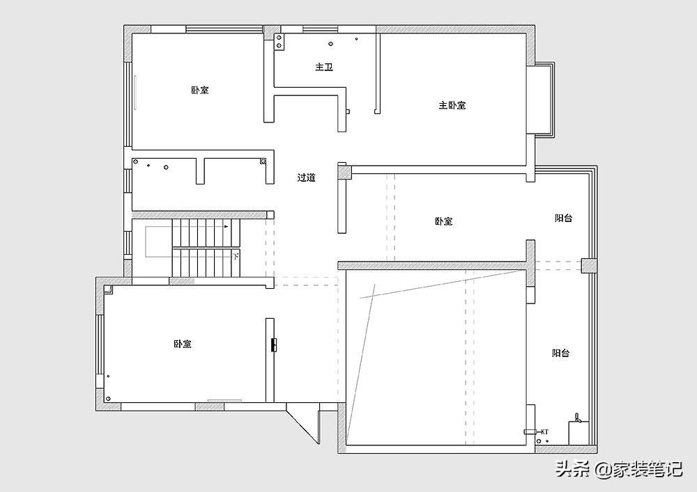
01户型图

一层原始结构图

二层原始结构图

三层原始结构图
户型还可以,两层的复式楼加一个天台,从业主那里得知,当时买这套房子的时候,最大一部分的原因就是看中了三楼的天台,那个面积是算的全赠送,花了两层的钱,买了三层的房子。结合一楼和二楼的原始图看,我们可以看出,客厅是一个挑空层。一楼进来,没有玄关,打开房门就是一览无遗,每个空间都比较中规中矩,所以后期的平面方案改造也并不难,本身作为建筑师的男主来说,买房时就已经看好了户型。
02平面布置图

一层平面布置图

二层平面布置图

三层平面布置图
整个三层的平面方案,是男业主和设计师一起完成的,没有像大部分的复式楼格局一样进行大改,只是进行了局部的改变。首先我们先从一楼看起,进门设计玄关出来,做一小组的鞋柜;厨房做开放式,和餐厅融为一体,增加了视觉效果;客厅旁边的阳台一分为二,做成了两个休闲阳台,一部分作为主卧的休闲阳台;一楼只保留了两个卧室,一个主卧室套房,一个父母房。二楼两个小孩房,然后还有一个书房,两个小孩共同;另外还做了一个茶室,茶室旁边有一个晾晒区,一个生活区,两个小孩可以从小培养独立生活的习惯。三楼的平面方案主要是以休闲、生活为主:在这里有活动区、生活区、休闲区、另外还有个茶室,天气好的时候在这里边晒太阳边喝茶,感受生活的惬意。
03玄关


玄关没有做成真正意义上的一个空间,而是规划的一个区域,它由鞋柜自然而形成。打开房门正对面有一小组矮柜作为隔断阻挡,让进门仪式感更强一些,玄关区域的左手边是鞋柜,右手边便是客厅空间。
04客厅



客厅是一个挑空层,一眼看上去就让人感觉到舒适,坐到沙发上就让人有一种不想走的感觉。沙发背景墙用原木色搭配爵士白大理石,再以爱马仕橙做点缀,营造出一种低调奢华的客厅氛围。吊灯脱去了挑高客厅的奢华和豪华,选择了比较有艺术感的吊灯款式。电视墙用了很沉稳的深色,一大块板直接到顶,很是大气。
05客厅阳台



客厅旁边有一个阳台空间,做了防腐木抬高的处理,里面暗藏灯光的设计,提高了客厅和阳台的整体档次,也让空间变得更为精致,在这上面摆放一张茶台,让阳台也成为了客厅的交互空间。
06餐厅


因为旁边的厨房是开放式的,所以餐厅空间虽然面积不大,但是视觉效果依然很好,酒柜和厨房的橱柜连成一排,显得格外整体。餐厅的空调风口在酒柜的上面,方形的吊顶加入了金属条,让空间变得更轻便一些。
07厨房



厨房选择了“U”字形的橱柜,利用率很高,顶面没有选择常用的铝扣板吊顶,而是选择了石膏板吊顶,这样更有档次一些,厨房和餐厅的中间没有做墙,做了导台,吃早餐的时候就不用上餐桌了。
08主卧室




主卧以木色和木质材料为主,营造出现代的温馨感。卧室采光效果并不是太理想,只有一个飘窗采光,卧室里面的采光面积并不大,布艺的床,要比实木床更加的耐用。因为有独立的衣帽间空间,所以卧室并没有做衣柜。