
在建筑室内逐渐一体化的今天,设计创新并落地永远是行业的发展核心。
作为一家专业的深化设计公司, 上海大朴室内设计有限公司(dop设计) 在空间的处理上,始终坚持创新并落地的设计初心,将每一个空间与其所表达的精神理念融合、碰撞,打破传统,不断地探索新的空间的可能性。
今天,为大家介绍 dop设计参与的新项目AI PLAZA西岸凤巢。
一、项目概况及亮点
1、 项目概况
AI PLAZA西岸凤巢位于上海徐汇滨江,紧邻“垂直硅谷”AI Tower西岸智塔,是西岸集团首个商业旗舰项目。
总体量 7.5万方,无缝衔接地铁11号线云锦路站。整体空间融入自然、艺术、智慧、人文等元素,以「OPEN TO OPEN无限生长」的商业理念,锻造西岸服务品牌,打造最具水岸温度的生活“热力场”。

AI PLAZA西岸凤巢实景图
图片来源:上海西岸公众号
在商业地产日益集团连锁化的今天,产品线、标准化几乎已成为行业统一动作下,不论是业主方还是设计方,都在寻求与众不同的表达方式。
此次项目从 “商业业态通过艺术+智慧科技相结合” 的设计理念出发,来打造具有互动式美术馆体验性的商业空间。
2、 项目亮点
项目采用不同的设计手法,新颖的设计材料,以云作为灵感的载体,通过 自然云、人文云、智慧云、艺术云四大空间主题概念,将艺术与商业这两个维度,不动声色地融入AI PLAZA西岸凤巢的场域之中,打造出 “推门即艺术,门内享生活” 的新一代商业空间。

AI PLAZA西岸凤巢实景图
图片来源: 西岸凤巢公众号
a、 智慧云主题空间
项目中庭以圆形、曲面等设计,构建出无所不在,又极具个性的动态氛围。
B1-L6层 的灯光设计,采用了淡紫色到淡蓝色逐层渐变的颜色,扶梯上的造型灯带视觉上纵横交错,充满了未来科技感。

中庭效果图
图片来源:方案设计伍兹贝格
贯穿中庭的科技瀑布屏,将艺术、智慧作为项目演绎因素,将室内空间衍化成类艺术馆的软空间,无限拓宽艺术与商业共融共生的可能。

中庭实景图
图片来源:微视资讯
L1~L3层利用网格变化设计手法,加入虚拟实景,把8m层高的室内空间延展,叠加无边界设计和虚拟现实技术,打造了科技殿堂般的智慧云空间。

L1~L3层效果图
图片来源:方案设计伍兹贝格
除了在空间造型上的满满科技感,在软硬件的细节方面,也注入了许多全新的尝试和突破。
基于商场整体科技基调,以 OLED显示屏为基础打造的全透明互动导览牌,是全上海商场范围内的首度应用。

导览牌实景图
图片来源: 西岸凤巢公众号
商场内设置的AI地图,让你与智能科技更加零距离互动体验~

AI地图实景图
图片来源: 周末做啥公众号
出现在电梯和卫生间内的 “互动魔镜” ,设计了三个不同的互动模式。
位于电梯厅的“粒子世界”,将识别到的人体转译成粒子流体形态的动态画面,“POSE大师”通过捕捉人体姿势,完成人与魔镜内影子动作匹配的互动小游戏。

电梯实景图
图片来源: 西岸凤巢公众号

L1-L3层平面布置图
图纸来源:dop设计

L1-L3层综合天花布置图
图纸来源:dop设计

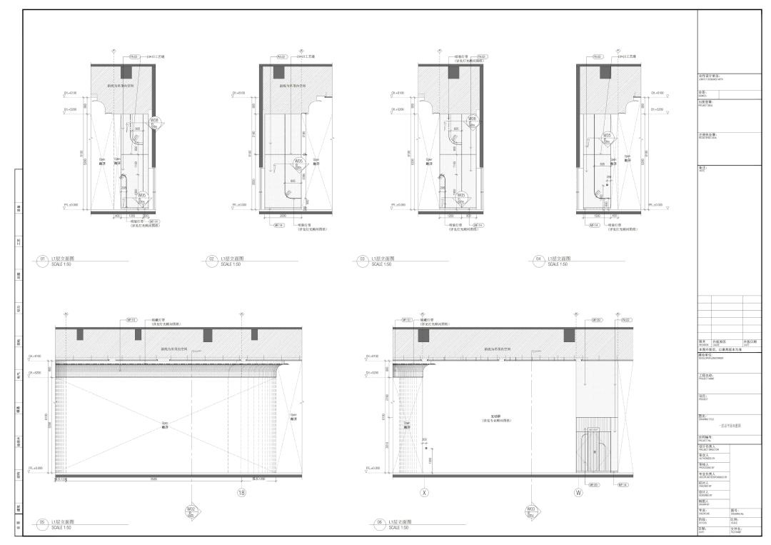
L1-L3层立面图
图纸来源:dop设计
b、 艺术云主题空间
由智慧云的矩阵空间延展而上至艺术云的软性空间,有如天圆地方的转换。 L4~L6层,运用镜像的绚彩手法,利用活泼的色彩和镜像扩展空间,倒映的倩影让人们成为艺术云空间的风景。

L4~L6层效果图
图片来源:方案设计伍兹贝格
泡泡天花与隐藏边缘灯光的自然溢出与流动,在西岸凤巢这个年轻商业的艺术元宇宙里,让身处其中的人们感受到了年轻的活力。

L4~L6层实景图
图片来源: 西岸凤巢公众号
纵跨三层的艺术空间,汇集 10余家画廊与机构、20位艺术家,以不同的语言探索影像艺术更多的创作可能与体验维度。

UCA英国创意艺术大学上海学生作品首秀
图片来源: 西岸凤巢公众号
AI PLAZA商业 X 艺术作品,用流光影像、呈现项目的无限生长多元生态。

艺术橱窗实景图
图片来源: 西岸凤巢公众号

L4-L6层平面布置图
图纸来源:dop设计

L4-L6层综合天花布置图
图纸来源:dop设计

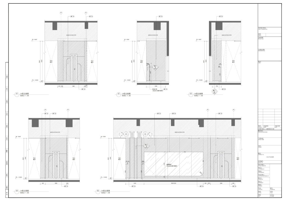
L4-L6层立面图
图纸来源:dop设计
c、 自然云主题空间
通过艺术概念的融入,从建筑、景观再到室内,行云流水的线条设计, 模拟自然形态的云之谷,穿梭其中。灯光与冲孔铝板的完美结合,营造出满满的未来感。
半开放式山谷层叠连廊,结合连云动线、水幕栖息区, 使人与自然“*界无**相融”。

建筑实景图
图片来源:上海西岸公众号
布局灵活的下沉式广场及退台式的露台活动场景,吸引人们漫步、驻足与交流,为打造丰富的社交互动体验创造良好条件。

建筑实景图
图片来源:景观行者公众号
模拟自然之美的地下一层空间,利用无边界设计手法,把户外阳光自然带入室内空间,打造 INTERIOR-SCAPE的自然云空间。

B1层效果图
图片来源:方案设计伍兹贝格

B1层实景图

B1层平面布置图
图纸来源:dop设计

B1层综合天花布置图
图纸来源:dop设计

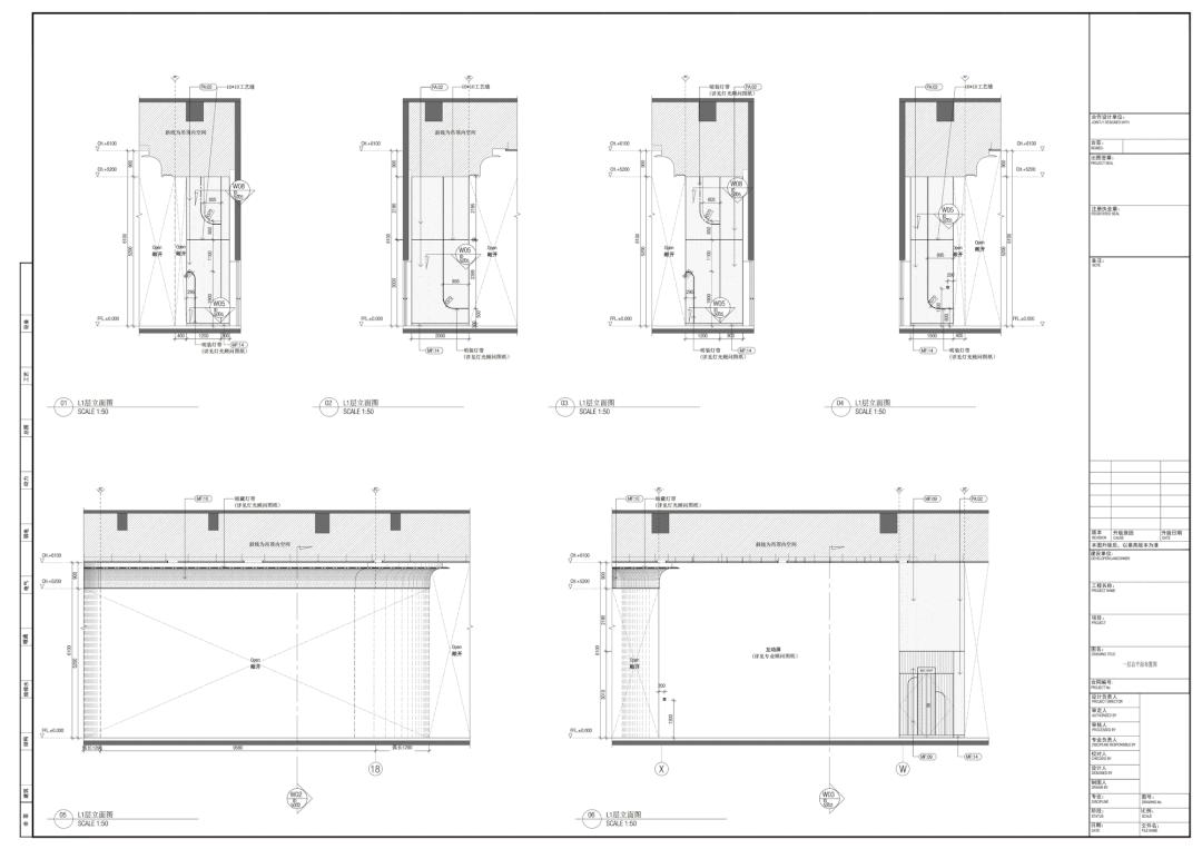
B1层立面图
图纸来源:dop设计
d、 人文云主题空间
从户外、办公楼进入塔楼,就进入了 人文云主题空间。光线简约且温暖,营造了放松、自由、舒适的环境。

人文云效果图
图片来源:方案设计伍兹贝格
人文场域为客户提供了释放压力的疗愈空间、独处或齐聚的温暖生活场所,使之沉浸于室内外之间的艺术气场。

二、dop设计在项目中的价值
2021年12月23日,上海徐汇区AI PLAZA西岸凤巢正式开业。该项目室内由香港Woods Bagot伍兹贝格建筑设计事务所设计, dop设计全程参与项目的深化、落地与实施 。
作为大型的商业综合体,设计的过程并不轻松。在设计期间,方案的频繁变更,以及所产生的种种设计变量,使得本就不充裕的时间变得更为紧促,留给深化和施工的时间非常的紧张。
dop设计团队本着精益求精的设计精神,克服重重困难,充分发挥自身优势,通过与各方协调合作,化解了项目所产生的种种难题,使得项目最终得以完美落地。
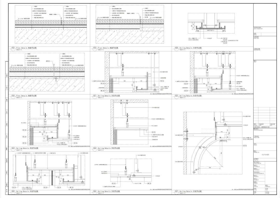
↓↓↓ 其它图纸(部分)展示 ↓↓↓

天花节点图

卫生间详图

自动扶梯图
以上施工图纸均来源于dop设计
项目档案
上海新地标
AI PLAZA西岸凤巢
项目地点:上海市徐汇区云锦路龙耀路
建筑类型:商业综合体
设计时间:2019年12月-2020年5月
室内设计:香港Woods Bagot伍兹贝格建筑设计事务所
室内深化设计:上海大朴室内设计有限公司(dop设计)
室内深化设计负责人:周遐德、李春华、陆冠桦
建筑面积:238596.92㎡
室内深化面积:28616.6㎡
建设单位:上海龙华航空发展建设有限公司
建筑设计:日建设计
建成时间:2021年12月23日