天沟是屋面排水系统中必备的构件,天沟主要是用来暂时收集雨水的,通过落水管及时排走。尽量使用外挂天沟,体积小,而且也能当檐口饰边。颜色适宜,安装精致的天沟及饰面无疑给整个工程的装饰效果增色不少。

天沟制作安装中的常见问题
(一)钢板天沟的优点和选材
在大型的厂房中,钢板天沟的用钢量也是很大的一部分,但钢板天沟也有其自身的优点,在临海地区的风荷载一般比较大。如果采用彩板天沟,在强大的风荷载作用下,彩板天沟显得脆弱无力,容易被风的吸力掀掉,而钢板天沟的设计好坏对其耐久性也有很大的影响,所以钢板天沟的设计和选材不容忽视。
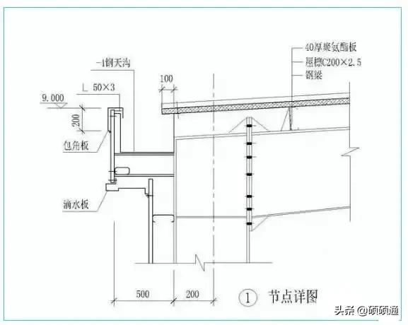
最常用的天沟材料为1.2mm、2mm或2.5mm厚不锈钢;3mm或5mm厚镀锌钢板;要根据建筑的重要性,造价,所使用的其他材料的等级综合考虑。一般民用建筑天沟深度不要小于250mm,根据屋面板底与屋架顶的净空合理确定,要考虑天沟调坡需要的空间。确定宽度时考虑一下两个因素:首先,要计算排水是否能通过;第二,常用的天沟板宽为1.0m、1.2m和1.5m三种规格,尽量合理利用板材,要求高的建筑必须将天沟设计为可伸缩的。

(二)彩板天沟搭接处漏水处理
渗漏主要是:

1、彩钢板与天沟立面相交的部位开裂、天沟接缝渗水或下水口部位渗水
针对渗漏现象,首先将彩钢板与天沟立面相交的部位的保温整理好,使之便于封堵密封材料;剔除下水口周边、彩钢板端部、天沟接缝部位原密封胶的老化密封胶剔,并将天沟部位清理干净;然后,对彩钢板与天沟立面相交的部位使用水泥砂浆或者改性沥青密封胶封堵,对下水口周边、彩钢板的端部、天沟接缝使用密封胶密封;并在钢板与天沟立面相交部位、彩钢板的端部使用丁基胶带粘结,宽度为100mm左右; 最后,在天沟部位满涂1mm厚金属彩钢板屋面防水底涂、1032增强聚酯布、1.5mm厚金属彩钢板屋面高弹防水涂料中涂;1mm厚金属彩钢板屋面防水面涂。

2、罩棚顶部漏水

罩棚顶部沟槽

3、罩棚拼接部位的固定螺钉为防水薄弱部位
首先对罩棚顶部表面进行清洗清理,保证表面无杂尘、无尖锐物;对罩棚拼接部位的固定螺钉使用密封膏密封处理,并使用丁基胶带粘贴保证搭接部位密实;然后进行果尔佳防水附加层施工,防水附加层需内衬1032增强聚酯布;附加层施工完毕后,大面积涂刷果尔佳钢涂优金属彩钢板屋面高弹防水中涂和面涂;最后进行不少于2小时的淋水试验检测漏水维修效果。

钢天沟下垂处理
在钢天沟的施工中有时会发现:由于柱距较大而天沟厚度较小时,就会发生天沟下挠的现象。解决方法有:
1.在天沟下设通长的系梁兼做天沟的支撑,以保证其不会下垂,或者下面做支托。最好焊天沟时,中间起坡大一点,安装时,尽量避免在天沟中行走,以免下挠。
2.用焊接组合的天沟,天沟中部向两端起拱一定的坡度就可以彻底解决这个问题,但是非曲直必将造成天沟的加工费用增大。

4、天沟和落水管
钢天沟的大小和屋面的面积并没有太大关系,钢天沟的高度和檩条的高度保持一致就可以了。主要的还是雨水管的个数。雨水管的积水面积一般按直径110mm的雨水管积水面积不大于180m2。其余的以这个为基准计算。这样就不会出现水沟中的水满溢了。如果需要精确的值须根据公式计算了。

5、内天沟是否需要找坡
钢板天沟从理论上来说可以做找坡,规范规定千分之五。但很少有钢结构公司会去找坡,仅节点不等高处理就比较麻烦。其实天沟找坡,一直认为是砼天沟的概念,砼天沟由于摩擦系数较大,排水不畅,因此要求找坡。而钢板表面要远比砼光滑,对水的阻力很小(摩擦系数小),而且由于钢板天沟刚度较大,若是不锈钢天沟,一般会增设天沟支架,而水会渐渐排出,荷载较小,挠度并不会很大,因此就算有积水,也是非常少的,很快就会挥发。而且在西北地区本身降雨量就相当少,从此方面考虑天沟不用找坡。再者外天沟起美观装饰作用,找坡后的天沟在安装其外包边时很难做到整齐划一,所以外天沟不用找坡。

其实内天沟找坡也很困难,特别是9m左右采用钢板天沟,跨中肯有会有挠度,搁在柱顶部分就会高一点,落水管又不可能都做在跨中,即使是采用氯丁胶防水层找坡回来,也只能略微平一点,所以一般的情况刚下完雨到屋面去看肯定会有水积在凹陷处,所以我们一再的要求钢板天沟的防腐性能一定要好。而对彩板天沟根本不好找坡,可以通过计算得到这样的数据,按最小千分之五找坡,如果9m一根落水管,则天沟两端高差需要45mm。这样很难制作,而且天沟的搭接也很难处理。

若在南方多雨地区,建议内天沟最好找坡2%,这样需要在设计和制作时要留心,设计时一截天沟两端断面要有高低之分,钢板裁剪是要依坡度下料,制作时高截面与高截面焊接,低截面与低截面焊接,就可以做成通长的有坡度的内天沟。
总之,天沟是否找坡度,要依当地的气候条件,在南方多雨地带,不能因找坡困难而拒绝天沟找坡,结合施工规范,依据工程最大的实际制定适宜方案,才能做到尽善尽美。
6、钢天沟在设计方面的改进
在现场施工能发现很多设计的不妥,给加工制作安装带来很大的麻烦,比如在钢板组合天沟的设计中,以陈旧的设计思路设计出的天沟,在安装中有时就给施工带来不便,天沟的底板和外板为什么非要90度直结呢?90度直结的天沟,在天沟上缘经拉条加固时,使天沟外板中间略隆起,天沟饰面板安装时无法贴近。外板和底板的焊接时往外倾斜一定的角度会给天沟包边的安装带来方便,经天沟下大包边的安装,可以将隆起的高度忽略,而且土尘不易附着,减少清洗次数。虽然是很小的发现,却减少了大量的人力和财力。

7、开发新材质天沟
天沟是钢结构厂房中最难选材的构件之一,目前常用的有钢板的,彩板的,不锈钢板的,我认为都不是最好的——不是防腐不好处理,就是连接不好。其实在工程中天沟问题一直是难处理的一块,钢天沟往往由于制作安装的不规范性,防水漏问题一直做的不尽人意。所以开发新材质的天沟是很有必要的。是否可以用塑钢下加檩条来完成天沟的结构。我想是有可能的,或者是用热喷涂硬塑料来覆盖钢天沟从而完成所需工艺。
综上所述,在钢结构屋面维护系统中,要使天沟发挥其应有的使用功能,发挥良好的装饰效果,应遵循以下原则:
1.设计的合理性。设计要合乎规范,依地方环境,屋面面积尺寸,设计出实用、经济、美观的天沟。
2.严把质量关。从放样开始核算尺寸、减少误差,避免制作运输中的构件变形。
3.精细安装。若是马虎对待天沟的施工,那么很可能会导致使用天沟却达不到效果。熟练而精细的安装会使装饰效果浑然天成。