我们是专业施工图深化公司,从事建筑施工图、装饰施工图、景观施工图、水电暖设计、消防设计等,提供设计资质签章
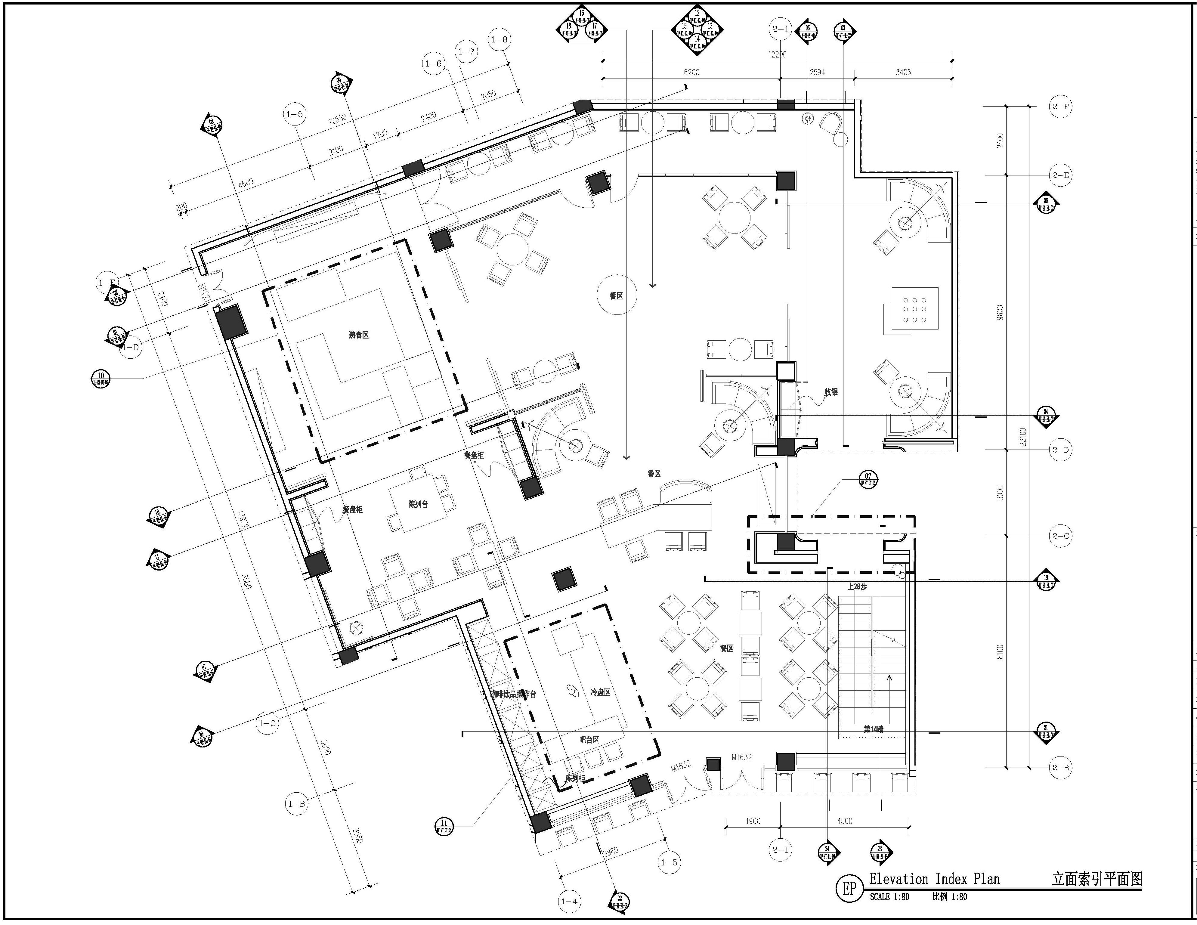
施工图是指在建筑、工程等领域中,用于指导施工的详细图纸和说明文件。它们描述了建筑物或工程项目的设计细节、材料、尺寸、构造、安装方法等,是施工人员进行施工的重要依据。
施工图通常包括以下内容:
1. 平面布置图:展示建筑物或工程项目的平面布局,包括各个房间、墙壁、门窗等的位置和尺寸。

2. 立面图和剖面图:展示建筑物或工程项目的立面和剖面视图,展示其高度、深度和内部结构。

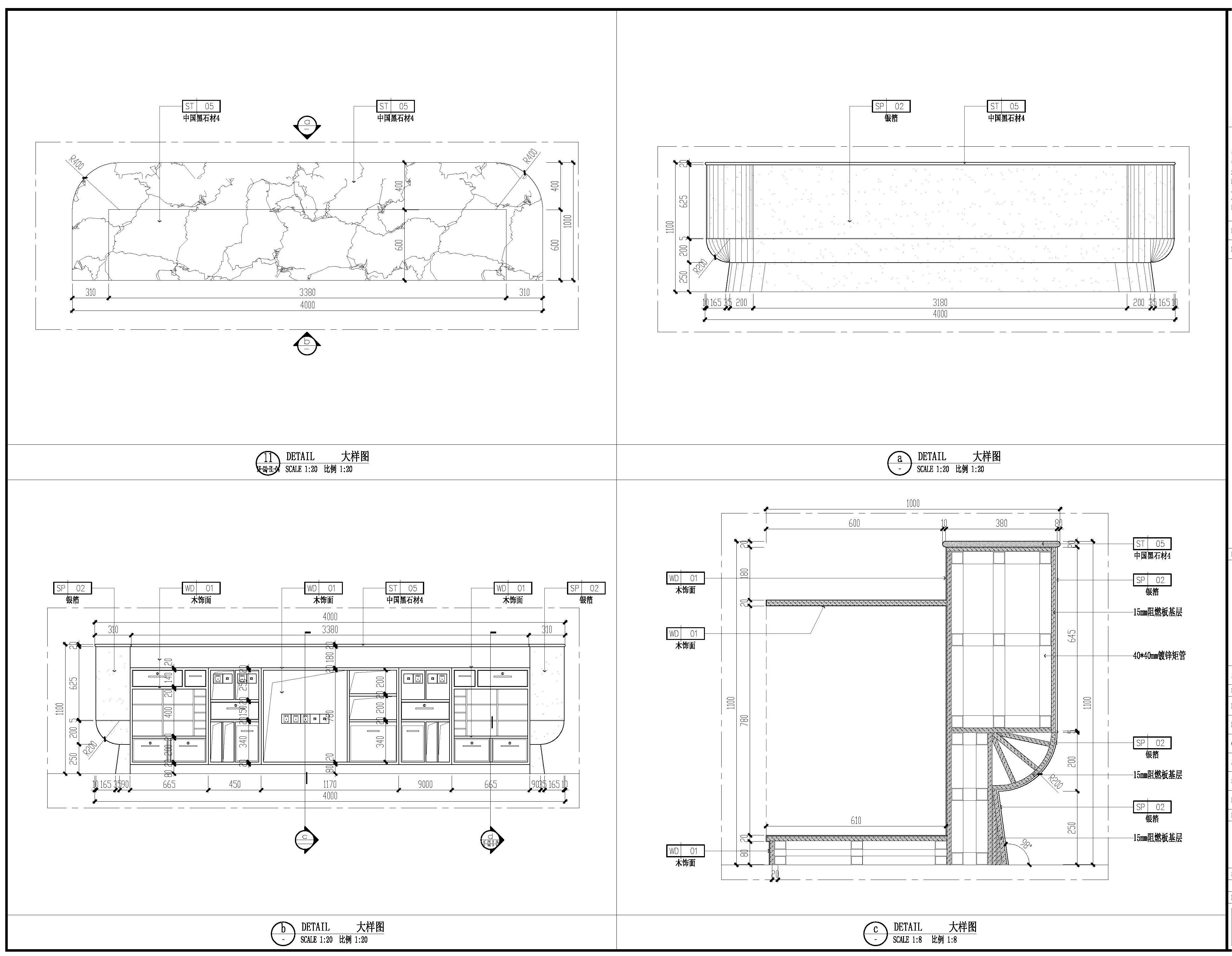
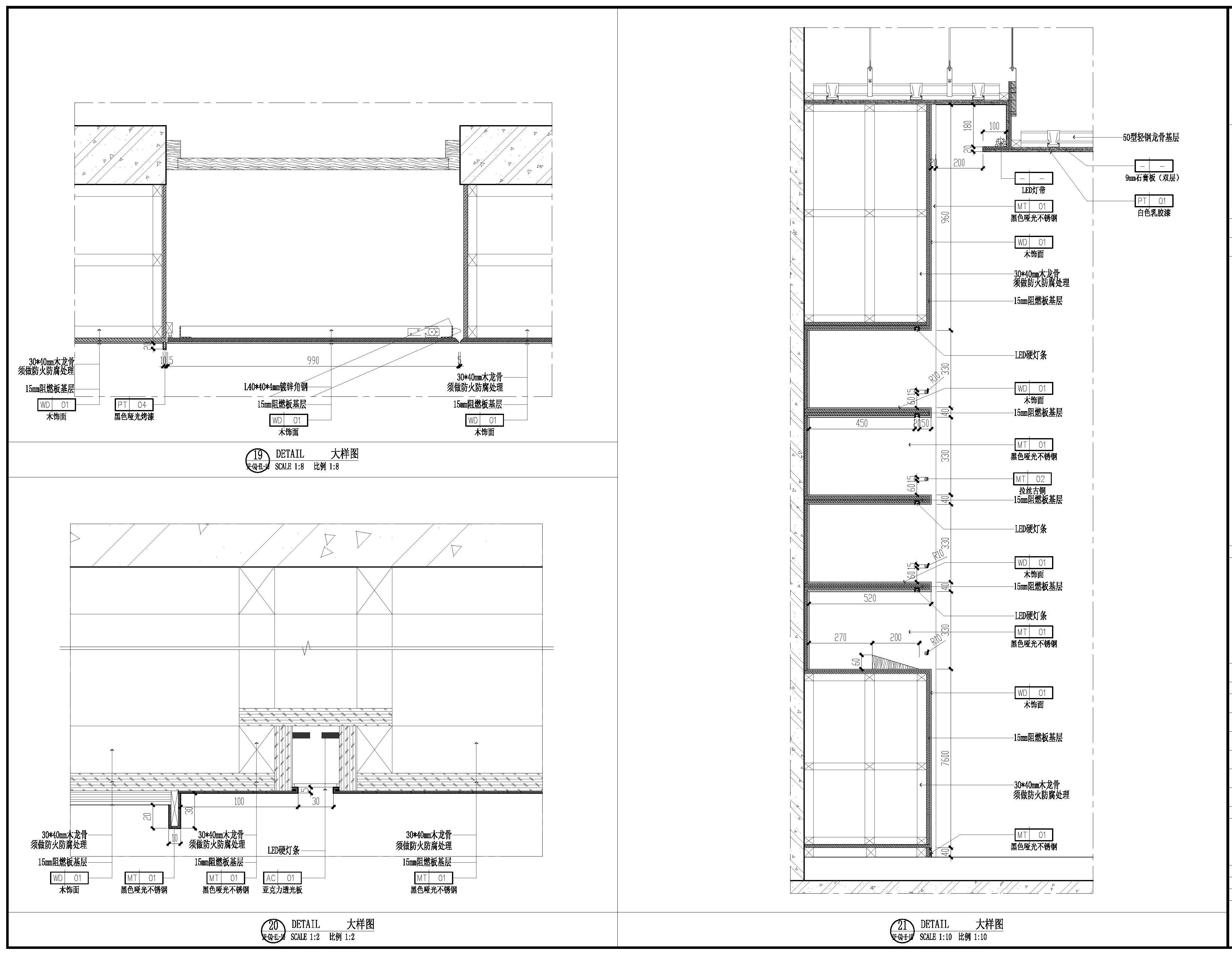
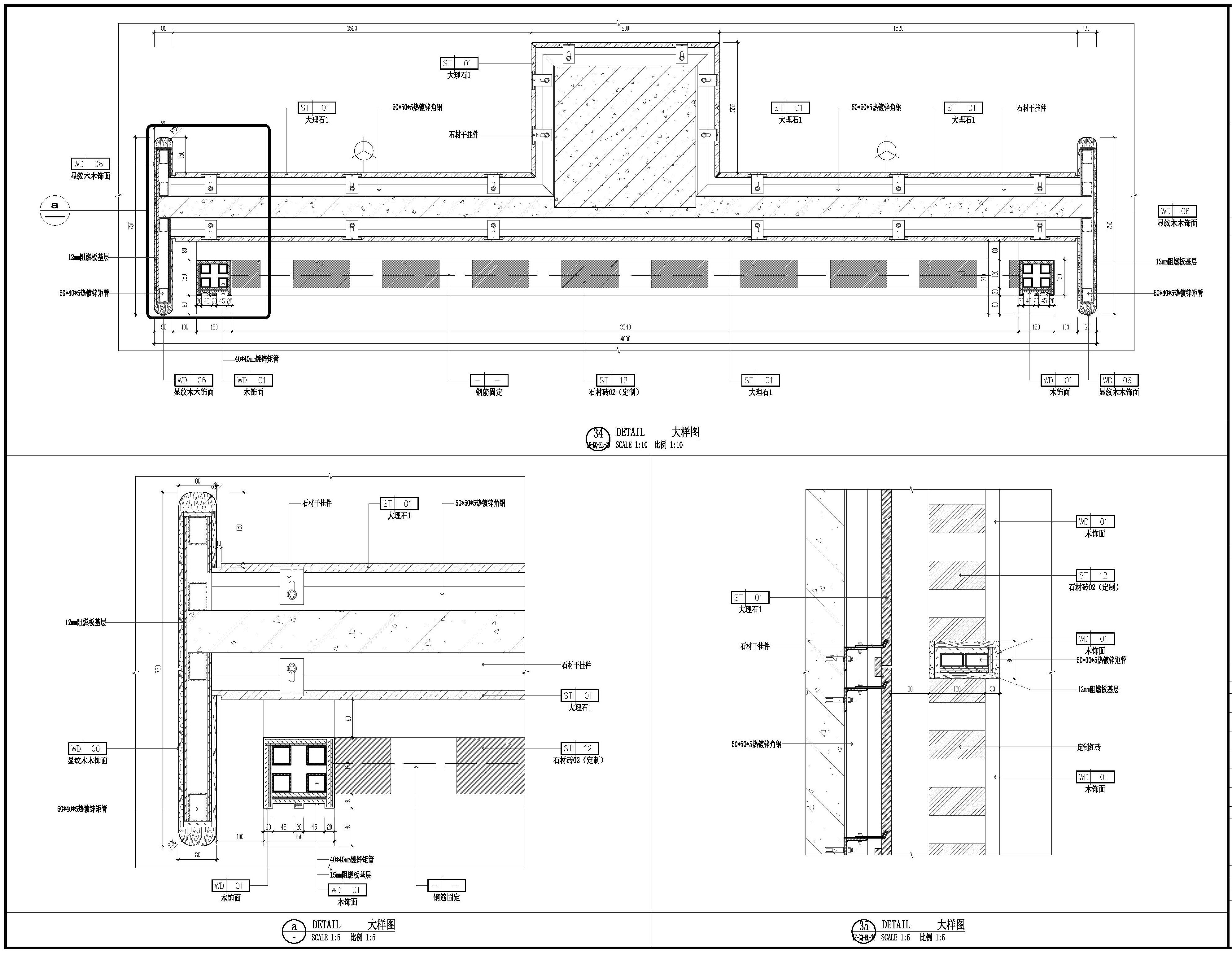
3. 细部图:展示建筑物或工程项目的细节部分,如门窗、楼梯、栏杆、设备等的详细尺寸和构造。

4. 安装图:展示设备、管道、电缆等的安装位置和方法。

5. 材料表:列出建筑物或工程项目所使用的材料和规格。

6. 施工说明书:详细说明施工方法、工艺要求、质量标准等。

7. 其他相关文件:如规范、标准、技术要求等。

施工图的制作需要经过专业的设计和绘图人员的精心设计和绘制,以确保施工的准确性和可靠性。同时,施工图也需要经过严格的审核和审批程序,以确保其符合相关的法律法规和技术标准。